571 Autumn Stream Drive Auburndale, FL 33823
For Sale MLS# O6366694
3 beds 2 baths 1,743 sq ft Single Family
Details for 571 Autumn Stream Drive
MLS# O6366694
Description for 571 Autumn Stream Drive, Auburndale, FL, 33823
Charm and curb appeal abound for this Auburndale home! Step inside into the kitchen, which boasts stainless steel appliances, hard surface countertops, and ample storage. The well-appointed living room is positioned at the center of the home. This ranch style floorplan is rounded out by the primary suite and two secondary bedrooms. Enjoy your private, enclosed yard all year long! Come and see for yourself the possibilities that this home has to offer.
Listing Information
Property Type: Residential, Single Family Residence
Status: Active
Bedrooms: 3
Bathrooms: 2
Lot Size: 0.14 Acres
Square Feet: 1,743 sq ft
Year Built: 2019
Garage: Yes
Stories: 1 Story
Construction: Other
Subdivision: Watercrest Estates
Foundation: Other
County: Polk
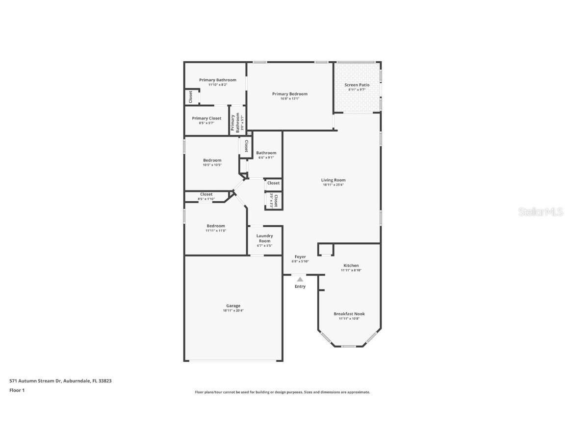
Room Information
Main Floor
Primary Bedroom: 13x16
Bedroom 2: 10x10
Bedroom 1: 11x11
Kitchen: 8x11
Living Room: 25x18
Foyer: 5x6
Bathrooms
Full Baths: 2
Additonal Room Information
Laundry: Inside
Interior Features
Appliances: Range, Refrigerator, Dishwasher, Microwave
Flooring: Other
Additional Interior Features: Other
Utilities
Water: Public
Sewer: Public Sewer
Other Utilities: Electricity Available,Water Available
Cooling: Other
Heating: Other
Exterior / Lot Features
Attached Garage: Attached Garage
Garage Spaces: 2
Roof: Other
Additional Exterior/Lot Features: Other
Community Features
Homeowners Association: Yes
HOA Dues: $770 / Annually
Driving Directions
From I4 take 559 South. Turn left onto Adams rd. Go straight into Watercrest and turn right onto Autumn Stream Dr. Home will be on the right.
Financial Considerations
Terms: Cash,Conventional,FHA,VA Loan
Tax/Property ID: 25-27-36-305502-000090
Tax Amount: 4279.17
Tax Year: 2024
A broker reciprocity listing courtesy: EVERYSTATE INC.
Based on information provided by Stellar MLS as distributed by the MLS GRID. Information from the Internet Data Exchange is provided exclusively for consumers’ personal, non-commercial use, and such information may not be used for any purpose other than to identify prospective properties consumers may be interested in purchasing. This data is deemed reliable but is not guaranteed to be accurate by Edina Realty, Inc., or by the MLS. Edina Realty, Inc., is not a multiple listing service (MLS), nor does it offer MLS access.
Copyright 2026 Stellar MLS as distributed by the MLS GRID. All Rights Reserved.
Payment Calculator
Interest rate and annual percentage rate (APR) are based on current market conditions, are for informational purposes only, are subject to change without notice and may be subject to pricing add-ons related to property type, loan amount, loan-to-value, credit score and other variables. Estimated closing costs used in the APR calculation are assumed to be paid by the borrower at closing. If the closing costs are financed, the loan, APR and payment amounts will be higher. If the down payment is less than 20%, mortgage insurance may be required and could increase the monthly payment and APR. Contact us for details. Additional loan programs may be available. Accuracy is not guaranteed, and all products may not be available in all borrower's geographical areas and are based on their individual situation. This is not a credit decision or a commitment to lend.
Sales History & Tax Summary for 571 Autumn Stream Drive
Sales History
| Date | Price | |
|---|---|---|
| Currently not available. | ||
Tax Summary
| Tax Year | Estimated Market Value | Total Tax |
|---|---|---|
| Currently not available. | ||
Data powered by ATTOM Data Solutions. Copyright© 2026. Information deemed reliable but not guaranteed.
Schools
Schools nearby 571 Autumn Stream Drive
| Schools in attendance boundaries | Grades | Distance | Rating |
|---|---|---|---|
| Loading... | |||
| Schools nearby | Grades | Distance | Rating |
|---|---|---|---|
| Loading... | |||
Data powered by ATTOM Data Solutions. Copyright© 2026. Information deemed reliable but not guaranteed.
The schools shown represent both the assigned schools and schools by distance based on local school and district attendance boundaries. Attendance boundaries change based on various factors and proximity does not guarantee enrollment eligibility. Please consult your real estate agent and/or the school district to confirm the schools this property is zoned to attend. Information is deemed reliable but not guaranteed.
SchoolDigger ® Rating
The SchoolDigger rating system is a 1-5 scale with 5 as the highest rating. SchoolDigger ranks schools based on test scores supplied by each state's Department of Education. They calculate an average standard score by normalizing and averaging each school's test scores across all tests and grades.
Coming soon properties will soon be on the market, but are not yet available for showings.