571 Port Bendres Drive Punta Gorda, FL 33950
For Sale MLS# C7515876
3 beds 2 baths 1,809 sq ft Single Family
Details for 571 Port Bendres Drive
MLS# C7515876
Description for 571 Port Bendres Drive, Punta Gorda, FL, 33950
CUSTOM BSI WATERFRONT HOME **COMPLETED IN 2022** W/105FT OF SEAWALL, OVERSIZED DOCK, BOAT LIFT & SAIL ACCESS TO CHARLOTTE HARBOR - HIGH ELEVATION & FULL HURRICANE PROTECTION from impact-rated doors & windows provide peace of mind while an open floor plan, expansive lanai, and premium finishes ensure total comfort inside and out. Built by Harbor Home Builders, this 3 bed/2 bath home in Burnt Store Isles offers everything you need to start living your Florida boating lifestyle. With 105 ft of seawall, sailboat access to open water, and a wide canal view, this home was designed for effortless indoor/outdoor living. Inside, you’ll find Italian plank tile flooring throughout, designer lighting and fans, and a clean, contemporary color palette. The spacious great room greets you with a straight-line view out to the pool and canal beyond. Disappearing sliding glass doors extend the living space to the lanai, inviting tropical breezes in. The centrally located kitchen is both stylish and functional with granite counters, soft-close wood cabinetry, stainless steel appliances including induction cooktop & convection oven, iridescent mosaic tile backsplash, center island w/breakfast bar seating, and a walk-in pantry. The split bedroom floor plan offers privacy for owners and guests alike. The master suite features walk-out access to the lanai, an oversized custom California walk-in closet, and a spa-inspired bath with dual sinks, tiled walk-in shower with rainfall head, and private water closet. Guest bedrooms are tucked behind a pocket door — one features a built-in Murphy bed, perfect for use as a den or home office when not hosting visitors. The guest bath doubles as a pool bath with direct lanai access. Outdoor living was thoughtfully planned and is nearly as impressive as the interior. A large, brick paver lanai surrounds the in-ground, heated pool and attached spa. Covered dining area includes retractable Kevlar hurricane screens for added protection, and a summer kitchen plus outdoor shower complete the space. The backyard paver path leads to the extended 10x25 ft concrete dock with 12,000 lb, remote-controlled boat lift. Water and electric hook-ups are available dockside. Set off on your latest adventure straight from your backyard and enjoy some of the best boating and fishing SW Florida has to offer. LOTS OF UPGRADES including whole-house surge protection, Reliance Quick Connect generator hook-up, Argon filled impact resistant windows, reinforced garage door, & water softener. Other amenities include an attached two-car garage w/built-in storage shelves & epoxy flooring, brick paver driveway & professionally landscaped lawn w/numerous tropical plants & palms. Home is located in on a quiet cul-de-sac in Burnt Store Isles, a deed-restricted waterfront & golfing community w/an optional HOA. There is also an active boat club. HOA & BSI Boat Club maintain active social calendars encouraging you to get to know your neighbors. Make an appointment today. You won't be disappointed.
Listing Information
Property Type: Residential, Single Family Residence
Status: Active
Bedrooms: 3
Bathrooms: 2
Lot Size: 0.21 Acres
Square Feet: 1,809 sq ft
Year Built: 2022
Garage: Yes
Stories: 1 Story
Construction: Block,Stucco
Subdivision: Punta Gorda Isles Sec 15
Foundation: Stem Wall
County: Charlotte
School Information
Elementary: Sallie Jones Elementary
Middle: Punta Gorda Middle
High: Charlotte High
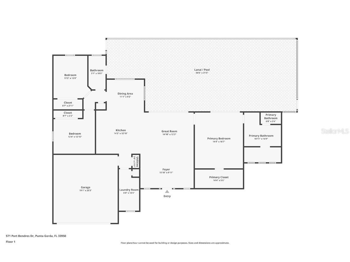
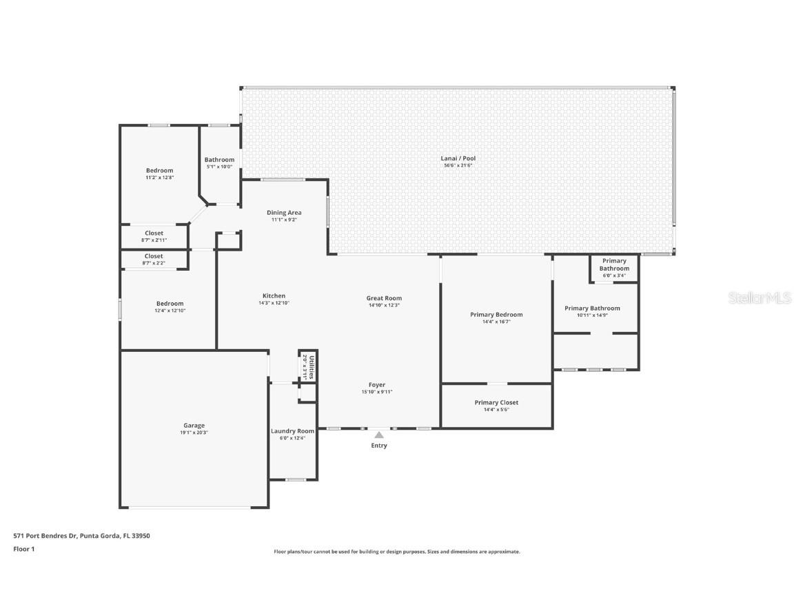
Room Information
Main Floor
Porch: 17x13
Great Room: 22x15
Laundry: 5x12
Bathroom 2: 5x9
Bedroom 3: 12x10
Bedroom 2: 12x10
Primary Bathroom: 14x10
Primary Bedroom: 15x14
Dining Room: 9x10
Kitchen: 12x12
Bathrooms
Full Baths: 2
Additonal Room Information
Laundry: Laundry Room, Inside
Interior Features
Appliances: Electric Water Heater, Washer, Water Softener, Microwave, Range, Refrigerator, Dishwasher, Disposal, Dryer, Water Purifier, Bar Fridge, Convection Oven
Flooring: Porcelain Tile
Doors/Windows: Storm Window(s)
Additional Interior Features: Ceiling Fan(s), Split Bedrooms, Walk-In Closet(s), Open Floorplan, Coffered Ceiling(s), Crown Molding
Utilities
Water: Public
Sewer: Public Sewer
Other Utilities: Cable Available,Electricity Connected,High Speed Internet Available,Phone Available,Sewer Connected,Water Connected
Cooling: Ceiling Fan(s), Central Air
Heating: Central, Electric
Exterior / Lot Features
Attached Garage: Attached Garage
Garage Spaces: 2
Parking Description: Garage, Garage Door Opener
Roof: Tile
Pool: In Ground, Outside Bath Access, Heated, Gunite, Screen Enclosure
Lot View: Canal,Water
Lot Dimensions: 80x101x105x120
Additional Exterior/Lot Features: Sprinkler/Irrigation, Rain Gutters, Outdoor Kitchen, Outdoor Shower, Screened, Landscaped, Cul-de-Sac, City Lot, Flood Zone, Near Golf Course
Waterfront Details
Water Front Features: Bay Access, Canal Access, River Access, Gulf Access
Community Features
Community Features: Waterfront
Security Features: Smoke Detector(s), Closed Circuit Camera(s), Security System
Driving Directions
From US41, go west on Monaco Dr. Right on Tripoli Blvd. Left on Paola Dr. Left on Port Bendres Dr.
Financial Considerations
Terms: Cash,Conventional
Tax/Property ID: 412319435003
Tax Amount: 11763.44
Tax Year: 2024
A broker reciprocity listing courtesy: RE/MAX HARBOR REALTY
Based on information provided by Stellar MLS as distributed by the MLS GRID. Information from the Internet Data Exchange is provided exclusively for consumers’ personal, non-commercial use, and such information may not be used for any purpose other than to identify prospective properties consumers may be interested in purchasing. This data is deemed reliable but is not guaranteed to be accurate by Edina Realty, Inc., or by the MLS. Edina Realty, Inc., is not a multiple listing service (MLS), nor does it offer MLS access.
Copyright 2026 Stellar MLS as distributed by the MLS GRID. All Rights Reserved.
Payment Calculator
Interest rate and annual percentage rate (APR) are based on current market conditions, are for informational purposes only, are subject to change without notice and may be subject to pricing add-ons related to property type, loan amount, loan-to-value, credit score and other variables. Estimated closing costs used in the APR calculation are assumed to be paid by the borrower at closing. If the closing costs are financed, the loan, APR and payment amounts will be higher. If the down payment is less than 20%, mortgage insurance may be required and could increase the monthly payment and APR. Contact us for details. Additional loan programs may be available. Accuracy is not guaranteed, and all products may not be available in all borrower's geographical areas and are based on their individual situation. This is not a credit decision or a commitment to lend.
Sales History & Tax Summary for 571 Port Bendres Drive
Sales History
| Date | Price | |
|---|---|---|
| Currently not available. | ||
Tax Summary
| Tax Year | Estimated Market Value | Total Tax |
|---|---|---|
| Currently not available. | ||
Data powered by ATTOM Data Solutions. Copyright© 2026. Information deemed reliable but not guaranteed.
Schools
Schools nearby 571 Port Bendres Drive
| Schools in attendance boundaries | Grades | Distance | Rating |
|---|---|---|---|
| Loading... | |||
| Schools nearby | Grades | Distance | Rating |
|---|---|---|---|
| Loading... | |||
Data powered by ATTOM Data Solutions. Copyright© 2026. Information deemed reliable but not guaranteed.
The schools shown represent both the assigned schools and schools by distance based on local school and district attendance boundaries. Attendance boundaries change based on various factors and proximity does not guarantee enrollment eligibility. Please consult your real estate agent and/or the school district to confirm the schools this property is zoned to attend. Information is deemed reliable but not guaranteed.
SchoolDigger ® Rating
The SchoolDigger rating system is a 1-5 scale with 5 as the highest rating. SchoolDigger ranks schools based on test scores supplied by each state's Department of Education. They calculate an average standard score by normalizing and averaging each school's test scores across all tests and grades.
Coming soon properties will soon be on the market, but are not yet available for showings.