5737 Haven Terrace Nokomis, FL 34275
For Sale MLS# N6140734
3 beds 3 baths 1,373 sq ft Townhouse/Twinhome
Details for 5737 Haven Terrace
MLS# N6140734
Description for 5737 Haven Terrace, Nokomis, FL, 34275
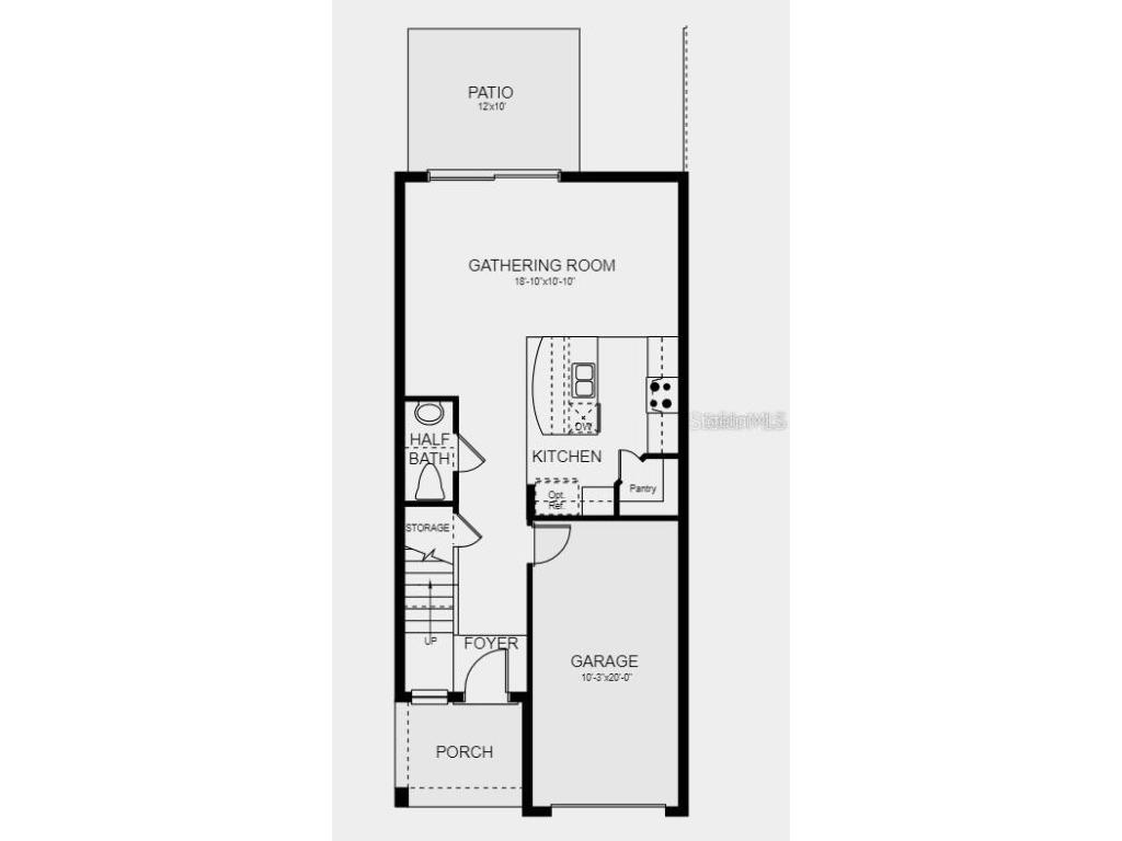
LOCATION! LOCATION! NOT FLOOD ZONE! PUBLIC WATER AND PUBLIC SEWER! GATED POOL COMMUNITY! LAKE VIEW! MOVE IN READY! This is 3 bedroom 2.5 bathroom townhome has a nice view of the pond from the back lanai. Representative photos added. With 1373 sq ft, you enter this beauty from the front door into the great room and open concept kitchen with a spacious island. The first floor has a powder room (half bath), 1 car garage and a lanai with a lovely view of the pond. The second floor has the owners suite and the additional 2 bedrooms and a bathroom as well as UPSTAIRS laundry area for added convenience! This home has plenty of storage - under stair storage, large kitchen pantry, linen closet and 3 bedroom closets.With no CDD fees and low HOA fees that cover everything from landscape maintenance to exterior pest control, you'll enjoy access to a heated community pool, volleyball and basketball courts, a playground, a dog park, and more. Don’t miss your chance to own a ready-to-enjoy home in this vibrant coastal community of Palmero. Schedule your private tour today and start making unforgettable memories in your new coastal retreat! Located minutes from I-75 & Tamiami Trail! Convenient to Florida’s best beaches, golfing, public boat ramps, marinas, shopping, physicians, water park, Atlanta Braves Spring Training Stadium, Historic Riverfront Downtown Punta Gorda & Fishermen’s Village, and a short drive to Sanibel, Venice, Fort Myers, and Boca Grande, etc. All information deemed reliable, but not guaranteed.
Listing Information
Property Type: Residential, Townhouse
Status: Active
Bedrooms: 3
Bathrooms: 3
Lot Size: 0.05 Acres
Square Feet: 1,373 sq ft
Year Built: 2022
Garage: Yes
Stories: 2 Story
Construction: Block,Stucco
Construction Display: New Construction
Subdivision: The Townhomes At Palermo
Builder: Taylor Morrison
Foundation: Slab
County: Sarasota
Construction Status: New Construction
School Information
Elementary: Laurel Nokomis Elementary
Middle: Laurel Nokomis Middle
High: Venice Senior High
Room Information
Main Floor
Porch: 10x12
Living Room: 11x19
Kitchen: 12x14
Upper Floor
Laundry: 5x5
Bedroom 3: 11x9
Bathroom 2: 11x9
Primary Bedroom: 12x13
Bathrooms
Full Baths: 2
1/2 Baths: 1
Additonal Room Information
Laundry: Inside
Interior Features
Appliances: Electric Water Heater, Microwave, Range, Refrigerator, Dishwasher, Dryer, Washer
Flooring: Tile
Doors/Windows: Window Treatments
Additional Interior Features: Walk-In Closet(s), Window Treatments, High Ceilings, Open Floorplan
Utilities
Water: Public
Sewer: Public Sewer
Other Utilities: Cable Connected,Electricity Connected,Sewer Connected,Water Connected
Cooling: Central Air
Heating: Central
Exterior / Lot Features
Attached Garage: Attached Garage
Garage Spaces: 1
Parking Description: driveway, Garage, Garage Door Opener
Roof: Shingle
Pool: Community, Association
Lot View: Pond,Water
Additional Exterior/Lot Features: Rain Gutters, Storm/Security Shutters, Enclosed
Community Features
Community Features: Pool, Clubhouse, Street Lights, Dog Park, Gated, Park
Security Features: Gated Community
Association Amenities: Playground, Pool, Clubhouse
HOA Dues Include: Maintenance Grounds, Association Management, Trash, Recreation Facilities, Pest Control, Road Maintenance, Maintenance Structure, Pool(s)
Homeowners Association: Yes
HOA Dues: $777 / Quarterly
Driving Directions
From Tamiami Trail, turn right onto Hwy 681, heading towards I-75, then turn left onto En Theos Lane and continue on as it becomes Isla Palma Lane. Take a right onto Shady Palms Lane. turn right on Haven.
Financial Considerations
Terms: Cash,Conventional,FHA,VA Loan
Tax/Property ID: 0162-11-0111
Tax Amount: 3414
Tax Year: 2024
A broker reciprocity listing courtesy: RE/MAX PALM REALTY OF VENICE
Based on information provided by Stellar MLS as distributed by the MLS GRID. Information from the Internet Data Exchange is provided exclusively for consumers’ personal, non-commercial use, and such information may not be used for any purpose other than to identify prospective properties consumers may be interested in purchasing. This data is deemed reliable but is not guaranteed to be accurate by Edina Realty, Inc., or by the MLS. Edina Realty, Inc., is not a multiple listing service (MLS), nor does it offer MLS access.
Copyright 2026 Stellar MLS as distributed by the MLS GRID. All Rights Reserved.
Payment Calculator
Interest rate and annual percentage rate (APR) are based on current market conditions, are for informational purposes only, are subject to change without notice and may be subject to pricing add-ons related to property type, loan amount, loan-to-value, credit score and other variables. Estimated closing costs used in the APR calculation are assumed to be paid by the borrower at closing. If the closing costs are financed, the loan, APR and payment amounts will be higher. If the down payment is less than 20%, mortgage insurance may be required and could increase the monthly payment and APR. Contact us for details. Additional loan programs may be available. Accuracy is not guaranteed, and all products may not be available in all borrower's geographical areas and are based on their individual situation. This is not a credit decision or a commitment to lend.
Sales History & Tax Summary for 5737 Haven Terrace
Sales History
| Date | Price | |
|---|---|---|
| Currently not available. | ||
Tax Summary
| Tax Year | Estimated Market Value | Total Tax |
|---|---|---|
| Currently not available. | ||
Data powered by ATTOM Data Solutions. Copyright© 2026. Information deemed reliable but not guaranteed.
Schools
Schools nearby 5737 Haven Terrace
| Schools in attendance boundaries | Grades | Distance | Rating |
|---|---|---|---|
| Loading... | |||
| Schools nearby | Grades | Distance | Rating |
|---|---|---|---|
| Loading... | |||
Data powered by ATTOM Data Solutions. Copyright© 2026. Information deemed reliable but not guaranteed.
The schools shown represent both the assigned schools and schools by distance based on local school and district attendance boundaries. Attendance boundaries change based on various factors and proximity does not guarantee enrollment eligibility. Please consult your real estate agent and/or the school district to confirm the schools this property is zoned to attend. Information is deemed reliable but not guaranteed.
SchoolDigger ® Rating
The SchoolDigger rating system is a 1-5 scale with 5 as the highest rating. SchoolDigger ranks schools based on test scores supplied by each state's Department of Education. They calculate an average standard score by normalizing and averaging each school's test scores across all tests and grades.
Coming soon properties will soon be on the market, but are not yet available for showings.