575 Fore Drive Bradenton, FL 34208
For Sale MLS# A4676649
4 beds 3 baths 3,085 sq ft Single Family
Details for 575 Fore Drive
MLS# A4676649
Description for 575 Fore Drive, Bradenton, FL, 34208
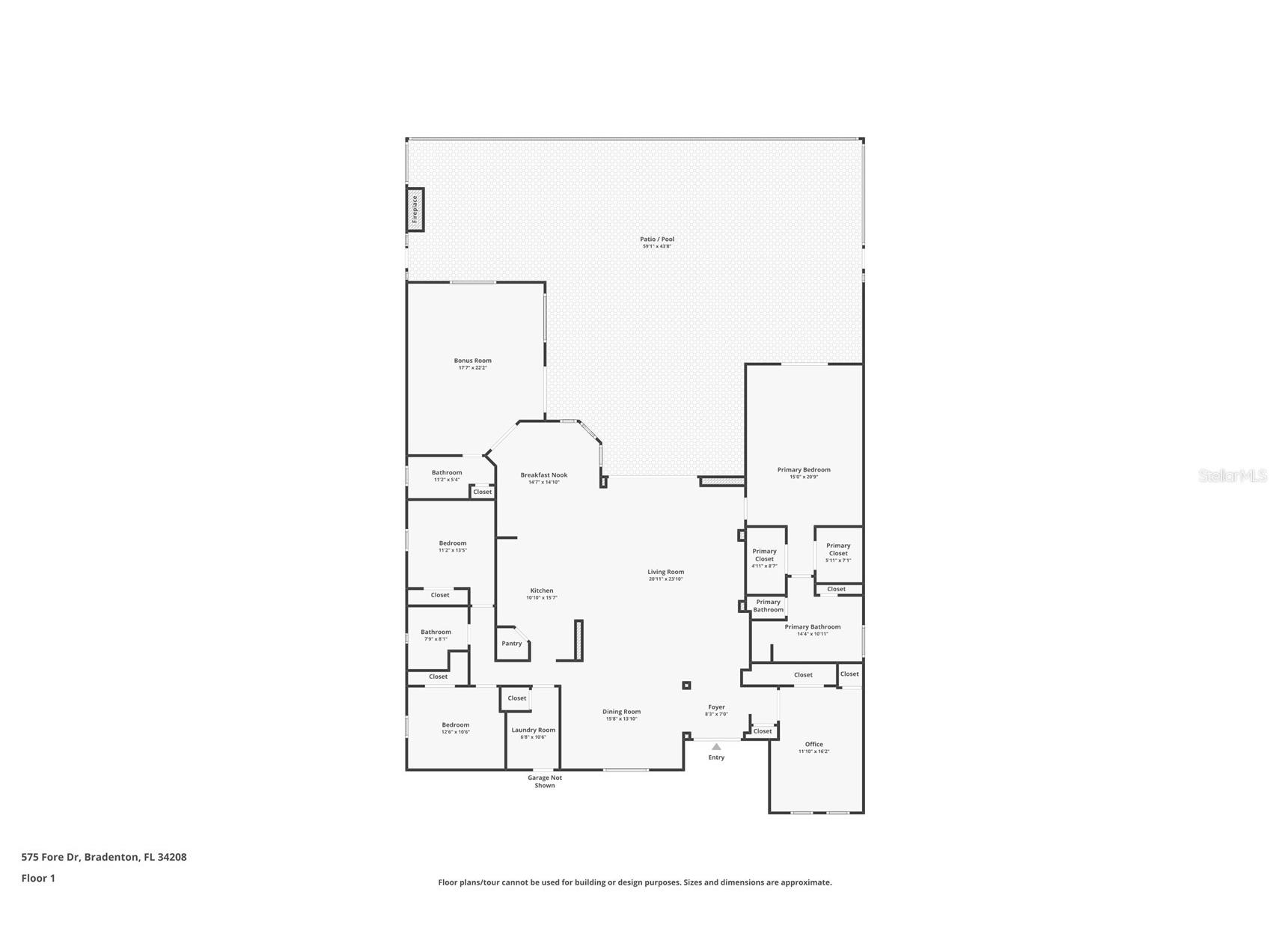
One or more photo(s) has been virtually staged. Experience refined coastal living in this exceptional custom-built executive residence located in Harbour Walk, a coveted gated boating community offering resort-style amenities and peace of mind. Move-in ready and thoughtfully designed, this home delivers the very best of Southwest Florida living with direct access to a deep-water canal just minutes from the Gulf of Mexico, pristine beaches, upscale shopping, and fine dining. Harbour Walk residents enjoy a private marina and dock, tennis courts, playground, and fishing area—perfect for embracing an active coastal lifestyle. The backyard is a true outdoor oasis, featuring over 800 square feet of covered lanai space ideal for entertaining and relaxation. Highlights include a custom outdoor kitchen with island seating, rotisserie grill, dual-zone beverage refrigerator, prep refrigerator, ice bin, and sink; automatic hurricane impact screens; a motorized privacy screen; multiple seating areas; a firepit corner; formal dining space; conversational lounge; freestanding natural gas fireplace; and a pet-friendly yard with a built-in drain. Inside, more than 3,000 square feet of refined living space showcases an open-concept design enhanced by quadruple sliding glass doors that seamlessly connect indoor and outdoor living. The home offers four bedrooms, including a spacious guest suite, and a luxurious primary retreat with lanai access, dual custom walk-in closets, and a spa-inspired bath with split vanities, garden tub, and walk-in shower. A dedicated executive-style office provides an ideal work-from-home environment. The chef’s kitchen is beautifully appointed with gas cooking, convection wall oven, warming drawer, exhaust hood, solid wood cabinetry, stone countertops, and a walk-in pantry, complemented by a bright breakfast nook and formal dining room. Additional features include a resort-style pool and spa with bubbler features, whole-house Generac generator, plumbed natural gas, gas appliances, crown molding, recessed lighting, ceiling fans throughout, hurricane shutters, and a new AC system installed September 2025. The oversized, side-facing two-car garage offers epoxy flooring, additional storage, and a hurricane-rated impact door. Hurricane-impact rated front door, windows, and exterior doors (outside the screened lanai) provide added security and durability. This one-of-a-kind Harbour Walk residence offers the perfect balance of elegance, comfort, and coastal sophistication—ideal for entertaining, relaxing, and enjoying Florida living at its finest!
Listing Information
Property Type: Residential, Single Family Residence
Status: Active
Bedrooms: 4
Bathrooms: 3
Lot Size: 0.24 Acres
Square Feet: 3,085 sq ft
Year Built: 2014
Garage: Yes
Stories: 1 Story
Construction: Block,Stucco
Construction Display: New Construction
Subdivision: Harourwalk At The Inlets
Foundation: Slab
County: Manatee
Construction Status: New Construction
School Information
Elementary: William H. Bashaw Elementary
Middle: Braden River Middle
High: Braden River High
Room Information
Main Floor
Laundry: 11x6
Great Room: 25x20
Dinette: 12x9
Bedroom 3: 12x11
Bedroom 2: 13x11
Primary Bedroom: 20x15
Office: 16x12
Dining Room: 15x11
Bonus Room: 22x18
Kitchen: 20x12
Bathrooms
Full Baths: 3
Additonal Room Information
Laundry: Laundry Room, Inside
Interior Features
Appliances: Washer, Gas Water Heater, Built-In Oven, Cooktop, Dishwasher, Disposal, Dryer, Microwave, Convection Oven, Bar Fridge
Flooring: Ceramic Tile,Wood
Doors/Windows: Blinds, Window Treatments
Fireplaces: Gas, Living Room, Electric, Outside
Accessibility: Accessible Bedroom, Accessible Central Living Area, Accessible Closets, Accessible Doors, Accessible Entrance
Additional Interior Features: Ceiling Fan(s), Eat-In Kitchen, Vaulted Ceiling(s), Walk-In Closet(s), Split Bedrooms, Built-in Features, Window Treatments, Cathedral Ceiling(s), High Ceilings, Coffered Ceiling(s), Main Level Primary, Crown Molding, Stone Counters, Open Floorplan, Wood Cabinets
Utilities
Water: Public
Sewer: Public Sewer
Other Utilities: Cable Connected,Electricity Connected,Fiber Optic Available,Natural Gas Connected,High Speed Internet Available,Municipal Utilities,Sewer Connected,Underground Utilities
Cooling: Central Air, Ceiling Fan(s)
Heating: Electric, Natural Gas, Central
Exterior / Lot Features
Attached Garage: Attached Garage
Garage Spaces: 2
Parking Description: driveway, Garage, Covered, Garage Door Opener, Garage Faces Side
Roof: Tile
Pool: Tile, Other, Heated, In Ground, Salt Water, Screen Enclosure, Gunite
Lot View: Canal,Garden,Pool,Water
Lot Dimensions: 81.6x
Additional Exterior/Lot Features: Rain Gutters, Storm/Security Shutters, Sprinkler/Irrigation, Lighting, Outdoor Kitchen, Screened, Covered, Rear Porch, Flat, Level, Landscaped, Private Road, Dead End, Near Golf Course
Out Buildings: Outdoor Kitchen
Waterfront Details
Water Front Features: Canal Access, Gulf Access
Community Features
Community Features: Fishing, Water Access, Gated, Waterfront, Tennis Court(s), Sidewalks
Security Features: Security System, Gated Community, Gated with Guard, Closed Circuit Camera(s), Security Gate, Security System Owned, Smoke Detector(s)
Association Amenities: Cable TV, Tennis Court(s), Gated
HOA Dues Include: Association Management, Security, Taxes, Recreation Facilities, Cable TV, Internet, Common Areas, Reserve Fund, Road Maintenance
Homeowners Association: Yes
HOA Dues: $2,266 / Semi-Annually
Driving Directions
From I-75 head west on SR 64 for 3.8 miles. Turn right onto America's Cup Blvd to enter the Inlet's community. Veer left at the stop sign to stay on America's Cup Blvd and follow it to the Guard/Gate and into Harbour Walk. Turn right on Regatta Way and then left onto Fore Drive.
Financial Considerations
Terms: Cash,Conventional,FHA,VA Loan
Tax/Property ID: 1079801509
Tax Amount: 27631.12
Tax Year: 2025
A broker reciprocity listing courtesy: SHOWTIME REALTY
Based on information provided by Stellar MLS as distributed by the MLS GRID. Information from the Internet Data Exchange is provided exclusively for consumers’ personal, non-commercial use, and such information may not be used for any purpose other than to identify prospective properties consumers may be interested in purchasing. This data is deemed reliable but is not guaranteed to be accurate by Edina Realty, Inc., or by the MLS. Edina Realty, Inc., is not a multiple listing service (MLS), nor does it offer MLS access.
Copyright 2026 Stellar MLS as distributed by the MLS GRID. All Rights Reserved.
Payment Calculator
Interest rate and annual percentage rate (APR) are based on current market conditions, are for informational purposes only, are subject to change without notice and may be subject to pricing add-ons related to property type, loan amount, loan-to-value, credit score and other variables. Estimated closing costs used in the APR calculation are assumed to be paid by the borrower at closing. If the closing costs are financed, the loan, APR and payment amounts will be higher. If the down payment is less than 20%, mortgage insurance may be required and could increase the monthly payment and APR. Contact us for details. Additional loan programs may be available. Accuracy is not guaranteed, and all products may not be available in all borrower's geographical areas and are based on their individual situation. This is not a credit decision or a commitment to lend.
Sales History & Tax Summary for 575 Fore Drive
Sales History
| Date | Price | |
|---|---|---|
| Currently not available. | ||
Tax Summary
| Tax Year | Estimated Market Value | Total Tax |
|---|---|---|
| Currently not available. | ||
Data powered by ATTOM Data Solutions. Copyright© 2026. Information deemed reliable but not guaranteed.
Schools
Schools nearby 575 Fore Drive
| Schools in attendance boundaries | Grades | Distance | Rating |
|---|---|---|---|
| Loading... | |||
| Schools nearby | Grades | Distance | Rating |
|---|---|---|---|
| Loading... | |||
Data powered by ATTOM Data Solutions. Copyright© 2026. Information deemed reliable but not guaranteed.
The schools shown represent both the assigned schools and schools by distance based on local school and district attendance boundaries. Attendance boundaries change based on various factors and proximity does not guarantee enrollment eligibility. Please consult your real estate agent and/or the school district to confirm the schools this property is zoned to attend. Information is deemed reliable but not guaranteed.
SchoolDigger ® Rating
The SchoolDigger rating system is a 1-5 scale with 5 as the highest rating. SchoolDigger ranks schools based on test scores supplied by each state's Department of Education. They calculate an average standard score by normalizing and averaging each school's test scores across all tests and grades.
Coming soon properties will soon be on the market, but are not yet available for showings.