$3,725,000
58 Main Street Windermere, FL 34786 - LAKE BUTLER WAUSEON BAY
For Sale MLS# O6370886
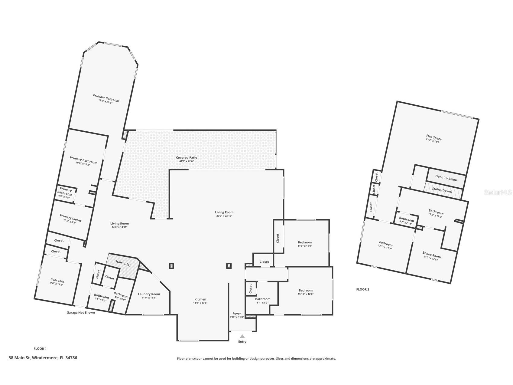
5 beds 4 baths 4,875 sq ft Single Family
Details for 58 Main Street
MLS# O6370886
Description for 58 Main Street, Windermere, FL, 34786 - LAKE BUTLER WAUSEON BAY
Nestled in the heart of Old Town Windermere, this exceptional lakefront residence offers direct access to the Butler Chain of Lakes from the tranquil waters of Wauseon Bay, prized for its reduced boat traffic and peaceful setting. Set on an oversized waterfront lot with western exposure, the home captures breathtaking lake views from nearly every room—delivering spectacular sunsets and a seamless indoor-outdoor lifestyle. Over 4800sq 5 bedrooms, 4 full bathrooms, Recently enhanced by renovations completed in 2020, the residence now features a newly added owner’s retreat with spa-inspired bathroom, thoughtfully designed to maximize comfort, privacy, and sweeping lake views. Additional updated interior in 2022 showcases refined craftsmanship and high-end finishes, including Provenza engineered hardwood flooring, vaulted tongue-and-groove ceilings, cedar beams, updated bathrooms, custom drapery, and plantation shutters. The large open kitchen is designed for both everyday living and entertaining, featuring 42-inch cabinetry, two oversized kitchen islands, a GE Profile refrigerator, and an Advantium double oven, all seamlessly connected to the main living areas. The great room opens effortlessly to the outdoor living spaces through fully retractable sliding doors, creating an ideal setting for gatherings of any size. Outdoor amenities rival those of a private resort, featuring a saltwater pool with pebble-tech finish and shallow lounging shelf, summer kitchen with natural gas Artisan grill, motorized patio screens, indoor/outdoor surround sound, and a luxury boat dock with electric cradle and Trex decking—perfect for enjoying the Butler Chain lifestyle year-round. Additional highlights include interior and exterior security systems, natural gas, city water, roof 2020, and a newer septic tank. Located just steps from downtown Windermere, residents enjoy a charming small-town atmosphere with farmers markets, cafés, local shops, and dining, while remaining only minutes from Restaurant Row and Orlando’s premier amenities. A rare opportunity to own a fully updated lakefront retreat in one of Central Florida’s most coveted communities.
Listing Information
Property Type: Residential, Single Family Residence
Status: Active
Bedrooms: 5
Bathrooms: 4
Lot Size: 0.58 Acres
Square Feet: 4,875 sq ft
Year Built: 1953
Garage: Yes
Stories: 2 Story
Construction: Block,Stucco
Subdivision: Lake Butler Park Pt Rep
Foundation: Slab
County: Orange
Room Information
Main Floor
Bathroom 1: 13x12
Primary Bathroom:
Family Room: 18x16
Living Room: 30x25
Kitchen: 19x15
Primary Bedroom: 15x24
Bedroom 3: 13x12
Bathroom 2: 13x12
Upper Floor
Den: 21x16
Bedroom 5: 14x12
Bathrooms
Full Baths: 4
Additonal Room Information
Laundry: Inside, Laundry Room
Interior Features
Appliances: Convection Oven, Built-In Oven, Gas Water Heater, Dishwasher, Disposal, Microwave, Refrigerator
Flooring: Engineered Hardwood,Tile,Wood
Doors/Windows: Blinds, Double Pane Windows, Window Treatments, Shutters
Fireplaces: Gas
Additional Interior Features: Split Bedrooms, Ceiling Fan(s), Vaulted Ceiling(s), High Ceilings, Built-in Features, Living/Dining Room, Window Treatments, Walk-In Closet(s), Kitchen/Family Room Combo, Stone Counters, Wood Cabinets, Open Floorplan, Main Level Primary
Utilities
Water: Public
Sewer: Septic Tank
Other Utilities: Cable Available,Electricity Connected,Natural Gas Connected,High Speed Internet Available,Municipal Utilities,Sewer Connected,Water Connected
Cooling: Ceiling Fan(s), Central Air
Heating: Electric
Exterior / Lot Features
Attached Garage: Attached Garage
Garage Spaces: 3
Parking Description: driveway, Garage Door Opener, Garage, Golf Cart Garage
Roof: Shingle
Pool: Salt Water, Gunite, In Ground
Lot View: Lake,Water
Fencing: fenced
Additional Exterior/Lot Features: Sprinkler/Irrigation, Rain Gutters, Outdoor Grill, Lighting, Rear Porch, City Lot, Oversized Lot
Waterfront Details
Standard Water Body: LAKE BUTLER WAUSEON BAY
Water Front Features: Lake Privileges, Lake Front, Lake
Driving Directions
Main street to North house on the right
Financial Considerations
Terms: Cash,Conventional
Tax/Property ID: 08-23-28-4348-00-080
Tax Amount: 21723.13
Tax Year: 2024
A broker reciprocity listing courtesy: LPT REALTY, LLC
Based on information provided by Stellar MLS as distributed by the MLS GRID. Information from the Internet Data Exchange is provided exclusively for consumers’ personal, non-commercial use, and such information may not be used for any purpose other than to identify prospective properties consumers may be interested in purchasing. This data is deemed reliable but is not guaranteed to be accurate by Edina Realty, Inc., or by the MLS. Edina Realty, Inc., is not a multiple listing service (MLS), nor does it offer MLS access.
Copyright 2026 Stellar MLS as distributed by the MLS GRID. All Rights Reserved.
Payment Calculator
Interest rate and annual percentage rate (APR) are based on current market conditions, are for informational purposes only, are subject to change without notice and may be subject to pricing add-ons related to property type, loan amount, loan-to-value, credit score and other variables. Estimated closing costs used in the APR calculation are assumed to be paid by the borrower at closing. If the closing costs are financed, the loan, APR and payment amounts will be higher. If the down payment is less than 20%, mortgage insurance may be required and could increase the monthly payment and APR. Contact us for details. Additional loan programs may be available. Accuracy is not guaranteed, and all products may not be available in all borrower's geographical areas and are based on their individual situation. This is not a credit decision or a commitment to lend.
Sales History & Tax Summary for 58 Main Street
Sales History
| Date | Price | |
|---|---|---|
| Currently not available. | ||
Tax Summary
| Tax Year | Estimated Market Value | Total Tax |
|---|---|---|
| Currently not available. | ||
Data powered by ATTOM Data Solutions. Copyright© 2026. Information deemed reliable but not guaranteed.
Schools
Schools nearby 58 Main Street
| Schools in attendance boundaries | Grades | Distance | Rating |
|---|---|---|---|
| Loading... | |||
| Schools nearby | Grades | Distance | Rating |
|---|---|---|---|
| Loading... | |||
Data powered by ATTOM Data Solutions. Copyright© 2026. Information deemed reliable but not guaranteed.
The schools shown represent both the assigned schools and schools by distance based on local school and district attendance boundaries. Attendance boundaries change based on various factors and proximity does not guarantee enrollment eligibility. Please consult your real estate agent and/or the school district to confirm the schools this property is zoned to attend. Information is deemed reliable but not guaranteed.
SchoolDigger ® Rating
The SchoolDigger rating system is a 1-5 scale with 5 as the highest rating. SchoolDigger ranks schools based on test scores supplied by each state's Department of Education. They calculate an average standard score by normalizing and averaging each school's test scores across all tests and grades.
Coming soon properties will soon be on the market, but are not yet available for showings.