5806 Liverpool Drive Tampa, FL 33615
For Sale MLS# TB8381610
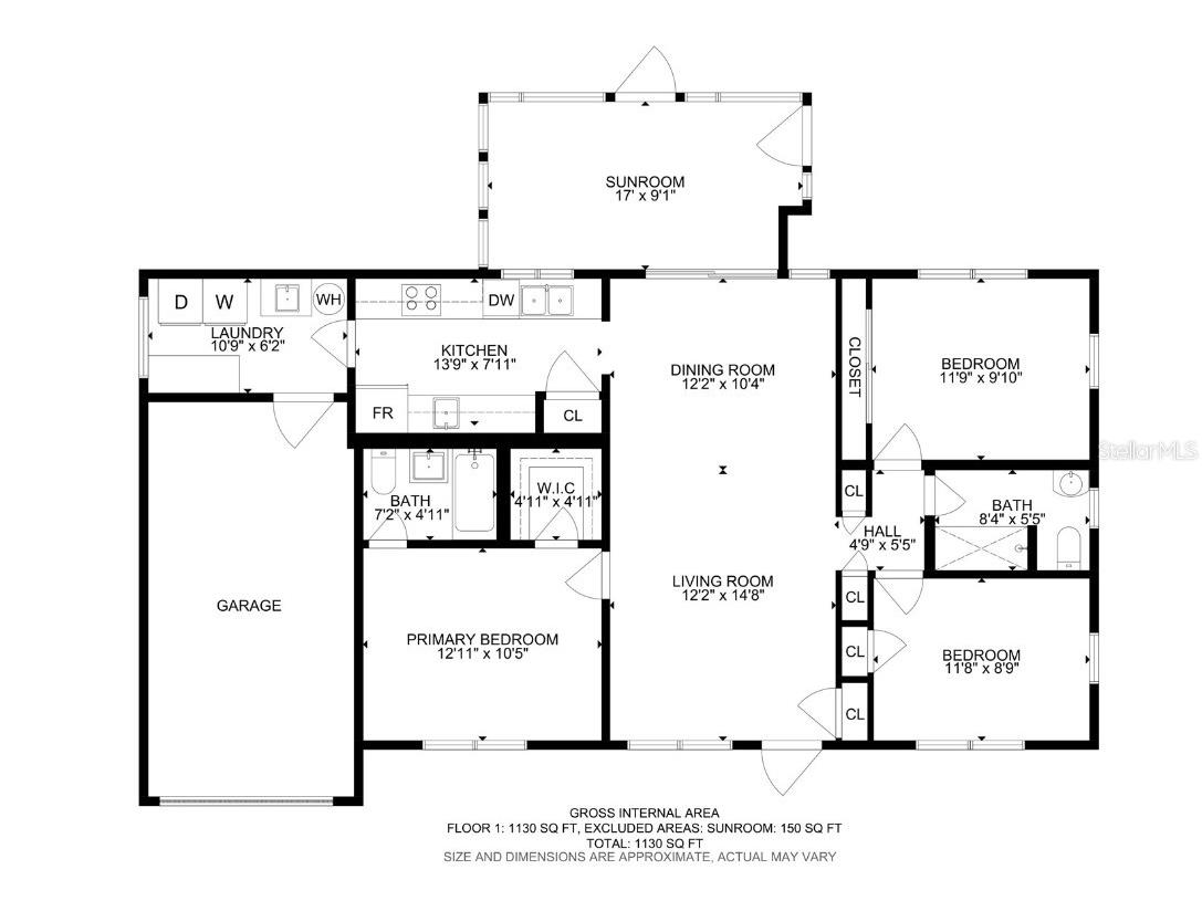
3 beds 2 baths 1,161 sq ft Single Family
Details for 5806 Liverpool Drive
MLS# TB8381610
Description for 5806 Liverpool Drive, Tampa, FL, 33615
Back on the market, buyer's financing fell through. Home appraised and passed FHA inspection. This is a gorgeous 3br/2ba/1gar waterfront canal home set in a quiet sidewalk neighborhood. You can fish right out of your backyard and live the Florida lifestyle. Canal leads to the bay/gulf so bring your boat! House is updated throughout including bathroom and kitchen with tile flooring, granite countertops, ceiling fans, lighting and fresh paint inside. Very secluded but conveniently located near Airport (5.5 miles), Publix groceries (0.6 miles), Rocky Point Golf Course (2.9 miles), our world famous beaches (29 miles), great schools, shopping and more. There are no HOA or CDD fees or lease minimum! Solid block home, great for a primary home or investment property. Incredible value at this price point. Schedule your showing soon!
Listing Information
Property Type: Residential, Single Family Residence
Status: Active
Bedrooms: 3
Bathrooms: 2
Lot Size: 0.17 Acres
Square Feet: 1,161 sq ft
Year Built: 1965
Garage: Yes
Stories: 1 Story
Construction: Block
Subdivision: Lake Crest Manor
Foundation: Slab
County: Hillsborough
Room Information
Main Floor
Florida Room: 10x20
Living Room:
Laundry:
Bathroom 2:
Bedroom 3: 12x12
Bedroom 2: 12x12
Primary Bathroom:
Primary Bedroom: 14x12
Kitchen:
Dining Room:
Bathrooms
Full Baths: 2
Additonal Room Information
Laundry: Washer Hookup, Laundry Room, Electric Dryer Hookup
Interior Features
Appliances: Washer, Dryer, Microwave, Range
Flooring: Ceramic Tile
Additional Interior Features: Solid Surface Counters, Main Level Primary, Living/Dining Room
Utilities
Water: Public
Sewer: Public Sewer
Other Utilities: Cable Connected,Electricity Connected,Municipal Utilities,Sewer Connected,Water Connected
Cooling: Central Air
Heating: Central
Exterior / Lot Features
Attached Garage: Attached Garage
Garage Spaces: 1
Roof: Shingle
Lot View: Canal,Water
Lot Dimensions: 75x100
Waterfront Details
Water Front Features: Canal Access
Community Features
Community Features: Sidewalks
Driving Directions
From W Hillsborough Rd, turn into Eliot Dr, go 0.5 miles then turn right to Memorial Hwy, then about 0.7 miles turn right to Liverpool Dr, and house will be 0.1 miles on the right.
Financial Considerations
Terms: Cash,Conventional,FHA,VA Loan
Tax/Property ID: U-34-28-17-0BU-000000-00034.0
Tax Amount: 6107.53
Tax Year: 2024
A broker reciprocity listing courtesy: LOKATION
Based on information provided by Stellar MLS as distributed by the MLS GRID. Information from the Internet Data Exchange is provided exclusively for consumers’ personal, non-commercial use, and such information may not be used for any purpose other than to identify prospective properties consumers may be interested in purchasing. This data is deemed reliable but is not guaranteed to be accurate by Edina Realty, Inc., or by the MLS. Edina Realty, Inc., is not a multiple listing service (MLS), nor does it offer MLS access.
Copyright 2025 Stellar MLS as distributed by the MLS GRID. All Rights Reserved.
Payment Calculator
Interest rate and annual percentage rate (APR) are based on current market conditions, are for informational purposes only, are subject to change without notice and may be subject to pricing add-ons related to property type, loan amount, loan-to-value, credit score and other variables. Estimated closing costs used in the APR calculation are assumed to be paid by the borrower at closing. If the closing costs are financed, the loan, APR and payment amounts will be higher. If the down payment is less than 20%, mortgage insurance may be required and could increase the monthly payment and APR. Contact us for details. Additional loan programs may be available. Accuracy is not guaranteed, and all products may not be available in all borrower's geographical areas and are based on their individual situation. This is not a credit decision or a commitment to lend.
Sales History & Tax Summary for 5806 Liverpool Drive
Sales History
| Date | Price | Change |
|---|---|---|
| Currently not available. | ||
Tax Summary
| Tax Year | Estimated Market Value | Total Tax |
|---|---|---|
| Currently not available. | ||
Data powered by ATTOM Data Solutions. Copyright© 2025. Information deemed reliable but not guaranteed.
Schools
Schools nearby 5806 Liverpool Drive
| Schools in attendance boundaries | Grades | Distance | Rating |
|---|---|---|---|
| Loading... | |||
| Schools nearby | Grades | Distance | Rating |
|---|---|---|---|
| Loading... | |||
Data powered by ATTOM Data Solutions. Copyright© 2025. Information deemed reliable but not guaranteed.
The schools shown represent both the assigned schools and schools by distance based on local school and district attendance boundaries. Attendance boundaries change based on various factors and proximity does not guarantee enrollment eligibility. Please consult your real estate agent and/or the school district to confirm the schools this property is zoned to attend. Information is deemed reliable but not guaranteed.
SchoolDigger ® Rating
The SchoolDigger rating system is a 1-5 scale with 5 as the highest rating. SchoolDigger ranks schools based on test scores supplied by each state's Department of Education. They calculate an average standard score by normalizing and averaging each school's test scores across all tests and grades.
Coming soon properties will soon be on the market, but are not yet available for showings.