$950,000
5825 Vincent Avenue S Minneapolis, MN 55410
For Sale MLS# 6809457
4 beds 4 baths 3,148 sq ft Single Family
Details for 5825 Vincent Avenue S
MLS# 6809457
Description for 5825 Vincent Avenue S, Minneapolis, MN, 55410
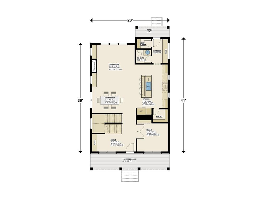
THE HOUSE IS TO BE BUILD. Opportunity for a new construction in vibrant urban location with easy access to parks, restaurants, shops & transit. The home features a contemporary design and modern amenities for today's lifestyle. Gourmet kitchen with large center island, quartz countertops, SS appliances & walk-in pantry opens into a great room with gas FP and dining room. Main level also offers separate office, mudroom, and powder room. Upper level boasts spa like primary suite with custom tiled shower, double vanities, freestanding soaking tub and large walk-in closet plus two bedrooms connected through J&J bathroom, loft & convenient laundry. Finished lower level offers large family room with optional wet bar, guest (4th) bedroom, and full bathroom. Highest quality finishes and materials. New 2 car garage wired for EV. Sod, concrete driveway and sidewalks. Custom builder will work with you to select finishes and options that meet your taste and budget. Centrally located to everything Twin Cities area has to offer!
Listing Information
Property Type: Residential, Single Family
Status: Active
Bedrooms: 4
Bathrooms: 4
Lot Size: 0.12 Acres
Square Feet: 3,148 sq ft
Year Built: 2026
Foundation: 1,116 sq ft
Garage: Yes
Stories: 2 Stories
Date Available: 6/15/2026
Construction Display: New Construction
Completion date: 2026-06-15T05:00:00Z
Subdivision: Harriet Manor
Builder: CITYLINE HOMES INC
County: Hennepin
Days On Market: 35
Construction Status: To Be Built/Floor Plan
School Information
District: 1 - Minneapolis
Room Information
Main Floor
Dining Room: 14.0x9.0
Kitchen: 15.6x11.5
Living Room: 14.10x15.0
Mud Room: 9.4x6.0
Office: 11.0x10.1
Upper Floor
Bedroom 1: 16.0x15.8
Bedroom 2: 13.8x11.0
Bedroom 3: 12.9x11.0
Laundry: 10x6
Loft: 12.2x6.8
Lower Floor
Bedroom 4: 12.4x11.2
Family Room: 25.8x21.10
Bathrooms
Full Baths: 3
1/2 Baths: 1
Additonal Room Information
Other: Foyer (16.4x7)
Family: Great Room
Dining: Eat In Kitchen,Informal Dining Room
Laundry: Washer Hookup, Upper Level, Electric Dryer Hookup, Sink
Bath Description: Basement,Main Floor 1/2 Bath,Private Primary,Upper Level Full Bath
Interior Features
Square Footage above: 2,269 sq ft
Square Footage below: 879 sq ft
Appliances: Energy Star Appliances, Gas Water Heater, Range, Refrigerator, Microwave, Air-To-Air Exchanger, Dishwasher, Disposal, Exhaust Fan/Hood
Basement: Full, Finished (Livable), Drain Tiled, Egress Windows, Poured Concrete, Daylight/Lookout Windows, Sump Pump
Fireplaces: 1, Gas Burning
Additional Interior Features: Ceiling Fan(s), Hardwood Floors, Kitchen Window, 3 BR on One Level, Washer/Dryer Hookup, Ethernet Wired, Kitchen Center Island, Tile Floors, 2nd Floor Laundry
Utilities
Water: City Water/Connected
Sewer: City Sewer/Connected
Cooling: Central
Heating: Forced Air, Natural Gas
Exterior / Lot Features
Garage Spaces: 2
Parking Description: Detached Garage, Garage Dimensions - 22x22, Garage Door Height - 7, Garage Door Width - 16, Garage Sq Ft - 484.0
Exterior: Engineered Wood
Roof: Pitched, Asphalt Shingles
Lot Dimensions: 40x127
Zoning: Residential-Single Family
Additional Exterior/Lot Features: Porch, Tree Coverage - Light, Public Transit (w/in 6 blks), Road Frontage - City
Driving Directions
From Hwy 62 (Crosstown) go North on Xerxes Ave S., East on 58th St., South on Vincent to home.
Financial Considerations
Tax/Property ID: 2002824420048
Tax Amount: 4858
Tax Year: 2025
HomeStead Description: Non-Homesteaded
A broker reciprocity listing courtesy: CityLine Realty
The data relating to real estate for sale on this web site comes in part from the Broker Reciprocity℠ Program of the Regional Multiple Listing Service of Minnesota, Inc. Real estate listings held by brokerage firms other than Edina Realty, Inc. are marked with the Broker Reciprocity℠ logo or the Broker Reciprocity℠ thumbnail and detailed information about them includes the name of the listing brokers. Edina Realty, Inc. is not a Multiple Listing Service (MLS), nor does it offer MLS access. This website is a service of Edina Realty, Inc., a broker Participant of the Regional Multiple Listing Service of Minnesota, Inc. IDX information is provided exclusively for consumers personal, non-commercial use and may not be used for any purpose other than to identify prospective properties consumers may be interested in purchasing. Open House information is subject to change without notice. Information deemed reliable but not guaranteed.
Copyright 2025 Regional Multiple Listing Service of Minnesota, Inc. All Rights Reserved.
Payment Calculator
Interest rate and annual percentage rate (APR) are based on current market conditions, are for informational purposes only, are subject to change without notice and may be subject to pricing add-ons related to property type, loan amount, loan-to-value, credit score and other variables. Estimated closing costs used in the APR calculation are assumed to be paid by the borrower at closing. If the closing costs are financed, the loan, APR and payment amounts will be higher. If the down payment is less than 20%, mortgage insurance may be required and could increase the monthly payment and APR. Contact us for details. Additional loan programs may be available. Accuracy is not guaranteed, and all products may not be available in all borrower's geographical areas and are based on their individual situation. This is not a credit decision or a commitment to lend.
Sales History & Tax Summary for 5825 Vincent Avenue S
Sales History
| Date | Price | Change |
|---|---|---|
| Currently not available. | ||
Tax Summary
| Tax Year | Estimated Market Value | Total Tax |
|---|---|---|
| Currently not available. | ||
Data powered by ATTOM Data Solutions. Copyright© 2025. Information deemed reliable but not guaranteed.
Schools
Schools nearby 5825 Vincent Avenue S
| Schools in attendance boundaries | Grades | Distance | Rating |
|---|---|---|---|
| Loading... | |||
| Schools nearby | Grades | Distance | Rating |
|---|---|---|---|
| Loading... | |||
Data powered by ATTOM Data Solutions. Copyright© 2025. Information deemed reliable but not guaranteed.
The schools shown represent both the assigned schools and schools by distance based on local school and district attendance boundaries. Attendance boundaries change based on various factors and proximity does not guarantee enrollment eligibility. Please consult your real estate agent and/or the school district to confirm the schools this property is zoned to attend. Information is deemed reliable but not guaranteed.
SchoolDigger ® Rating
The SchoolDigger rating system is a 1-5 scale with 5 as the highest rating. SchoolDigger ranks schools based on test scores supplied by each state's Department of Education. They calculate an average standard score by normalizing and averaging each school's test scores across all tests and grades.
Coming soon properties will soon be on the market, but are not yet available for showings.