584 Meandering Way Polk City, FL 33868
For Sale MLS# L4954218
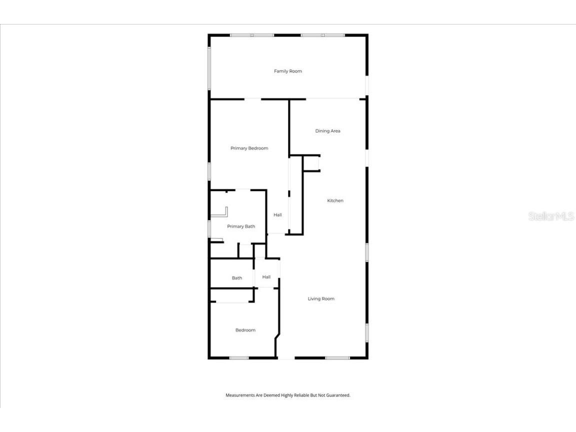
2 beds 2 baths 1,945 sq ft Single Family
Details for 584 Meandering Way
MLS# L4954218
Description for 584 Meandering Way, Polk City, FL, 33868
This home is a 2 bed/2 bath in the sought after community of Mt. Olive Shores North. A 55+ RV Community. This home was built in 2014 and has everything you would need to spend your winters or all year round. An open floor plan for the kitchen and living area is perfect for entertaining. The primary bedroom is located off of the living area with access to the extended living area in back of the house. This area is another great spot for entertaining with a beautiful view of the backyard. The primary bathroom includes a walk-in tub as well as a shower for convenience. The Rv port is approximately 55x16. In addition to the garage is a carport for coverage of a second vehicle. The home was repainted in 2022 and has a beautiful front porch for relaxing in the evenings. The floors in the RV Port and the garage have been upgraded to include an epoxy coating for durability. The garage has its own mini-split for comfort during the summer months. The washer and dryer are included in the purchase and most TV's as well. Call for an appointment to see this beautiful home.
Listing Information
Property Type: Residential, Single Family Residence
Status: Active
Bedrooms: 2
Bathrooms: 2
Lot Size: 0.21 Acres
Square Feet: 1,945 sq ft
Year Built: 2014
Garage: Yes
Stories: 1 Story
Construction: Block
Subdivision: Mt Olive Shores North Add 04
Foundation: Slab
County: Polk
Room Information
Main Floor
Primary Bedroom:
Living Room:
Kitchen:
Bathrooms
Full Baths: 2
Additonal Room Information
Laundry: Laundry Room
Interior Features
Appliances: Dryer, Microwave, Range, Washer, Cooktop, Dishwasher, Disposal, Electric Water Heater
Flooring: Tile
Additional Interior Features: Ceiling Fan(s), High Ceilings, Main Level Primary, Open Floorplan
Utilities
Water: Public
Sewer: Public Sewer
Other Utilities: Electricity Connected,Sewer Connected,Underground Utilities,Water Connected
Cooling: Central Air, Ceiling Fan(s)
Heating: Central
Exterior / Lot Features
Attached Garage: Attached Garage
Garage Spaces: 1
Roof: Shingle
Pool: Community, Association
Additional Exterior/Lot Features: Sprinkler/Irrigation, Lighting, Buyer Approval Required
Community Features
Community Features: Fishing, Fitness, Golf Carts OK, Water Access, Community Mailbox, Dock, Lake, Pool, Clubhouse, Handicap Access, Waterfront, Boat Facilities, Dog Park, Gated
Security Features: Gated Community, Gated with Guard
Association Amenities: Pickleball, Security, Fitness Center, Gated, Spa/Hot Tub, Clubhouse, Pool, Recreation Facilities
HOA Dues Include: Security, Maintenance Grounds
Homeowners Association: Yes
HOA Dues: $1,850 / Annually
Driving Directions
I-4 to exit 44, go North on Hwy 559. At flashing red light turn left (West) on Broadway Blvd. SE. In approximately 2 miles turn left on Commonwealth Ave. (State Rd. 33). Follow SR 33 for a mile to find Mt. Olive Shores North on the left. Enter the community on Lake Margaret Blvd.
Financial Considerations
Tax/Property ID: 25-27-05-298332-000850
Tax Amount: 6216.78
Tax Year: 2024
A broker reciprocity listing courtesy: MOSN REALTY
Based on information provided by Stellar MLS as distributed by the MLS GRID. Information from the Internet Data Exchange is provided exclusively for consumers’ personal, non-commercial use, and such information may not be used for any purpose other than to identify prospective properties consumers may be interested in purchasing. This data is deemed reliable but is not guaranteed to be accurate by Edina Realty, Inc., or by the MLS. Edina Realty, Inc., is not a multiple listing service (MLS), nor does it offer MLS access.
Copyright 2025 Stellar MLS as distributed by the MLS GRID. All Rights Reserved.
Payment Calculator
Interest rate and annual percentage rate (APR) are based on current market conditions, are for informational purposes only, are subject to change without notice and may be subject to pricing add-ons related to property type, loan amount, loan-to-value, credit score and other variables. Estimated closing costs used in the APR calculation are assumed to be paid by the borrower at closing. If the closing costs are financed, the loan, APR and payment amounts will be higher. If the down payment is less than 20%, mortgage insurance may be required and could increase the monthly payment and APR. Contact us for details. Additional loan programs may be available. Accuracy is not guaranteed, and all products may not be available in all borrower's geographical areas and are based on their individual situation. This is not a credit decision or a commitment to lend.
Sales History & Tax Summary for 584 Meandering Way
Sales History
| Date | Price | Change |
|---|---|---|
| Currently not available. | ||
Tax Summary
| Tax Year | Estimated Market Value | Total Tax |
|---|---|---|
| Currently not available. | ||
Data powered by ATTOM Data Solutions. Copyright© 2025. Information deemed reliable but not guaranteed.
Schools
Schools nearby 584 Meandering Way
| Schools in attendance boundaries | Grades | Distance | Rating |
|---|---|---|---|
| Loading... | |||
| Schools nearby | Grades | Distance | Rating |
|---|---|---|---|
| Loading... | |||
Data powered by ATTOM Data Solutions. Copyright© 2025. Information deemed reliable but not guaranteed.
The schools shown represent both the assigned schools and schools by distance based on local school and district attendance boundaries. Attendance boundaries change based on various factors and proximity does not guarantee enrollment eligibility. Please consult your real estate agent and/or the school district to confirm the schools this property is zoned to attend. Information is deemed reliable but not guaranteed.
SchoolDigger ® Rating
The SchoolDigger rating system is a 1-5 scale with 5 as the highest rating. SchoolDigger ranks schools based on test scores supplied by each state's Department of Education. They calculate an average standard score by normalizing and averaging each school's test scores across all tests and grades.
Coming soon properties will soon be on the market, but are not yet available for showings.