5888 NW 21st Street Ocala, FL 34482
For Sale MLS# OM718269
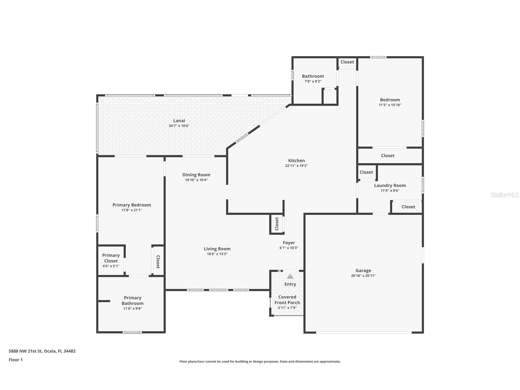
2 beds 2 baths 1,697 sq ft Single Family
Details for 5888 NW 21st Street
MLS# OM718269
Description for 5888 NW 21st Street, Ocala, FL, 34482
Located in the desirable Ocala Palms, this beautifully maintained 2-bedroom, 2-bath concrete block home offers comfort, privacy, and easy Florida living within a premier 55+ golf course community. The home has been exceptionally well cared for and is impressively clean and tidy, making it truly move-in ready. A functional floor plan provides comfortable living and entertaining space, while both bedrooms are generously sized. One of the standout features is the private backyard, which backs up to a single private residence—offering added privacy and a peaceful setting rarely found in the community. The low-maintenance yard allows you to enjoy more time relaxing and less time on upkeep. Ocala Palms is known for its resort-style amenities, including golf, clubhouse activities, fitness options, and a vibrant social calendar—perfect for an active yet relaxed lifestyle. This home is ideal for those seeking privacy, cleanliness, and easy living in one of Ocala’s most popular retirement communities.
Listing Information
Property Type: Residential, Single Family Residence
Status: Active
Bedrooms: 2
Bathrooms: 2
Lot Size: 0.20 Acres
Square Feet: 1,697 sq ft
Year Built: 2003
Garage: Yes
Stories: 1 Story
Construction: Block,Concrete,Stucco
Subdivision: Ocala Palms
Foundation: Slab
County: Marion
Room Information
Main Floor
Living Room: 17x17
Kitchen: 15x12
Primary Bedroom: 15x15
Bathrooms
Full Baths: 2
Additonal Room Information
Laundry: Inside
Interior Features
Appliances: Washer, Microwave, Range, Refrigerator, Dishwasher, Dryer
Flooring: Carpet,Tile
Doors/Windows: Window Treatments
Additional Interior Features: Ceiling Fan(s), Tray Ceiling(s), Split Bedrooms, Window Treatments
Utilities
Water: Public
Sewer: Public Sewer
Other Utilities: Electricity Connected,Municipal Utilities
Cooling: Ceiling Fan(s), Central Air
Heating: Electric
Exterior / Lot Features
Attached Garage: Attached Garage
Garage Spaces: 2
Roof: Shingle
Pool: Community
Lot Dimensions: 84x105
Additional Exterior/Lot Features: Private Yard
Community Features
Community Features: Sidewalks, Pool, Tennis Court(s), Golf, Gated, Racquetball, Restaurant, Fitness, Golf Carts OK
Security Features: Gated Community, Gated with Guard
HOA Dues Include: Cable TV, Trash, Security, Recreation Facilities
Homeowners Association: Yes
HOA Dues: $295 / Monthly
Driving Directions
Heading North on HWY 441, turn left onto NW Tenth St (HWY 27), turn left onto NW 49th Ave, turn right onto NW 25th Loop, turn right onto NW 21st St, home is on your left. 5088 NW 21st Street Ocala, FL 34482
Financial Considerations
Terms: Cash,Conventional,FHA,USDA Loan,VA Loan
Tax/Property ID: 2151-907-021
Tax Amount: 4326.77
Tax Year: 2025
A broker reciprocity listing courtesy: CRYSTAL SNOOK REAL ESTATE
Based on information provided by Stellar MLS as distributed by the MLS GRID. Information from the Internet Data Exchange is provided exclusively for consumers’ personal, non-commercial use, and such information may not be used for any purpose other than to identify prospective properties consumers may be interested in purchasing. This data is deemed reliable but is not guaranteed to be accurate by Edina Realty, Inc., or by the MLS. Edina Realty, Inc., is not a multiple listing service (MLS), nor does it offer MLS access.
Copyright 2026 Stellar MLS as distributed by the MLS GRID. All Rights Reserved.
Payment Calculator
Interest rate and annual percentage rate (APR) are based on current market conditions, are for informational purposes only, are subject to change without notice and may be subject to pricing add-ons related to property type, loan amount, loan-to-value, credit score and other variables. Estimated closing costs used in the APR calculation are assumed to be paid by the borrower at closing. If the closing costs are financed, the loan, APR and payment amounts will be higher. If the down payment is less than 20%, mortgage insurance may be required and could increase the monthly payment and APR. Contact us for details. Additional loan programs may be available. Accuracy is not guaranteed, and all products may not be available in all borrower's geographical areas and are based on their individual situation. This is not a credit decision or a commitment to lend.
Sales History & Tax Summary for 5888 NW 21st Street
Sales History
| Date | Price | |
|---|---|---|
| Currently not available. | ||
Tax Summary
| Tax Year | Estimated Market Value | Total Tax |
|---|---|---|
| Currently not available. | ||
Data powered by ATTOM Data Solutions. Copyright© 2026. Information deemed reliable but not guaranteed.
Schools
Schools nearby 5888 NW 21st Street
| Schools in attendance boundaries | Grades | Distance | Rating |
|---|---|---|---|
| Loading... | |||
| Schools nearby | Grades | Distance | Rating |
|---|---|---|---|
| Loading... | |||
Data powered by ATTOM Data Solutions. Copyright© 2026. Information deemed reliable but not guaranteed.
The schools shown represent both the assigned schools and schools by distance based on local school and district attendance boundaries. Attendance boundaries change based on various factors and proximity does not guarantee enrollment eligibility. Please consult your real estate agent and/or the school district to confirm the schools this property is zoned to attend. Information is deemed reliable but not guaranteed.
SchoolDigger ® Rating
The SchoolDigger rating system is a 1-5 scale with 5 as the highest rating. SchoolDigger ranks schools based on test scores supplied by each state's Department of Education. They calculate an average standard score by normalizing and averaging each school's test scores across all tests and grades.
Coming soon properties will soon be on the market, but are not yet available for showings.