$425,000
5892 Lincoln Rd Venice, FL 34293
For Sale MLS# A4655351
3 beds 2 baths 1,707 sq ft Single Family
Details for 5892 Lincoln Rd
MLS# A4655351
Description for 5892 Lincoln Rd, Venice, FL, 34293
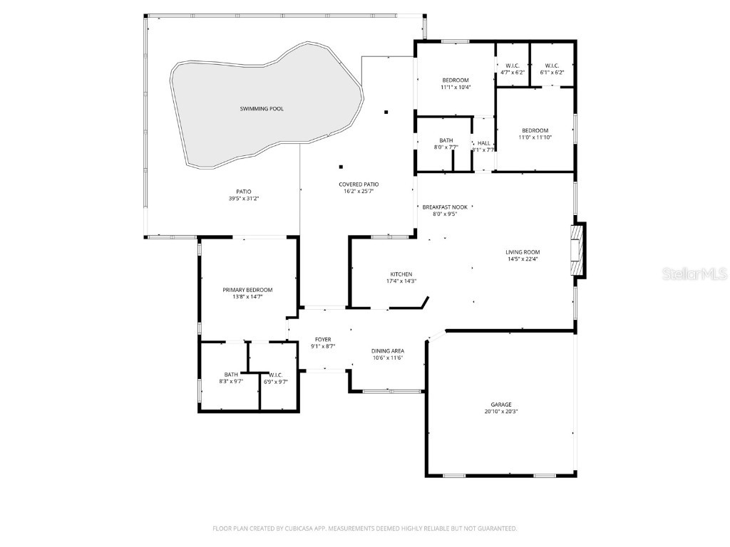
Gulf View Estates: Updated Florida Retreat with Pool & Lake View! Low HOA! Quick Drive to the beach! Florida Living at its best! Charming, meticulously maintained 3-bed, 2-bath split-plan home on an elevated corner lot in the highly sought-after, pet-friendly Gulf View Estates. This inviting residence boasts soaring cathedral ceilings, a dramatic stone fireplace, and a bright kitchen featuring quartz countertops and double pantries, all overlooking the private, large, screened freeform pool with a serene stone waterfall. Enjoy these views from your oversized lanai or enjoy the walks by the lake in front of this beauty! Exceptional Recent Upgrades: • New Roof (2023) • New Septic (2023) • New Water Heater (2024) • New Pool Pump (2023) • Newer AC (2019) • New Luxury Vinyl Flooring (Primary & Guest) • Recent Insulation for energy efficiency Located just minutes from Manasota Key Beach, this peaceful Florida retreat offers an incredible value with only $320/year HOA and NO CDD. Ample storage, walk-in closets, and a screened, large 2-car garage complete this move-in ready home. Don't miss this beautifully appointed home —schedule your showing today! (5892 Lincoln Rd) Additionally, there is new luxury vinyl flooring in the primary bedroom and one guest bedroom. The freeform pool is screened in and private with a convenient outdoor shower! The large, two-car garage is also screened in. Come see this fabulous find in the lovely community of Gulf View Estates by appointment only!
Listing Information
Property Type: Residential, Single Family Residence
Status: Active
Bedrooms: 3
Bathrooms: 2
Lot Size: 0.23 Acres
Square Feet: 1,707 sq ft
Year Built: 1982
Garage: Yes
Stories: 1 Story
Construction: Block,Concrete,Stucco
Construction Display: New Construction
Subdivision: Gulf View Estates Unit 1
Foundation: Slab
County: Sarasota
Construction Status: New Construction
School Information
Elementary: Taylor Ranch Elementary
Middle: Venice Area Middle
High: Venice Senior High
Room Information
Main Floor
Primary Bedroom: 18x13
Porch: 24x21
Living Room: 22x21
Kitchen: 10x8
Bathrooms
Full Baths: 2
Additonal Room Information
Laundry: In Garage
Interior Features
Appliances: Range, Refrigerator, Microwave, Cooktop, Dishwasher, Dryer, Washer, Electric Water Heater
Flooring: Carpet,Ceramic Tile,Engineered Hardwood,Epoxy,Luxury Vinyl
Doors/Windows: Blinds, Window Treatments, Drapes, Shutters, Rods
Fireplaces: Living Room, Wood Burning
Additional Interior Features: Kitchen/Family Room Combo, Separate/Formal Living Room, Solid Surface Counters, Stone Counters, Wood Cabinets, Separate/Formal Dining Room, Attic, Built-in Features, Cathedral Ceiling(s), Split Bedrooms, Window Treatments, Ceiling Fan(s)
Utilities
Water: Public
Sewer: Septic Tank
Other Utilities: Cable Connected,Electricity Connected,High Speed Internet Available,Municipal Utilities,Phone Available,Underground Utilities,Water Connected
Cooling: Ceiling Fan(s), Central Air, Humidity Control
Heating: Central, Electric
Exterior / Lot Features
Attached Garage: Attached Garage
Garage Spaces: 2
Parking Description: Oversized, Workshop in Garage, driveway, Garage, Garage Door Opener
Roof: Shingle
Pool: Heated, In Ground, Outside Bath Access, Pool Sweep, Screen Enclosure, Gunite
Lot View: Park/Greenbelt,Pond,Pool,Trees/Woods,Water
Additional Exterior/Lot Features: Lighting, Garden, Courtyard, Outdoor Grill, Outdoor Shower, Sprinkler/Irrigation, Rear Porch, Screened, Covered, Patio, Porch, Irregular Lot, Landscaped, Cleared, Dead End, Oversized Lot, Buyer Approval Required, Outside City Limits
Waterfront Details
Water Front Features: Pond
Community Features
Community Features: Community Mailbox, Park, Dog Park, Sidewalks
Association Amenities: Park
HOA Dues Include: Association Management
Homeowners Association: Yes
HOA Dues: $320 / Annually
Driving Directions
I-75 to 776 south to Adams Road, right turn onto Washington, left onto Lincoln.
Financial Considerations
Terms: Cash,Conventional,FHA,VA Loan
Tax/Property ID: 0471070021
Tax Amount: 2519.16
Tax Year: 2024
A broker reciprocity listing courtesy: RE/MAX PALM
Based on information provided by Stellar MLS as distributed by the MLS GRID. Information from the Internet Data Exchange is provided exclusively for consumers’ personal, non-commercial use, and such information may not be used for any purpose other than to identify prospective properties consumers may be interested in purchasing. This data is deemed reliable but is not guaranteed to be accurate by Edina Realty, Inc., or by the MLS. Edina Realty, Inc., is not a multiple listing service (MLS), nor does it offer MLS access.
Copyright 2026 Stellar MLS as distributed by the MLS GRID. All Rights Reserved.
Payment Calculator
Interest rate and annual percentage rate (APR) are based on current market conditions, are for informational purposes only, are subject to change without notice and may be subject to pricing add-ons related to property type, loan amount, loan-to-value, credit score and other variables. Estimated closing costs used in the APR calculation are assumed to be paid by the borrower at closing. If the closing costs are financed, the loan, APR and payment amounts will be higher. If the down payment is less than 20%, mortgage insurance may be required and could increase the monthly payment and APR. Contact us for details. Additional loan programs may be available. Accuracy is not guaranteed, and all products may not be available in all borrower's geographical areas and are based on their individual situation. This is not a credit decision or a commitment to lend.
Sales History & Tax Summary for 5892 Lincoln Rd
Sales History
| Date | Price | |
|---|---|---|
| Currently not available. | ||
Tax Summary
| Tax Year | Estimated Market Value | Total Tax |
|---|---|---|
| Currently not available. | ||
Data powered by ATTOM Data Solutions. Copyright© 2026. Information deemed reliable but not guaranteed.
Schools
Schools nearby 5892 Lincoln Rd
| Schools in attendance boundaries | Grades | Distance | Rating |
|---|---|---|---|
| Loading... | |||
| Schools nearby | Grades | Distance | Rating |
|---|---|---|---|
| Loading... | |||
Data powered by ATTOM Data Solutions. Copyright© 2026. Information deemed reliable but not guaranteed.
The schools shown represent both the assigned schools and schools by distance based on local school and district attendance boundaries. Attendance boundaries change based on various factors and proximity does not guarantee enrollment eligibility. Please consult your real estate agent and/or the school district to confirm the schools this property is zoned to attend. Information is deemed reliable but not guaranteed.
SchoolDigger ® Rating
The SchoolDigger rating system is a 1-5 scale with 5 as the highest rating. SchoolDigger ranks schools based on test scores supplied by each state's Department of Education. They calculate an average standard score by normalizing and averaging each school's test scores across all tests and grades.
Coming soon properties will soon be on the market, but are not yet available for showings.