5904 War Admiral Drive Wesley Chapel, FL 33544
For Sale MLS# TB8436592
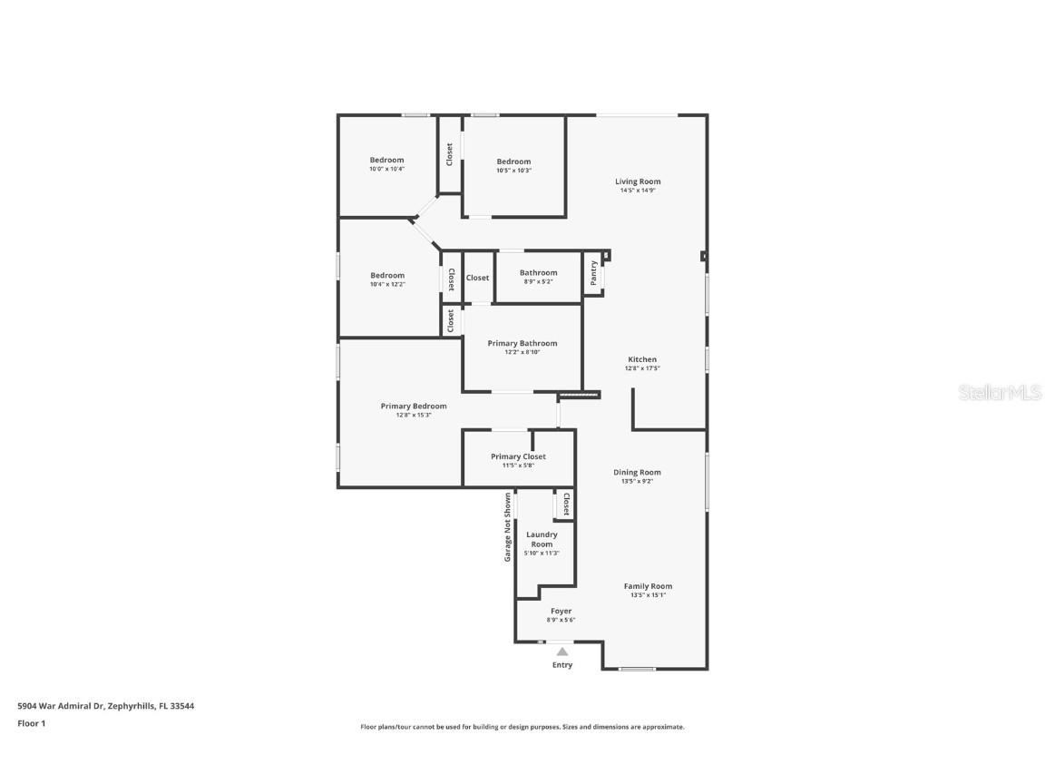
4 beds 2 baths 1,956 sq ft Single Family
Details for 5904 War Admiral Drive
MLS# TB8436592
Description for 5904 War Admiral Drive, Wesley Chapel, FL, 33544
One or more photo(s) has been virtually staged. Beautifully Updated Home in Lexington Oaks — Golf Course Community Living at Its Best! Welcome to 5904 War Admiral Dr., a beautifully updated 4-bedroom, 2-bath home perfectly situated on a peaceful conservation lot in the sought-after Lexington Oaks Golf and Country Club community. Step inside to discover a spacious, well-designed layout featuring formal living and dining areas ideal for entertaining, plus a bright, open family room overlooking the private, fenced backyard. The renovated kitchen impresses with stone countertops, updated cabinetry, and a cozy dinette that flows seamlessly into the family room — perfect for everyday living and gatherings alike. The primary suite offers a serene retreat with a huge walk-in closet and a beautifully upgraded en-suite bath showcasing a glass-enclosed shower, dual vanities, and a stunning sliding barn door that adds a touch of rustic elegance. Three additional bedrooms are thoughtfully positioned on the opposite side of the home, providing comfort and privacy for family or guests. Enjoy quiet mornings or evening sunsets from your fenced backyard with tranquil conservation views and no rear neighbors. Residents of Lexington Oaks enjoy resort-style amenities including a community pool, tennis courts, playgrounds, clubhouse, fitness center, and golf course, all with a low annual HOA of just $88. Conveniently located near I-75, top-rated Wesley Chapel schools, premium shopping, restaurants, and medical centers, this home offers both comfort and convenience. Don’t miss your chance to own an updated home in one of Wesley Chapel’s most desirable communities — a perfect blend of value, lifestyle, and location!
Listing Information
Property Type: Residential, Single Family Residence
Status: Active
Bedrooms: 4
Bathrooms: 2
Lot Size: 0.13 Acres
Square Feet: 1,956 sq ft
Year Built: 2002
Garage: Yes
Stories: 1 Story
Construction: Block
Subdivision: Lexington Oaks Villages 15 & 16
Foundation: Slab
County: Pasco
School Information
Elementary: Veterans Elementary School
Middle: Cypress Creek Middle School
High: Cypress Creek High-Po
Room Information
Main Floor
Primary Bedroom: 13x14
Living Room: 15x13
Kitchen: 10x12
Bathrooms
Full Baths: 2
Additonal Room Information
Laundry: Laundry Room
Interior Features
Appliances: Dishwasher, Disposal, Range, Electric Water Heater
Flooring: Luxury Vinyl
Doors/Windows: Blinds
Additional Interior Features: Eat-In Kitchen, Ceiling Fan(s), Split Bedrooms, Walk-In Closet(s), High Ceilings, Living/Dining Room, Kitchen/Family Room Combo, Open Floorplan
Utilities
Water: Public
Sewer: Public Sewer
Other Utilities: Cable Available,Electricity Connected,Municipal Utilities,Underground Utilities
Cooling: Ceiling Fan(s), Central Air
Heating: Electric, Central
Exterior / Lot Features
Attached Garage: Attached Garage
Garage Spaces: 2
Parking Description: Garage, Garage Door Opener, Off Street
Roof: Shingle
Pool: Community
Fencing: fenced
Additional Exterior/Lot Features: Sprinkler/Irrigation, Deck, Patio, Porch, Landscaped, Dead End, Conservation Area, Outside City Limits
Community Features
Community Features: Fitness, Recreation Area, Park, Street Lights, Golf, Pool, Tennis Court(s), Playground
Security Features: Smoke Detector(s)
Association Amenities: Park, Recreation Facilities, Fitness Center, Playground, Tennis Court(s)
Homeowners Association: Yes
HOA Dues: $88 / Annually
Driving Directions
Driving Directions from I-75 & State Road 54 (SR-54): From I-75, take Exit 279 for FL-54/Wesley Chapel Blvd. Head west on FL-54/Wesley Chapel Blvd for about 2.2 miles. Turn right onto Lexington Oaks Blvd (you’ll see the entrance to the Lexington Oaks Golf Community). Continue straight on Lexington Oaks Blvd for approximately 1 mile. Turn right onto War Admiral Dr. Follow War Admiral Dr. for about 0.3 miles — 5904 War Admiral Dr. will be on your right-hand side.
Financial Considerations
Terms: Cash,Conventional,FHA,VA Loan
Tax/Property ID: 10-26-19-0090-019A0-0180
Tax Amount: 4895
Tax Year: 2024
A broker reciprocity listing courtesy: LPT REALTY, LLC
Based on information provided by Stellar MLS as distributed by the MLS GRID. Information from the Internet Data Exchange is provided exclusively for consumers’ personal, non-commercial use, and such information may not be used for any purpose other than to identify prospective properties consumers may be interested in purchasing. This data is deemed reliable but is not guaranteed to be accurate by Edina Realty, Inc., or by the MLS. Edina Realty, Inc., is not a multiple listing service (MLS), nor does it offer MLS access.
Copyright 2025 Stellar MLS as distributed by the MLS GRID. All Rights Reserved.
Payment Calculator
Interest rate and annual percentage rate (APR) are based on current market conditions, are for informational purposes only, are subject to change without notice and may be subject to pricing add-ons related to property type, loan amount, loan-to-value, credit score and other variables. Estimated closing costs used in the APR calculation are assumed to be paid by the borrower at closing. If the closing costs are financed, the loan, APR and payment amounts will be higher. If the down payment is less than 20%, mortgage insurance may be required and could increase the monthly payment and APR. Contact us for details. Additional loan programs may be available. Accuracy is not guaranteed, and all products may not be available in all borrower's geographical areas and are based on their individual situation. This is not a credit decision or a commitment to lend.
Sales History & Tax Summary for 5904 War Admiral Drive
Sales History
| Date | Price | Change |
|---|---|---|
| Currently not available. | ||
Tax Summary
| Tax Year | Estimated Market Value | Total Tax |
|---|---|---|
| Currently not available. | ||
Data powered by ATTOM Data Solutions. Copyright© 2025. Information deemed reliable but not guaranteed.
Schools
Schools nearby 5904 War Admiral Drive
| Schools in attendance boundaries | Grades | Distance | Rating |
|---|---|---|---|
| Loading... | |||
| Schools nearby | Grades | Distance | Rating |
|---|---|---|---|
| Loading... | |||
Data powered by ATTOM Data Solutions. Copyright© 2025. Information deemed reliable but not guaranteed.
The schools shown represent both the assigned schools and schools by distance based on local school and district attendance boundaries. Attendance boundaries change based on various factors and proximity does not guarantee enrollment eligibility. Please consult your real estate agent and/or the school district to confirm the schools this property is zoned to attend. Information is deemed reliable but not guaranteed.
SchoolDigger ® Rating
The SchoolDigger rating system is a 1-5 scale with 5 as the highest rating. SchoolDigger ranks schools based on test scores supplied by each state's Department of Education. They calculate an average standard score by normalizing and averaging each school's test scores across all tests and grades.
Coming soon properties will soon be on the market, but are not yet available for showings.