$380,900
5961 Amberly Drive Bradenton, FL 34208
For Sale MLS# A4673319
2 beds 2 baths 1,627 sq ft Single Family
Details for 5961 Amberly Drive
MLS# A4673319
Description for 5961 Amberly Drive, Bradenton, FL, 34208
Tucked inside the quiet, gated enclave of The Amberly Community, this MI Homes Sapphire-series villa is truly move-in ready-clean, meticulously cared for, and offering the kind of low-maintenance living you come to Florida for. The 2-bedroom + den layout flows effortlessly with tall ceilings, an open kitchen with solid surface counters and walk in pantry, and a welcoming living room made for both relaxing nights and easy entertaining. The primary suite features dual sinks, a spacious walk-in closet, and the privacy of a split floor plan, giving the home a calm, refined feel from the moment you walk in. Step onto the partially covered lanai and enjoy a quiet backdrop with no rear neighbors-just peaceful mornings and shaded evenings. Amberly is a boutique, gated community known for walkable streets, friendly neighbors, reclaimed water irrigation, and a sparkling community pool perfect for unwinding after a long day. Within one mile, you'll find everyday essentials like Home Depot, Publix, Winn-Dixie, Three Natives, Dog Perfect, salons, fitness studios, and local favorites such as First Watch and Gecko's Grill & Pub. Drive 10 minutes and you're in the heart of Lakewood Ranch, Waterside Place, or the University Town Center Mall (UTC)-with endless shopping, rooftop dining, Whole Foods, Nathan Benderson Park, and walkable paths. Head west and the Gulf beaches, Anna Maria Island, and top seafood spots are a short trip away. A clean, move-in ready home in a community where homes rarely hit the market. Call today to schedule your private showing-Amberly opportunities don't last.
Listing Information
Property Type: Residential, Villa
Status: Active
Bedrooms: 2
Bathrooms: 2
Lot Size: 0.10 Acres
Square Feet: 1,627 sq ft
Year Built: 2019
Garage: Yes
Stories: 1 Story
Construction: Stucco
Construction Display: New Construction
Subdivision: Amberly Phase 1
Builder: MI HOMES
Foundation: Slab
County: Manatee
Construction Status: New Construction
School Information
Elementary: William H. Bashaw Elementary
Middle: Carlos E. Haile Middle
High: Braden River High
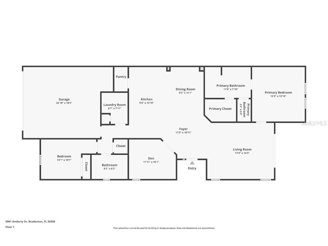
Room Information
Main Floor
Bedroom 2: 10x10
Porch: 8x15
Utility Room: 7x8
Kitchen: 10x18
Living Room: 18x14
Dining Room: 10x14
Office: 12x10
Primary Bedroom: 14x14
Bathrooms
Full Baths: 2
Additonal Room Information
Laundry: Laundry Room
Interior Features
Appliances: Washer, Dishwasher, Disposal, Dryer, Microwave, Range, Refrigerator
Flooring: Tile
Additional Interior Features: Walk-In Closet(s), Ceiling Fan(s), Separate/Formal Living Room
Utilities
Water: Public
Sewer: Public Sewer
Other Utilities: Municipal Utilities
Cooling: Ceiling Fan(s), Central Air
Heating: Electric
Exterior / Lot Features
Attached Garage: Attached Garage
Garage Spaces: 2
Roof: Concrete, Tile
Pool: Community
Lot View: Pond,Trees/Woods,Water
Community Features
Community Features: Sidewalks, Pool, Playground
HOA Dues Include: Taxes, Recreation Facilities, Maintenance Structure, Pool(s), Maintenance Grounds, Pest Control, Reserve Fund, Road Maintenance, Common Areas
Homeowners Association: Yes
HOA Dues: $1,061 / Quarterly
Driving Directions
From I-75 take exit 220 (State Road 64) and head east. Continue for approximately 1.5 miles. Turn right onto 48th Street Court E into the Amberly community. Follow the road as it curves left. Turn right onto Amberly Drive. Home will be on your left.
Financial Considerations
Terms: Cash,Conventional,FHA,VA Loan
Tax/Property ID: 1424521009
Tax Amount: 3991
Tax Year: 2025
A broker reciprocity listing courtesy: MICHAEL SAUNDERS & COMPANY
Based on information provided by Stellar MLS as distributed by the MLS GRID. Information from the Internet Data Exchange is provided exclusively for consumers’ personal, non-commercial use, and such information may not be used for any purpose other than to identify prospective properties consumers may be interested in purchasing. This data is deemed reliable but is not guaranteed to be accurate by Edina Realty, Inc., or by the MLS. Edina Realty, Inc., is not a multiple listing service (MLS), nor does it offer MLS access.
Copyright 2025 Stellar MLS as distributed by the MLS GRID. All Rights Reserved.
Payment Calculator
Interest rate and annual percentage rate (APR) are based on current market conditions, are for informational purposes only, are subject to change without notice and may be subject to pricing add-ons related to property type, loan amount, loan-to-value, credit score and other variables. Estimated closing costs used in the APR calculation are assumed to be paid by the borrower at closing. If the closing costs are financed, the loan, APR and payment amounts will be higher. If the down payment is less than 20%, mortgage insurance may be required and could increase the monthly payment and APR. Contact us for details. Additional loan programs may be available. Accuracy is not guaranteed, and all products may not be available in all borrower's geographical areas and are based on their individual situation. This is not a credit decision or a commitment to lend.
Sales History & Tax Summary for 5961 Amberly Drive
Sales History
| Date | Price | Change |
|---|---|---|
| Currently not available. | ||
Tax Summary
| Tax Year | Estimated Market Value | Total Tax |
|---|---|---|
| Currently not available. | ||
Data powered by ATTOM Data Solutions. Copyright© 2025. Information deemed reliable but not guaranteed.
Schools
Schools nearby 5961 Amberly Drive
| Schools in attendance boundaries | Grades | Distance | Rating |
|---|---|---|---|
| Loading... | |||
| Schools nearby | Grades | Distance | Rating |
|---|---|---|---|
| Loading... | |||
Data powered by ATTOM Data Solutions. Copyright© 2025. Information deemed reliable but not guaranteed.
The schools shown represent both the assigned schools and schools by distance based on local school and district attendance boundaries. Attendance boundaries change based on various factors and proximity does not guarantee enrollment eligibility. Please consult your real estate agent and/or the school district to confirm the schools this property is zoned to attend. Information is deemed reliable but not guaranteed.
SchoolDigger ® Rating
The SchoolDigger rating system is a 1-5 scale with 5 as the highest rating. SchoolDigger ranks schools based on test scores supplied by each state's Department of Education. They calculate an average standard score by normalizing and averaging each school's test scores across all tests and grades.
Coming soon properties will soon be on the market, but are not yet available for showings.