5970 SW 103rd Court Cedar Key, FL 32625
For Sale MLS# GC534854
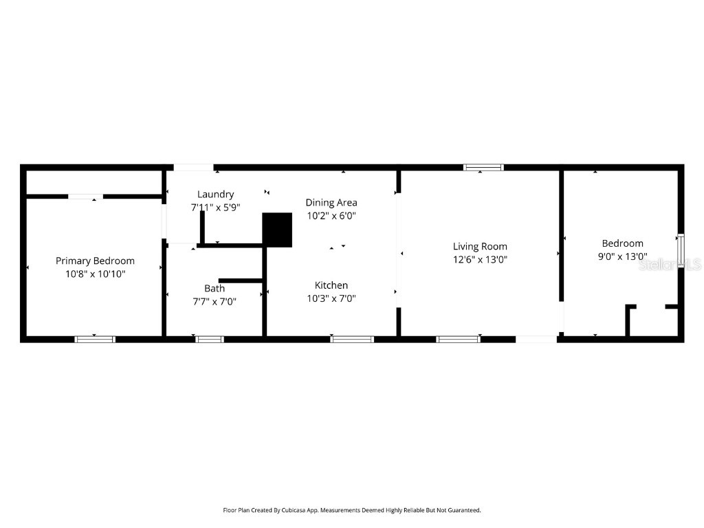
2 beds 1 baths 728 sq ft Single Family
Details for 5970 SW 103rd Court
MLS# GC534854
Description for 5970 SW 103rd Court, Cedar Key, FL, 32625
Affordable Investment or Coastal Getaway 2 Bedroom, 1 Bath Home on Corner Lot in Rosewood, FL (15 Minutes from Cedar Key) Excellent opportunity to own an affordable property just minutes from Florida’s Gulf Coast! This 2006 manufactured home offers flexibility as a primary residence, rental investment, or weekend retreat. The home features 2 bedrooms and 1 bathroom with a practical floor plan and low-maintenance living. Situated on a spacious corner lot, there’s ample room for outdoor enjoyment or future additions. A separate detached building provides great potential for conversion into a carport, workshop, or storage area, adding value and functionality to the property. Located in Rosewood, FL, this home offers peaceful rural living while remaining only 15 minutes from Cedar Key a popular destination for fishing, boating, dining, and coastal recreation. With no HOA and very low property taxes, this is an ideal option for investors, snowbirds, or anyone seeking affordable living near the water. Property Highlights: 2 Bedrooms 1 Bathroom, 2006 Manufactured Home, Corner Lot with Room to Expand, Detached Building – Convertible to Carport or Storage, Great Rental or Airbnb Potential, Approx. 15 Minutes to Cedar Key, Convenient Access to Gainesville and Surrounding Areas, and No HOA. Whether you’re looking for a turnkey investment property or a quiet full-time residence near the coast, this home checks all the boxes. Schedule your private showing today!
Listing Information
Property Type: Residential, Manufactured Home
Status: Active
Bedrooms: 2
Bathrooms: 1
Lot Size: 0.46 Acres
Square Feet: 728 sq ft
Year Built: 2005
Stories: 1 Story
Construction: Vinyl Siding
Subdivision: Rosewood Park
Foundation: Crawlspace
County: Levy
School Information
Elementary: Levy Virtual Instruction Program-Lv
Middle: Levy Virtual Franchise-Lv
High: Cedar Key High School-Lv
Room Information
Main Floor
Primary Bathroom:
Bedroom 2:
Primary Bedroom:
Kitchen:
Living Room:
Bathrooms
Full Baths: 1
Additonal Room Information
Laundry: Inside
Interior Features
Appliances: Dryer, Microwave, Range, Refrigerator, Washer
Flooring: Concrete
Basement: Crawl Space
Additional Interior Features: Split Bedrooms
Utilities
Water: Well
Sewer: Septic Tank
Other Utilities: Electricity Connected
Cooling: Central Air
Heating: Central
Exterior / Lot Features
Roof: Shingle
Lot View: Trees/Woods
Additional Exterior/Lot Features: Storage, Front Porch
Driving Directions
Start on W Newberry Rd heading west out of Gainesville. Continue on W Newberry Rd until you reach the junction with Florida?State?Road?24 (SR 24) / Archer Road. Turn onto SR 24 westbound, toward Cedar Key. Stay on SR 24 as you travel west–north-west, through rural areas, until you get into Levy County. When you reach the Cedar Key area, turn toward SW 103rd Ct (you’ll likely take a local road off SR 24 heading toward your destination). Follow the local roads until you reach 5970 SW 103rd Ct.
Financial Considerations
Terms: Cash,Conventional,FHA,VA Loan
Tax/Property ID: 08981-000-00
Tax Amount: 1271.88
Tax Year: 2024
A broker reciprocity listing courtesy: KELLER WILLIAMS GAINESVILLE REALTY PARTNERS
Based on information provided by Stellar MLS as distributed by the MLS GRID. Information from the Internet Data Exchange is provided exclusively for consumers’ personal, non-commercial use, and such information may not be used for any purpose other than to identify prospective properties consumers may be interested in purchasing. This data is deemed reliable but is not guaranteed to be accurate by Edina Realty, Inc., or by the MLS. Edina Realty, Inc., is not a multiple listing service (MLS), nor does it offer MLS access.
Copyright 2025 Stellar MLS as distributed by the MLS GRID. All Rights Reserved.
Payment Calculator
Interest rate and annual percentage rate (APR) are based on current market conditions, are for informational purposes only, are subject to change without notice and may be subject to pricing add-ons related to property type, loan amount, loan-to-value, credit score and other variables. Estimated closing costs used in the APR calculation are assumed to be paid by the borrower at closing. If the closing costs are financed, the loan, APR and payment amounts will be higher. If the down payment is less than 20%, mortgage insurance may be required and could increase the monthly payment and APR. Contact us for details. Additional loan programs may be available. Accuracy is not guaranteed, and all products may not be available in all borrower's geographical areas and are based on their individual situation. This is not a credit decision or a commitment to lend.
Sales History & Tax Summary for 5970 SW 103rd Court
Sales History
| Date | Price | Change |
|---|---|---|
| Currently not available. | ||
Tax Summary
| Tax Year | Estimated Market Value | Total Tax |
|---|---|---|
| Currently not available. | ||
Data powered by ATTOM Data Solutions. Copyright© 2025. Information deemed reliable but not guaranteed.
Schools
Schools nearby 5970 SW 103rd Court
| Schools in attendance boundaries | Grades | Distance | Rating |
|---|---|---|---|
| Loading... | |||
| Schools nearby | Grades | Distance | Rating |
|---|---|---|---|
| Loading... | |||
Data powered by ATTOM Data Solutions. Copyright© 2025. Information deemed reliable but not guaranteed.
The schools shown represent both the assigned schools and schools by distance based on local school and district attendance boundaries. Attendance boundaries change based on various factors and proximity does not guarantee enrollment eligibility. Please consult your real estate agent and/or the school district to confirm the schools this property is zoned to attend. Information is deemed reliable but not guaranteed.
SchoolDigger ® Rating
The SchoolDigger rating system is a 1-5 scale with 5 as the highest rating. SchoolDigger ranks schools based on test scores supplied by each state's Department of Education. They calculate an average standard score by normalizing and averaging each school's test scores across all tests and grades.
Coming soon properties will soon be on the market, but are not yet available for showings.