$125,000
5980 80th Street N #405 Saint Petersburg, FL 33709
For Sale MLS# TB8453265
2 beds 2 baths 1,100 sq ft Condo
Details for 5980 80th Street N #405
MLS# TB8453265
Description for 5980 80th Street N #405, Saint Petersburg, FL, 33709
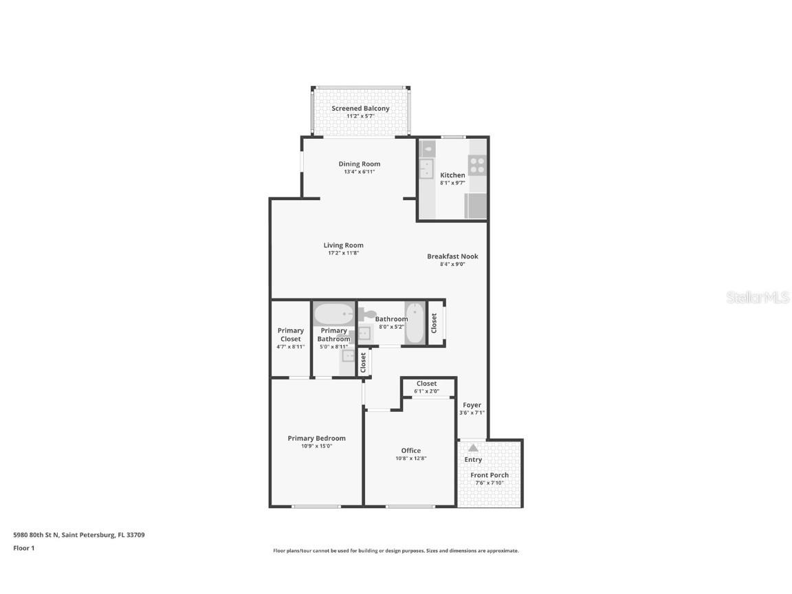
One or more photo(s) has been virtually staged. Embrace the carefree Florida Lifestyle at Terrace Park of Five Towns. Welcome to your idyllic Florida retreat! This spacious two-bedroom, two-bathroom top-floor condominium is nestled within Terrace Park of Five Towns, a premier 55+ community celebrated for its vibrant and maintenance-free living. Enjoy unparalleled privacy and sweeping, serene views from this vantage point. This Penthouse top 4th floor unit offers more than others in the area with views and features. Step inside to a bright, open-concept living and dining area, perfectly sized for comfortable entertaining and gathering with family and friends. The well-appointed galley kitchen offers practicality and charm, featuring a new fridge, cozy breakfast nook, ample pantry storage, and a RARE washer & dryer in the unit!! The generous primary suite boasts a private en-suite bathroom and a spacious walk-in closet, creating a true owner's sanctuary. The versatile second bedroom is ideal for guests, or can easily function as a dedicated den or productive home office. Recent updates include a new AC unit, new windows, and a new shower. Resort-Style Living Condominium living here is synonymous with ease. Your low monthly fees cover an exceptional list of necessities, including cable, high-speed internet, water, trash, gas, and all building and grounds maintenance. Added convenience comes with parking situated close to the building entrance. Terrace Park is renowned for its active, social lifestyle. Residents enjoy an abundance of first-class amenities: Six sparkling swimming pools. Central Clubhouse: Featuring a fitness center, library, card room, billiards, and dedicated spaces for social events. Outdoor Activities: Tennis courts, shuffleboard, pickleball, picnic areas with grills, and miles of scenic walking and biking trails. Whether you seek vigorous activity or quiet relaxation, this community empowers you to live as actively—or as relaxed—as you desire. The location is truly second to none: you are less than a mile from Publix, minutes from the VA Hospital, surrounded by diverse dining options, and just a short, convenient drive to the famous sugar-sand beaches of the Gulf Coast. For "Snowbirds" especially, this condo offers the perfect "lock-and-leave" lifestyle, combining resort-style amenities with a warm, welcoming community atmosphere. If you have been dreaming of a Florida getaway featuring pondside views, romantic, glowing fountains at night, and an engaging social scene, this condominium is poised to welcome you home. Schedule your private showing today and discover the best of 55+ living in St. Petersburg. Important Note: Due to Fannie Mae classifying Five Towns as NON-Warrantable, this property requires CASH or PORTFOLIO loan financing. This is a 55+ Community, and Board approval, including an interview, is required for all new residents.
Listing Information
Property Type: Residential, Condominium
Status: Active
Bedrooms: 2
Bathrooms: 2
Square Feet: 1,100 sq ft
Year Built: 1980
Stories: 1 Story
Construction: Block
Subdivision: Terrace Park Of Five Towns
Foundation: Slab
County: Pinellas
Room Information
Main Floor
Primary Bedroom:
Living Room:
Kitchen:
Bathrooms
Full Baths: 2
Additonal Room Information
Laundry: Inside, Laundry Closet
Interior Features
Appliances: Washer, Range, Refrigerator, Dryer
Flooring: Carpet,Tile
Doors/Windows: Storm Window(s)
Additional Interior Features: Eat-In Kitchen
Utilities
Water: Public
Sewer: Public Sewer
Other Utilities: Electricity Connected,Municipal Utilities,Sewer Connected,Underground Utilities,Water Connected
Cooling: Central Air
Heating: Electric
Exterior / Lot Features
Parking Description: Assigned
Roof: Other
Pool: Community, Association
Lot View: Pond,Trees/Woods,Water
Additional Exterior/Lot Features: Balcony, Lighting, Sprinkler/Irrigation, Porch, Screened, Balcony, Covered, Landscaped
Community Features
Community Features: Pool, Tennis Court(s), Sidewalks, Clubhouse, Street Lights, Fitness, Recreation Area
Association Amenities: Tennis Court(s), Pool, Park, Spa/Hot Tub, Recreation Facilities, Fitness Center, Clubhouse
HOA Dues Include: Internet, Cable TV, Pool(s)
Driving Directions
I-275 to Cr 694/Park Blvd to 71st St N to 54th Ave N to 80th St N
Financial Considerations
Terms: Cash,Conventional,Other
Tax/Property ID: 36-30-15-90327-000-4050
Tax Amount: 598.78
Tax Year: 2024
A broker reciprocity listing courtesy: REDFIN CORPORATION
Based on information provided by Stellar MLS as distributed by the MLS GRID. Information from the Internet Data Exchange is provided exclusively for consumers’ personal, non-commercial use, and such information may not be used for any purpose other than to identify prospective properties consumers may be interested in purchasing. This data is deemed reliable but is not guaranteed to be accurate by Edina Realty, Inc., or by the MLS. Edina Realty, Inc., is not a multiple listing service (MLS), nor does it offer MLS access.
Copyright 2025 Stellar MLS as distributed by the MLS GRID. All Rights Reserved.
Payment Calculator
Interest rate and annual percentage rate (APR) are based on current market conditions, are for informational purposes only, are subject to change without notice and may be subject to pricing add-ons related to property type, loan amount, loan-to-value, credit score and other variables. Estimated closing costs used in the APR calculation are assumed to be paid by the borrower at closing. If the closing costs are financed, the loan, APR and payment amounts will be higher. If the down payment is less than 20%, mortgage insurance may be required and could increase the monthly payment and APR. Contact us for details. Additional loan programs may be available. Accuracy is not guaranteed, and all products may not be available in all borrower's geographical areas and are based on their individual situation. This is not a credit decision or a commitment to lend.
Sales History & Tax Summary for 5980 80th Street N #405
Sales History
| Date | Price | Change |
|---|---|---|
| Currently not available. | ||
Tax Summary
| Tax Year | Estimated Market Value | Total Tax |
|---|---|---|
| Currently not available. | ||
Data powered by ATTOM Data Solutions. Copyright© 2025. Information deemed reliable but not guaranteed.
Schools
Schools nearby 5980 80th Street N #405
| Schools in attendance boundaries | Grades | Distance | Rating |
|---|---|---|---|
| Loading... | |||
| Schools nearby | Grades | Distance | Rating |
|---|---|---|---|
| Loading... | |||
Data powered by ATTOM Data Solutions. Copyright© 2025. Information deemed reliable but not guaranteed.
The schools shown represent both the assigned schools and schools by distance based on local school and district attendance boundaries. Attendance boundaries change based on various factors and proximity does not guarantee enrollment eligibility. Please consult your real estate agent and/or the school district to confirm the schools this property is zoned to attend. Information is deemed reliable but not guaranteed.
SchoolDigger ® Rating
The SchoolDigger rating system is a 1-5 scale with 5 as the highest rating. SchoolDigger ranks schools based on test scores supplied by each state's Department of Education. They calculate an average standard score by normalizing and averaging each school's test scores across all tests and grades.
Coming soon properties will soon be on the market, but are not yet available for showings.