$470,000
6019 Cape Loop Land O Lakes, FL 34639
For Sale MLS# TB8451092
4 beds 3 baths 2,482 sq ft Single Family
Details for 6019 Cape Loop
MLS# TB8451092
Description for 6019 Cape Loop, Land O Lakes, FL, 34639
Welcome to Dupree Lakes! If you're looking for space inside and out you have to come see this 4 bedroom, 2 1/2 bathroom home with over 2,400 square feet. Downstairs you'll find multiple living areas, including a large dining/living space and the family room right off the kitchen with views to the fenced backyard that has more than enough room for the pets and little ones or you could add a pool with room to spare! Like to entertain? You'll love the amount of space in the kitchen with room for food prep at the island and a walk-in pantry to stay stocked up on all the necessities. Prepare to be wowed by the primary suite with the large bedroom, massive walk-in closet, and an additional space off the bedroom that could be used as an office or sitting area for reading and enjoying morning coffee. One of the secondary bedrooms has a walk-in closet, making a great option for storage if you need a craft room. The 3 car garage is perfect for your golf cart or extra storage needs. Don't forget about the amenities! For the active person, you can take advantage of the large clubhouse available for rent complete with a catering kitchen, resort style pool with splash zone, cabanas, covered veranda, playground, tennis and basketball courts, beach volleyball, soccer field, putting green, resident-led soccer and you can even sign up for tennis and swim lessons! You'll be close to your daily needs with two Publix options 10 minutes away, lots of local restaurants, and it's a short drive to I-75 and the Tampa Premium Outlets!
Listing Information
Property Type: Residential, Single Family Residence
Status: Active
Bedrooms: 4
Bathrooms: 3
Lot Size: 0.19 Acres
Square Feet: 2,482 sq ft
Year Built: 2006
Garage: Yes
Stories: 2 Story
Construction: Block,Stucco,Wood Frame
Subdivision: Dupree Lakes Ph I
Foundation: Slab
County: Pasco
School Information
Elementary: Pine View Elementary-Po
Middle: Pine View Middle-Po
High: Land O' Lakes High-Po
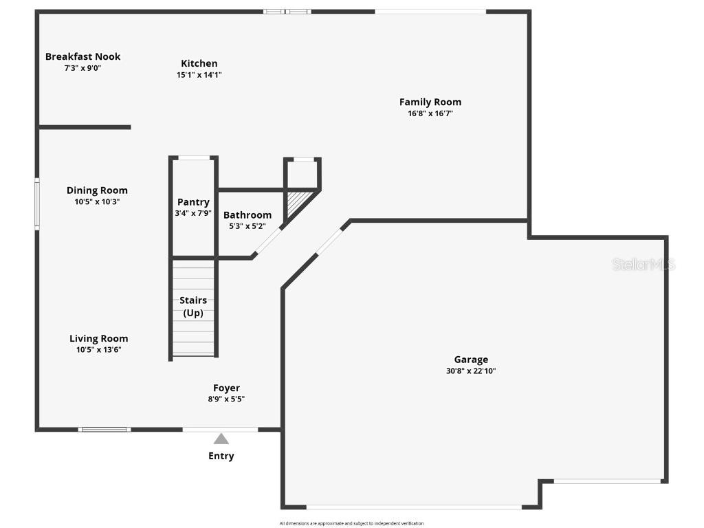
Room Information
Main Floor
Dining Room: 10.5x10.5
Living Room: 13.5x10.5
Great Room: 16x16
Kitchen: 15x14
Upper Floor
Bedroom 2: 10.9x13.75
Primary Bathroom: 13x10
Primary Bedroom: 15x14
Bathrooms
Full Baths: 2
1/2 Baths: 1
Additonal Room Information
Laundry: Laundry Room
Interior Features
Appliances: Washer, Microwave, Range, Refrigerator, Dishwasher, Disposal, Dryer
Flooring: Ceramic Tile,Laminate
Additional Interior Features: Built-in Features, Solid Surface Counters, Wood Cabinets, Upper Level Primary
Utilities
Water: Public
Sewer: Public Sewer
Other Utilities: Municipal Utilities
Cooling: Central Air
Heating: Electric
Exterior / Lot Features
Attached Garage: Attached Garage
Garage Spaces: 3
Roof: Shingle
Pool: Community
Additional Exterior/Lot Features: Sprinkler/Irrigation
Community Features
Community Features: Sidewalks, Pool, Tennis Court(s), Playground, Clubhouse
Association Amenities: Clubhouse, Playground, Tennis Court(s), Basketball Court
Homeowners Association: Yes
HOA Dues: $120 / Annually
Driving Directions
From 41 and Ehren Cutoff, go northeast on Ehren Cutoff approximately 1.5 miles and turn right on Dupree Lakes Blvd. After 1/2 mile turn right on Coriander Way. Turn right on Candytuft Pl. Candytuft turns into Cape Loop and home will be on the right.
Financial Considerations
Terms: Cash,Conventional,FHA,VA Loan
Tax/Property ID: 06-26-19-0030-01000-0050
Tax Amount: 6968.72
Tax Year: 2024
A broker reciprocity listing courtesy: COASTAL PROPERTIES GROUP INTER
Based on information provided by Stellar MLS as distributed by the MLS GRID. Information from the Internet Data Exchange is provided exclusively for consumers’ personal, non-commercial use, and such information may not be used for any purpose other than to identify prospective properties consumers may be interested in purchasing. This data is deemed reliable but is not guaranteed to be accurate by Edina Realty, Inc., or by the MLS. Edina Realty, Inc., is not a multiple listing service (MLS), nor does it offer MLS access.
Copyright 2025 Stellar MLS as distributed by the MLS GRID. All Rights Reserved.
Payment Calculator
Interest rate and annual percentage rate (APR) are based on current market conditions, are for informational purposes only, are subject to change without notice and may be subject to pricing add-ons related to property type, loan amount, loan-to-value, credit score and other variables. Estimated closing costs used in the APR calculation are assumed to be paid by the borrower at closing. If the closing costs are financed, the loan, APR and payment amounts will be higher. If the down payment is less than 20%, mortgage insurance may be required and could increase the monthly payment and APR. Contact us for details. Additional loan programs may be available. Accuracy is not guaranteed, and all products may not be available in all borrower's geographical areas and are based on their individual situation. This is not a credit decision or a commitment to lend.
Sales History & Tax Summary for 6019 Cape Loop
Sales History
| Date | Price | Change |
|---|---|---|
| Currently not available. | ||
Tax Summary
| Tax Year | Estimated Market Value | Total Tax |
|---|---|---|
| Currently not available. | ||
Data powered by ATTOM Data Solutions. Copyright© 2025. Information deemed reliable but not guaranteed.
Schools
Schools nearby 6019 Cape Loop
| Schools in attendance boundaries | Grades | Distance | Rating |
|---|---|---|---|
| Loading... | |||
| Schools nearby | Grades | Distance | Rating |
|---|---|---|---|
| Loading... | |||
Data powered by ATTOM Data Solutions. Copyright© 2025. Information deemed reliable but not guaranteed.
The schools shown represent both the assigned schools and schools by distance based on local school and district attendance boundaries. Attendance boundaries change based on various factors and proximity does not guarantee enrollment eligibility. Please consult your real estate agent and/or the school district to confirm the schools this property is zoned to attend. Information is deemed reliable but not guaranteed.
SchoolDigger ® Rating
The SchoolDigger rating system is a 1-5 scale with 5 as the highest rating. SchoolDigger ranks schools based on test scores supplied by each state's Department of Education. They calculate an average standard score by normalizing and averaging each school's test scores across all tests and grades.
Coming soon properties will soon be on the market, but are not yet available for showings.