6019 Cherrywood Road Mound, MN 55364 - Lake Minnetonka
For Sale MLS# 6811728
3 beds 2 baths 1,896 sq ft Single Family
Listed by: Edina Realty, Inc.
Details for 6019 Cherrywood Road
MLS# 6811728
Description for 6019 Cherrywood Road, Mound, MN, 55364 - Lake Minnetonka
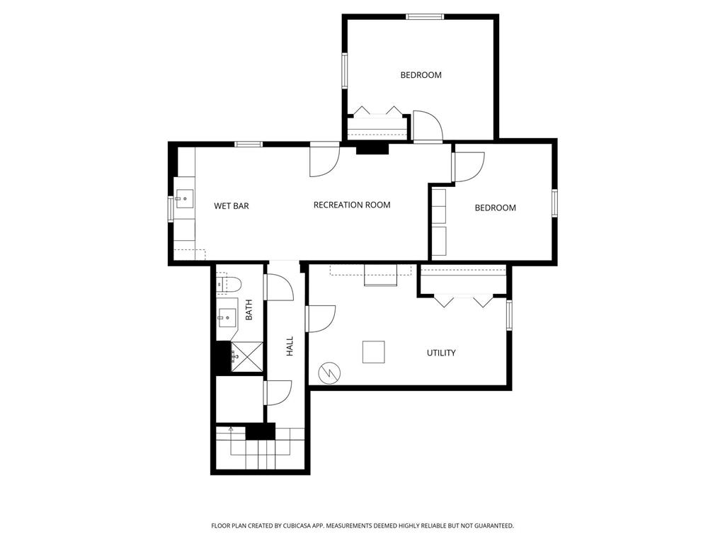
Welcome home! This house has been lovingly curated into a home by current owners making this a great opportunity. The main floor features generous living spaces, 2 bedrooms, a full bathroom, open kitchen, laundry and a deck with views of Priests Bay of Lake Minnetonka. The walk-out lower level has ample storage, another bathroom, a large family room with wet bar, the third bedroom and a flex space for an office/hobby room. The oversized 2-car garage is 25-deep and 23-wide. The deck is a great space to enjoy the views of the lake. New roof in Sept 2025.
Listing Information
Property Type: Residential, Single Family
Status: Active
Bedrooms: 3
Bathrooms: 2
Lot Size: 0.21 Acres
Square Feet: 1,896 sq ft
Year Built: 1946
Foundation: 960 sq ft
Garage: Yes
Stories: 1 Story
Subdivision: The Highlands
County: Hennepin
Days On Market: 24
Construction Status: Previously Owned
School Information
District: 277 - Westonka
Room Information
Main Floor
Bedroom 1: 10x8.5
Bedroom 2: 13x9
Deck: 17x12
Deck: 5x21
Dining Room: 12x9
Foyer: 7x8
Laundry: 5x7
Living Room: 13x11
Sitting Room: 9x9
Lower Floor
Bedroom 3: 11x12
Family Room: 22x9
Office: 10x9
Bathrooms
Full Baths: 1
3/4 Baths: 1
Additonal Room Information
Family: Family Room,Lower Level
Dining: Informal Dining Room,Kitchen/Dining Room
Laundry: Laundry Closet, Main Level
Bath Description: 3/4 Basement,Full Primary,Main Floor Full Bath,Private Primary
Interior Features
Square Footage above: 1,056 sq ft
Square Footage below: 840 sq ft
Appliances: Washer, Range, Refrigerator, Gas Water Heater, Water Softener - Owned, Dishwasher, Dryer, Microwave
Basement: Daylight/Lookout Windows, Finished (Livable), Egress Windows
Additional Interior Features: Ceiling Fan(s), Kitchen Window, Washer/Dryer Hookup, Wet Bar, Main Floor Laundry, All Living Facilities on One Level, Main Floor Bedroom, Main Floor Primary, Primary Bdr Suite
Utilities
Water: City Water/Connected
Sewer: City Sewer/Connected
Cooling: Central
Heating: Natural Gas, Forced Air
Exterior / Lot Features
Garage Spaces: 2
Parking Description: Driveway - Gravel, Detached Garage, Garage Dimensions - 23x25, Garage Door Height - 7, Garage Door Width - 16, Garage Sq Ft - 575.0
Exterior: Fiber Board
Roof: Age 8 Years or Less, Asphalt Shingles, Architectural Shingle
Lot View: Bay,Lake
Lot Dimensions: 61x143x65x185
Zoning: Residential-Single Family
Additional Exterior/Lot Features: Patio, Deck, Tree Coverage - Medium
Waterfront Details
Standard Water Body: Lake Minnetonka
DNR Lake ID: 27013300
Water Front Features: Lake View
Lake Acres: 14,206
Lake Depth: 113 Ft.
Driving Directions
110/Bartlett, south on Oaklawn, left on Hawthorne, right on Cherrywood - ok to park next to driveway or street.
Financial Considerations
Tax/Property ID: 2311724340009
Tax Amount: 3152
Tax Year: 2025
HomeStead Description: Homesteaded
The data relating to real estate for sale on this web site comes in part from the Broker Reciprocity℠ Program of the Regional Multiple Listing Service of Minnesota, Inc. Real estate listings held by brokerage firms other than Edina Realty, Inc. are marked with the Broker Reciprocity℠ logo or the Broker Reciprocity℠ thumbnail and detailed information about them includes the name of the listing brokers. Edina Realty, Inc. is not a Multiple Listing Service (MLS), nor does it offer MLS access. This website is a service of Edina Realty, Inc., a broker Participant of the Regional Multiple Listing Service of Minnesota, Inc. IDX information is provided exclusively for consumers personal, non-commercial use and may not be used for any purpose other than to identify prospective properties consumers may be interested in purchasing. Open House information is subject to change without notice. Information deemed reliable but not guaranteed.
Copyright 2025 Regional Multiple Listing Service of Minnesota, Inc. All Rights Reserved.
Payment Calculator
Interest rate and annual percentage rate (APR) are based on current market conditions, are for informational purposes only, are subject to change without notice and may be subject to pricing add-ons related to property type, loan amount, loan-to-value, credit score and other variables. Estimated closing costs used in the APR calculation are assumed to be paid by the borrower at closing. If the closing costs are financed, the loan, APR and payment amounts will be higher. If the down payment is less than 20%, mortgage insurance may be required and could increase the monthly payment and APR. Contact us for details. Additional loan programs may be available. Accuracy is not guaranteed, and all products may not be available in all borrower's geographical areas and are based on their individual situation. This is not a credit decision or a commitment to lend.
Sales History & Tax Summary for 6019 Cherrywood Road
Sales History
| Date | Price | Change |
|---|---|---|
| Currently not available. | ||
Tax Summary
| Tax Year | Estimated Market Value | Total Tax |
|---|---|---|
| Currently not available. | ||
Data powered by ATTOM Data Solutions. Copyright© 2025. Information deemed reliable but not guaranteed.
Schools
Schools nearby 6019 Cherrywood Road
| Schools in attendance boundaries | Grades | Distance | Rating |
|---|---|---|---|
| Loading... | |||
| Schools nearby | Grades | Distance | Rating |
|---|---|---|---|
| Loading... | |||
Data powered by ATTOM Data Solutions. Copyright© 2025. Information deemed reliable but not guaranteed.
The schools shown represent both the assigned schools and schools by distance based on local school and district attendance boundaries. Attendance boundaries change based on various factors and proximity does not guarantee enrollment eligibility. Please consult your real estate agent and/or the school district to confirm the schools this property is zoned to attend. Information is deemed reliable but not guaranteed.
SchoolDigger ® Rating
The SchoolDigger rating system is a 1-5 scale with 5 as the highest rating. SchoolDigger ranks schools based on test scores supplied by each state's Department of Education. They calculate an average standard score by normalizing and averaging each school's test scores across all tests and grades.
Coming soon properties will soon be on the market, but are not yet available for showings.