6033 Acara Lane Land O Lakes, FL 34638 - LITTLE LAKE THOMAS
For Sale MLS# TB8416274
2 beds 3 baths 1,541 sq ft Townhouse/Twinhome
Details for 6033 Acara Lane
MLS# TB8416274
Description for 6033 Acara Lane, Land O Lakes, FL, 34638 - LITTLE LAKE THOMAS
Townhouse living at its finest! You'll love this jewel as it's 1 YEAR NEW! (2024). MAINTENANCE-FREE LIVING in a beautiful community in the heart of Land O Lakes. Pristine 2 Bedroom, 2 and one Half Bath, and Garage. Great Room floor plan with combining Living Room and Kitchen with decorative ceramic Tile in all wet areas. Eat-in Kitchen and Breakfast Bar complete with all STAINLESS STEEL APPLICANCES INCLUDING WASHER AND DRYER.
Listing Information
Property Type: Residential, Townhouse
Status: Active
Bedrooms: 2
Bathrooms: 3
Lot Size: 0.06 Acres
Square Feet: 1,541 sq ft
Year Built: 2024
Garage: Yes
Stories: 2 Story
Construction: Block,Stucco
Construction Display: New Construction
Subdivision: Townes/Lk Thomas Ph 1
Builder: Lennar
Foundation: Concrete Perimeter,Slab
County: Pasco
Construction Status: New Construction
School Information
Elementary: Connerton Elem
Middle: Pine View Middle-Po
High: Land O' Lakes High-Po
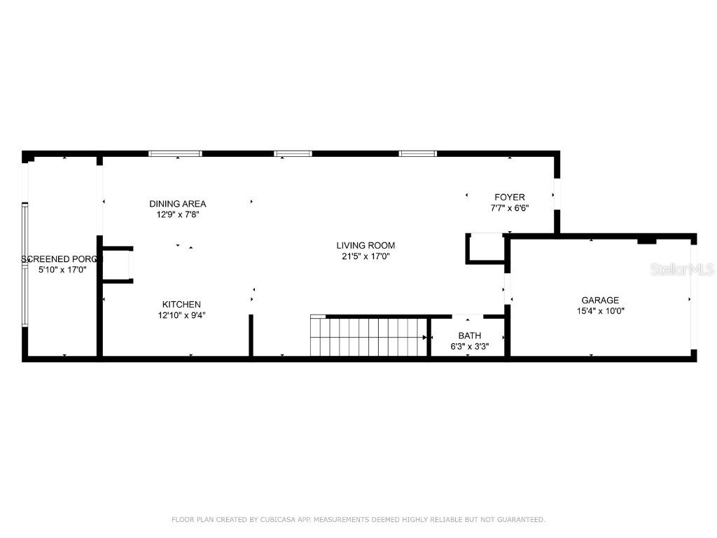
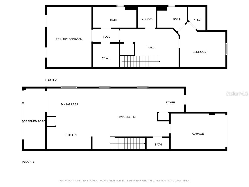
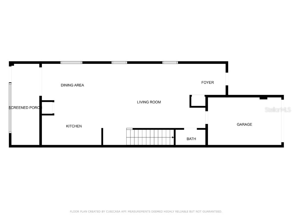
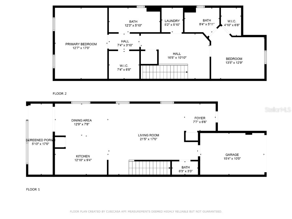
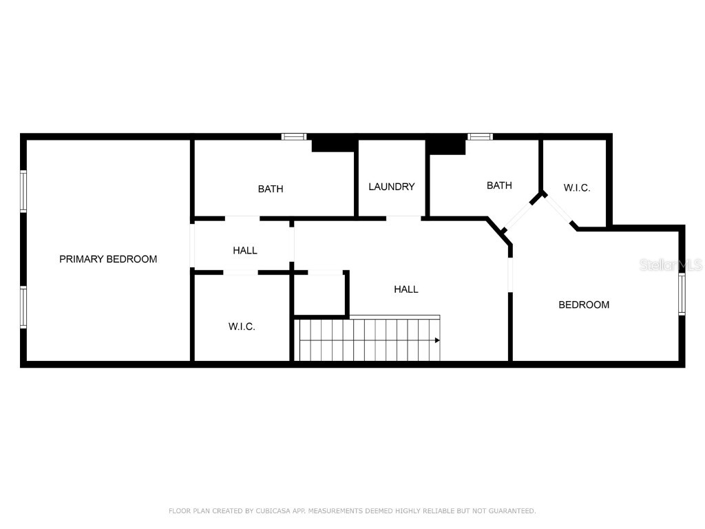
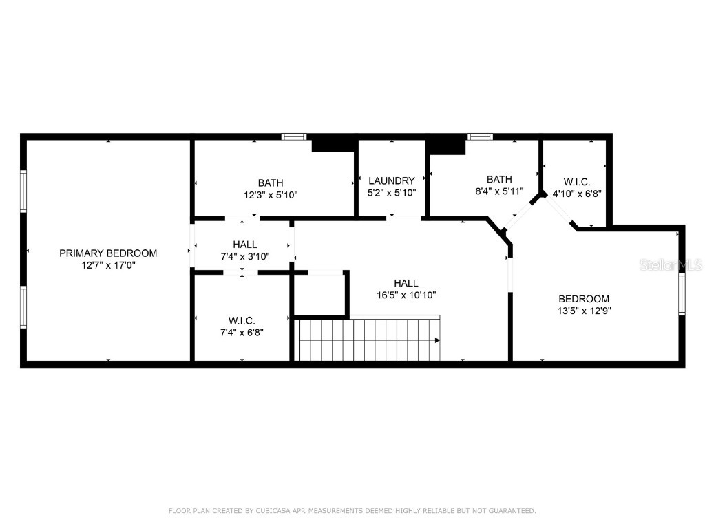
Room Information
Main Floor
Kitchen: 9x13
Living Room: 17x21
Upper Floor
Primary Bedroom: 17x12
Bathrooms
Full Baths: 2
1/2 Baths: 1
Additonal Room Information
Laundry: Inside
Interior Features
Appliances: Electric Water Heater, Microwave, Range, Refrigerator, Washer, Dishwasher, Disposal, Dryer
Flooring: Carpet,Ceramic Tile
Doors/Windows: Blinds
Additional Interior Features: Upper Level Primary, Living/Dining Room, Ceiling Fan(s), Eat-In Kitchen, Stone Counters, Open Floorplan
Utilities
Other Utilities: Cable Available,Cable Connected,Electricity Available,High Speed Internet Available,Municipal Utilities,Sewer Not Available,Water Not Available
Cooling: Ceiling Fan(s), Central Air
Heating: Electric
Exterior / Lot Features
Attached Garage: Attached Garage
Garage Spaces: 1
Roof: Shingle
Pool: In Ground, Community, Association, Gunite
Lot View: Trees/Woods
Additional Exterior/Lot Features: Lighting, Enclosed, Screened, Covered, Landscaped, Conservation Area, Outside City Limits
Waterfront Details
Standard Water Body: LITTLE LAKE THOMAS
Community Features
Community Features: Community Mailbox, Pool, Street Lights, Gated, Park
Security Features: Gated Community
Association Amenities: Gated, Park, Cable TV, Pool
HOA Dues Include: Maintenance Structure, Maintenance Grounds, Pool(s)
Homeowners Association: Yes
HOA Dues: $322 / Monthly
Driving Directions
From SR 54, Go North on Hwy 41; Make a U Turn at Barcellona Road; Go Right on Darter Road. Make a Left on Shiner then Right on Acara Lane. Home is on your Left.
Financial Considerations
Terms: Cash,Conventional,FHA
Tax/Property ID: 01-26-18-0120-00000-0780
Tax Amount: 664
Tax Year: 2024
A broker reciprocity listing courtesy: KELLER WILLIAMS TAMPA PROP.
Based on information provided by Stellar MLS as distributed by the MLS GRID. Information from the Internet Data Exchange is provided exclusively for consumers’ personal, non-commercial use, and such information may not be used for any purpose other than to identify prospective properties consumers may be interested in purchasing. This data is deemed reliable but is not guaranteed to be accurate by Edina Realty, Inc., or by the MLS. Edina Realty, Inc., is not a multiple listing service (MLS), nor does it offer MLS access.
Copyright 2026 Stellar MLS as distributed by the MLS GRID. All Rights Reserved.
Payment Calculator
Interest rate and annual percentage rate (APR) are based on current market conditions, are for informational purposes only, are subject to change without notice and may be subject to pricing add-ons related to property type, loan amount, loan-to-value, credit score and other variables. Estimated closing costs used in the APR calculation are assumed to be paid by the borrower at closing. If the closing costs are financed, the loan, APR and payment amounts will be higher. If the down payment is less than 20%, mortgage insurance may be required and could increase the monthly payment and APR. Contact us for details. Additional loan programs may be available. Accuracy is not guaranteed, and all products may not be available in all borrower's geographical areas and are based on their individual situation. This is not a credit decision or a commitment to lend.
Sales History & Tax Summary for 6033 Acara Lane
Sales History
| Date | Price | Change |
|---|---|---|
| Currently not available. | ||
Tax Summary
| Tax Year | Estimated Market Value | Total Tax |
|---|---|---|
| Currently not available. | ||
Data powered by ATTOM Data Solutions. Copyright© 2026. Information deemed reliable but not guaranteed.
Schools
Schools nearby 6033 Acara Lane
| Schools in attendance boundaries | Grades | Distance | Rating |
|---|---|---|---|
| Loading... | |||
| Schools nearby | Grades | Distance | Rating |
|---|---|---|---|
| Loading... | |||
Data powered by ATTOM Data Solutions. Copyright© 2026. Information deemed reliable but not guaranteed.
The schools shown represent both the assigned schools and schools by distance based on local school and district attendance boundaries. Attendance boundaries change based on various factors and proximity does not guarantee enrollment eligibility. Please consult your real estate agent and/or the school district to confirm the schools this property is zoned to attend. Information is deemed reliable but not guaranteed.
SchoolDigger ® Rating
The SchoolDigger rating system is a 1-5 scale with 5 as the highest rating. SchoolDigger ranks schools based on test scores supplied by each state's Department of Education. They calculate an average standard score by normalizing and averaging each school's test scores across all tests and grades.
Coming soon properties will soon be on the market, but are not yet available for showings.