$124,900
6037 Chesham Drive #7 New Port Richey, FL 34653
For Sale MLS# W7881666
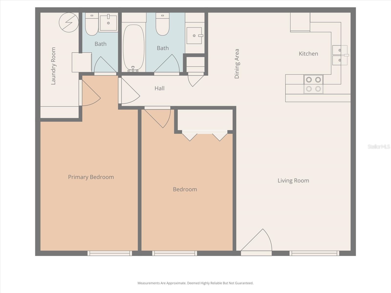
2 beds 2 baths 825 sq ft Condo
Details for 6037 Chesham Drive #7
MLS# W7881666
Description for 6037 Chesham Drive #7, New Port Richey, FL, 34653
This is a beautifully updated move in ready condo in a great 55 and over community! The kitchen has stainless appliances and sink with beautiful granite counter tops. The large primary bedroom has a walk-in closet and the bathroom in the primary bedroom includes a matching granite vanity and a stackable washer and dryer for your convenience. The primary bathroom features matching granite counter tops. This community is located near everything from medical facilities to dining, shopping and beaches! THE LOW HOA FEES ARE SCHEDULED TO BE REDUCED TO $400 / MONTH IN APRIL OF 2026! 2 parking spaces are included with each unit. Cedar Pointe Condos also has a great pool and club house. This condo is located in an X FLOOD ZONE!
Listing Information
Property Type: Residential, Condominium
Status: Active
Bedrooms: 2
Bathrooms: 2
Lot Size: 0.51 Acres
Square Feet: 825 sq ft
Year Built: 1981
Stories: 1 Story
Construction: Block,Stucco
Construction Display: New Construction
Subdivision: Cedar Pointe Condo Ph 02
Foundation: Slab
County: Pasco
Construction Status: New Construction
Room Information
Main Floor
Bedroom 2: 9x12
Primary Bedroom: 10x14
Living Room: 10x12
Kitchen: 9x15
Bathrooms
Full Baths: 1
1/2 Baths: 1
Additonal Room Information
Laundry: Inside
Interior Features
Appliances: Electric Water Heater, Washer, Refrigerator, Disposal, Dryer
Flooring: Ceramic Tile
Doors/Windows: Window Treatments, Blinds
Additional Interior Features: Ceiling Fan(s), Walk-In Closet(s), Window Treatments, Solid Surface Counters, Stone Counters, Main Level Primary
Utilities
Water: Public
Sewer: Public Sewer
Other Utilities: Cable Connected,Electricity Connected,Sewer Connected,Water Connected
Cooling: Ceiling Fan(s), Central Air
Heating: Central, Electric
Exterior / Lot Features
Roof: Shingle
Pool: Gunite, Association, Community, In Ground
Additional Exterior/Lot Features: Lighting, Sprinkler/Irrigation, Buyer Approval Required
Community Features
Community Features: Sidewalks, Pool, Clubhouse, Community Mailbox
Association Amenities: Maintenance Grounds, Laundry, Pool
HOA Dues Include: Trash, Water, Sewer, Taxes, Maintenance Grounds, Common Areas, Reserve Fund, Road Maintenance, Maintenance Structure, Pool(s)
Homeowners Association: Yes
HOA Dues: $449 / Monthly
Driving Directions
From State Rd 54 go north on Madison St then turn right on to Chesham Drive. It will be the first building on the left.
Financial Considerations
Terms: Cash,Conventional
Tax/Property ID: 16-26-16-055B-01400-0020
Tax Amount: 1453.5
Tax Year: 2024
A broker reciprocity listing courtesy: PREMIER PROPERTY SOLUTIONS
Based on information provided by Stellar MLS as distributed by the MLS GRID. Information from the Internet Data Exchange is provided exclusively for consumers’ personal, non-commercial use, and such information may not be used for any purpose other than to identify prospective properties consumers may be interested in purchasing. This data is deemed reliable but is not guaranteed to be accurate by Edina Realty, Inc., or by the MLS. Edina Realty, Inc., is not a multiple listing service (MLS), nor does it offer MLS access.
Copyright 2026 Stellar MLS as distributed by the MLS GRID. All Rights Reserved.
Payment Calculator
Interest rate and annual percentage rate (APR) are based on current market conditions, are for informational purposes only, are subject to change without notice and may be subject to pricing add-ons related to property type, loan amount, loan-to-value, credit score and other variables. Estimated closing costs used in the APR calculation are assumed to be paid by the borrower at closing. If the closing costs are financed, the loan, APR and payment amounts will be higher. If the down payment is less than 20%, mortgage insurance may be required and could increase the monthly payment and APR. Contact us for details. Additional loan programs may be available. Accuracy is not guaranteed, and all products may not be available in all borrower's geographical areas and are based on their individual situation. This is not a credit decision or a commitment to lend.
Sales History & Tax Summary for 6037 Chesham Drive #7
Sales History
| Date | Price | Change |
|---|---|---|
| Currently not available. | ||
Tax Summary
| Tax Year | Estimated Market Value | Total Tax |
|---|---|---|
| Currently not available. | ||
Data powered by ATTOM Data Solutions. Copyright© 2026. Information deemed reliable but not guaranteed.
Schools
Schools nearby 6037 Chesham Drive #7
| Schools in attendance boundaries | Grades | Distance | Rating |
|---|---|---|---|
| Loading... | |||
| Schools nearby | Grades | Distance | Rating |
|---|---|---|---|
| Loading... | |||
Data powered by ATTOM Data Solutions. Copyright© 2026. Information deemed reliable but not guaranteed.
The schools shown represent both the assigned schools and schools by distance based on local school and district attendance boundaries. Attendance boundaries change based on various factors and proximity does not guarantee enrollment eligibility. Please consult your real estate agent and/or the school district to confirm the schools this property is zoned to attend. Information is deemed reliable but not guaranteed.
SchoolDigger ® Rating
The SchoolDigger rating system is a 1-5 scale with 5 as the highest rating. SchoolDigger ranks schools based on test scores supplied by each state's Department of Education. They calculate an average standard score by normalizing and averaging each school's test scores across all tests and grades.
Coming soon properties will soon be on the market, but are not yet available for showings.