6070 80th Street N #215 Saint Petersburg, FL 33709
For Sale MLS# TB8431043
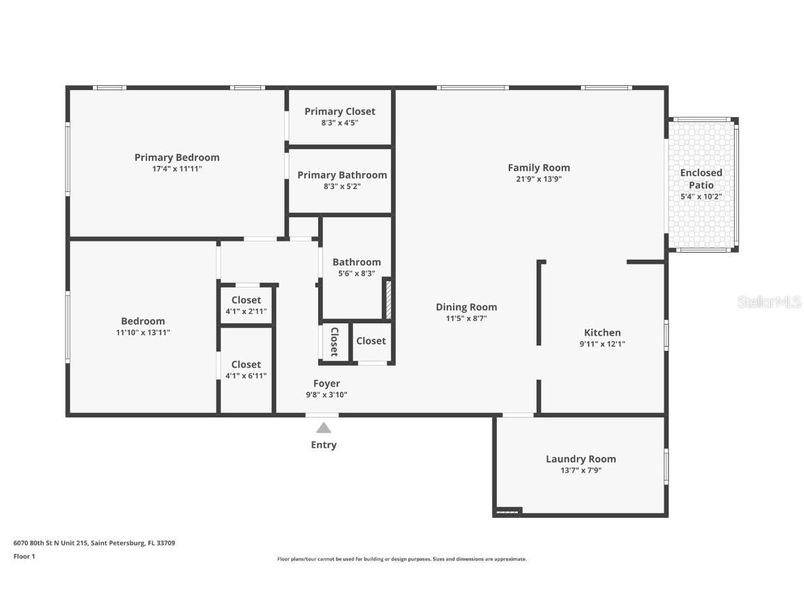
2 beds 2 baths 1,345 sq ft Condo
Details for 6070 80th Street N #215
MLS# TB8431043
Description for 6070 80th Street N #215, Saint Petersburg, FL, 33709
Once Upon a Sunset in St. Petersburg… Nestled quietly at the edge of a shimmering lake, in the heart of the beloved Newport building, a rare gem awaits. This second-floor, end-corner condo isn’t just a home—it’s a front-row seat to nature’s nightly masterpiece. Each evening, the sky blushes with color as great blue herons glide across the water and otters play along the shoreline. From the enclosed balcony, you’ll sip your favorite drink and watch the sun melt into the horizon, painting the lake in hues of gold and lavender. Inside, the story continues. The moment you step through the door, light dances across the open living and dining space, thanks to impact-rated windows that frame the view like artwork. Elegant crown molding adds a touch of sophistication, while wood laminate and tile flooring add both style and ease. The kitchen, with its brick backsplash and stainless-steel suite, is ready for everything from quiet breakfasts to lively dinners with friends. A five-burner range with a griddle invites culinary creativity, and the breakfast bar is the perfect perch for morning coffee and conversation. The primary suite is a sanctuary of its own—spacious, serene, and smartly designed with a custom California-style closet and a walk-in shower built for comfort and accessibility. The guest bedroom is equally inviting, whether for weekend visitors or a cozy home office. And tucked away is a laundry room with generous cabinetry, making everyday tasks feel effortless. But the magic doesn’t end at the front door. Just steps away, the Five Towns community unfolds like a resort: six pools, bubbling hot tubs, tennis courts, shuffleboard, bocce, billiards, card rooms, a library, and more. Stroll the walking paths, fire up the grill at the private barbecue area, or join neighbors for sunset socials. Here, friendships flourish and every day feels like vacation. And beyond the gates? The best of St. Pete beckons. Award-winning beaches, the vibrant downtown arts scene, waterfront dining at the Pier, and endless opportunities to live the Florida dream. Whether you're exploring the Salvador Dalí Museum or biking the Pinellas Trail, adventure is always within reach. This isn’t just a condo. It’s a lifestyle. A story waiting to be lived, and it begins right here, in the Newport Building.
Listing Information
Property Type: Residential, Condominium
Status: Active
Bedrooms: 2
Bathrooms: 2
Lot Size: 2 Acres
Square Feet: 1,345 sq ft
Year Built: 1980
Stories: 1 Story
Construction: Block,Metal Frame
Subdivision: Terrace Park Of Five Towns
Foundation: Slab
County: Pinellas
Room Information
Main Floor
Porch: 5x10
Laundry: 8x14
Bedroom 2: 12x14
Primary Bedroom: 12x17
Kitchen: 10x12
Living Room: 14x22
Dining Room: 9x12
Bathrooms
Full Baths: 2
Additonal Room Information
Laundry: Inside, Laundry Room
Interior Features
Appliances: Washer, Range, Refrigerator, Dishwasher, Disposal, Dryer, Microwave
Flooring: Ceramic Tile,Laminate
Doors/Windows: Blinds
Additional Interior Features: Eat-In Kitchen, Ceiling Fan(s), Walk-In Closet(s), Tray Ceiling(s), Living/Dining Room, Main Level Primary, Crown Molding, Open Floorplan
Utilities
Water: Public
Sewer: Public Sewer
Other Utilities: Cable Available,Cable Connected,Electricity Connected,Natural Gas Connected,High Speed Internet Available,Sewer Connected,Underground Utilities
Cooling: Ceiling Fan(s), Central Air
Heating: Central, Natural Gas
Exterior / Lot Features
Parking Description: Off Street, Guest
Roof: Other
Pool: Gunite, Community, In Ground
Additional Exterior/Lot Features: Sprinkler/Irrigation, Other, Storage, Tennis Court(s), Lighting, Buyer Approval Required
Community Features
Community Features: Fitness, Sidewalks, Pool, Tennis Court(s), Clubhouse, Handicap Access, Street Lights
Security Features: Fire Hydrant(s)
HOA Dues Include: Pool(s), Maintenance Structure, Insurance, Common Areas, Association Management, Maintenance Grounds, Reserve Fund, Road Maintenance, Cable TV, Gas, Internet, Other, Water, Trash, Security, Sewer, Taxes, Recreation Facilities
Driving Directions
From Park St N, turn right onto 62nd Ave N, right onto Terrace Garden Dr, onto 80th St N, quick left onto 60th, turn left into parking lot
Financial Considerations
Terms: Cash,Conventional
Tax/Property ID: 36-30-15-90333-000-2150
Tax Amount: 2831.35
Tax Year: 2024
A broker reciprocity listing courtesy: BEACH HOMES REALTY
Based on information provided by Stellar MLS as distributed by the MLS GRID. Information from the Internet Data Exchange is provided exclusively for consumers’ personal, non-commercial use, and such information may not be used for any purpose other than to identify prospective properties consumers may be interested in purchasing. This data is deemed reliable but is not guaranteed to be accurate by Edina Realty, Inc., or by the MLS. Edina Realty, Inc., is not a multiple listing service (MLS), nor does it offer MLS access.
Copyright 2025 Stellar MLS as distributed by the MLS GRID. All Rights Reserved.
Payment Calculator
Interest rate and annual percentage rate (APR) are based on current market conditions, are for informational purposes only, are subject to change without notice and may be subject to pricing add-ons related to property type, loan amount, loan-to-value, credit score and other variables. Estimated closing costs used in the APR calculation are assumed to be paid by the borrower at closing. If the closing costs are financed, the loan, APR and payment amounts will be higher. If the down payment is less than 20%, mortgage insurance may be required and could increase the monthly payment and APR. Contact us for details. Additional loan programs may be available. Accuracy is not guaranteed, and all products may not be available in all borrower's geographical areas and are based on their individual situation. This is not a credit decision or a commitment to lend.
Sales History & Tax Summary for 6070 80th Street N #215
Sales History
| Date | Price | Change |
|---|---|---|
| Currently not available. | ||
Tax Summary
| Tax Year | Estimated Market Value | Total Tax |
|---|---|---|
| Currently not available. | ||
Data powered by ATTOM Data Solutions. Copyright© 2025. Information deemed reliable but not guaranteed.
Schools
Schools nearby 6070 80th Street N #215
| Schools in attendance boundaries | Grades | Distance | Rating |
|---|---|---|---|
| Loading... | |||
| Schools nearby | Grades | Distance | Rating |
|---|---|---|---|
| Loading... | |||
Data powered by ATTOM Data Solutions. Copyright© 2025. Information deemed reliable but not guaranteed.
The schools shown represent both the assigned schools and schools by distance based on local school and district attendance boundaries. Attendance boundaries change based on various factors and proximity does not guarantee enrollment eligibility. Please consult your real estate agent and/or the school district to confirm the schools this property is zoned to attend. Information is deemed reliable but not guaranteed.
SchoolDigger ® Rating
The SchoolDigger rating system is a 1-5 scale with 5 as the highest rating. SchoolDigger ranks schools based on test scores supplied by each state's Department of Education. They calculate an average standard score by normalizing and averaging each school's test scores across all tests and grades.
Coming soon properties will soon be on the market, but are not yet available for showings.