6096 Jasmine Vine Drive Port Orange, FL 32128
For Sale MLS# V4944242
3 beds 2 baths 1,742 sq ft Single Family
Details for 6096 Jasmine Vine Drive
MLS# V4944242
Description for 6096 Jasmine Vine Drive, Port Orange, FL, 32128
The sellers are putting a clearcoat on the garage floor, a new refrigerator, along with a washer and dryer to be sold with the house. Welcome to The Sanctuary on Spruce Creek - Where Comfort Meets Peace of Mind! Nestled in one of Port Orange's most sought-after gated communities, this well-maintained home offers the perfect blend of convenience, charm, and security. Ideally located near A-rated schools, shopping, dining, and only a 20-minute drive to the beach, you'll enjoy the best of Florida living in this established and beautifully landscaped neighborhood. Built to stringent Dade County hurricane codes and featuring a reinforced garage door, this home was designed with durability in mind. Recent updates and features include storm panels for windows, a Bryant 3-ton 16 SEER heat pump installed in 2019, and a propane fireplace with a new burner installed in 2020. The thoughtful upgrades continue outside, with gutters in both the front and back to prevent pooling, a 3-phase irrigation system using reclaimed water, and a serene outdoor living space. Enjoy a spacious 12'x14' screened porch that flows onto a 12'x12' patioperfect for grilling and relaxing. Inside, the kitchen boasts appliances from 2017, complemented by a reverse osmosis water system connected to the refrigerator and icemaker. The roof is from 2013, and fresh interior paint and carpet mean there's truly nothing left to do but move in. Hardwired smoke detectors, plus two smoke and carbon monoxide detectors with 10-year batteries installed in 2020, add another layer of safety. With its ideal location, quality construction, and long list of updates, this home in The Sanctuary on Spruce Creek offers both comfort and confidence for years to come.
Listing Information
Property Type: Residential, Single Family Residence
Status: Active
Bedrooms: 3
Bathrooms: 2
Lot Size: 0.20 Acres
Square Feet: 1,742 sq ft
Year Built: 1996
Garage: Yes
Stories: 1 Story
Construction: Block,Concrete,Stucco
Subdivision: Sanctuary At Spruce Creek Lts 01-97
Foundation: Slab
County: Volusia
School Information
Elementary: Cypress Creek Elementary
Middle: Creekside Middle
High: Spruce Creek High School
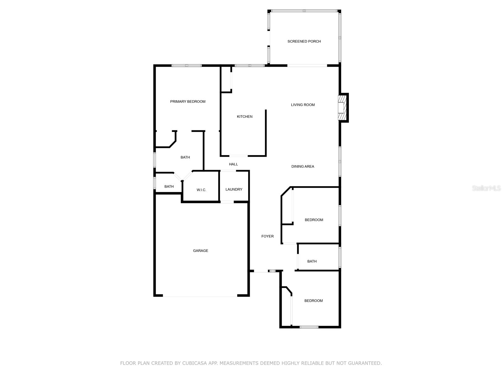
Room Information
Main Floor
Laundry: 6.3x6
Dining Room: 9.8x15.4
Living Room: 15.9x15.4
Kitchen: 18.1x9.7
Bedroom 3: 11.7x12
Bedroom 2: 11.8x12
Primary Bedroom: 13.6x13.7
Bathrooms
Full Baths: 2
Additonal Room Information
Laundry: Inside, Laundry Room, Washer Hookup, Electric Dryer Hookup
Interior Features
Appliances: Electric Water Heater, Dishwasher, Range, Refrigerator, Microwave
Flooring: Carpet,Tile
Fireplaces: Gas, Living Room
Additional Interior Features: Vaulted Ceiling(s), Eat-In Kitchen, Ceiling Fan(s), Split Bedrooms, Walk-In Closet(s), Main Level Primary, Open Floorplan
Utilities
Water: Public
Sewer: Public Sewer
Other Utilities: Electricity Connected,Sewer Connected,Water Connected
Cooling: Ceiling Fan(s), Central Air
Heating: Electric, Central
Exterior / Lot Features
Attached Garage: Attached Garage
Garage Spaces: 2
Roof: Shingle
Additional Exterior/Lot Features: Storm/Security Shutters, Sprinkler/Irrigation, Front Porch, Screened, Rear Porch, Covered, Patio, Porch
Community Features
Association Amenities: Gated, Maintenance Grounds
Homeowners Association: Yes
HOA Dues: $875 / Annually
Driving Directions
From I-95 heading south, take exit 256 for FL-421 E/Port Orange. Then turn right onto Taylor Rd and turn left onto S Williamson Blvd. Turn right onto Roscoe Turner Trail, turn right on Jasmine Vine Drive, then left on Jasmine Vine Drive. House is on left side.
Financial Considerations
Terms: Cash,Conventional,FHA,VA Loan
Tax/Property ID: 63-30-06-00-09-0000
Tax Amount: 6192.44
Tax Year: 2024
A broker reciprocity listing courtesy: KELLER WILLIAMS RLTY FL. PARTN
Based on information provided by Stellar MLS as distributed by the MLS GRID. Information from the Internet Data Exchange is provided exclusively for consumers’ personal, non-commercial use, and such information may not be used for any purpose other than to identify prospective properties consumers may be interested in purchasing. This data is deemed reliable but is not guaranteed to be accurate by Edina Realty, Inc., or by the MLS. Edina Realty, Inc., is not a multiple listing service (MLS), nor does it offer MLS access.
Copyright 2026 Stellar MLS as distributed by the MLS GRID. All Rights Reserved.
Payment Calculator
Interest rate and annual percentage rate (APR) are based on current market conditions, are for informational purposes only, are subject to change without notice and may be subject to pricing add-ons related to property type, loan amount, loan-to-value, credit score and other variables. Estimated closing costs used in the APR calculation are assumed to be paid by the borrower at closing. If the closing costs are financed, the loan, APR and payment amounts will be higher. If the down payment is less than 20%, mortgage insurance may be required and could increase the monthly payment and APR. Contact us for details. Additional loan programs may be available. Accuracy is not guaranteed, and all products may not be available in all borrower's geographical areas and are based on their individual situation. This is not a credit decision or a commitment to lend.
Sales History & Tax Summary for 6096 Jasmine Vine Drive
Sales History
| Date | Price | |
|---|---|---|
| Currently not available. | ||
Tax Summary
| Tax Year | Estimated Market Value | Total Tax |
|---|---|---|
| Currently not available. | ||
Data powered by ATTOM Data Solutions. Copyright© 2026. Information deemed reliable but not guaranteed.
Schools
Schools nearby 6096 Jasmine Vine Drive
| Schools in attendance boundaries | Grades | Distance | Rating |
|---|---|---|---|
| Loading... | |||
| Schools nearby | Grades | Distance | Rating |
|---|---|---|---|
| Loading... | |||
Data powered by ATTOM Data Solutions. Copyright© 2026. Information deemed reliable but not guaranteed.
The schools shown represent both the assigned schools and schools by distance based on local school and district attendance boundaries. Attendance boundaries change based on various factors and proximity does not guarantee enrollment eligibility. Please consult your real estate agent and/or the school district to confirm the schools this property is zoned to attend. Information is deemed reliable but not guaranteed.
SchoolDigger ® Rating
The SchoolDigger rating system is a 1-5 scale with 5 as the highest rating. SchoolDigger ranks schools based on test scores supplied by each state's Department of Education. They calculate an average standard score by normalizing and averaging each school's test scores across all tests and grades.
Coming soon properties will soon be on the market, but are not yet available for showings.