610 Cranes Way #207 Altamonte Springs, FL 32701
For Sale MLS# O6380077
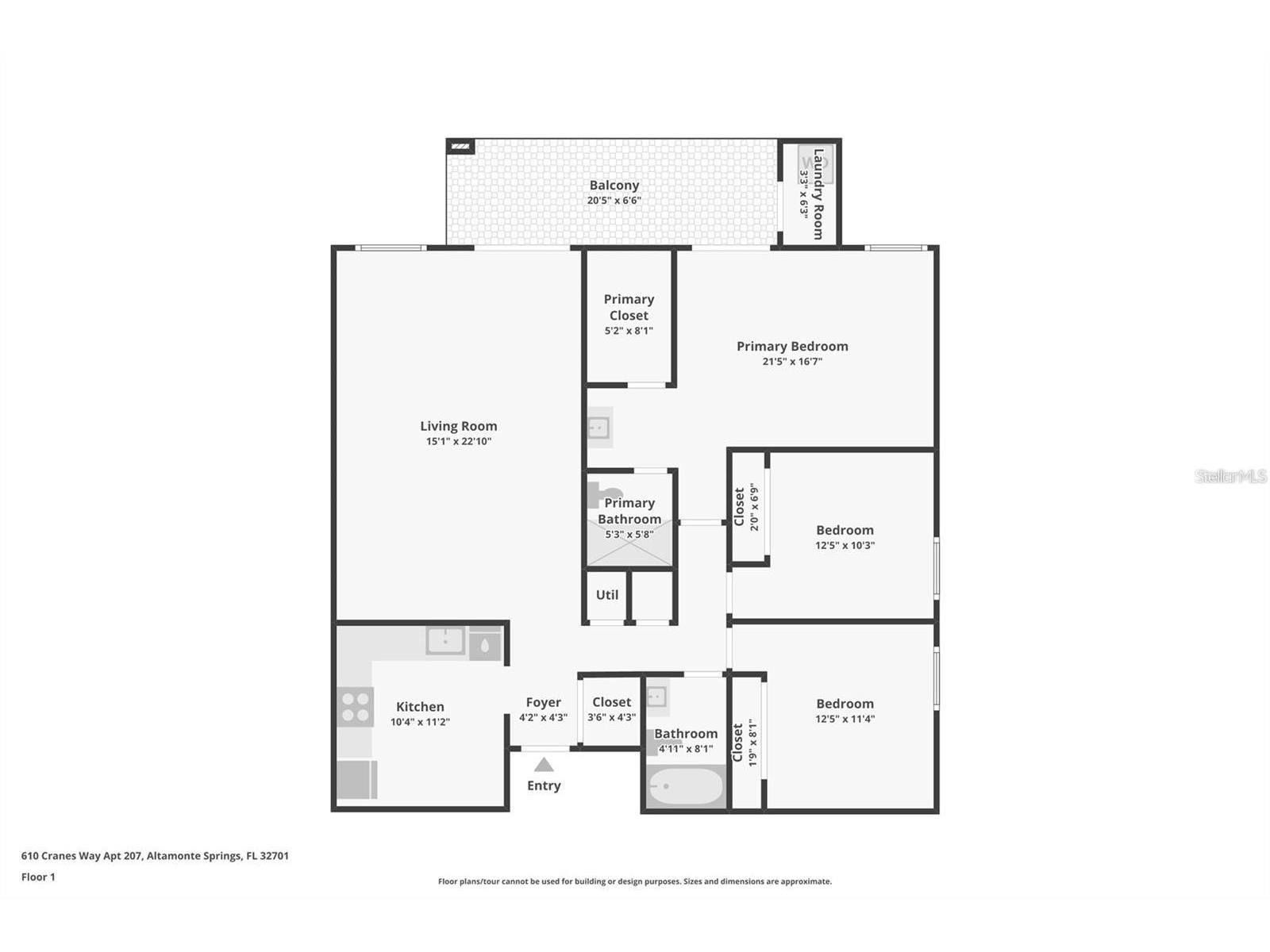
3 beds 2 baths 1,341 sq ft Condo
Details for 610 Cranes Way #207
MLS# O6380077
Description for 610 Cranes Way #207, Altamonte Springs, FL, 32701
Enjoy low-maintenance living in this beautifully updated 3-bedroom, 2-bath second floor condo in Cranes Roost Village, Altamonte Springs. Just minutes from Cranes Roost Park, Uptown Altamonte, Whole Foods, and the Altamonte Mall, this home offers the perfect blend of convenience and tranquility. Inside, you'll find 1,341 sq. ft. of open living space with a renovated kitchen and modern appliances. The spacious primary suite includes a walk-in closet, updated bath with walk-in shower, and private access to a large screened patio overlooking peaceful greenery. Additional highlights include two guest bedrooms, in-unit laundry, elevator access, assigned parking, and community amenities like a pool and tennis courts. Move-in ready and available for a quick close—schedule your showing today!
Listing Information
Property Type: Residential, Condominium
Status: Active
Bedrooms: 3
Bathrooms: 2
Lot Size: 0.01 Acres
Square Feet: 1,341 sq ft
Year Built: 1980
Stories: 1 Story
Construction: Wood Frame
Subdivision: Cranes Roost Village 5
Foundation: Block,Slab
County: Seminole
Room Information
Main Floor
Bedroom 3: 11x11
Bedroom 2: 9x10
Primary Bedroom: 15x11
Kitchen: 10x11
Living Room: 14x22
Bathrooms
Full Baths: 2
Additonal Room Information
Laundry: Laundry Closet
Interior Features
Appliances: Electric Water Heater, Range, Refrigerator, Dishwasher
Flooring: Engineered Hardwood,Laminate,Tile
Doors/Windows: Blinds
Accessibility: Wheelchair Access
Additional Interior Features: Living/Dining Room, Open Floorplan, Walk-In Closet(s)
Utilities
Water: Public
Sewer: Public Sewer
Other Utilities: Cable Available,Electricity Connected,High Speed Internet Available,Municipal Utilities,Sewer Connected
Cooling: Central Air
Heating: Central
Exterior / Lot Features
Parking Description: Assigned, Guest
Roof: Shingle
Pool: Association, Community
Additional Exterior/Lot Features: Rear Porch, City Lot
Community Features
Community Features: Handicap Access, Sidewalks, Pool, Tennis Court(s)
Association Amenities: Clubhouse, Tennis Court(s), Pool, Elevator(s)
HOA Dues Include: Trash, Taxes, Pool(s), Sewer, Common Areas
Homeowners Association: Yes
HOA Dues: $660 / Monthly
Driving Directions
436 to Palm Springs Drive, North to E Central Pkwy, Right to Cranes Way Turn right. Go to 3rd left turn. Building 610, go to second floor and you will see unit 207.
Financial Considerations
Terms: Cash,Conventional
Tax/Property ID: 11-21-29-522-0000-2070
Tax Amount: 3183.11
Tax Year: 2024
A broker reciprocity listing courtesy: SOTERA LIVING
Based on information provided by Stellar MLS as distributed by the MLS GRID. Information from the Internet Data Exchange is provided exclusively for consumers’ personal, non-commercial use, and such information may not be used for any purpose other than to identify prospective properties consumers may be interested in purchasing. This data is deemed reliable but is not guaranteed to be accurate by Edina Realty, Inc., or by the MLS. Edina Realty, Inc., is not a multiple listing service (MLS), nor does it offer MLS access.
Copyright 2026 Stellar MLS as distributed by the MLS GRID. All Rights Reserved.
Payment Calculator
Interest rate and annual percentage rate (APR) are based on current market conditions, are for informational purposes only, are subject to change without notice and may be subject to pricing add-ons related to property type, loan amount, loan-to-value, credit score and other variables. Estimated closing costs used in the APR calculation are assumed to be paid by the borrower at closing. If the closing costs are financed, the loan, APR and payment amounts will be higher. If the down payment is less than 20%, mortgage insurance may be required and could increase the monthly payment and APR. Contact us for details. Additional loan programs may be available. Accuracy is not guaranteed, and all products may not be available in all borrower's geographical areas and are based on their individual situation. This is not a credit decision or a commitment to lend.
Sales History & Tax Summary for 610 Cranes Way #207
Sales History
| Date | Price | |
|---|---|---|
| Currently not available. | ||
Tax Summary
| Tax Year | Estimated Market Value | Total Tax |
|---|---|---|
| Currently not available. | ||
Data powered by ATTOM Data Solutions. Copyright© 2026. Information deemed reliable but not guaranteed.
Schools
Schools nearby 610 Cranes Way #207
| Schools in attendance boundaries | Grades | Distance | Rating |
|---|---|---|---|
| Loading... | |||
| Schools nearby | Grades | Distance | Rating |
|---|---|---|---|
| Loading... | |||
Data powered by ATTOM Data Solutions. Copyright© 2026. Information deemed reliable but not guaranteed.
The schools shown represent both the assigned schools and schools by distance based on local school and district attendance boundaries. Attendance boundaries change based on various factors and proximity does not guarantee enrollment eligibility. Please consult your real estate agent and/or the school district to confirm the schools this property is zoned to attend. Information is deemed reliable but not guaranteed.
SchoolDigger ® Rating
The SchoolDigger rating system is a 1-5 scale with 5 as the highest rating. SchoolDigger ranks schools based on test scores supplied by each state's Department of Education. They calculate an average standard score by normalizing and averaging each school's test scores across all tests and grades.
Coming soon properties will soon be on the market, but are not yet available for showings.