610 Riviera Dunes Way #503 Palmetto, FL 34221
For Sale MLS# A4653467
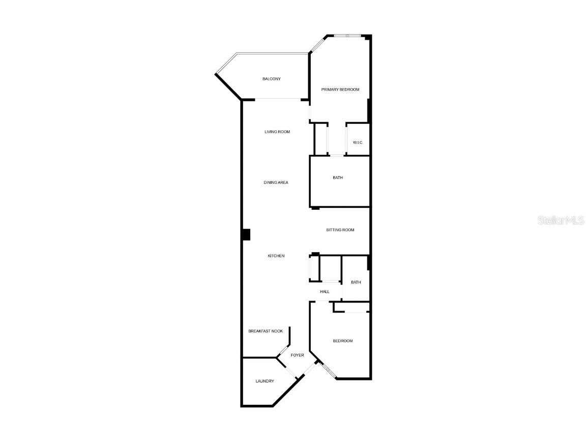
2 beds 2 baths 1,701 sq ft Condo
Details for 610 Riviera Dunes Way #503
MLS# A4653467
Description for 610 Riviera Dunes Way #503, Palmetto, FL, 34221
Rare 5th floor condo in an exclusive 7 floor building with a two story penthouse above it offering expansive, unobstructed water views with no parking lot exposure and no trees blocking the scenery. This fully renovated 2-bedroom, 2-bath home with a flex room perfect for an office, den or extra room is completely move-in ready after a full high end contractor-completed renovation where walls, ceilings, plumbing, electrical, lighting, kitchen, and bathrooms were replaced and a wall removed for an open layout. Features include new floor-to-ceiling 3-panel hurricane-impact sliders, imported Italian countertops, Cambria quartz, hidden Fisher Paykel and Monogram appliances, Kohler sink, Grohe and Kohler fixtures, porcelain flooring, LED lighting, custom coffee bar, custom wine bar with fridge, full-size stackable washer/dryer, custom bar stools, brand new HVAC, and a 2025 roof. No need to stress about mold. Chinese drywall and 17 year old appliances and bathtubs are gone. This home is surrounded by green spaces with biking and walking paths, community pool, clubhouse, fitness gym in a gated community with a live guard, this home offers a resort-style lifestyle in one of Florida’s most protected boating harbors. Call to see this home today!
Listing Information
Property Type: Residential, Condominium
Status: Active
Bedrooms: 2
Bathrooms: 2
Lot Size: 1.51 Acres
Square Feet: 1,701 sq ft
Year Built: 2004
Stories: 1 Story
Construction: Concrete,Stucco
Subdivision: Laguna At Riviera Dunes I
Foundation: Slab
County: Manatee
Room Information
Main Floor
Bedroom 2: 13.11x11.8
Office: 9.3x12
Kitchen: 18.6x13.2
Primary Bedroom: 22.5x11.8
Living Room: 10.8x14.1
Bathrooms
Full Baths: 2
Additonal Room Information
Laundry: Inside, Laundry Room
Interior Features
Appliances: Wine Refrigerator, Built-In Oven, Refrigerator, Washer, Dishwasher, Disposal, Dryer
Flooring: Porcelain Tile
Additional Interior Features: Wet Bar, Walk-In Closet(s), Ceiling Fan(s), Living/Dining Room, Dry Bar, Open Floorplan
Utilities
Water: Public
Sewer: Public Sewer
Other Utilities: Cable Available,Electricity Connected
Cooling: Ceiling Fan(s), Central Air
Heating: Central
Exterior / Lot Features
Parking Description: Electric Vehicle Charging Station(s), Covered
Roof: Concrete
Pool: Community, Association
Lot View: Marina,River,Water
Additional Exterior/Lot Features: Tennis Court(s), Landscaped
Waterfront Details
Water Front Features: River Access
Community Features
Community Features: Pool, Sidewalks, River, Tennis Court(s), Clubhouse, Waterfront, Gated, Marina, Fishing, Fitness
Security Features: Fire Sprinkler System, Gated Community, Gated with Guard, Smoke Detector(s)
Association Amenities: Security, Spa/Hot Tub, Trail(s), Tennis Court(s), Clubhouse, Pool, Elevator(s), Gated
HOA Dues Include: Reserve Fund, Road Maintenance, Maintenance Grounds, Pest Control, Sewer, Maintenance Structure, Common Areas, Pool(s), Trash, Taxes, Security
Homeowners Association: Yes
HOA Dues: $629 / Quarterly
Driving Directions
I 75 to FL-64 W to 1st St E in Palmetto. Follow 1st St E and Riviera Dunes Way to your destination
Financial Considerations
Terms: Cash,Conventional,FHA,VA Loan
Tax/Property ID: 2581626759
Tax Amount: 4215
Tax Year: 2024
A broker reciprocity listing courtesy: DREAMIFY REAL ESTATE LLC
Based on information provided by Stellar MLS as distributed by the MLS GRID. Information from the Internet Data Exchange is provided exclusively for consumers’ personal, non-commercial use, and such information may not be used for any purpose other than to identify prospective properties consumers may be interested in purchasing. This data is deemed reliable but is not guaranteed to be accurate by Edina Realty, Inc., or by the MLS. Edina Realty, Inc., is not a multiple listing service (MLS), nor does it offer MLS access.
Copyright 2026 Stellar MLS as distributed by the MLS GRID. All Rights Reserved.
Payment Calculator
Interest rate and annual percentage rate (APR) are based on current market conditions, are for informational purposes only, are subject to change without notice and may be subject to pricing add-ons related to property type, loan amount, loan-to-value, credit score and other variables. Estimated closing costs used in the APR calculation are assumed to be paid by the borrower at closing. If the closing costs are financed, the loan, APR and payment amounts will be higher. If the down payment is less than 20%, mortgage insurance may be required and could increase the monthly payment and APR. Contact us for details. Additional loan programs may be available. Accuracy is not guaranteed, and all products may not be available in all borrower's geographical areas and are based on their individual situation. This is not a credit decision or a commitment to lend.
Sales History & Tax Summary for 610 Riviera Dunes Way #503
Sales History
| Date | Price | |
|---|---|---|
| Currently not available. | ||
Tax Summary
| Tax Year | Estimated Market Value | Total Tax |
|---|---|---|
| Currently not available. | ||
Data powered by ATTOM Data Solutions. Copyright© 2026. Information deemed reliable but not guaranteed.
Schools
Schools nearby 610 Riviera Dunes Way #503
| Schools in attendance boundaries | Grades | Distance | Rating |
|---|---|---|---|
| Loading... | |||
| Schools nearby | Grades | Distance | Rating |
|---|---|---|---|
| Loading... | |||
Data powered by ATTOM Data Solutions. Copyright© 2026. Information deemed reliable but not guaranteed.
The schools shown represent both the assigned schools and schools by distance based on local school and district attendance boundaries. Attendance boundaries change based on various factors and proximity does not guarantee enrollment eligibility. Please consult your real estate agent and/or the school district to confirm the schools this property is zoned to attend. Information is deemed reliable but not guaranteed.
SchoolDigger ® Rating
The SchoolDigger rating system is a 1-5 scale with 5 as the highest rating. SchoolDigger ranks schools based on test scores supplied by each state's Department of Education. They calculate an average standard score by normalizing and averaging each school's test scores across all tests and grades.
Coming soon properties will soon be on the market, but are not yet available for showings.