6100 Stevenson Drive #104 Orlando, FL 32835
For Sale MLS# O6362457
3 beds 2 baths 1,408 sq ft Condo
Details for 6100 Stevenson Drive #104
MLS# O6362457
Description for 6100 Stevenson Drive #104, Orlando, FL, 32835
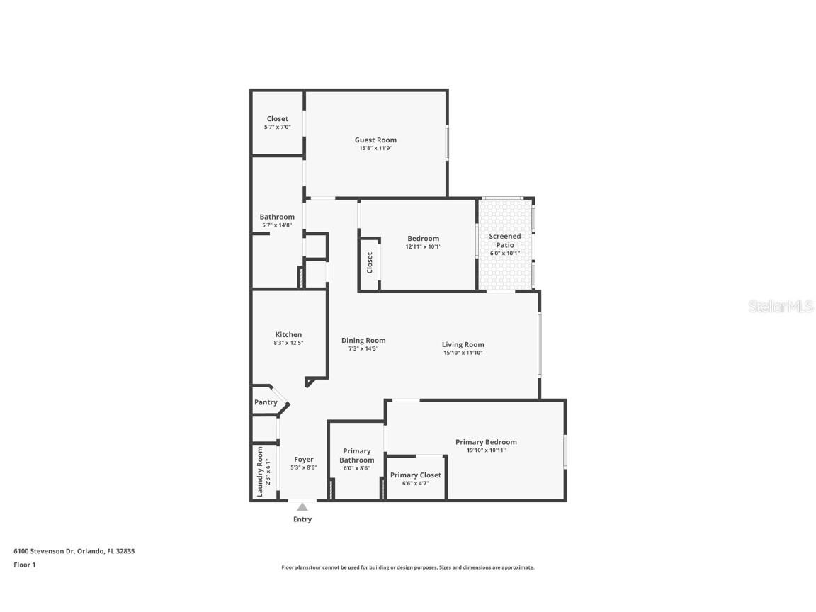
Welcome to this IMPECCABLY kept, MOVE-IN ready first floor condominium located in the sought after community of Horizons At Stonebridge Place in MetroWest. This 3 bedroom, 2 bathroom unit is one of the larger units in the community with just over 1,400 heated living square feet. It features: all new interior paint, new Luxury Vinyl Plank Flooring in the living/Dining room and all the bedrooms, tile flooring in the foyer, hallways and kitchen, ceiling fans in the living room and all the bedrooms, a newer walk-in shower in the 2nd bathroom (2024) and walk-in closets in the primary bedroom and 2nd bedroom. You can also step outside and enjoy the 12 x 08 screened enclosed front patio. The major components: A/C + dehumidifier (2024), Water Heater (2021), appliances (refrigerator, stove and microwave) 2024 and CPVC plumbing.
Listing Information
Property Type: Residential, Condominium
Status: Active
Bedrooms: 3
Bathrooms: 2
Lot Size: 0.35 Acres
Square Feet: 1,408 sq ft
Year Built: 2003
Stories: 1 Story
Construction: Block,Stucco
Construction Display: New Construction
Subdivision: Horizons/Stonebridgeplace Ph
Foundation: Slab
County: Orange
Construction Status: New Construction
School Information
Elementary: Windy Ridge Elem
Middle: Chain Of Lakes Middle
High: Olympia High
Room Information
Main Floor
Porch: 8x12
Bedroom 3: 10x10
Bedroom 2: 12x15
Primary Bedroom: 11x13
Kitchen: 8x12
Living Room: 12x24
Bathrooms
Full Baths: 2
Additonal Room Information
Laundry: Laundry Closet
Interior Features
Appliances: Electric Water Heater, Range, Refrigerator, Washer, Dishwasher, Disposal, Dryer
Flooring: Ceramic Tile,Luxury Vinyl
Additional Interior Features: Ceiling Fan(s), Split Bedrooms, Walk-In Closet(s)
Utilities
Water: Public
Sewer: Public Sewer
Other Utilities: Electricity Connected
Cooling: Ceiling Fan(s), Central Air
Heating: Central, Electric
Exterior / Lot Features
Parking Description: Assigned
Roof: Shingle
Pool: Community, Association
Additional Exterior/Lot Features: Sprinkler/Irrigation, Screened, Covered, Porch, Landscaped
Community Features
Community Features: Pool, Clubhouse, Gated, Fitness, Community Mailbox
Security Features: Gated Community
Association Amenities: Pool, Gated, Fitness Center, Clubhouse
HOA Dues Include: Maintenance Grounds, Maintenance Structure, Pool(s), Water, Road Maintenance
Driving Directions
From Kirkman Rd. turn West. At the first stop sign turn Right onto Emerson Lane. When through the gate turn right onto Twain St., turn Right onto Dante Dr., turn Left onto Stevenson Dr.. The building will be a little ways on the Right. Building 6100, enter the hallway, unit 104 will be on your right.
Financial Considerations
Terms: Cash,Conventional,FHA,VA Loan
Tax/Property ID: 01-23-28-3628-05-104
Tax Amount: 1079.86
Tax Year: 2024
A broker reciprocity listing courtesy: VICARI REALTY CORP
Based on information provided by Stellar MLS as distributed by the MLS GRID. Information from the Internet Data Exchange is provided exclusively for consumers’ personal, non-commercial use, and such information may not be used for any purpose other than to identify prospective properties consumers may be interested in purchasing. This data is deemed reliable but is not guaranteed to be accurate by Edina Realty, Inc., or by the MLS. Edina Realty, Inc., is not a multiple listing service (MLS), nor does it offer MLS access.
Copyright 2026 Stellar MLS as distributed by the MLS GRID. All Rights Reserved.
Payment Calculator
Interest rate and annual percentage rate (APR) are based on current market conditions, are for informational purposes only, are subject to change without notice and may be subject to pricing add-ons related to property type, loan amount, loan-to-value, credit score and other variables. Estimated closing costs used in the APR calculation are assumed to be paid by the borrower at closing. If the closing costs are financed, the loan, APR and payment amounts will be higher. If the down payment is less than 20%, mortgage insurance may be required and could increase the monthly payment and APR. Contact us for details. Additional loan programs may be available. Accuracy is not guaranteed, and all products may not be available in all borrower's geographical areas and are based on their individual situation. This is not a credit decision or a commitment to lend.
Sales History & Tax Summary for 6100 Stevenson Drive #104
Sales History
| Date | Price | |
|---|---|---|
| Currently not available. | ||
Tax Summary
| Tax Year | Estimated Market Value | Total Tax |
|---|---|---|
| Currently not available. | ||
Data powered by ATTOM Data Solutions. Copyright© 2026. Information deemed reliable but not guaranteed.
Schools
Schools nearby 6100 Stevenson Drive #104
| Schools in attendance boundaries | Grades | Distance | Rating |
|---|---|---|---|
| Loading... | |||
| Schools nearby | Grades | Distance | Rating |
|---|---|---|---|
| Loading... | |||
Data powered by ATTOM Data Solutions. Copyright© 2026. Information deemed reliable but not guaranteed.
The schools shown represent both the assigned schools and schools by distance based on local school and district attendance boundaries. Attendance boundaries change based on various factors and proximity does not guarantee enrollment eligibility. Please consult your real estate agent and/or the school district to confirm the schools this property is zoned to attend. Information is deemed reliable but not guaranteed.
SchoolDigger ® Rating
The SchoolDigger rating system is a 1-5 scale with 5 as the highest rating. SchoolDigger ranks schools based on test scores supplied by each state's Department of Education. They calculate an average standard score by normalizing and averaging each school's test scores across all tests and grades.
Coming soon properties will soon be on the market, but are not yet available for showings.