$1,190,000
6107 Marbella Boulevard Apollo Beach, FL 33572 - ANDALUCIA CANAL
For Sale MLS# TB8487718
4 beds 5 baths 5,206 sq ft Single Family
Details for 6107 Marbella Boulevard
MLS# TB8487718
Description for 6107 Marbella Boulevard, Apollo Beach, FL, 33572 - ANDALUCIA CANAL
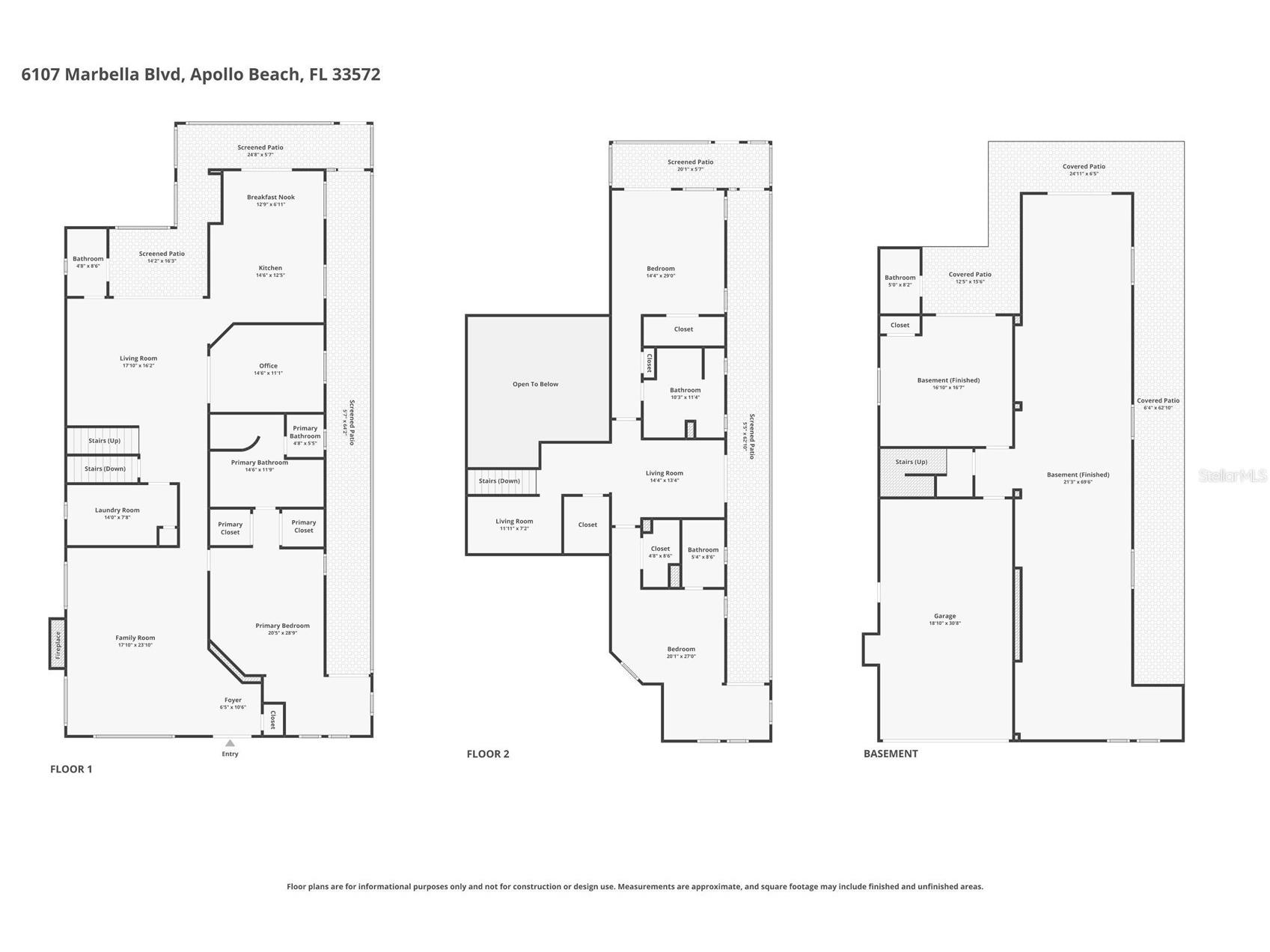
6107 Marbella Blvd, Apollo Beach, FL 4 Bedrooms 5 Bathrooms 5,206 Sq Ft Canal Front Private Dock & Lift Gated Andalucia Located in the guard-gated waterfront community of Andalucia, this custom-built 4-bedroom, 5-bath canal-front residence offers over 5,200 square feet of living space with direct access to Tampa Bay. Positioned on a deep-water canal, the property includes a private dock with boat lift, making it ideal for boating and waterfront living. The home is situated directly across the street from the community clubhouse, pool, and tennis courts, offering convenient access to amenities just steps from your front door. Designed with a unique Feng Shui-inspired layout, the home includes a den, loft, studio, and expansive recreation room, providing flexibility for both everyday living and entertaining. The interior features soaring ceilings, marble flooring, and abundant natural light throughout, with water views from nearly every room. The family room and den are enhanced with custom-built mahogany shelving, creating warm, functional spaces for both relaxation and work. The loft includes a custom built-in bar, adding another space for entertaining. Multiple levels and living areas create separation and flow, while balconies capture canal views and partial views of Tampa Bay. The kitchen is equipped with granite countertops, stainless steel appliances, and a center island, opening to the main living areas and outdoor spaces. This home offers two primary suites, each designed as a private retreat with sitting areas overlooking the canal, large walk-in closets, whirlpool soaking tubs, and walk-in showers. A third bedroom also features its own en suite bathroom, providing additional privacy and comfort for guests or family. Outdoor living is central to the home, with multiple balconies and gathering areas designed to take advantage of the waterfront setting. The private dock provides quick access to Tampa Bay and features bench seating and underwater green lighting for a unique nighttime ambiance, creating an ideal setting to relax, entertain, or watch marine life. A six-person jacuzzi overlooking the canal, ping pong table, and pool table are included, offering additional entertainment and value. Additional features include a tile roof (2023), updated HVAC systems, circular paver driveway, and a 2-car garage. Andalucia is a 24-hour guard-gated waterfront community known for its custom homes, privacy, and boating access. Residents enjoy a private marina with deep-water access to Tampa Bay and the Gulf, clubhouse and pool, tennis courts, playground, and a scenic waterfront pier with sunset views. The neighborhood is golf-cart-friendly and conveniently located near waterfront dining, beaches, and commuter routes to Tampa. This is an opportunity to own a waterfront home in one of Apollo Beach’s most established gated communities, offering space, flexibility, direct boating access, and immediate proximity to community amenities.
Listing Information
Property Type: Residential, Single Family Residence
Status: Active
Bedrooms: 4
Bathrooms: 5
Lot Size: 0.35 Acres
Square Feet: 5,206 sq ft
Year Built: 1993
Garage: Yes
Stories: 3 Story
Construction: Block,Stucco
Construction Display: New Construction
Subdivision: The Villas At Andalucia
Foundation: Slab
County: Hillsborough
Construction Status: New Construction
School Information
Elementary: Apollo Beach-Hb
Middle: Eisenhower-Hb
High: Lennard-Hb
Room Information
Main Floor
Game Room: 70x21
Bedroom 4: 17x17
Upper Floor
Dinette: 7x13
Kitchen: 12x14
Family Room: 16x18
Dining Room: 11x18
Living Room: 13x21
Bedroom 3: 27x20
Bedroom 2: 29x14
Bonus Room: 7x12
Loft: 13x14
Primary Bathroom: 12x14
Primary Bedroom: 29x20
Den: 11x14
Bathrooms
Full Baths: 5
Additonal Room Information
Laundry: Inside, Washer Hookup, Laundry Chute, Laundry Room
Interior Features
Appliances: Bar Fridge, Exhaust Fan, Wine Refrigerator, Electric Water Heater, Built-In Oven, Water Softener, Refrigerator, Microwave, Dishwasher, Disposal, Cooktop
Flooring: Luxury Vinyl,Marble,Tile,Travertine
Basement: Finished, Daylight
Doors/Windows: Blinds, Window Treatments
Fireplaces: Living Room, Wood Burning
Additional Interior Features: Loft, Walk-In Closet(s), Split Bedrooms, High Ceilings, Living/Dining Room, Window Treatments, Built-in Features, Cathedral Ceiling(s), Ceiling Fan(s), Central Vacuum, Wet Bar, Eat-In Kitchen, Open Floorplan, Separate/Formal Living Room, Stone Counters
Utilities
Water: Public
Sewer: Public Sewer
Other Utilities: Cable Available,Electricity Connected,Fiber Optic Available,High Speed Internet Available,Municipal Utilities,Sewer Connected,Underground Utilities
Cooling: Ceiling Fan(s), Central Air, Ductless
Heating: Heat Pump, Central
Exterior / Lot Features
Attached Garage: Attached Garage
Garage Spaces: 2
Parking Description: Garage, Off Street, Garage Door Opener, driveway, Circular Driveway
Roof: Tile
Pool: Community, Association
Lot View: Bay,Canal,Park/Greenbelt,Tennis Court,Water
Lot Dimensions: 65x180
Additional Exterior/Lot Features: Storm/Security Shutters, Private Yard, Rain Gutters, French Patio Doors, Outdoor Grill, Sprinkler/Irrigation, Balcony, Courtyard, Lighting, Screened, Balcony, Covered, Patio, Front Porch, Rear Porch, Side Porch, Wrap Around, Flat, Level, Landscaped, Private Road, Oversized Lot, Flood Zone, Outside City Limits
Waterfront Details
Standard Water Body: ANDALUCIA CANAL
Water Front Features: Bay Access, Canal Access
Community Features
Community Features: Recreation Area, Water Access, Fishing, Golf Carts OK, Marina, Clubhouse, Waterfront, Street Lights, Gated, Pool, Boat Slip, Dock, Sidewalks, Tennis Court(s), Playground
Security Features: Gated Community, Gated with Guard
Association Amenities: Park, Recreation Facilities, Clubhouse, Gated, Pool, Playground, Tennis Court(s)
HOA Dues Include: Association Management, Security, Reserve Fund, Road Maintenance
Homeowners Association: Yes
HOA Dues: $995 / Quarterly
Driving Directions
From US Hwy 41 turn west onto Apollo Beach Blvd. Stay on Apollo Beach Blvd until the T intersection. Turn left onto Surfside Blvd. Continue onto Marbella Blvd. Use right hand lane to stop at the guard gate. After the gate the home is ahead on the left.
Financial Considerations
Terms: Cash,Conventional,VA Loan
Tax/Property ID: U-20-31-19-1SU-000001-00024.0
Tax Amount: 10548.84
Tax Year: 2025
A broker reciprocity listing courtesy: 27NORTH REALTY
Based on information provided by Stellar MLS as distributed by the MLS GRID. Information from the Internet Data Exchange is provided exclusively for consumers’ personal, non-commercial use, and such information may not be used for any purpose other than to identify prospective properties consumers may be interested in purchasing. This data is deemed reliable but is not guaranteed to be accurate by Edina Realty, Inc., or by the MLS. Edina Realty, Inc., is not a multiple listing service (MLS), nor does it offer MLS access.
Copyright 2026 Stellar MLS as distributed by the MLS GRID. All Rights Reserved.
Payment Calculator
Interest rate and annual percentage rate (APR) are based on current market conditions, are for informational purposes only, are subject to change without notice and may be subject to pricing add-ons related to property type, loan amount, loan-to-value, credit score and other variables. Estimated closing costs used in the APR calculation are assumed to be paid by the borrower at closing. If the closing costs are financed, the loan, APR and payment amounts will be higher. If the down payment is less than 20%, mortgage insurance may be required and could increase the monthly payment and APR. Contact us for details. Additional loan programs may be available. Accuracy is not guaranteed, and all products may not be available in all borrower's geographical areas and are based on their individual situation. This is not a credit decision or a commitment to lend.
Sales History & Tax Summary for 6107 Marbella Boulevard
Sales History
| Date | Price | |
|---|---|---|
| Currently not available. | ||
Tax Summary
| Tax Year | Estimated Market Value | Total Tax |
|---|---|---|
| Currently not available. | ||
Data powered by ATTOM Data Solutions. Copyright© 2026. Information deemed reliable but not guaranteed.
Schools
Schools nearby 6107 Marbella Boulevard
| Schools in attendance boundaries | Grades | Distance | Rating |
|---|---|---|---|
| Loading... | |||
| Schools nearby | Grades | Distance | Rating |
|---|---|---|---|
| Loading... | |||
Data powered by ATTOM Data Solutions. Copyright© 2026. Information deemed reliable but not guaranteed.
The schools shown represent both the assigned schools and schools by distance based on local school and district attendance boundaries. Attendance boundaries change based on various factors and proximity does not guarantee enrollment eligibility. Please consult your real estate agent and/or the school district to confirm the schools this property is zoned to attend. Information is deemed reliable but not guaranteed.
SchoolDigger ® Rating
The SchoolDigger rating system is a 1-5 scale with 5 as the highest rating. SchoolDigger ranks schools based on test scores supplied by each state's Department of Education. They calculate an average standard score by normalizing and averaging each school's test scores across all tests and grades.
Coming soon properties will soon be on the market, but are not yet available for showings.