611 8th Street E Wabasha, MN 55981
For Sale MLS# 6811865
2 beds 2 baths 1,394 sq ft Single Family
Details for 611 8th Street E
MLS# 6811865
Description for 611 8th Street E, Wabasha, MN, 55981
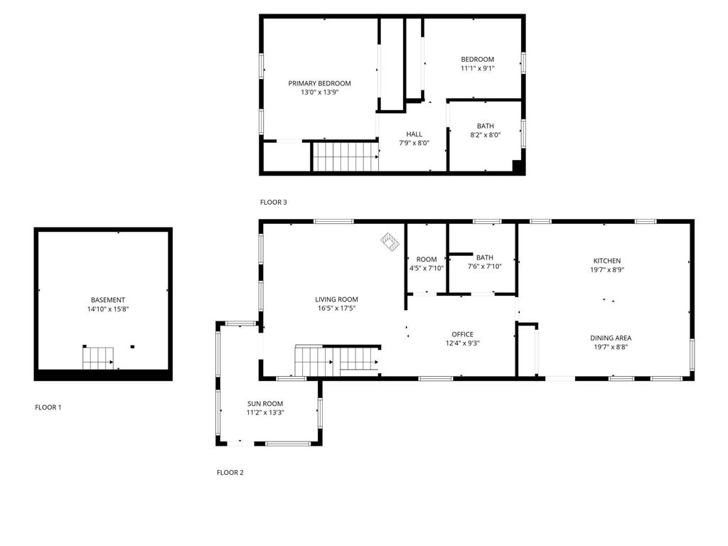
Classic 1½-story home with solid structure, character, and practical living space. The main floor includes a comfortable living area, office, bath/laundry, and a spacious kitchen with custom cabinetry, built-ins, and plenty of counter space. Upstairs offers two bedrooms, another bath, and a roomy landing area. The lower level provides useful storage and utility space.Outside, you’ll find an oversized two-car garage, wide driveway, and open yard adjoining a neighborhood park. A straightforward, functional home with charm and potential.
Listing Information
Property Type: Residential, Single Family
Status: Active
Bedrooms: 2
Bathrooms: 2
Lot Size: 0.39 Acres
Square Feet: 1,394 sq ft
Year Built: 1900
Foundation: 232 sq ft
Garage: Yes
Stories: 1.5 Stories
Subdivision: South Wabasha
County: Wabasha
Days On Market: 91
Construction Status: Previously Owned
School Information
District: 811 - Wabasha-Kellogg
Room Information
Bathrooms
Full Baths: 1
3/4 Baths: 1
Additonal Room Information
Laundry: Main Level
Interior Features
Square Footage above: 1,394 sq ft
Appliances: Range, Refrigerator, Dishwasher, Dryer, Washer
Basement: Unfinished, Partial
Fireplaces: 1, Living Room, Gas Burning
Additional Interior Features: Main Floor Laundry, Natural Woodwork
Utilities
Water: City Water/Connected
Sewer: City Sewer/Connected
Cooling: Window
Heating: Hot Water, Natural Gas
Exterior / Lot Features
Garage Spaces: 2
Parking Description: Detached Garage, Driveway - Concrete, Garage Sq Ft - 1250.
Exterior: Steel Siding
Lot Dimensions: 113x150
Zoning: Residential-Single Family
Out Buildings: Shed - Storage, Lean-To
Driving Directions
From Hiawatha Dr E turn onto Milligan Ave then turn on 8th St E.
Financial Considerations
Tax/Property ID: R270070200
Tax Amount: 2334
Tax Year: 2025
HomeStead Description: Homesteaded
A broker reciprocity listing courtesy: Jewson Realty
The data relating to real estate for sale on this web site comes in part from the Broker Reciprocity℠ Program of the Regional Multiple Listing Service of Minnesota, Inc. Real estate listings held by brokerage firms other than Edina Realty, Inc. are marked with the Broker Reciprocity℠ logo or the Broker Reciprocity℠ thumbnail and detailed information about them includes the name of the listing brokers. Edina Realty, Inc. is not a Multiple Listing Service (MLS), nor does it offer MLS access. This website is a service of Edina Realty, Inc., a broker Participant of the Regional Multiple Listing Service of Minnesota, Inc. IDX information is provided exclusively for consumers personal, non-commercial use and may not be used for any purpose other than to identify prospective properties consumers may be interested in purchasing. Open House information is subject to change without notice. Information deemed reliable but not guaranteed.
Copyright 2026 Regional Multiple Listing Service of Minnesota, Inc. All Rights Reserved.
Payment Calculator
Interest rate and annual percentage rate (APR) are based on current market conditions, are for informational purposes only, are subject to change without notice and may be subject to pricing add-ons related to property type, loan amount, loan-to-value, credit score and other variables. Estimated closing costs used in the APR calculation are assumed to be paid by the borrower at closing. If the closing costs are financed, the loan, APR and payment amounts will be higher. If the down payment is less than 20%, mortgage insurance may be required and could increase the monthly payment and APR. Contact us for details. Additional loan programs may be available. Accuracy is not guaranteed, and all products may not be available in all borrower's geographical areas and are based on their individual situation. This is not a credit decision or a commitment to lend.
Sales History & Tax Summary for 611 8th Street E
Sales History
| Date | Price | |
|---|---|---|
| Currently not available. | ||
Tax Summary
| Tax Year | Estimated Market Value | Total Tax |
|---|---|---|
| Currently not available. | ||
Data powered by ATTOM Data Solutions. Copyright© 2026. Information deemed reliable but not guaranteed.
Schools
Schools nearby 611 8th Street E
| Schools in attendance boundaries | Grades | Distance | Rating |
|---|---|---|---|
| Loading... | |||
| Schools nearby | Grades | Distance | Rating |
|---|---|---|---|
| Loading... | |||
Data powered by ATTOM Data Solutions. Copyright© 2026. Information deemed reliable but not guaranteed.
The schools shown represent both the assigned schools and schools by distance based on local school and district attendance boundaries. Attendance boundaries change based on various factors and proximity does not guarantee enrollment eligibility. Please consult your real estate agent and/or the school district to confirm the schools this property is zoned to attend. Information is deemed reliable but not guaranteed.
SchoolDigger ® Rating
The SchoolDigger rating system is a 1-5 scale with 5 as the highest rating. SchoolDigger ranks schools based on test scores supplied by each state's Department of Education. They calculate an average standard score by normalizing and averaging each school's test scores across all tests and grades.
Coming soon properties will soon be on the market, but are not yet available for showings.