611 NE 130 Avenue NE Williston, FL 32696
For Sale MLS# A4643988
4 beds 2 baths 1,580 sq ft Single Family
Details for 611 NE 130 Avenue NE
MLS# A4643988
Description for 611 NE 130 Avenue NE, Williston, FL, 32696
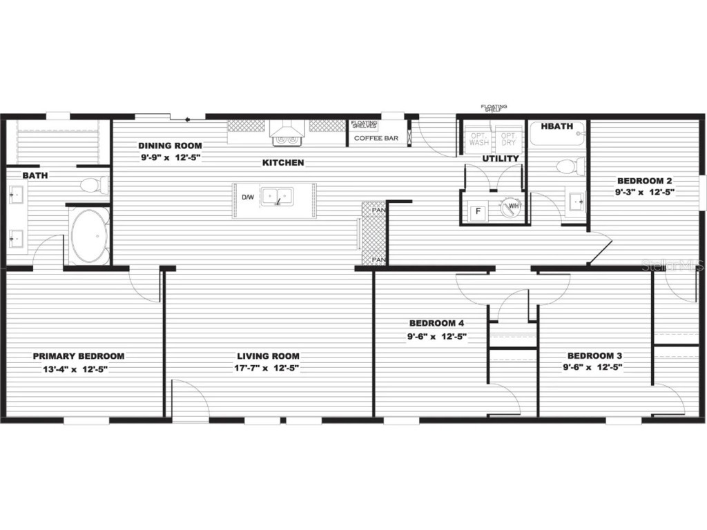
Safe IRA Homes presents a home with Seller Credits Available! Best Buyer ASSISTANCE On the Market! Buyer's Agents Welcome! NO MONEY DOWN USDA, FHA, Or VA Home Loans available. Welcome To A GORGEOUS Nature Escape. This stunning Split Bed - Room, Open Floor Plan 4-bedroom, 2-bathroom custom home is newly built and packed with premium features the upgraded OSB Wrap around the entire home. Enjoy this Green Star Certified home with a BRAND-NEW A/C system, a NEW Roof, and NEW installed Water Well & Septic Tank. The kitchen boasts NEW Stainless-Steel Appliances, overlooking the expansive Living Room / Dining Room! Bask in your privacy with this oversized 1.20 Acre lot. Bring your Horses family & the whole Lot! Explore the Floor plan provided to get a good feel of the home Lay - Out! The Home will come FINISHED with 10 FT Of Sod Around the home & a Lime Rock Driveway. Sod and Front stepping stone walkway on schedule!
Listing Information
Property Type: Residential, Manufactured Home, Ranch
Status: Active
Bedrooms: 4
Bathrooms: 2
Lot Size: 1.20 Acres
Square Feet: 1,580 sq ft
Year Built: 2025
Stories: 1 Story
Construction: Vinyl Siding
Construction Display: New Construction
Subdivision: Williston Highlands
Builder: Safe IRA Homes, LLC
Foundation: Pillar/Post/Pier
County: Levy
Construction Status: New Construction
School Information
Elementary: Bronson Elementary School-Lv
Middle: Bronson Middle/High School-Lv
High: Bronson Middle/High School-Lv
Room Information
Main Floor
Utility Room: 8x9
Primary Bedroom: 13x13
Dining Room: 10x12
Kitchen: 12x20
Living Room: 12x18
Primary Bathroom: 10x12
Bedroom 4: 10x12
Bedroom 3: 10x12
Bedroom 2: 9x12
Bathroom 2: 7x9
Bathrooms
Full Baths: 2
Additonal Room Information
Laundry: Electric Dryer Hookup, Washer Hookup
Interior Features
Appliances: Convection Oven, Exhaust Fan, Range Hood, Electric Water Heater, Dishwasher, Range, Refrigerator
Flooring: Luxury Vinyl
Doors/Windows: ENERGY STAR Qualified Windows
Additional Interior Features: Ceiling Fan(s), Split Bedrooms, Solid Surface Counters, Kitchen/Family Room Combo, Open Floorplan, Living/Dining Room, Main Level Primary
Utilities
Water: Well
Sewer: Septic Tank
Other Utilities: Electricity Connected,Water Connected
Cooling: Central Air, Ceiling Fan(s)
Heating: Central
Exterior / Lot Features
Parking Description: driveway, RV Access/Parking, Guest, Open, Oversized, Parking Pad
Roof: Shingle
Lot View: Trees/Woods
Additional Exterior/Lot Features: Landscaped, Cleared, Oversized Lot, Outside City Limits
Community Features
Community Features: Golf Carts OK
Security Features: Fire Alarm
Driving Directions
Go south on County RD. 121 Then West on E Levy St. North on NE 130th Ave Property on the right
Financial Considerations
Terms: Cash,Conventional,FHA,Private Financing Available,USDA Loan,VA Loan
Tax/Property ID: 09763-005-00
Tax Amount: 260
Tax Year: 2024
A broker reciprocity listing courtesy: VILLA & COMPANY INC
Based on information provided by Stellar MLS as distributed by the MLS GRID. Information from the Internet Data Exchange is provided exclusively for consumers’ personal, non-commercial use, and such information may not be used for any purpose other than to identify prospective properties consumers may be interested in purchasing. This data is deemed reliable but is not guaranteed to be accurate by Edina Realty, Inc., or by the MLS. Edina Realty, Inc., is not a multiple listing service (MLS), nor does it offer MLS access.
Copyright 2025 Stellar MLS as distributed by the MLS GRID. All Rights Reserved.
Payment Calculator
Interest rate and annual percentage rate (APR) are based on current market conditions, are for informational purposes only, are subject to change without notice and may be subject to pricing add-ons related to property type, loan amount, loan-to-value, credit score and other variables. Estimated closing costs used in the APR calculation are assumed to be paid by the borrower at closing. If the closing costs are financed, the loan, APR and payment amounts will be higher. If the down payment is less than 20%, mortgage insurance may be required and could increase the monthly payment and APR. Contact us for details. Additional loan programs may be available. Accuracy is not guaranteed, and all products may not be available in all borrower's geographical areas and are based on their individual situation. This is not a credit decision or a commitment to lend.
Sales History & Tax Summary for 611 NE 130 Avenue NE
Sales History
| Date | Price | Change |
|---|---|---|
| Currently not available. | ||
Tax Summary
| Tax Year | Estimated Market Value | Total Tax |
|---|---|---|
| Currently not available. | ||
Data powered by ATTOM Data Solutions. Copyright© 2025. Information deemed reliable but not guaranteed.
Schools
Schools nearby 611 NE 130 Avenue NE
| Schools in attendance boundaries | Grades | Distance | Rating |
|---|---|---|---|
| Loading... | |||
| Schools nearby | Grades | Distance | Rating |
|---|---|---|---|
| Loading... | |||
Data powered by ATTOM Data Solutions. Copyright© 2025. Information deemed reliable but not guaranteed.
The schools shown represent both the assigned schools and schools by distance based on local school and district attendance boundaries. Attendance boundaries change based on various factors and proximity does not guarantee enrollment eligibility. Please consult your real estate agent and/or the school district to confirm the schools this property is zoned to attend. Information is deemed reliable but not guaranteed.
SchoolDigger ® Rating
The SchoolDigger rating system is a 1-5 scale with 5 as the highest rating. SchoolDigger ranks schools based on test scores supplied by each state's Department of Education. They calculate an average standard score by normalizing and averaging each school's test scores across all tests and grades.
Coming soon properties will soon be on the market, but are not yet available for showings.