6110 262nd Street Wyoming, MN 55092
For Sale MLS# 6806199
4 beds 2 baths 1,739 sq ft Single Family
Details for 6110 262nd Street
MLS# 6806199
Description for 6110 262nd Street, Wyoming, MN, 55092
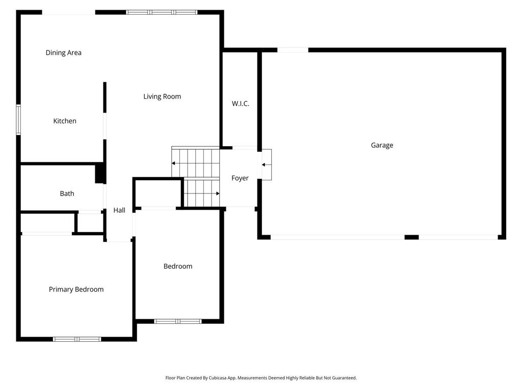
AVALIBLE & READY ! This charming home features 4-bedroom, 2-bathroom equipped with great living space designed for modern comfort. The functional design and living space features a large walk in entry closet, vaulted ceilings in the living room and kitchen area. New carpet in two upper-level bedrooms, fresh paint. The finished lower-level walkout is not just a family room – it is your personal entertainment area. Cozy up by the gas fireplace for movie nights or throw a game day party. Throughout the home there is plenty of storage, a 10 x 12 shed in the back yard w/power located on a private lot. The crown jewel - a spacious heated 3-car attached garage perfect for car enthusiasts, workshop dreams, or ultimate man cave potential. additional parking alongside garage. This home is in a desirable Wyoming neighborhood that combines community-oriented values great schools, outdoor activities, walking distance to local park and stability. Move-In Ready with a Quick Closing Possible.
Listing Information
Property Type: Residential, Single Family
Status: Active
Bedrooms: 4
Bathrooms: 2
Lot Size: 0.40 Acres
Square Feet: 1,739 sq ft
Year Built: 1998
Foundation: 980 sq ft
Garage: Yes
Stories: Split Entry (Bi-Level)
Subdivision: Ashton North 6
County: Chisago
Days On Market: 39
Construction Status: Previously Owned
School Information
District: 831 - Forest Lake
Room Information
Main Floor
Bedroom 1: 13x12
Bedroom 2: 13x10
Kitchen: 17x10
Living Room: 19x13
Lower Floor
Bedroom 3: 10x7
Bedroom 4: 13x9
Family Room: 23x11
Bathrooms
Full Baths: 1
3/4 Baths: 1
Additonal Room Information
Family: Lower Level
Dining: Kitchen/Dining Room
Laundry: Lower Level
Bath Description: 3/4 Basement,Main Floor Full Bath
Interior Features
Square Footage above: 980 sq ft
Square Footage below: 759 sq ft
Appliances: Washer, Range, Refrigerator, Dishwasher, Dryer
Basement: Finished (Livable), Egress Windows, Drain Tiled, Full, Walkout
Fireplaces: 1, Gas Burning, Family Room
Additional Interior Features: Ceiling Fan(s), Vaulted Ceiling(s), Hardwood Floors, Kitchen Window, Washer/Dryer Hookup, Tile Floors
Utilities
Water: City Water/Connected
Sewer: City Sewer/Connected
Cooling: Central
Heating: Forced Air, Natural Gas
Exterior / Lot Features
Attached Garage: Attached Garage
Garage Spaces: 3
Parking Description: Driveway - Asphalt, Attached Garage, Heated Garage, Insulated Garage, Garage Door Opener, Finished Garage, Garage Sq Ft - 616.0
Exterior: Brick/Stone, Vinyl, Metal
Roof: Age Over 8 Years, Asphalt Shingles
Lot Dimensions: 100x160x101x189
Zoning: Residential-Single Family
Additional Exterior/Lot Features: Irregular Lot, Tree Coverage - Light, Road Frontage - City
Out Buildings: Shed - Storage
Driving Directions
35 to Wyoming exit (E) to Hwy 61(S) to CTY Rd. 22 (E) 1 Mile to Goodview (S) to 262nd (W) to Home on Right
Financial Considerations
Other Annual Tax: $17
Tax/Property ID: 210039926
Tax Amount: 3949
Tax Year: 2025
HomeStead Description: Homesteaded
A broker reciprocity listing courtesy: LPT Realty, LLC
The data relating to real estate for sale on this web site comes in part from the Broker Reciprocity℠ Program of the Regional Multiple Listing Service of Minnesota, Inc. Real estate listings held by brokerage firms other than Edina Realty, Inc. are marked with the Broker Reciprocity℠ logo or the Broker Reciprocity℠ thumbnail and detailed information about them includes the name of the listing brokers. Edina Realty, Inc. is not a Multiple Listing Service (MLS), nor does it offer MLS access. This website is a service of Edina Realty, Inc., a broker Participant of the Regional Multiple Listing Service of Minnesota, Inc. IDX information is provided exclusively for consumers personal, non-commercial use and may not be used for any purpose other than to identify prospective properties consumers may be interested in purchasing. Open House information is subject to change without notice. Information deemed reliable but not guaranteed.
Copyright 2025 Regional Multiple Listing Service of Minnesota, Inc. All Rights Reserved.
Payment Calculator
Interest rate and annual percentage rate (APR) are based on current market conditions, are for informational purposes only, are subject to change without notice and may be subject to pricing add-ons related to property type, loan amount, loan-to-value, credit score and other variables. Estimated closing costs used in the APR calculation are assumed to be paid by the borrower at closing. If the closing costs are financed, the loan, APR and payment amounts will be higher. If the down payment is less than 20%, mortgage insurance may be required and could increase the monthly payment and APR. Contact us for details. Additional loan programs may be available. Accuracy is not guaranteed, and all products may not be available in all borrower's geographical areas and are based on their individual situation. This is not a credit decision or a commitment to lend.
Sales History & Tax Summary for 6110 262nd Street
Sales History
| Date | Price | Change |
|---|---|---|
| Currently not available. | ||
Tax Summary
| Tax Year | Estimated Market Value | Total Tax |
|---|---|---|
| Currently not available. | ||
Data powered by ATTOM Data Solutions. Copyright© 2025. Information deemed reliable but not guaranteed.
Schools
Schools nearby 6110 262nd Street
| Schools in attendance boundaries | Grades | Distance | Rating |
|---|---|---|---|
| Loading... | |||
| Schools nearby | Grades | Distance | Rating |
|---|---|---|---|
| Loading... | |||
Data powered by ATTOM Data Solutions. Copyright© 2025. Information deemed reliable but not guaranteed.
The schools shown represent both the assigned schools and schools by distance based on local school and district attendance boundaries. Attendance boundaries change based on various factors and proximity does not guarantee enrollment eligibility. Please consult your real estate agent and/or the school district to confirm the schools this property is zoned to attend. Information is deemed reliable but not guaranteed.
SchoolDigger ® Rating
The SchoolDigger rating system is a 1-5 scale with 5 as the highest rating. SchoolDigger ranks schools based on test scores supplied by each state's Department of Education. They calculate an average standard score by normalizing and averaging each school's test scores across all tests and grades.
Coming soon properties will soon be on the market, but are not yet available for showings.