612 Marina Point Drive #6120 Daytona Beach, FL 32114
For Sale MLS# A4635724
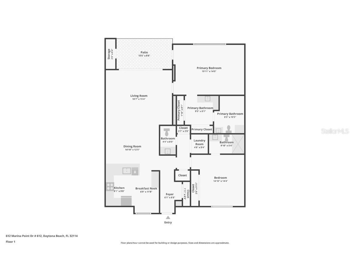
2 beds 3 baths 1,658 sq ft Condo
Details for 612 Marina Point Drive #6120
MLS# A4635724
Description for 612 Marina Point Drive #6120, Daytona Beach, FL, 32114
One or more photo(s) has been virtually staged. Experience luxury boating and coastal paradise living in this renovated condo at a slashed price! Enjoy panoramic views of the Intracoastal Waterway and Veterans Memorial Bridge from your private balcony at Marina Point. This 2-bedroom, 2.5-bath condo spans nearly 1800 sq. ft. The open floor plan features a large living room, primary bedroom with a walk-in closet and en-suite bath with garden tub and large shower, and a secondary bedroom with a private entrance to the bathroom. The kitchen boasts ample cabinet space, a breakfast bar, and a dining area. Community amenities include underground assigned parking, guest parking, boat slips, a pool, clubhouse, and 24-hour staffed security gate. Recent upgrades include a new roof, fire alarm upgrade, waterproofing, and exterior painting. Special assessments have been paid by the Seller. Condo association dues cover access to a boat dock/slip. Enjoy a low-maintenance, affordable lifestyle with seamless access to boating excursions and quality family time on the water. The complex has undergone a complete renovation, making it like a new building. Nearby attractions include the Chart House, farmer's market, new downtown esplanade, and the Jackie Robinson baseball field. Don't miss this exceptional opportunity to enjoy luxurious living with breathtaking views and top-notch amenities at Marina Point. With the freshly painted interior and reduced price, you have a rare chance to own a slice of paradise without breaking the bank. The panoramic views alone provide a serene backdrop for daily life. Comprehensive renovations and upgrades add tremendous value and peace of mind. The parking, boat slips, pool, clubhouse, and security gate boast a low-maintenance lifestyle, freeing up time for boating and family. The condo association dues covering the boat dock/slip reduce overall costs, adding convenience and long-term savings. This condo is more than just a home; it's a gateway to a luxurious and carefree lifestyle. The living spaces are designed with elegance and comfort in mind. The vinyl tile flooring, custom carpeting, and the gourmet kitchen with its granite countertops and professional-grade appliances make this condo a haven for relaxation and entertaining. The master suite's spa-style bath and walk-in closet provide a private retreat, while the secondary bedroom's private bathroom entrance adds convenience for guests or family members. In essence, this property offers unparalleled value for a boater's paradise. The combination of luxurious living spaces, community amenities, and prime waterfront location makes this condo a standout option. Don't let this opportunity pass by—embrace the luxury and ease of living at Marina Point.
Listing Information
Property Type: Residential, Condominium
Status: Active
Bedrooms: 2
Bathrooms: 3
Square Feet: 1,658 sq ft
Year Built: 1982
Garage: Yes
Stories: 1 Story
Construction: Block,Concrete,Stucco
Subdivision: Marina Point Ph 01 Condo
Foundation: Slab
County: Volusia
Room Information
Main Floor
Living Room: 15x19
Dining Room: 13x15
Bedroom 2: 14x15
Primary Bedroom: 14x20
Porch: 9x16
Bathroom 2: 5x10
Primary Bathroom: 8x9
Bathroom 3: 4x8
Laundry: 5x5
Foyer: 6x9
Dinette: 7x12
Kitchen: 8x10
Bathrooms
Full Baths: 2
1/2 Baths: 1
Additonal Room Information
Laundry: Inside, Laundry Closet, Common On Floor, Washer Hookup, Electric Dryer Hookup
Interior Features
Appliances: Water Purifier, Electric Water Heater, Dishwasher, Disposal, Dryer, Range, Refrigerator, Microwave
Flooring: Carpet,Luxury Vinyl,Tile
Doors/Windows: Storm Window(s), Blinds, Window Treatments
Accessibility: Accessibility Features, Wheelchair Access
Additional Interior Features: Window Treatments, Built-in Features, Walk-In Closet(s), Split Bedrooms, Ceiling Fan(s), Eat-In Kitchen, Open Floorplan, Wood Cabinets, Main Level Primary, Kitchen/Family Room Combo, Stone Counters, Living/Dining Room, Dry Bar
Utilities
Water: Public
Sewer: Public Sewer
Other Utilities: Cable Available,Cable Connected,Electricity Connected,Municipal Utilities,Sewer Connected,Water Connected
Cooling: Ceiling Fan(s), Central Air, Attic Fan
Heating: Electric, Central, Heat Pump
Exterior / Lot Features
Attached Garage: Attached Garage
Garage Spaces: 1
Parking Description: Boat, Garage Faces Side, Golf Cart Garage, Guest, Garage, Common, Garage Door Opener, Covered, Assigned
Roof: Tile
Pool: Other, Association, In Ground, Community
Lot View: City,Intercoastal,Marina,Water
Additional Exterior/Lot Features: Storage, Balcony, Other, Lighting, Enclosed, Other, Patio, Porch, Covered, Balcony, Rear Porch, Front Porch, Landscaped, Cul-de-Sac, Near Public Transit, City Lot, Historic District
Out Buildings: Storage
Waterfront Details
Water Front Features: Intracoastal Access
Community Features
Community Features: Golf Carts OK, Fishing, Water Access, Marina, Dock, Boat Slip, River, Community Mailbox, Clubhouse, Restaurant, Waterfront, Handicap Access, Street Lights, Boat Facilities, Gated, Pool, Sidewalks
Security Features: Fire Alarm, Fire Sprinkler System, Security Lights, Gated Community, Closed Circuit Camera(s), Secured Garage/Parking, Security Gate, Smoke Detector(s), Key Card Entry, Lobby Secured, Fire Hydrant(s), Gated with Guard
Association Amenities: Elevator(s), Pool, Security, Recreation Facilities, Clubhouse, Gated, Maintenance Grounds
HOA Dues Include: Maintenance Structure, Pool(s), Maintenance Grounds, Pest Control, Insurance, Reserve Fund, Common Areas, Sewer, Association Management, Security, Trash, Water, Taxes, Cable TV
Driving Directions
Take exit 118B for US-92 E towards Daytona Beach. Continue on US-92 E for about 10 miles. Turn left onto FL-400. Turn right onto Marina Point Dr. Arrive at 612 Marina Point Dr #612.
Financial Considerations
Terms: Cash,Conventional,FHA,VA Loan
Tax/Property ID: 5339-A5-01-6120
Tax Amount: 5564.9
Tax Year: 2024
A broker reciprocity listing courtesy: ALLPHASE REALTY
Based on information provided by Stellar MLS as distributed by the MLS GRID. Information from the Internet Data Exchange is provided exclusively for consumers’ personal, non-commercial use, and such information may not be used for any purpose other than to identify prospective properties consumers may be interested in purchasing. This data is deemed reliable but is not guaranteed to be accurate by Edina Realty, Inc., or by the MLS. Edina Realty, Inc., is not a multiple listing service (MLS), nor does it offer MLS access.
Copyright 2025 Stellar MLS as distributed by the MLS GRID. All Rights Reserved.
Payment Calculator
Interest rate and annual percentage rate (APR) are based on current market conditions, are for informational purposes only, are subject to change without notice and may be subject to pricing add-ons related to property type, loan amount, loan-to-value, credit score and other variables. Estimated closing costs used in the APR calculation are assumed to be paid by the borrower at closing. If the closing costs are financed, the loan, APR and payment amounts will be higher. If the down payment is less than 20%, mortgage insurance may be required and could increase the monthly payment and APR. Contact us for details. Additional loan programs may be available. Accuracy is not guaranteed, and all products may not be available in all borrower's geographical areas and are based on their individual situation. This is not a credit decision or a commitment to lend.
Sales History & Tax Summary for 612 Marina Point Drive #6120
Sales History
| Date | Price | Change |
|---|---|---|
| Currently not available. | ||
Tax Summary
| Tax Year | Estimated Market Value | Total Tax |
|---|---|---|
| Currently not available. | ||
Data powered by ATTOM Data Solutions. Copyright© 2025. Information deemed reliable but not guaranteed.
Schools
Schools nearby 612 Marina Point Drive #6120
| Schools in attendance boundaries | Grades | Distance | Rating |
|---|---|---|---|
| Loading... | |||
| Schools nearby | Grades | Distance | Rating |
|---|---|---|---|
| Loading... | |||
Data powered by ATTOM Data Solutions. Copyright© 2025. Information deemed reliable but not guaranteed.
The schools shown represent both the assigned schools and schools by distance based on local school and district attendance boundaries. Attendance boundaries change based on various factors and proximity does not guarantee enrollment eligibility. Please consult your real estate agent and/or the school district to confirm the schools this property is zoned to attend. Information is deemed reliable but not guaranteed.
SchoolDigger ® Rating
The SchoolDigger rating system is a 1-5 scale with 5 as the highest rating. SchoolDigger ranks schools based on test scores supplied by each state's Department of Education. They calculate an average standard score by normalizing and averaging each school's test scores across all tests and grades.
Coming soon properties will soon be on the market, but are not yet available for showings.