$360,000
6120 Castlewood Lane Orlando, FL 32808
For Sale MLS# O6369162
4 beds 3 baths 2,250 sq ft Single Family
OPEN HOUSE: Friday, 1/23 11:00 AM - 02:00 PM
Details for 6120 Castlewood Lane
MLS# O6369162
Description for 6120 Castlewood Lane, Orlando, FL, 32808
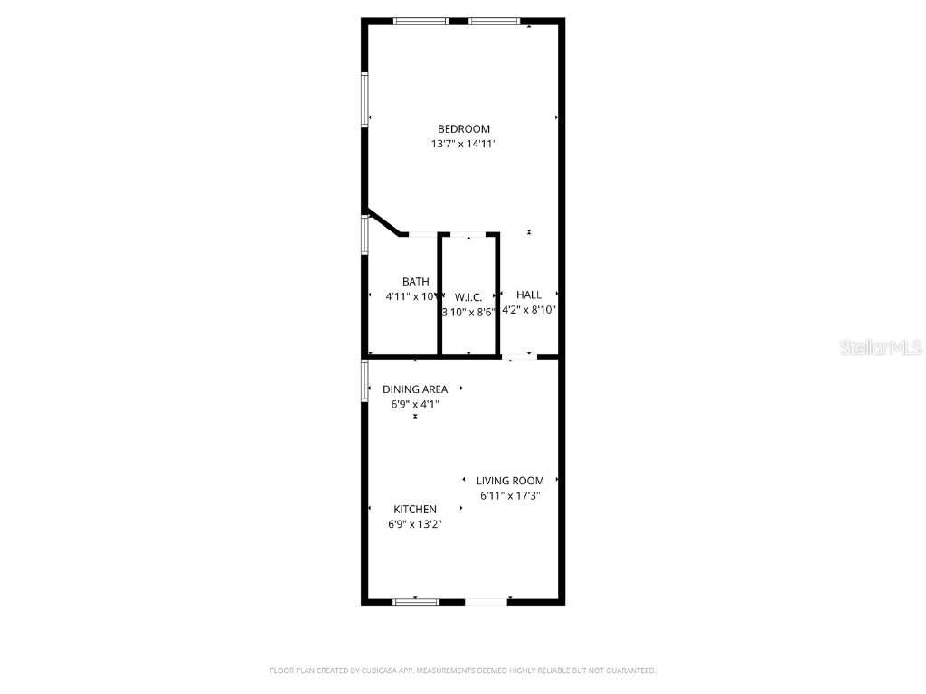
One or more photo(s) has been virtually staged. Welcome to this unique multi-split home featuring a 3/2 in the front & A 1/1 in the back, offering flexibility for multi-generational living, guests, or rental potential. Recent upgrades include a brand new irrigation system & new sod, enhancing curb appeal and outdoor enjoyment. Perfectly positioned in a cul-de-sac within an established Orlando neighborhood, this property combines privacy with convenience. The home offers a functional and versatile layout with comfortable living spaces designed for both everyday living and entertaining. Step outside to a spacious yard with plenty of room to relax, entertain, or customize to your personal vision. Conveniently located near major roadways, shopping, dining, and local amenities, this home provides easy access to everything Orlando has available. A fantastic opportunity for Homeowners or Investors—schedule your private showing today!
Listing Information
Property Type: Residential, Single Family Residence
Status: Active
Bedrooms: 4
Bathrooms: 3
Lot Size: 0.19 Acres
Square Feet: 2,250 sq ft
Year Built: 1965
Garage: Yes
Stories: 1 Story
Construction: Block
Subdivision: Robinswood Heights 5th Add
Foundation: Slab
County: Orange
School Information
Elementary: Hiawassee Elem
Middle: Robinswood Middle
High: Evans High
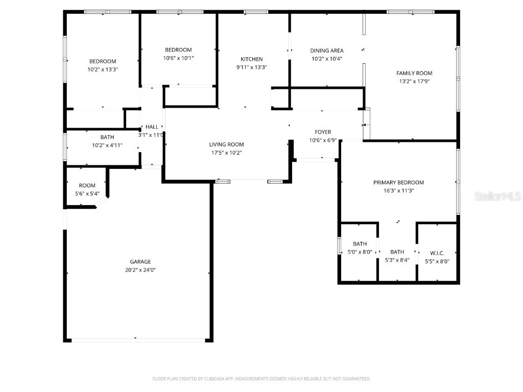
Room Information
Main Floor
Dining Room: 12x13
Bathroom 3: 12x15
Bedroom 2: 11x12
Primary Bedroom: 15x15
Family Room: 13x19
Kitchen: 9x20
Living Room: 14x19
Bathrooms
Full Baths: 3
Additonal Room Information
Laundry: Washer Hookup, Electric Dryer Hookup
Interior Features
Appliances: Electric Water Heater, Dishwasher, Refrigerator
Flooring: Carpet,Tile
Doors/Windows: Skylight(s)
Additional Interior Features: Eat-In Kitchen, Skylights, Open Floorplan
Utilities
Water: Public
Sewer: Septic Tank
Other Utilities: High Speed Internet Available
Cooling: Central Air
Heating: Central
Exterior / Lot Features
Attached Garage: Attached Garage
Garage Spaces: 2
Roof: Shingle
Community Features
Community Features: Sidewalks
Driving Directions
From Downtown Orlando: Take I-4 West to FL-408 West (East-West Expressway). Exit at Hiawassee Rd and turn right. Continue on Hiawassee Rd, then turn left onto Clarcona Ocoee Rd. Turn right onto N Powers Dr, then left onto Castlewood Ln. The property will be on your right at 6120 Castlewood Ln.
Financial Considerations
Tax/Property ID: 13-22-28-7582-00-260
Tax Amount: 713
Tax Year: 2024
A broker reciprocity listing courtesy: SERHANT
Based on information provided by Stellar MLS as distributed by the MLS GRID. Information from the Internet Data Exchange is provided exclusively for consumers’ personal, non-commercial use, and such information may not be used for any purpose other than to identify prospective properties consumers may be interested in purchasing. This data is deemed reliable but is not guaranteed to be accurate by Edina Realty, Inc., or by the MLS. Edina Realty, Inc., is not a multiple listing service (MLS), nor does it offer MLS access.
Copyright 2026 Stellar MLS as distributed by the MLS GRID. All Rights Reserved.
Payment Calculator
Interest rate and annual percentage rate (APR) are based on current market conditions, are for informational purposes only, are subject to change without notice and may be subject to pricing add-ons related to property type, loan amount, loan-to-value, credit score and other variables. Estimated closing costs used in the APR calculation are assumed to be paid by the borrower at closing. If the closing costs are financed, the loan, APR and payment amounts will be higher. If the down payment is less than 20%, mortgage insurance may be required and could increase the monthly payment and APR. Contact us for details. Additional loan programs may be available. Accuracy is not guaranteed, and all products may not be available in all borrower's geographical areas and are based on their individual situation. This is not a credit decision or a commitment to lend.
Sales History & Tax Summary for 6120 Castlewood Lane
Sales History
| Date | Price | Change |
|---|---|---|
| Currently not available. | ||
Tax Summary
| Tax Year | Estimated Market Value | Total Tax |
|---|---|---|
| Currently not available. | ||
Data powered by ATTOM Data Solutions. Copyright© 2026. Information deemed reliable but not guaranteed.
Schools
Schools nearby 6120 Castlewood Lane
| Schools in attendance boundaries | Grades | Distance | Rating |
|---|---|---|---|
| Loading... | |||
| Schools nearby | Grades | Distance | Rating |
|---|---|---|---|
| Loading... | |||
Data powered by ATTOM Data Solutions. Copyright© 2026. Information deemed reliable but not guaranteed.
The schools shown represent both the assigned schools and schools by distance based on local school and district attendance boundaries. Attendance boundaries change based on various factors and proximity does not guarantee enrollment eligibility. Please consult your real estate agent and/or the school district to confirm the schools this property is zoned to attend. Information is deemed reliable but not guaranteed.
SchoolDigger ® Rating
The SchoolDigger rating system is a 1-5 scale with 5 as the highest rating. SchoolDigger ranks schools based on test scores supplied by each state's Department of Education. They calculate an average standard score by normalizing and averaging each school's test scores across all tests and grades.
Coming soon properties will soon be on the market, but are not yet available for showings.