$1,225,000
6140 Midnight Pass Road #603 Sarasota, FL 34242 - CRESCENT BEACH ON SIESTA KEY
For Sale MLS# A4688546
2 beds 2 baths 1,521 sq ft Condo
Details for 6140 Midnight Pass Road #603
MLS# A4688546
Description for 6140 Midnight Pass Road #603, Sarasota, FL, 34242 - CRESCENT BEACH ON SIESTA KEY
Perched on the 6th floor with sweeping, unobstructed western views of the Gulf and world famous Crescent Beach, this spectacular Siesta Key condo delivers front row sunsets and frequent dolphin sightings, stretching from Point of Rocks to north Siesta Key. Ideally positioned above the gulf front pool and spa, this partially furnished island retreat is move in ready and features a full length enclosed balcony for added living space, along with impact windows and doors for peace of mind. Located in Horizons West, a coveted gulf to bay resort community spanning over 7 lushly landscaped acres, residents enjoy 300 feet of deeded private beach with cabanas, a beachside pool and spa, grilling areas, a second pool by the clubhouse, and a private Intracoastal Waterway park with day dock perfect for kayaking, paddleboarding, fishing, or relaxing among the mangroves. Conveniently access Siesta Key Village dining, shopping, and entertainment via the free island trolley and embrace the ultimate carefree coastal lifestyle. Come see what Island Life is all about.
Listing Information
Property Type: Residential, Condominium
Status: Active
Bedrooms: 2
Bathrooms: 2
Lot Size: 7.56 Acres
Square Feet: 1,521 sq ft
Year Built: 1967
Stories: 1 Story
Construction: Concrete
Subdivision: Horizons West
Foundation: Pillar/Post/Pier
County: Sarasota
School Information
Elementary: Phillippi Shores Elementary
Middle: Brookside Middle
High: Sarasota High
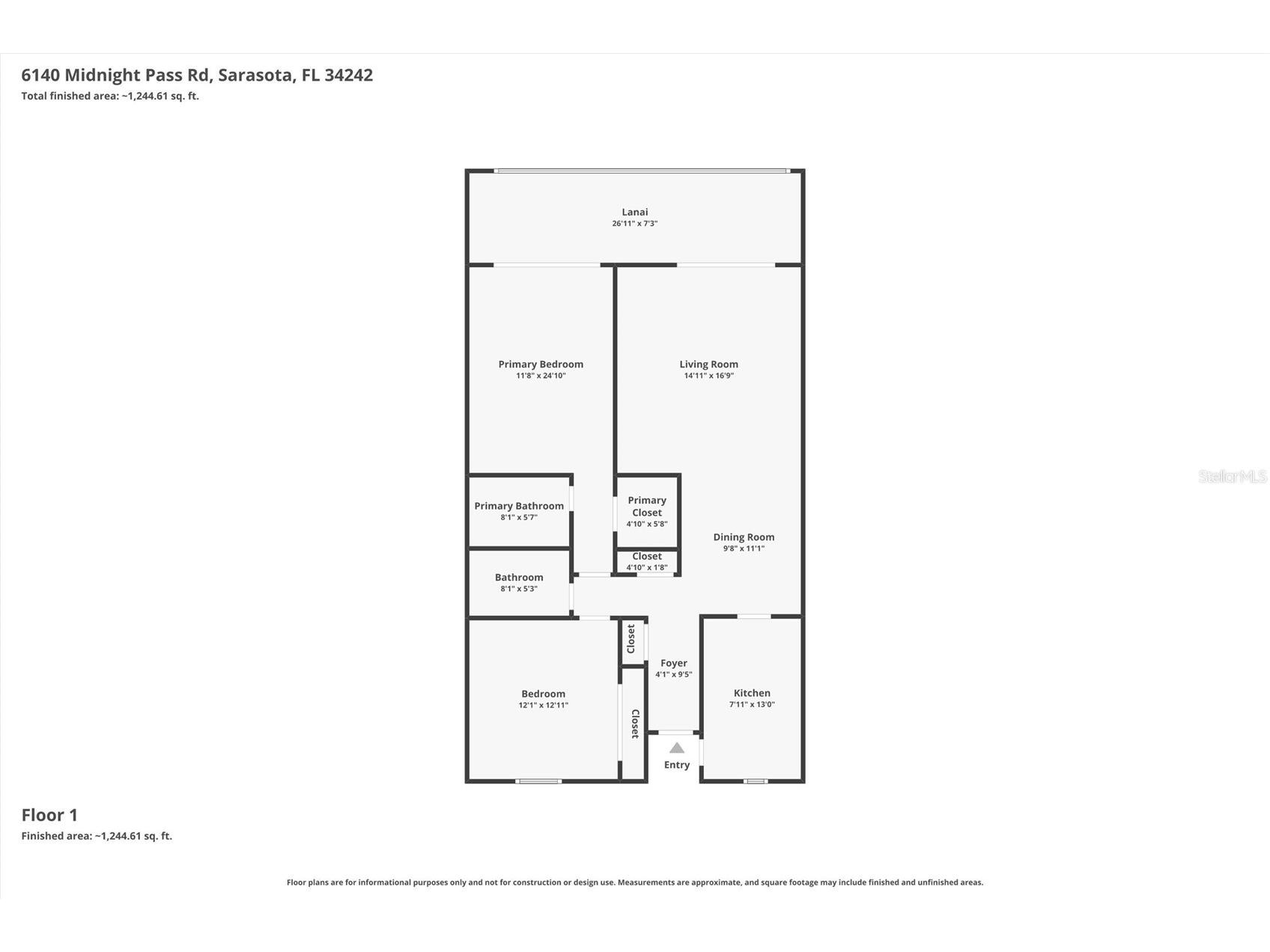
Room Information
Main Floor
Porch: 7x26.5
Bathroom 2: 5x8
Bedroom 2: 12.5x12
Primary Bathroom: 5.5x8
Primary Bedroom: 14x11.5
Kitchen: 13x7.5
Dining Room: 11x9.5
Living Room: 16.5x14.5
Bathrooms
Full Baths: 2
Additonal Room Information
Laundry: Common Area, Common On Floor
Interior Features
Appliances: Dishwasher, Disposal, Microwave, Range, Refrigerator
Flooring: Carpet,Tile
Doors/Windows: Insulated Windows, Window Treatments
Additional Interior Features: Walk-In Closet(s), Living/Dining Room, Window Treatments
Utilities
Water: Public
Sewer: Public Sewer
Other Utilities: Municipal Utilities
Cooling: Central Air
Heating: Central
Exterior / Lot Features
Roof: Built-Up
Pool: Community
Lot View: Beach,Ocean,Pool,Water
Additional Exterior/Lot Features: Outdoor Grill, Outdoor Shower, Lighting, Storage, Balcony, Sprinkler/Irrigation, Balcony, Enclosed, Landscaped, Near Public Transit, Buyer Approval Required, Flood Zone, Outside City Limits
Waterfront Details
Standard Water Body: CRESCENT BEACH ON SIESTA KEY
Water Front Features: Gulf Access, Ocean Access, Beach Access, Deeded Access
Community Features
Community Features: Recreation Area, Community Mailbox, Golf Carts OK, Park, Pool, Clubhouse
HOA Dues Include: Trash, Water, Cable TV, Internet, Taxes, Recreation Facilities, Association Management, Maintenance Grounds, Security, Sewer, Maintenance Structure, Pool(s), Pest Control, Reserve Fund, Common Areas
Homeowners Association: Yes
Driving Directions
From Stickney Point Bridge, right (north) on Midnight Pass Rd. Enter Horizons West gulfside entrance (left). Park on south side of high rise along fence. Enter South Lobby. Agent will meet you there.
Financial Considerations
Terms: Cash,Other
Tax/Property ID: 0106031090
Tax Amount: 11778.85
Tax Year: 2025
A broker reciprocity listing courtesy: COLDWELL BANKER REALTY
Based on information provided by Stellar MLS as distributed by the MLS GRID. Information from the Internet Data Exchange is provided exclusively for consumers’ personal, non-commercial use, and such information may not be used for any purpose other than to identify prospective properties consumers may be interested in purchasing. This data is deemed reliable but is not guaranteed to be accurate by Edina Realty, Inc., or by the MLS. Edina Realty, Inc., is not a multiple listing service (MLS), nor does it offer MLS access.
Copyright 2026 Stellar MLS as distributed by the MLS GRID. All Rights Reserved.
Payment Calculator
Interest rate and annual percentage rate (APR) are based on current market conditions, are for informational purposes only, are subject to change without notice and may be subject to pricing add-ons related to property type, loan amount, loan-to-value, credit score and other variables. Estimated closing costs used in the APR calculation are assumed to be paid by the borrower at closing. If the closing costs are financed, the loan, APR and payment amounts will be higher. If the down payment is less than 20%, mortgage insurance may be required and could increase the monthly payment and APR. Contact us for details. Additional loan programs may be available. Accuracy is not guaranteed, and all products may not be available in all borrower's geographical areas and are based on their individual situation. This is not a credit decision or a commitment to lend.
Sales History & Tax Summary for 6140 Midnight Pass Road #603
Sales History
| Date | Price | |
|---|---|---|
| Currently not available. | ||
Tax Summary
| Tax Year | Estimated Market Value | Total Tax |
|---|---|---|
| Currently not available. | ||
Data powered by ATTOM Data Solutions. Copyright© 2026. Information deemed reliable but not guaranteed.
Schools
Schools nearby 6140 Midnight Pass Road #603
| Schools in attendance boundaries | Grades | Distance | Rating |
|---|---|---|---|
| Loading... | |||
| Schools nearby | Grades | Distance | Rating |
|---|---|---|---|
| Loading... | |||
Data powered by ATTOM Data Solutions. Copyright© 2026. Information deemed reliable but not guaranteed.
The schools shown represent both the assigned schools and schools by distance based on local school and district attendance boundaries. Attendance boundaries change based on various factors and proximity does not guarantee enrollment eligibility. Please consult your real estate agent and/or the school district to confirm the schools this property is zoned to attend. Information is deemed reliable but not guaranteed.
SchoolDigger ® Rating
The SchoolDigger rating system is a 1-5 scale with 5 as the highest rating. SchoolDigger ranks schools based on test scores supplied by each state's Department of Education. They calculate an average standard score by normalizing and averaging each school's test scores across all tests and grades.
Coming soon properties will soon be on the market, but are not yet available for showings.