615 Cumberland Drive Flagler Beach, FL 32136 - INTRACOASTAL WATERWAY
For Sale MLS# FC312660
4 beds 4 baths 2,541 sq ft Single Family
Details for 615 Cumberland Drive
MLS# FC312660
Description for 615 Cumberland Drive, Flagler Beach, FL, 32136 - INTRACOASTAL WATERWAY
Your coastal lifestyle in Flagler Beach is here — just steps from the sand and only five homes from the Intracoastal. Recent price improvement for this spectacularly remodeled and exquisitely appointed, this waterfront residence on a saltwater canal offers a private dock, new pool and putting green and brand new luxury finishes throughout. The chef’s kitchen is a showpiece, featuring quartz counters, a built-in refrigerator, and a commercial gas range. The dining room includes a built-in wine bar with a double wine refrigerator — perfect for entertaining. An open great room with vaulted ceilings, stone fireplace, and dual sets of sliders seamlessly connect indoor and outdoor living. The thoughtful floor plan includes 4 bedrooms and 3.5 baths. The primary suite is a retreat with dual sinks, a walk-in shower with rain and handheld fixtures, and a large, custom walk-in closet with built-ins. One guest bedroom — large enough to serve as a second primary — enjoys a private ensuite bath, while the remaining two bedrooms share a Jack-and-Jill designed bath, ensuring every bedroom has direct bathroom access. A powder room is conveniently available for guests. Additional features include a separate laundry room with washer, dryer, built-in cabinetry, and folding area, plus an 650 sq. ft. oversized two-car rear accessed garage through with an 18' garage door and access to the backyard bar and entertainment space. Outdoor living is equally impressive. A large screened, pavered and covered lanai with a built-in summer kitchen and your own putting green next to a playful surfboard-topped bar by the pool create an entertainer’s paradise! The property showcases a low-maintenance paver and concrete driveway with an electronic privacy gate, while the backyard and driveway feature modern paver stone inlays surrounded by artificial turf for a clean, upscale finish. Energy-efficient geothermal heat pump systems provide heating and cooling, while new impact-resistant casement windows further enhance comfort and peace of mind. Beyond your dock, enjoy quick access to the Intracoastal Waterway for boating, inshore fishing, or ocean excursions. Just blocks away, Flagler Beach offers a laid-back, golf cart or walkable coastal lifestyle with its iconic pier, vibrant downtown restaurants and shops, and abundant opportunities for recreation on both land and water. This is a rare opportunity to own a fully remodeled, turnkey home that combines premium finishes, thoughtful design, private dockage, and a sought-after coastal location. Owner financing available!
Listing Information
Property Type: Residential, Single Family Residence
Status: Active
Bedrooms: 4
Bathrooms: 4
Lot Size: 0.24 Acres
Square Feet: 2,541 sq ft
Year Built: 1978
Garage: Yes
Stories: 1 Story
Construction: Concrete,Stone,Stucco
Construction Display: New Construction
Subdivision: Morningside Sub
Foundation: Slab
County: Flagler
Construction Status: New Construction
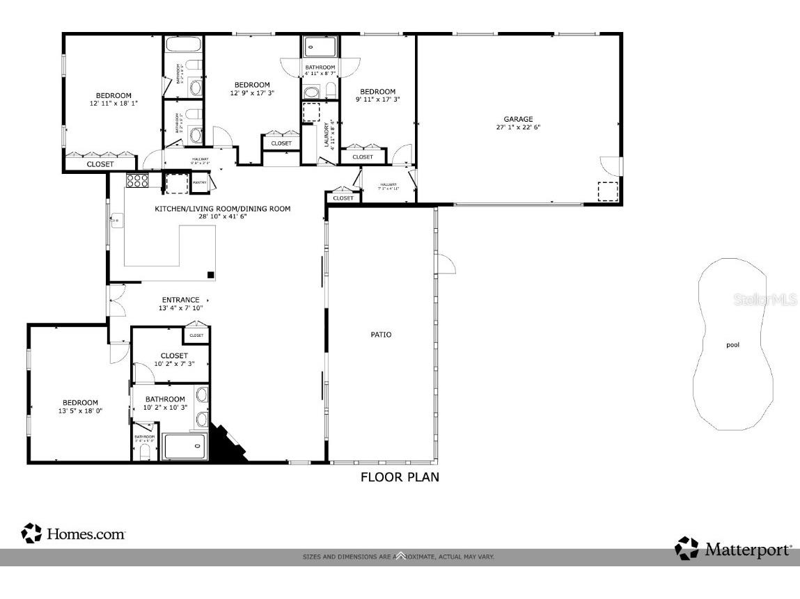
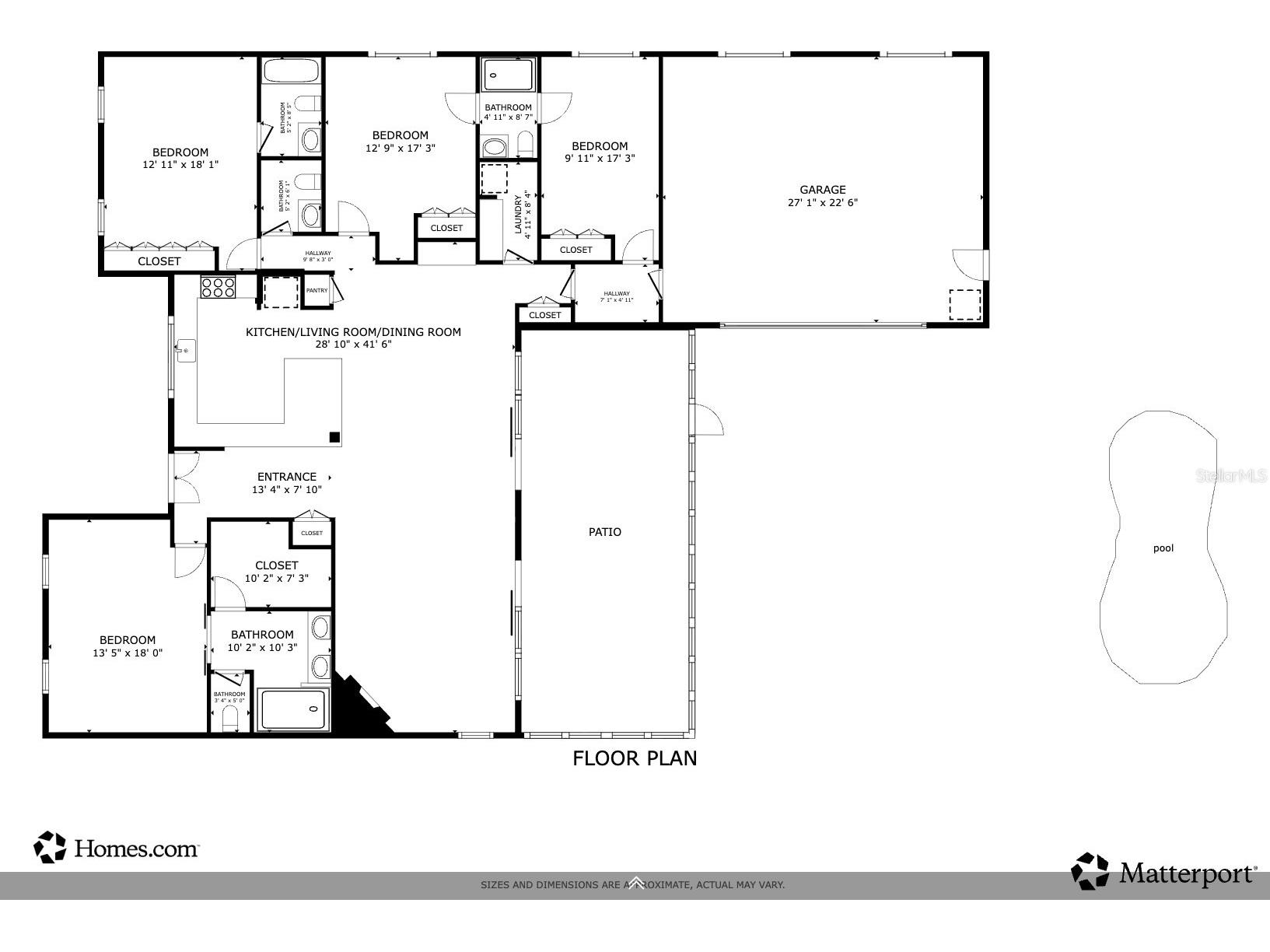
Room Information
Main Floor
Porch: 5x25
Bedroom 2: 13x16
Primary Bedroom: 13.6x17.8
Porch: 15x35
Kitchen: 14x15
Foyer: 6.5x14
Dining Room: 14.5x18.1
Great Room: 15.4x21
Laundry: 5.2x8.3
Bedroom 4: 9.1x15
Bedroom 3: 12.5x14.8
Bathrooms
Full Baths: 3
1/2 Baths: 1
Additonal Room Information
Laundry: Inside, Washer Hookup, Laundry Room, Electric Dryer Hookup
Interior Features
Appliances: Wine Refrigerator, Bar Fridge, Convection Oven, Electric Water Heater, Range Hood, Microwave, Range, Refrigerator, Washer, Cooktop, Dishwasher, Disposal, Dryer
Flooring: Epoxy,Luxury Vinyl
Doors/Windows: Double Pane Windows, Storm Window(s)
Fireplaces: Family Room, Stone, Wood Burning
Additional Interior Features: Split Bedrooms, Walk-In Closet(s), Solid Surface Counters, Open Floorplan, Dry Bar, Main Level Primary, Living/Dining Room
Utilities
Water: Public
Sewer: Public Sewer
Other Utilities: Cable Available,Electricity Connected,Propane,Municipal Utilities,Sewer Connected,Water Connected
Cooling: Central Air
Heating: Electric, Central, Other
Exterior / Lot Features
Attached Garage: Attached Garage
Garage Spaces: 2
Parking Description: Circular Driveway, Garage Faces Rear, Garage Faces Side, Workshop in Garage, Oversized, Garage Door Opener, driveway, Garage
Roof: Shingle
Pool: In Ground, Fiberglass
Lot View: Canal,Pool,Water
Lot Dimensions: 75x140
Fencing: fenced
Additional Exterior/Lot Features: Outdoor Grill, Outdoor Shower, Rain Gutters, Private Entrance, Permeable Paving, Outdoor Kitchen, Screened, Covered, Rear Porch, Flat, Level, Landscaped, Dead End
Out Buildings: Cabana, Outdoor Kitchen
Waterfront Details
Standard Water Body: INTRACOASTAL WATERWAY
Water Front Features: River Access, Canal Access, River Front
Community Features
Security Features: Secured Garage/Parking, Security Gate, Smoke Detector(s)
Driving Directions
From I-95 exit 284 Fl-100 E to A1A then south to 23rd St. Turn right and and follow Palm Ave. Left on Palm Ave and Right on Cumberland Dr to home on left side.
Financial Considerations
Terms: Cash,Conventional,Lease Option,Lease Purchase,Owner May Carry,VA Loan
Tax/Property ID: 19-12-32-4550-00300-0150
Tax Amount: 8767.59
Tax Year: 2024
A broker reciprocity listing courtesy: ONE SOTHEBYS INTERNATIONAL
Based on information provided by Stellar MLS as distributed by the MLS GRID. Information from the Internet Data Exchange is provided exclusively for consumers’ personal, non-commercial use, and such information may not be used for any purpose other than to identify prospective properties consumers may be interested in purchasing. This data is deemed reliable but is not guaranteed to be accurate by Edina Realty, Inc., or by the MLS. Edina Realty, Inc., is not a multiple listing service (MLS), nor does it offer MLS access.
Copyright 2026 Stellar MLS as distributed by the MLS GRID. All Rights Reserved.
Payment Calculator
Interest rate and annual percentage rate (APR) are based on current market conditions, are for informational purposes only, are subject to change without notice and may be subject to pricing add-ons related to property type, loan amount, loan-to-value, credit score and other variables. Estimated closing costs used in the APR calculation are assumed to be paid by the borrower at closing. If the closing costs are financed, the loan, APR and payment amounts will be higher. If the down payment is less than 20%, mortgage insurance may be required and could increase the monthly payment and APR. Contact us for details. Additional loan programs may be available. Accuracy is not guaranteed, and all products may not be available in all borrower's geographical areas and are based on their individual situation. This is not a credit decision or a commitment to lend.
Sales History & Tax Summary for 615 Cumberland Drive
Sales History
| Date | Price | |
|---|---|---|
| Currently not available. | ||
Tax Summary
| Tax Year | Estimated Market Value | Total Tax |
|---|---|---|
| Currently not available. | ||
Data powered by ATTOM Data Solutions. Copyright© 2026. Information deemed reliable but not guaranteed.
Schools
Schools nearby 615 Cumberland Drive
| Schools in attendance boundaries | Grades | Distance | Rating |
|---|---|---|---|
| Loading... | |||
| Schools nearby | Grades | Distance | Rating |
|---|---|---|---|
| Loading... | |||
Data powered by ATTOM Data Solutions. Copyright© 2026. Information deemed reliable but not guaranteed.
The schools shown represent both the assigned schools and schools by distance based on local school and district attendance boundaries. Attendance boundaries change based on various factors and proximity does not guarantee enrollment eligibility. Please consult your real estate agent and/or the school district to confirm the schools this property is zoned to attend. Information is deemed reliable but not guaranteed.
SchoolDigger ® Rating
The SchoolDigger rating system is a 1-5 scale with 5 as the highest rating. SchoolDigger ranks schools based on test scores supplied by each state's Department of Education. They calculate an average standard score by normalizing and averaging each school's test scores across all tests and grades.
Coming soon properties will soon be on the market, but are not yet available for showings.