$560,210
615 Jandel Avenue NE Hanover, MN 55341
For Sale MLS# 7043740
5 beds 3 baths 2,693 sq ft Single Family
Details for 615 Jandel Avenue NE
MLS# 7043740
Description for 615 Jandel Avenue NE, Hanover, MN, 55341
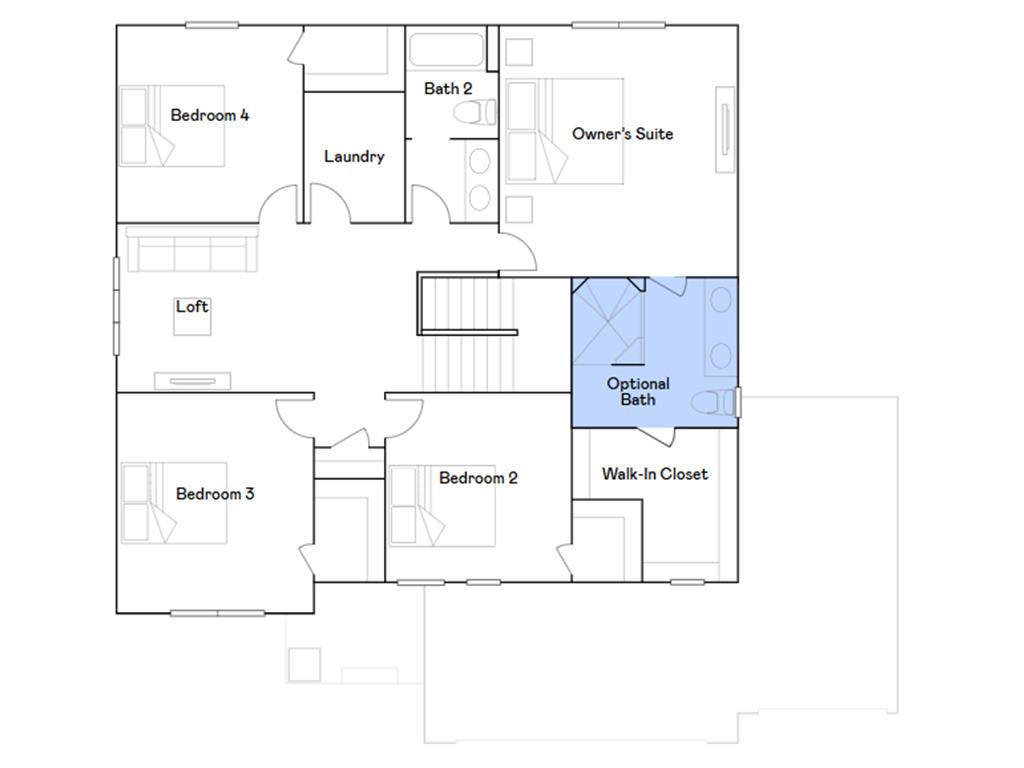
This home is under construction and available or a June closing! Featuring an expansive 2,693 square feet of living space, this remarkable two-story home is designed for both comfort and versatility. Step inside to an open-concept main level where the kitchen flows seamlessly into the dining room and spacious Great Room, perfect for daily living and entertaining. A dedicated 5th bedroom on the first floor offers endless possibilities to suit your lifestyle, while the electric fireplace adds a touch of warmth and style. Upstairs, discover a luxurious owner's suite and three additional bedrooms—all featuring walk-in closets for optimal organization. The central loft provides even more flexibility to adapt to your needs. An unfinished full basement presents the opportunity for future customizations, and the 3-car garage delivers exceptional storage and parking. High-demand homes like this rarely stay available, so act quickly to secure this standout floorplan.
Listing Information
Property Type: Residential, Single Family
Status: Active
Bedrooms: 5
Bathrooms: 3
Lot Size: 0.20 Acres
Square Feet: 2,693 sq ft
Year Built: 2026
Foundation: 1,226 sq ft
Garage: Yes
Stories: 2 Stories
Date Available: 6/15/2026
Construction Display: New Construction
Completion date: 2026-06-15T05:00:00Z
Subdivision: Crow River Heights
Builder: LENNAR
County: Wright
Days On Market: 35
Construction Status: Under Construc/Spec Homes
School Information
District: 877 - Buffalo-Hanover-Montrose
Room Information
Main Floor
Bedroom 5: 12x13
Great Room: 16x17
Informal Dining Room: 11x13
Kitchen: 11x13
Upper Floor
Bedroom 1: 15x16
Bedroom 2: 12x12
Bedroom 3: 12x14
Bedroom 4: 11x12
Loft: 12x10
Bathrooms
Full Baths: 1
3/4 Baths: 2
Additonal Room Information
Family: Great Room,Main Level
Dining: Eat In Kitchen,Informal Dining Room
Laundry: Washer Hookup, Laundry Room, Upper Level, Gas Dryer Hookup
Bath Description: 3/4 Primary,Main Floor 3/4 Bath,Private Primary,Upper Level Full Bath
Interior Features
Square Footage above: 2,693 sq ft
Appliances: Stainless Steel Appliances, Tankless Water Heater, Range, Refrigerator, Air-To-Air Exchanger, Dishwasher, Disposal, Furnace Humidifier, Microwave
Basement: Unfinished, Full
Fireplaces: 1, Electric, Family Room
Additional Interior Features: Kitchen Window, Washer/Dryer Hookup, Kitchen Center Island, 3 BR on One Level, 4 BR on One Level, Main Floor Bedroom, Paneled Doors, 2nd Floor Laundry, Primary Bdr Suite
Utilities
Water: City Water/Connected
Sewer: City Sewer/Connected
Cooling: Central
Heating: Natural Gas, Fireplace, Forced Air
Exterior / Lot Features
Attached Garage: Attached Garage
Garage Spaces: 3
Parking Description: Garage Door Opener, Driveway - Asphalt, Attached Garage, Garage Sq Ft - 636.0
Exterior: Vinyl, Other
Roof: Asphalt Shingles, Age 8 Years or Less, Pitched
Lot Dimensions: TBD
Zoning: Residential-Single Family
Additional Exterior/Lot Features: Porch, Sod Included in Price, Underground Utilities
Driving Directions
Take I-494 N, I-94 W, 109th Ave N and County Rd 19
Financial Considerations
Tax/Property ID: TBD
Tax Year: 2026
HomeStead Description: Non-Homesteaded
A broker reciprocity listing courtesy: Lennar Sales Corp
The data relating to real estate for sale on this web site comes in part from the Broker Reciprocity℠ Program of the Regional Multiple Listing Service of Minnesota, Inc. Real estate listings held by brokerage firms other than Edina Realty, Inc. are marked with the Broker Reciprocity℠ logo or the Broker Reciprocity℠ thumbnail and detailed information about them includes the name of the listing brokers. Edina Realty, Inc. is not a Multiple Listing Service (MLS), nor does it offer MLS access. This website is a service of Edina Realty, Inc., a broker Participant of the Regional Multiple Listing Service of Minnesota, Inc. IDX information is provided exclusively for consumers personal, non-commercial use and may not be used for any purpose other than to identify prospective properties consumers may be interested in purchasing. Open House information is subject to change without notice. Information deemed reliable but not guaranteed.
Copyright 2026 Regional Multiple Listing Service of Minnesota, Inc. All Rights Reserved.
Payment Calculator
Interest rate and annual percentage rate (APR) are based on current market conditions, are for informational purposes only, are subject to change without notice and may be subject to pricing add-ons related to property type, loan amount, loan-to-value, credit score and other variables. Estimated closing costs used in the APR calculation are assumed to be paid by the borrower at closing. If the closing costs are financed, the loan, APR and payment amounts will be higher. If the down payment is less than 20%, mortgage insurance may be required and could increase the monthly payment and APR. Contact us for details. Additional loan programs may be available. Accuracy is not guaranteed, and all products may not be available in all borrower's geographical areas and are based on their individual situation. This is not a credit decision or a commitment to lend.
Sales History & Tax Summary for 615 Jandel Avenue NE
Sales History
| Date | Price | |
|---|---|---|
| Currently not available. | ||
Tax Summary
| Tax Year | Estimated Market Value | Total Tax |
|---|---|---|
| Currently not available. | ||
Data powered by ATTOM Data Solutions. Copyright© 2026. Information deemed reliable but not guaranteed.
Schools
Schools nearby 615 Jandel Avenue NE
| Schools in attendance boundaries | Grades | Distance | Rating |
|---|---|---|---|
| Loading... | |||
| Schools nearby | Grades | Distance | Rating |
|---|---|---|---|
| Loading... | |||
Data powered by ATTOM Data Solutions. Copyright© 2026. Information deemed reliable but not guaranteed.
The schools shown represent both the assigned schools and schools by distance based on local school and district attendance boundaries. Attendance boundaries change based on various factors and proximity does not guarantee enrollment eligibility. Please consult your real estate agent and/or the school district to confirm the schools this property is zoned to attend. Information is deemed reliable but not guaranteed.
SchoolDigger ® Rating
The SchoolDigger rating system is a 1-5 scale with 5 as the highest rating. SchoolDigger ranks schools based on test scores supplied by each state's Department of Education. They calculate an average standard score by normalizing and averaging each school's test scores across all tests and grades.
Coming soon properties will soon be on the market, but are not yet available for showings.