$699,000
6150 Midnight Pass Road #26 Sarasota, FL 34242 - GULF OF MEXICO
For Sale MLS# A4672145
2 beds 2 baths 1,101 sq ft Condo
Details for 6150 Midnight Pass Road #26
MLS# A4672145
Description for 6150 Midnight Pass Road #26, Sarasota, FL, 34242 - GULF OF MEXICO
Your dream Beachside villa is here. Smartly appointed with updated bathrooms and kitchen. Turn key furnished! Carport. Weekly rental can provide income for the owner. On-site manager. Island house is a superbly maintained complex featuring two beach cabanas, a beach, rinsing station, beach, chairs, a large heated, swimming pool, shuffleboard with a view, a game room, two gas grills available to all and a beachfront courtyard where you will experience the most amazing sunsets. Ride the free trolley to Siesta Key village for Dining shopping and entertainment.
Listing Information
Property Type: Residential, Condominium
Status: Active
Bedrooms: 2
Bathrooms: 2
Lot Size: 7.23 Acres
Square Feet: 1,101 sq ft
Year Built: 1967
Stories: 1 Story
Construction: Block
Subdivision: Island House
Foundation: Slab
County: Sarasota
School Information
Elementary: Phillippi Shores Elementary
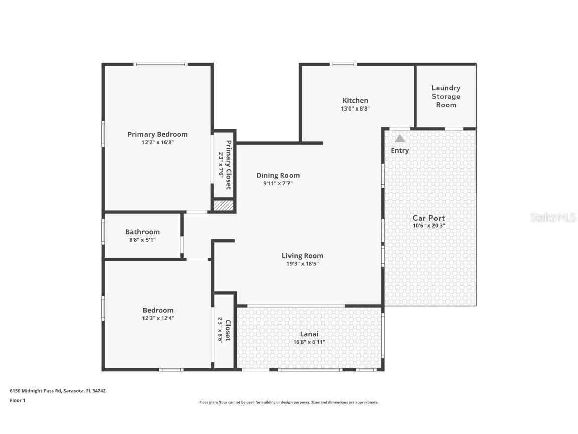
Room Information
Main Floor
Kitchen:
Bedroom 2: 12x12.4
Primary Bedroom: 12x16
Porch: 77x17
Great Room: 19.11x6.11
Bathrooms
Full Baths: 2
Additonal Room Information
Laundry: Outside
Interior Features
Appliances: Microwave, Range, Refrigerator, Dishwasher, Dryer, Washer
Flooring: Tile
Doors/Windows: Window Treatments
Additional Interior Features: Ceiling Fan(s), Living/Dining Room, Window Treatments, Solid Surface Counters, Open Floorplan
Utilities
Water: Public
Sewer: Public Sewer
Other Utilities: Cable Connected,Electricity Connected,High Speed Internet Available,Municipal Utilities,Phone Available,Water Connected
Cooling: Ceiling Fan(s), Central Air
Heating: Electric
Exterior / Lot Features
Roof: Other
Pool: Heated, Community, In Ground, Outside Bath Access
Additional Exterior/Lot Features: Lighting, Storage, Enclosed, Front Porch, Buyer Approval Required
Waterfront Details
Standard Water Body: GULF OF MEXICO
Water Front Features: Gulf Access, Ocean Access
Community Features
Community Features: Gated, Pool, Water Access
Security Features: Gated Community, Security Gate
HOA Dues Include: Pool(s), Maintenance Grounds, Reserve Fund, Maintenance Structure, Association Management, Pest Control, Common Areas, Water, Taxes, Sewer, Cable TV, Trash
Driving Directions
Clark/Stickney Point to Midnight Pass, Turn Right, Island House is on your left. (Gulf side).
Financial Considerations
Terms: Cash,Conventional
Tax/Property ID: 0106032025
Tax Amount: 6897.62
Tax Year: 2024
A broker reciprocity listing courtesy: MICHAEL SAUNDERS & COMPANY
Based on information provided by Stellar MLS as distributed by the MLS GRID. Information from the Internet Data Exchange is provided exclusively for consumers’ personal, non-commercial use, and such information may not be used for any purpose other than to identify prospective properties consumers may be interested in purchasing. This data is deemed reliable but is not guaranteed to be accurate by Edina Realty, Inc., or by the MLS. Edina Realty, Inc., is not a multiple listing service (MLS), nor does it offer MLS access.
Copyright 2025 Stellar MLS as distributed by the MLS GRID. All Rights Reserved.
Payment Calculator
Interest rate and annual percentage rate (APR) are based on current market conditions, are for informational purposes only, are subject to change without notice and may be subject to pricing add-ons related to property type, loan amount, loan-to-value, credit score and other variables. Estimated closing costs used in the APR calculation are assumed to be paid by the borrower at closing. If the closing costs are financed, the loan, APR and payment amounts will be higher. If the down payment is less than 20%, mortgage insurance may be required and could increase the monthly payment and APR. Contact us for details. Additional loan programs may be available. Accuracy is not guaranteed, and all products may not be available in all borrower's geographical areas and are based on their individual situation. This is not a credit decision or a commitment to lend.
Sales History & Tax Summary for 6150 Midnight Pass Road #26
Sales History
| Date | Price | Change |
|---|---|---|
| Currently not available. | ||
Tax Summary
| Tax Year | Estimated Market Value | Total Tax |
|---|---|---|
| Currently not available. | ||
Data powered by ATTOM Data Solutions. Copyright© 2025. Information deemed reliable but not guaranteed.
Schools
Schools nearby 6150 Midnight Pass Road #26
| Schools in attendance boundaries | Grades | Distance | Rating |
|---|---|---|---|
| Loading... | |||
| Schools nearby | Grades | Distance | Rating |
|---|---|---|---|
| Loading... | |||
Data powered by ATTOM Data Solutions. Copyright© 2025. Information deemed reliable but not guaranteed.
The schools shown represent both the assigned schools and schools by distance based on local school and district attendance boundaries. Attendance boundaries change based on various factors and proximity does not guarantee enrollment eligibility. Please consult your real estate agent and/or the school district to confirm the schools this property is zoned to attend. Information is deemed reliable but not guaranteed.
SchoolDigger ® Rating
The SchoolDigger rating system is a 1-5 scale with 5 as the highest rating. SchoolDigger ranks schools based on test scores supplied by each state's Department of Education. They calculate an average standard score by normalizing and averaging each school's test scores across all tests and grades.
Coming soon properties will soon be on the market, but are not yet available for showings.