6203 SW 93rd Loop Ocala, FL 34476
For Sale MLS# G5097169
4 beds 2 baths 2,034 sq ft Single Family
Details for 6203 SW 93rd Loop
MLS# G5097169
Description for 6203 SW 93rd Loop, Ocala, FL, 34476
Not only is there a PRICE REDUCTION, but the Seller is offering up to $10,000 in closing cost assistance on a contract written by December 31, 2025!!! This seller is motivated and will entertain all offers. So come and view the perfect blend of comfort and modern living in this stunning 4-bedroom, 2-bathroom single-family home, boasting 2,034 sq. ft. of meticulously designed space. Built in 2023, this smart home offers contemporary finishes and thoughtful details tailored for active adults seeking both luxury and convenience. Four generously sized bedrooms provide ample space for family and guests, while two full bathrooms feature modern fixtures and finishes.The open-concept design seamlessly connects the living, dining, and kitchen areas, creating an inviting atmosphere for entertaining and everyday living. Enjoy Florida's beautiful weather on your private patio, perfect for morning coffee or evening relaxation. Located in a vibrant 55+ subdivision, the HOA includes lawn maintenance, trash and the upkeep of the clubhouse and common areas insuring all the homes and facilities stay in tip top shape. This carefree living allows you to enjoy the recreational facilities, walking trails, social clubs. and a range of amenities designed for an active lifestyle. Situated in the heart of Ocala, this home offers easy access to shopping, dining, medical facilities, and cultural attractions. The community's serene environment combined with its proximity to urban conveniences makes it an ideal choice for those seeking the best of both worlds.
Listing Information
Property Type: Residential, Single Family Residence
Status: Active
Bedrooms: 4
Bathrooms: 2
Lot Size: 0.20 Acres
Square Feet: 2,034 sq ft
Year Built: 2023
Garage: Yes
Stories: 1 Story
Construction: Concrete,Stucco
Construction Display: New Construction
Subdivision: Jb Ranch Sub Ph 2a
Foundation: Slab
County: Marion
Construction Status: New Construction
School Information
Elementary: Hammett Bowen Jr. Elementary
Middle: Liberty Middle School
High: West Port High School
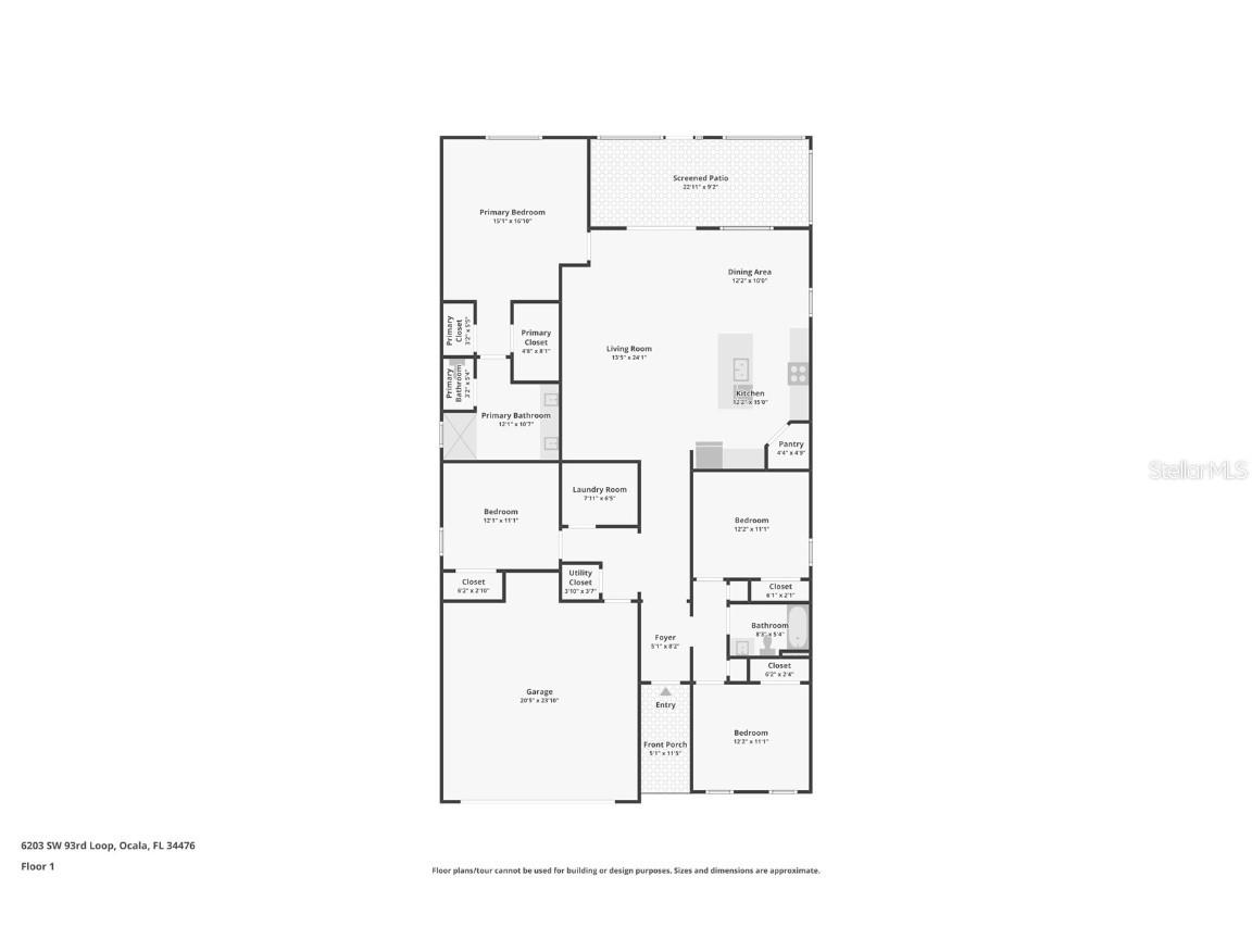
Room Information
Main Floor
Laundry: 8x7
Porch: 23x9
Kitchen: 17x13
Dining Room: 12x10
Living Room: 24x14
Bedroom 4: 11x12
Bedroom 3: 12x11
Bedroom 2: 12x11
Bathroom 2: 5x9
Primary Bathroom: 12x11
Primary Bedroom: 17x15
Bathrooms
Full Baths: 2
Additonal Room Information
Laundry: Inside, Laundry Room
Interior Features
Appliances: Exhaust Fan, Electric Water Heater, Microwave, Range, Dishwasher, Disposal
Flooring: Carpet,Porcelain Tile
Doors/Windows: Low-Emissivity Windows, Double Pane Windows, Insulated Windows, ENERGY STAR Qualified Windows
Additional Interior Features: Eat-In Kitchen, Walk-In Closet(s), Split Bedrooms, Main Level Primary, High Ceilings, Stone Counters, Open Floorplan
Utilities
Water: Public
Sewer: Public Sewer
Other Utilities: Electricity Connected,High Speed Internet Available,Municipal Utilities,Sewer Connected,Underground Utilities,Water Connected
Cooling: Central Air
Heating: Electric, Central
Exterior / Lot Features
Attached Garage: Attached Garage
Garage Spaces: 2
Roof: Shingle
Pool: Community, Association
Lot Dimensions: 69x128
Additional Exterior/Lot Features: Rain Gutters, Sprinkler/Irrigation, Lighting, Enclosed, Screened, Covered, Rear Porch, Landscaped
Community Features
Community Features: Pool, Sidewalks, Clubhouse, Street Lights, Gated, Fitness, Golf Carts OK, Recreation Area, Community Mailbox
Security Features: Key Card Entry, Lobby Secured, Gated Community, Smoke Detector(s)
Association Amenities: Recreation Facilities, Clubhouse, Pool, Pickleball
HOA Dues Include: Pool(s), Maintenance Grounds, Recreation Facilities
Homeowners Association: Yes
HOA Dues: $100 / Monthly
Driving Directions
Take exit 350 toward SR-200/Hernando/Dunnellon onto SR-200 S (SW College Rd). Go for 5.7 mi. Turn left onto SW 95th St Rd. Go for 1.5 mi. Turn left onto SW 60th Terrace Rd. Go for 272 ft. Turn right onto SW 93rd Loop. Go for 459 ft.
Financial Considerations
Terms: Cash,Conventional,FHA,USDA Loan,VA Loan
Tax/Property ID: 35700-02-073
Tax Amount: 3378.77
Tax Year: 2024
A broker reciprocity listing courtesy: COLDWELL BANKER VANGUARD LIFESTYLE REALTY
Based on information provided by Stellar MLS as distributed by the MLS GRID. Information from the Internet Data Exchange is provided exclusively for consumers’ personal, non-commercial use, and such information may not be used for any purpose other than to identify prospective properties consumers may be interested in purchasing. This data is deemed reliable but is not guaranteed to be accurate by Edina Realty, Inc., or by the MLS. Edina Realty, Inc., is not a multiple listing service (MLS), nor does it offer MLS access.
Copyright 2025 Stellar MLS as distributed by the MLS GRID. All Rights Reserved.
Payment Calculator
Interest rate and annual percentage rate (APR) are based on current market conditions, are for informational purposes only, are subject to change without notice and may be subject to pricing add-ons related to property type, loan amount, loan-to-value, credit score and other variables. Estimated closing costs used in the APR calculation are assumed to be paid by the borrower at closing. If the closing costs are financed, the loan, APR and payment amounts will be higher. If the down payment is less than 20%, mortgage insurance may be required and could increase the monthly payment and APR. Contact us for details. Additional loan programs may be available. Accuracy is not guaranteed, and all products may not be available in all borrower's geographical areas and are based on their individual situation. This is not a credit decision or a commitment to lend.
Sales History & Tax Summary for 6203 SW 93rd Loop
Sales History
| Date | Price | Change |
|---|---|---|
| Currently not available. | ||
Tax Summary
| Tax Year | Estimated Market Value | Total Tax |
|---|---|---|
| Currently not available. | ||
Data powered by ATTOM Data Solutions. Copyright© 2025. Information deemed reliable but not guaranteed.
Schools
Schools nearby 6203 SW 93rd Loop
| Schools in attendance boundaries | Grades | Distance | Rating |
|---|---|---|---|
| Loading... | |||
| Schools nearby | Grades | Distance | Rating |
|---|---|---|---|
| Loading... | |||
Data powered by ATTOM Data Solutions. Copyright© 2025. Information deemed reliable but not guaranteed.
The schools shown represent both the assigned schools and schools by distance based on local school and district attendance boundaries. Attendance boundaries change based on various factors and proximity does not guarantee enrollment eligibility. Please consult your real estate agent and/or the school district to confirm the schools this property is zoned to attend. Information is deemed reliable but not guaranteed.
SchoolDigger ® Rating
The SchoolDigger rating system is a 1-5 scale with 5 as the highest rating. SchoolDigger ranks schools based on test scores supplied by each state's Department of Education. They calculate an average standard score by normalizing and averaging each school's test scores across all tests and grades.
Coming soon properties will soon be on the market, but are not yet available for showings.