622 Anhinga Road Winter Springs, FL 32708
For Sale MLS# O6369225
3 beds 3 baths 1,721 sq ft Single Family
Details for 622 Anhinga Road
MLS# O6369225
Description for 622 Anhinga Road, Winter Springs, FL, 32708
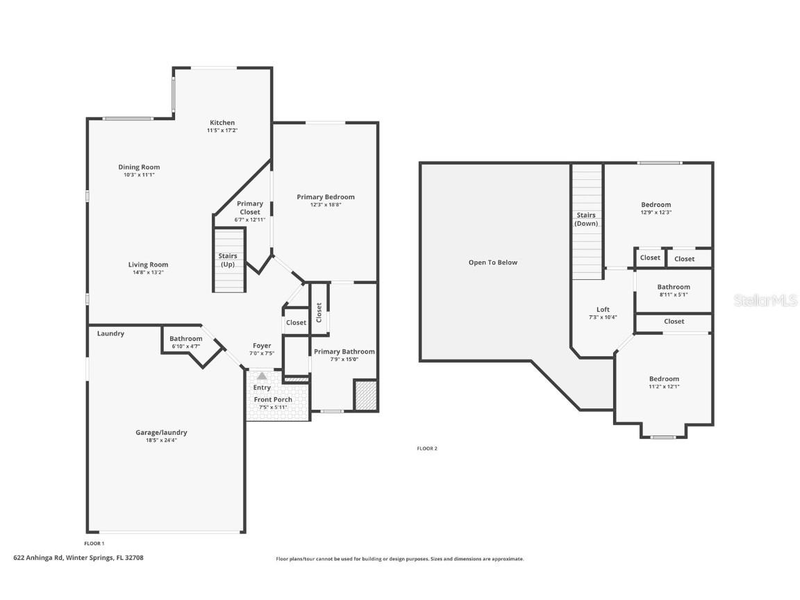
Price confirmed at $399,000 based on the completed 4-Point Inspection, which confirms the clay tile roof has approximately 13 years of remaining useful life—creating a strong opportunity for buyers to take advantage of the current value. The roof, HVAC (2017–2018), electrical panels, plumbing, and water heater (2022) were all reviewed in the 4-Point Inspection completed on 01/12/2026, with all major systems marked satisfactory; inspection report is available in MLS and an insurance quote is available upon request. This well-maintained two-story home offers 1,721 sq ft of living space with a bright, open layout, high ceilings, and tile flooring throughout the main living areas. The kitchen features granite countertops, stainless steel appliances, light cabinetry, and a breakfast bar with sliding doors leading to the patio and backyard. The primary suite is located on the main level with a walk-in closet and updated en-suite bathroom, while upstairs includes a loft, two additional bedrooms, and a full bathroom for flexible living. Additional features include an interior laundry room, attached two-car garage, neutral finishes throughout, and the home is vacant and easy to show. Conveniently located near UCF, Valencia College, major roadways (417, 434, I-4), shopping, dining, Downtown Orlando, and Central Florida beaches, and zoned for Seminole County schools.
Listing Information
Property Type: Residential, Single Family Residence
Status: Active
Bedrooms: 3
Bathrooms: 3
Lot Size: 0.14 Acres
Square Feet: 1,721 sq ft
Year Built: 1988
Garage: Yes
Stories: 2 Story
Construction: Block,Concrete,Stucco
Subdivision: Greenspointe
Foundation: Slab
County: Seminole
School Information
Elementary: Highlands Elementary
Middle: South Seminole Middle
High: Winter Springs High
Room Information
Main Floor
Primary Bathroom:
Primary Bedroom:
Dining Room:
Kitchen:
Living Room:
Upper Floor
Bedroom 3:
Bedroom 2:
Bathrooms
Full Baths: 2
1/2 Baths: 1
Additonal Room Information
Laundry: In Garage
Interior Features
Appliances: Dishwasher, Range, Range Hood
Flooring: Ceramic Tile,Tile
Additional Interior Features: Ceiling Fan(s), High Ceilings, Main Level Primary
Utilities
Water: Public
Sewer: Public Sewer
Other Utilities: Electricity Connected,Water Available
Cooling: Central Air, Ceiling Fan(s)
Heating: Central
Exterior / Lot Features
Attached Garage: Attached Garage
Garage Spaces: 2
Roof: Tile
Community Features
Homeowners Association: Yes
HOA Dues: $319 / Quarterly
Driving Directions
From SR-434, turn onto Shepard Road. Continue to Sheoah Blvd and turn left. Turn left onto Osprey Lane, then turn right onto Anhinga Road. Property will be on the right.
Financial Considerations
Terms: Assumable,Cash,Conventional,FHA,Lease Option,Lease Purchase,Owner May Carry,Other,Private Financing Available,Special Funding,Trade,USDA Loan,VA Loan
Tax/Property ID: 33-20-30-522-0000-0160
Tax Amount: 4083
Tax Year: 2024
A broker reciprocity listing courtesy: KELLER WILLIAMS ADVANTAGE 2 REALTY
Based on information provided by Stellar MLS as distributed by the MLS GRID. Information from the Internet Data Exchange is provided exclusively for consumers’ personal, non-commercial use, and such information may not be used for any purpose other than to identify prospective properties consumers may be interested in purchasing. This data is deemed reliable but is not guaranteed to be accurate by Edina Realty, Inc., or by the MLS. Edina Realty, Inc., is not a multiple listing service (MLS), nor does it offer MLS access.
Copyright 2026 Stellar MLS as distributed by the MLS GRID. All Rights Reserved.
Payment Calculator
Interest rate and annual percentage rate (APR) are based on current market conditions, are for informational purposes only, are subject to change without notice and may be subject to pricing add-ons related to property type, loan amount, loan-to-value, credit score and other variables. Estimated closing costs used in the APR calculation are assumed to be paid by the borrower at closing. If the closing costs are financed, the loan, APR and payment amounts will be higher. If the down payment is less than 20%, mortgage insurance may be required and could increase the monthly payment and APR. Contact us for details. Additional loan programs may be available. Accuracy is not guaranteed, and all products may not be available in all borrower's geographical areas and are based on their individual situation. This is not a credit decision or a commitment to lend.
Sales History & Tax Summary for 622 Anhinga Road
Sales History
| Date | Price | Change |
|---|---|---|
| Currently not available. | ||
Tax Summary
| Tax Year | Estimated Market Value | Total Tax |
|---|---|---|
| Currently not available. | ||
Data powered by ATTOM Data Solutions. Copyright© 2026. Information deemed reliable but not guaranteed.
Schools
Schools nearby 622 Anhinga Road
| Schools in attendance boundaries | Grades | Distance | Rating |
|---|---|---|---|
| Loading... | |||
| Schools nearby | Grades | Distance | Rating |
|---|---|---|---|
| Loading... | |||
Data powered by ATTOM Data Solutions. Copyright© 2026. Information deemed reliable but not guaranteed.
The schools shown represent both the assigned schools and schools by distance based on local school and district attendance boundaries. Attendance boundaries change based on various factors and proximity does not guarantee enrollment eligibility. Please consult your real estate agent and/or the school district to confirm the schools this property is zoned to attend. Information is deemed reliable but not guaranteed.
SchoolDigger ® Rating
The SchoolDigger rating system is a 1-5 scale with 5 as the highest rating. SchoolDigger ranks schools based on test scores supplied by each state's Department of Education. They calculate an average standard score by normalizing and averaging each school's test scores across all tests and grades.
Coming soon properties will soon be on the market, but are not yet available for showings.