6230 Camino Drive Apollo Beach, FL 33572
For Sale MLS# TB8462658
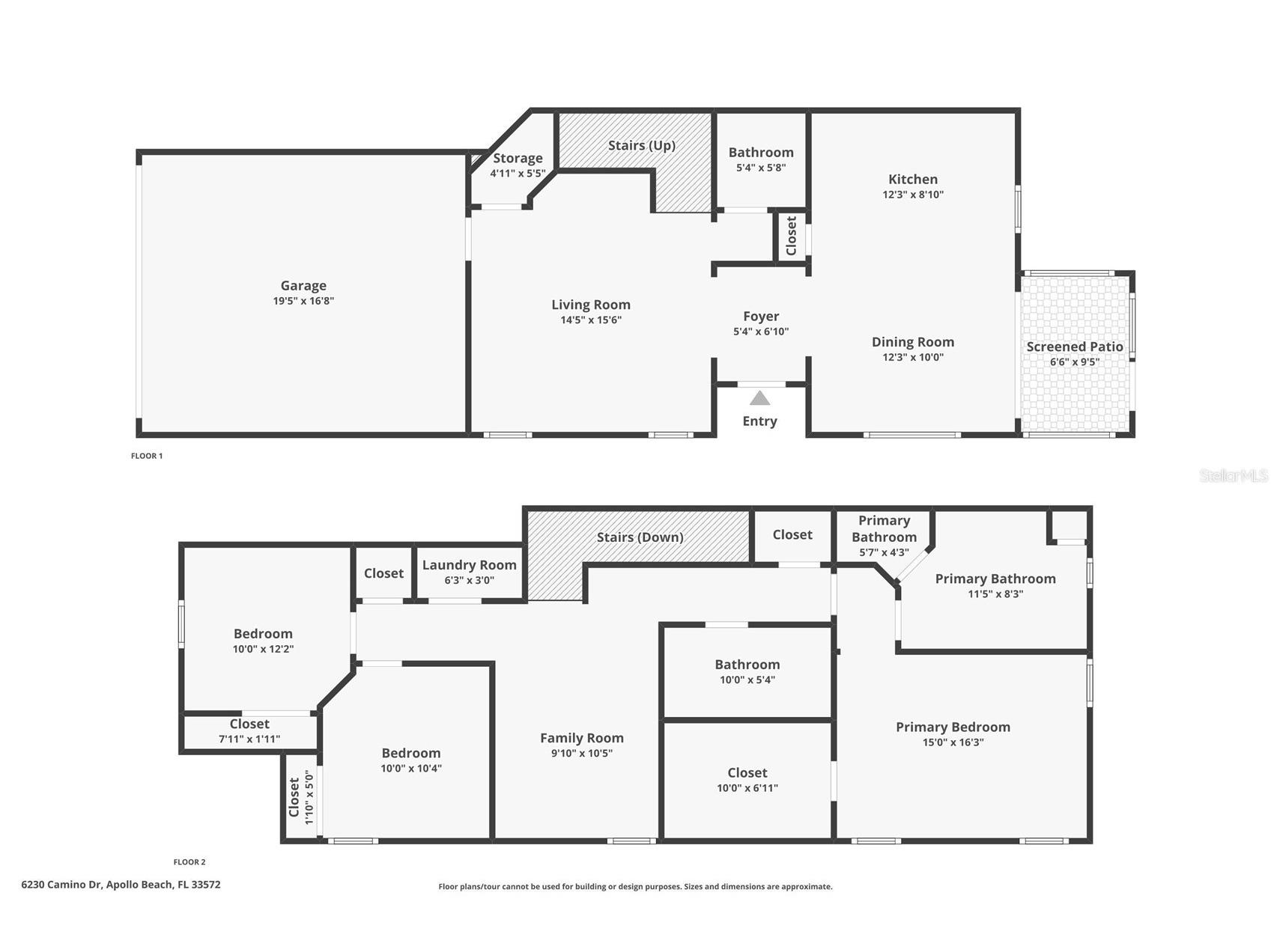
3 beds 3 baths 1,774 sq ft Townhouse/Twinhome
Details for 6230 Camino Drive
MLS# TB8462658
Description for 6230 Camino Drive, Apollo Beach, FL, 33572
** Super LOW 3.25% Assumable Interest Rate Available ** – Buyer Opportunity6320 Camino Dr, Apollo Beach, FL 33572 3 Bedrooms 2.5 Bathrooms 1,774 Sq Ft End Unit Pond View This bright end-unit townhome in Waterset offers a perfect balance of city convenience and suburban comfort. Enjoy walkable access to Waterset Plaza with dining, food options, grocery store, gym, entertainment, and scenic walking trails just steps away. The open main floor features tile throughout and a well-appointed kitchen with stainless steel appliances, quartz countertops, and a center island with breakfast bar seating. Ample cabinetry includes 42" upper cabinets with crown molding, along with recessed and pendant lighting, a subway tile backsplash, and a spacious pantry. The garage has been upgraded with a durable Polyaspartic Top Coat over an Epoxy Base Coat, delivering a clean, polished finish ideal for storage, hobbies, or everyday use. Upstairs, the primary suite showcases a tray ceiling, a large walk-in closet, and a private en-suite bath with dual sinks, quartz countertops, an oversized walk-in shower, and a separate water closet. Two additional bedrooms are generously sized and share a full bathroom with quartz countertops. A versatile loft area provides flexible space for a home office, media room, or play area. The home offers abundant storage, including multiple closets and under-stair storage. Sliding glass doors from the dining area lead to a covered and screened patio overlooking a rare, peaceful pond and green space—an ideal spot for outdoor relaxation. The pie-shaped lot provides extra low-maintenance side yard space, offering added privacy and room for entertaining. Waterset is a highly amenitized community featuring multiple resort-style pools, fitness centers, walking and biking trails, parks, dog parks, playgrounds, and sports courts for basketball, pickleball, and tennis. Residents also enjoy a 20-acre recreation area, regular community events, and proximity to top-rated schools. Conveniently located near Tampa, MacDill AFB, and major commuter routes. No flood zone. Low HOA. Active lifestyle living with everything right outside your door.
Listing Information
Property Type: Residential, Townhouse
Status: Active
Bedrooms: 3
Bathrooms: 3
Lot Size: 0.06 Acres
Square Feet: 1,774 sq ft
Year Built: 2020
Garage: Yes
Stories: 2 Story
Construction: Block
Construction Display: New Construction
Subdivision: Waterset Ph 4a South
Builder: Park Square
Foundation: Slab
County: Hillsborough
Construction Status: New Construction
School Information
Elementary: Doby Elementary-Hb
Middle: Eisenhower-Hb
High: East Bay-Hb
Room Information
Main Floor
Dining Room: 10x12
Kitchen: 9x12
Bathroom 1: 5x5
Great Room: 15x14
Upper Floor
Loft: 10x10
Bathroom 3: 5x10
Primary Bathroom: 8x11
Laundry: 3x6
Bedroom 3: 12x10
Bedroom 2: 10x10
Primary Bedroom: 16x15
Bathrooms
Full Baths: 2
1/2 Baths: 1
Additonal Room Information
Laundry: Inside, Laundry Closet, Upper Level, Gas Dryer Hookup
Interior Features
Appliances: Tankless Water Heater, Washer, Dishwasher, Dryer, Microwave, Range, Refrigerator
Flooring: Carpet,Tile
Doors/Windows: Blinds, Double Pane Windows, Drapes
Additional Interior Features: Loft, Walk-In Closet(s), Eat-In Kitchen, Tray Ceiling(s), Split Bedrooms, Stone Counters, Upper Level Primary
Utilities
Water: Public
Sewer: Public Sewer
Other Utilities: Cable Available,Electricity Connected,Fiber Optic Available,Natural Gas Connected,High Speed Internet Available,Municipal Utilities
Cooling: Central Air
Heating: Gas, Central
Exterior / Lot Features
Attached Garage: Attached Garage
Garage Spaces: 2
Parking Description: Garage, driveway, Garage Door Opener
Roof: Shingle
Pool: Community, Association
Lot View: Pond,Water
Additional Exterior/Lot Features: Rain Gutters, Covered, Screened
Community Features
Community Features: Sidewalks, Lake, Pool, Tennis Court(s), Playground, Clubhouse, Waterfront, Dog Park, Park, Fishing, Fitness, Restaurant, Recreation Area
Association Amenities: Park, Recreation Facilities, Tennis Court(s), Pool, Playground, Fitness Center, Clubhouse
HOA Dues Include: Recreation Facilities, Reserve Fund, Maintenance Structure, Pool(s), Maintenance Grounds
Homeowners Association: Yes
HOA Dues: $234 / Monthly
Driving Directions
From US Hwy 41 turn East onto Paseo Al Mar Blvd. Turn right onto Milestone Dr. Take third exit at the roundabout onto Goldcoast Ave. Take first left onto Camino Dr. Home is ahead on the left.
Financial Considerations
Terms: Cash,Conventional,FHA,VA Loan
Tax/Property ID: U-22-31-19-B40-00124B-00006.0
Tax Amount: 8543
Tax Year: 2025
A broker reciprocity listing courtesy: 27NORTH REALTY
Based on information provided by Stellar MLS as distributed by the MLS GRID. Information from the Internet Data Exchange is provided exclusively for consumers’ personal, non-commercial use, and such information may not be used for any purpose other than to identify prospective properties consumers may be interested in purchasing. This data is deemed reliable but is not guaranteed to be accurate by Edina Realty, Inc., or by the MLS. Edina Realty, Inc., is not a multiple listing service (MLS), nor does it offer MLS access.
Copyright 2026 Stellar MLS as distributed by the MLS GRID. All Rights Reserved.
Payment Calculator
Interest rate and annual percentage rate (APR) are based on current market conditions, are for informational purposes only, are subject to change without notice and may be subject to pricing add-ons related to property type, loan amount, loan-to-value, credit score and other variables. Estimated closing costs used in the APR calculation are assumed to be paid by the borrower at closing. If the closing costs are financed, the loan, APR and payment amounts will be higher. If the down payment is less than 20%, mortgage insurance may be required and could increase the monthly payment and APR. Contact us for details. Additional loan programs may be available. Accuracy is not guaranteed, and all products may not be available in all borrower's geographical areas and are based on their individual situation. This is not a credit decision or a commitment to lend.
Sales History & Tax Summary for 6230 Camino Drive
Sales History
| Date | Price | |
|---|---|---|
| Currently not available. | ||
Tax Summary
| Tax Year | Estimated Market Value | Total Tax |
|---|---|---|
| Currently not available. | ||
Data powered by ATTOM Data Solutions. Copyright© 2026. Information deemed reliable but not guaranteed.
Schools
Schools nearby 6230 Camino Drive
| Schools in attendance boundaries | Grades | Distance | Rating |
|---|---|---|---|
| Loading... | |||
| Schools nearby | Grades | Distance | Rating |
|---|---|---|---|
| Loading... | |||
Data powered by ATTOM Data Solutions. Copyright© 2026. Information deemed reliable but not guaranteed.
The schools shown represent both the assigned schools and schools by distance based on local school and district attendance boundaries. Attendance boundaries change based on various factors and proximity does not guarantee enrollment eligibility. Please consult your real estate agent and/or the school district to confirm the schools this property is zoned to attend. Information is deemed reliable but not guaranteed.
SchoolDigger ® Rating
The SchoolDigger rating system is a 1-5 scale with 5 as the highest rating. SchoolDigger ranks schools based on test scores supplied by each state's Department of Education. They calculate an average standard score by normalizing and averaging each school's test scores across all tests and grades.
Coming soon properties will soon be on the market, but are not yet available for showings.