6231 205th Street N Forest Lake, MN 55025
For Sale MLS# 6819455
3 beds 3 baths 1,517 sq ft Townhouse/Twinhome
Details for 6231 205th Street N
MLS# 6819455
Description for 6231 205th Street N, Forest Lake, MN, 55025
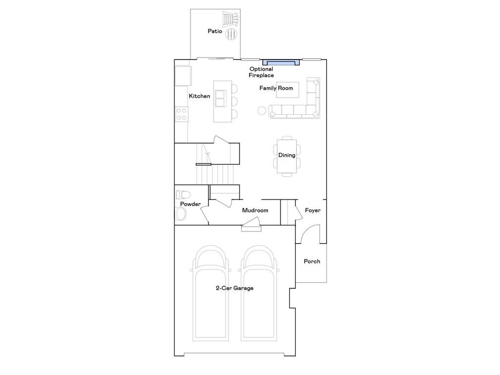
Ask about how to qualify for a 4.5% 7/6 ARM with the use of the Seller's Preferred Lender! Welcome to Shadow Creek Estates in Forest Lake! This 3-bedroom, 2.5-bath townhome is currently under construction and set for completion in February! The open-concept main level features a spacious dining area and a cozy family room with an electric fireplace, perfect for relaxing or entertaining. The kitchen shines with stainless steel appliances, a center island, and easy access to the back patio for outdoor enjoyment. Upstairs, two versatile secondary bedrooms offer space for guests, a home office, or hobbies, while the owner's suite provides a private retreat with a walk-in closet and a dual vanity bath. Located near convenient retail spaces and surrounded by outdoor recreational opportunities, this home offers the perfect blend of modern comfort and active living.
Listing Information
Property Type: Residential, Side by Side
Status: Active
Bedrooms: 3
Bathrooms: 3
Lot Size: 0.04 Acres
Square Feet: 1,517 sq ft
Year Built: 2025
Foundation: 683 sq ft
Garage: Yes
Stories: 2 Stories
Property Attached: Yes
Date Available: 2/9/2026
Construction Display: New Construction
Completion date: 2026-02-09T06:00:00Z
Subdivision: Shadow Creek
Builder: LENNAR
County: Washington
Days On Market: 28
Construction Status: Under Construc/Spec Homes
School Information
District: 831 - Forest Lake
Room Information
Main Floor
Dining Room: 11x9
Kitchen: 11x12
Living Room: 13x15
Mud Room:
Patio:
Upper Floor
Bedroom 1: 13x17
Bedroom 2: 13x10
Bedroom 3: 10x11
Laundry:
Bathrooms
Full Baths: 1
3/4 Baths: 1
1/2 Baths: 1
Additonal Room Information
Family: Great Room,Main Level
Dining: Eat In Kitchen,Informal Dining Room
Laundry: Washer Hookup, Laundry Room, Upper Level, Gas Dryer Hookup
Bath Description: Double Sink,3/4 Primary,Main Floor 1/2 Bath,Private Primary,Upper Level Full Bath
Interior Features
Square Footage above: 1,517 sq ft
Appliances: Tankless Water Heater, Stainless Steel Appliances, Microwave, Range, Refrigerator, Air-To-Air Exchanger, Dishwasher, Disposal, Furnace Humidifier
Fireplaces: 1, Living Room, Electric
Additional Interior Features: Walk-In Closet, Washer/Dryer Hookup, Kitchen Center Island, Paneled Doors, 2nd Floor Laundry, 3 BR on One Level
Utilities
Water: City Water/Connected
Sewer: City Sewer/Connected
Cooling: Central
Heating: Forced Air, Natural Gas
Exterior / Lot Features
Attached Garage: Attached Garage
Garage Spaces: 2
Parking Description: Garage Door Opener, Driveway - Asphalt, Attached Garage, Garage Door Height - 7, Garage Door Width - 16, Garage Sq Ft - 412.0
Exterior: Vinyl
Roof: Age 8 Years or Less, Asphalt Shingles
Lot Dimensions: TBD
Zoning: Residential-Multi-Family
Additional Exterior/Lot Features: Patio, Multi-Level, In-Ground Sprinkler, Sod Included in Price, Road Frontage - Paved Streets, Curbs, City
Community Features
HOA Dues Include: Professional Mgmt, Outside Maintenance
Pets Allowed: Yes
Homeowners Association: Yes
Association Name: Sharper Management
HOA Dues: $284 / Monthly
Driving Directions
Get on I-494 N, Take I-694 E and I-35W N to MN-97 E/Lake Dr NE in Columbus. Take exit 129 from I-35 N. Continue on MN-97 E. Drive to Goodview Ave N in Forest Lake.
Financial Considerations
Covenants/Deed Restrictions: Architecture Committee, Other Covenants, Mandatory Owners Assoc, Pets - Dogs Allowed, Pets - Cats Allowed, Pets - Number Limit
Tax/Property ID: TBD
Tax Year: 2025
HomeStead Description: Non-Homesteaded
A broker reciprocity listing courtesy: Lennar Sales Corp
The data relating to real estate for sale on this web site comes in part from the Broker Reciprocity℠ Program of the Regional Multiple Listing Service of Minnesota, Inc. Real estate listings held by brokerage firms other than Edina Realty, Inc. are marked with the Broker Reciprocity℠ logo or the Broker Reciprocity℠ thumbnail and detailed information about them includes the name of the listing brokers. Edina Realty, Inc. is not a Multiple Listing Service (MLS), nor does it offer MLS access. This website is a service of Edina Realty, Inc., a broker Participant of the Regional Multiple Listing Service of Minnesota, Inc. IDX information is provided exclusively for consumers personal, non-commercial use and may not be used for any purpose other than to identify prospective properties consumers may be interested in purchasing. Open House information is subject to change without notice. Information deemed reliable but not guaranteed.
Copyright 2025 Regional Multiple Listing Service of Minnesota, Inc. All Rights Reserved.
Payment Calculator
Interest rate and annual percentage rate (APR) are based on current market conditions, are for informational purposes only, are subject to change without notice and may be subject to pricing add-ons related to property type, loan amount, loan-to-value, credit score and other variables. Estimated closing costs used in the APR calculation are assumed to be paid by the borrower at closing. If the closing costs are financed, the loan, APR and payment amounts will be higher. If the down payment is less than 20%, mortgage insurance may be required and could increase the monthly payment and APR. Contact us for details. Additional loan programs may be available. Accuracy is not guaranteed, and all products may not be available in all borrower's geographical areas and are based on their individual situation. This is not a credit decision or a commitment to lend.
Sales History & Tax Summary for 6231 205th Street N
Sales History
| Date | Price | Change |
|---|---|---|
| Currently not available. | ||
Tax Summary
| Tax Year | Estimated Market Value | Total Tax |
|---|---|---|
| Currently not available. | ||
Data powered by ATTOM Data Solutions. Copyright© 2025. Information deemed reliable but not guaranteed.
Schools
Schools nearby 6231 205th Street N
| Schools in attendance boundaries | Grades | Distance | Rating |
|---|---|---|---|
| Loading... | |||
| Schools nearby | Grades | Distance | Rating |
|---|---|---|---|
| Loading... | |||
Data powered by ATTOM Data Solutions. Copyright© 2025. Information deemed reliable but not guaranteed.
The schools shown represent both the assigned schools and schools by distance based on local school and district attendance boundaries. Attendance boundaries change based on various factors and proximity does not guarantee enrollment eligibility. Please consult your real estate agent and/or the school district to confirm the schools this property is zoned to attend. Information is deemed reliable but not guaranteed.
SchoolDigger ® Rating
The SchoolDigger rating system is a 1-5 scale with 5 as the highest rating. SchoolDigger ranks schools based on test scores supplied by each state's Department of Education. They calculate an average standard score by normalizing and averaging each school's test scores across all tests and grades.
Coming soon properties will soon be on the market, but are not yet available for showings.