$350,000
6235 Bixel Lane Englewood, FL 34224
For Sale MLS# C7516156
2 beds 2 baths 1,339 sq ft Single Family
Details for 6235 Bixel Lane
MLS# C7516156
Description for 6235 Bixel Lane, Englewood, FL, 34224
Welcome to your slice of Florida paradise! Built in 2018, this immaculate 2-bedroom, 2-bath pool home sits on a desirable corner lot just minutes from beautiful beaches, dining, and shopping. Step inside to discover a bright, open-concept layout designed for both comfortable living and effortless entertaining. The spacious lanai invites you to unwind outdoors, overlooking a beautiful backyard that’s partially fenced on three sides, with wooded privacy along the street, making it ideal for pets, gardening, or simply relaxing by the pool. With its modern finishes, coastal charm, and move-in-ready appeal, this home perfectly captures the Florida lifestyle you’ve been dreaming of.
Listing Information
Property Type: Residential, Single Family Residence
Status: Active
Bedrooms: 2
Bathrooms: 2
Lot Size: 0.24 Acres
Square Feet: 1,339 sq ft
Year Built: 2018
Garage: Yes
Stories: 1 Story
Construction: Concrete,Stucco
Construction Display: New Construction
Subdivision: Port Charlotte Sec 073
Builder: Snyder
Foundation: Block
County: Charlotte
Construction Status: New Construction
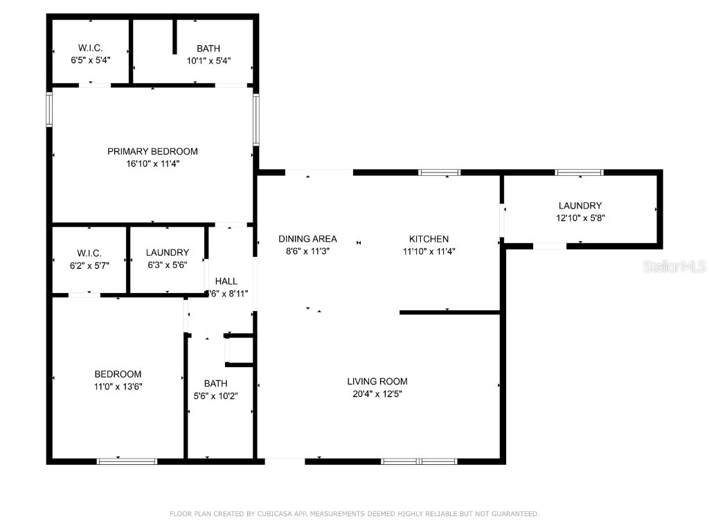
Room Information
Main Floor
Dining Room: 11x8
Kitchen: 11x11
Bedroom 1: 13x11
Primary Bedroom: 11x16
Living Room:
Kitchen: 12x20
Bathrooms
Full Baths: 2
Additonal Room Information
Laundry: Inside, Laundry Room
Interior Features
Appliances: Microwave, Range, Refrigerator, Dishwasher
Flooring: Tile
Additional Interior Features: Walk-In Closet(s), Stone Counters, Ceiling Fan(s)
Utilities
Sewer: Private Sewer
Other Utilities: Cable Available,Water Not Available
Cooling: Ceiling Fan(s), Central Air
Heating: Central
Exterior / Lot Features
Attached Garage: Attached Garage
Garage Spaces: 2
Roof: Shingle
Pool: Gunite, Heated, In Ground
Additional Exterior/Lot Features: Storm/Security Shutters, Corner Lot, Landscaped, Oversized Lot
Driving Directions
From 776/El Jobean Road, Right onto Willmington Blvd, Left onto Bixel Lane.
Financial Considerations
Terms: Cash,Conventional,FHA,VA Loan
Tax/Property ID: 412003156024
Tax Amount: 3609.98
Tax Year: 2024
A broker reciprocity listing courtesy: MARINA PARK REALTY LLC
Based on information provided by Stellar MLS as distributed by the MLS GRID. Information from the Internet Data Exchange is provided exclusively for consumers’ personal, non-commercial use, and such information may not be used for any purpose other than to identify prospective properties consumers may be interested in purchasing. This data is deemed reliable but is not guaranteed to be accurate by Edina Realty, Inc., or by the MLS. Edina Realty, Inc., is not a multiple listing service (MLS), nor does it offer MLS access.
Copyright 2025 Stellar MLS as distributed by the MLS GRID. All Rights Reserved.
Payment Calculator
Interest rate and annual percentage rate (APR) are based on current market conditions, are for informational purposes only, are subject to change without notice and may be subject to pricing add-ons related to property type, loan amount, loan-to-value, credit score and other variables. Estimated closing costs used in the APR calculation are assumed to be paid by the borrower at closing. If the closing costs are financed, the loan, APR and payment amounts will be higher. If the down payment is less than 20%, mortgage insurance may be required and could increase the monthly payment and APR. Contact us for details. Additional loan programs may be available. Accuracy is not guaranteed, and all products may not be available in all borrower's geographical areas and are based on their individual situation. This is not a credit decision or a commitment to lend.
Sales History & Tax Summary for 6235 Bixel Lane
Sales History
| Date | Price | Change |
|---|---|---|
| Currently not available. | ||
Tax Summary
| Tax Year | Estimated Market Value | Total Tax |
|---|---|---|
| Currently not available. | ||
Data powered by ATTOM Data Solutions. Copyright© 2025. Information deemed reliable but not guaranteed.
Schools
Schools nearby 6235 Bixel Lane
| Schools in attendance boundaries | Grades | Distance | Rating |
|---|---|---|---|
| Loading... | |||
| Schools nearby | Grades | Distance | Rating |
|---|---|---|---|
| Loading... | |||
Data powered by ATTOM Data Solutions. Copyright© 2025. Information deemed reliable but not guaranteed.
The schools shown represent both the assigned schools and schools by distance based on local school and district attendance boundaries. Attendance boundaries change based on various factors and proximity does not guarantee enrollment eligibility. Please consult your real estate agent and/or the school district to confirm the schools this property is zoned to attend. Information is deemed reliable but not guaranteed.
SchoolDigger ® Rating
The SchoolDigger rating system is a 1-5 scale with 5 as the highest rating. SchoolDigger ranks schools based on test scores supplied by each state's Department of Education. They calculate an average standard score by normalizing and averaging each school's test scores across all tests and grades.
Coming soon properties will soon be on the market, but are not yet available for showings.