6252 Shiner Street Land O Lakes, FL 34638
For Sale MLS# TB8467082
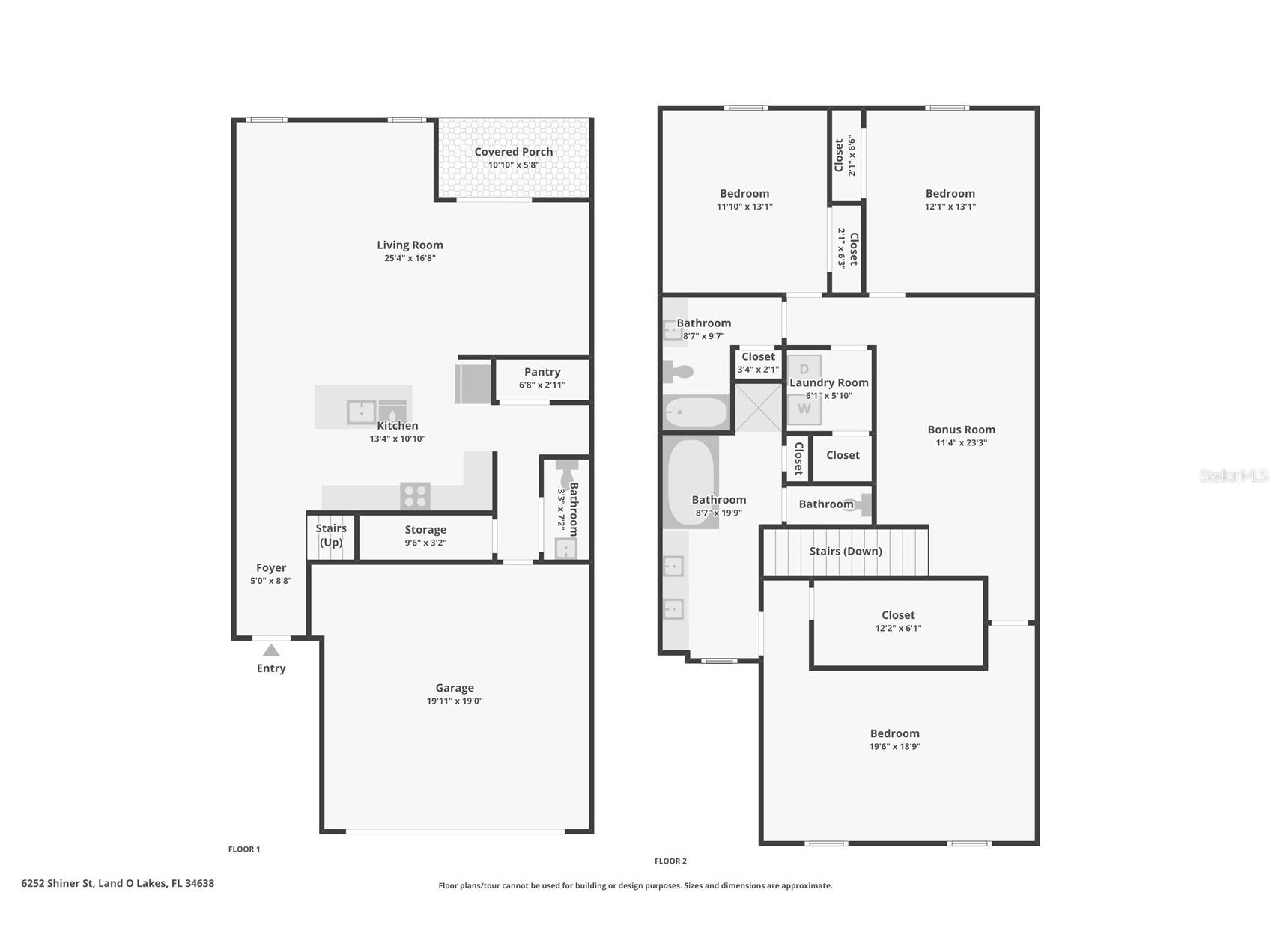
3 beds 3 baths 2,319 sq ft Townhouse/Twinhome
Details for 6252 Shiner Street
MLS# TB8467082
Description for 6252 Shiner Street, Land O Lakes, FL, 34638
One or more photo(s) has been virtually staged. Why settle for less space when you can have it all? Experience the sprawling scale of a single-family residence paired with the ultimate low-maintenance lifestyle in this 2,319 sq. ft. Verona model. From the moment you pull into your private two-car garage - a rare luxury for townhome living - you will feel the difference. Located within the gated enclave of The Townes at Lake Thomas, this home offers an added layer of privacy, controlled access, and NO CDD, making it an even more incredible value. The main level features an open-concept Great Room with durable tile floors and a gourmet kitchen anchored by a massive center island, while perfectly placed powder rooms and extra under-stair storage ensure your home remains functional and organized. Escape upstairs to a massive 18x18 loft, the perfect flex space for a home theater or executive office. The three oversized bedrooms include a primary suite designed for relaxation with dual vanities, a garden soaking tub, and a spacious walk-in closet. Best of all, the entire home is outfitted with high-end impact-resistant windows, providing incredible energy efficiency and peaceful seclusion. Step onto your back patio to take in the water views knowing you never have to lift a finger for yard work. You are just steps away from a resort-style pool, dog park, and a private fishing dock. Your monthly HOA fee covers high-speed internet, cable TV, and full grounds maintenance. With this offer, which is pre-paid for a year, you can spend your weekends enjoying the nearby Tampa Premium Outlets and local dining. Welcome home!
Listing Information
Property Type: Residential, Townhouse
Status: Active
Bedrooms: 3
Bathrooms: 3
Lot Size: 0.06 Acres
Square Feet: 2,319 sq ft
Year Built: 2023
Garage: Yes
Stories: 2 Story
Construction: Block,Stucco
Subdivision: Townes/Lk Thomas Ph 1
Foundation: Slab
County: Pasco
School Information
Elementary: Connerton Elem
Middle: Pine View Middle-Po
High: Land O' Lakes High-Po
Room Information
Main Floor
Living Room:
Kitchen:
Upper Floor
Primary Bedroom:
Bathrooms
Full Baths: 2
1/2 Baths: 1
Additonal Room Information
Laundry: Inside, Laundry Closet
Interior Features
Appliances: Microwave, Range
Flooring: Carpet,Ceramic Tile
Additional Interior Features: Living/Dining Room, Open Floorplan, Upper Level Primary, Kitchen/Family Room Combo
Utilities
Water: Public
Sewer: Public Sewer
Other Utilities: Cable Connected,Electricity Connected,Sewer Connected,Water Connected
Cooling: Central Air
Heating: Central, Electric
Exterior / Lot Features
Attached Garage: Attached Garage
Garage Spaces: 2
Roof: Shingle
Pool: Community
Additional Exterior/Lot Features: Lighting, Rear Porch
Community Features
Community Features: Sidewalks, Pool, Gated, Park, Community Mailbox
Security Features: Gated Community
HOA Dues Include: Maintenance Grounds, Maintenance Structure, Pool(s)
Homeowners Association: Yes
HOA Dues: $322 / Monthly
Driving Directions
Drive north on US-41, continue onto Land O' Lakes Blvd, turn left into the Townes at Lake
Financial Considerations
Terms: Cash,Conventional,FHA,VA Loan
Tax/Property ID: 18-26-01-012.0-000.00-181.0
Tax Amount: 5530.36
Tax Year: 2024
A broker reciprocity listing courtesy: REDFIN CORPORATION
Based on information provided by Stellar MLS as distributed by the MLS GRID. Information from the Internet Data Exchange is provided exclusively for consumers’ personal, non-commercial use, and such information may not be used for any purpose other than to identify prospective properties consumers may be interested in purchasing. This data is deemed reliable but is not guaranteed to be accurate by Edina Realty, Inc., or by the MLS. Edina Realty, Inc., is not a multiple listing service (MLS), nor does it offer MLS access.
Copyright 2026 Stellar MLS as distributed by the MLS GRID. All Rights Reserved.
Payment Calculator
Interest rate and annual percentage rate (APR) are based on current market conditions, are for informational purposes only, are subject to change without notice and may be subject to pricing add-ons related to property type, loan amount, loan-to-value, credit score and other variables. Estimated closing costs used in the APR calculation are assumed to be paid by the borrower at closing. If the closing costs are financed, the loan, APR and payment amounts will be higher. If the down payment is less than 20%, mortgage insurance may be required and could increase the monthly payment and APR. Contact us for details. Additional loan programs may be available. Accuracy is not guaranteed, and all products may not be available in all borrower's geographical areas and are based on their individual situation. This is not a credit decision or a commitment to lend.
Sales History & Tax Summary for 6252 Shiner Street
Sales History
| Date | Price | |
|---|---|---|
| Currently not available. | ||
Tax Summary
| Tax Year | Estimated Market Value | Total Tax |
|---|---|---|
| Currently not available. | ||
Data powered by ATTOM Data Solutions. Copyright© 2026. Information deemed reliable but not guaranteed.
Schools
Schools nearby 6252 Shiner Street
| Schools in attendance boundaries | Grades | Distance | Rating |
|---|---|---|---|
| Loading... | |||
| Schools nearby | Grades | Distance | Rating |
|---|---|---|---|
| Loading... | |||
Data powered by ATTOM Data Solutions. Copyright© 2026. Information deemed reliable but not guaranteed.
The schools shown represent both the assigned schools and schools by distance based on local school and district attendance boundaries. Attendance boundaries change based on various factors and proximity does not guarantee enrollment eligibility. Please consult your real estate agent and/or the school district to confirm the schools this property is zoned to attend. Information is deemed reliable but not guaranteed.
SchoolDigger ® Rating
The SchoolDigger rating system is a 1-5 scale with 5 as the highest rating. SchoolDigger ranks schools based on test scores supplied by each state's Department of Education. They calculate an average standard score by normalizing and averaging each school's test scores across all tests and grades.
Coming soon properties will soon be on the market, but are not yet available for showings.