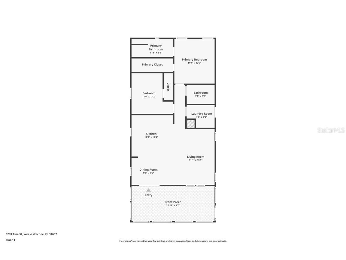
6274 Fine Street Weeki Wachee, FL 34607
Pending MLS# TB8434956
2 beds 2 baths 1,128 sq ft Single Family
Details for 6274 Fine Street
MLS# TB8434956
Description for 6274 Fine Street, Weeki Wachee, FL, 34607
Under contract-accepting backup offers. Experience the best of Florida waterfront living at this beautifully maintained 2-bedroom, 2-bathroom home at 6274 Fine Street in Weeki Wachee. Nestled right on a canal that leads directly to the famous Weeki Wachee River, this newer modular home, built within the last five years, offers the perfect blend of modern comfort and natural beauty. Inside, you’ll find an open layout that seamlessly connects the kitchen, dining, and living areas, creating an inviting space for entertaining or relaxing. The kitchen features an island, granite countertops, while both bathrooms offer walk-in showers for convenience and style. The spacious primary suite includes a huge walk-in closet, providing ample storage. Step outside to the screened-in porch and take in peaceful canal views or launch your kayak or paddleboard right from your private dock. The fenced lot includes a gate that separates it from neighboring properties, adding privacy and security. Estate sale – subject to court approval. The home has never flooded. Whether you’re seeking a year-round residence or a weekend retreat, this move-in-ready home delivers everything you need to embrace the laid-back charm and adventure of Weeki Wachee living. Furnished and ready for a VRBO
Listing Information
Property Type: Residential, Single Family Residence
Status: Pending
Bedrooms: 2
Bathrooms: 2
Lot Size: 0.11 Acres
Square Feet: 1,128 sq ft
Year Built: 2020
Stories: 1 Story
Construction: Metal Siding,Other
Subdivision: Weeki Wachee River Retreats
Foundation: Pillar/Post/Pier
County: Hernando
Room Information
Main Floor
Laundry: 6x7
Bathroom 2: 5x7
Primary Bathroom: 5x11
Bedroom 2: 11x11
Dining Room: 7x9
Primary Bedroom:
Kitchen:
Living Room:
Bathrooms
Full Baths: 2
Additonal Room Information
Laundry: Laundry Room
Interior Features
Appliances: Microwave, Range, Refrigerator
Flooring: Laminate
Additional Interior Features: Ceiling Fan(s), Eat-In Kitchen, Walk-In Closet(s), Living/Dining Room
Utilities
Water: Public
Sewer: Public Sewer
Other Utilities: Cable Available,Electricity Available,High Speed Internet Available,Phone Available,Water Available
Cooling: Central Air, Ceiling Fan(s)
Heating: Central
Exterior / Lot Features
Roof: Shingle
Lot View: Canal,River,Creek/Stream,Water
Lot Dimensions: 50x100
Additional Exterior/Lot Features: Lighting, Screened, Porch, Front Porch, Outside City Limits
Waterfront Details
Water Front Features: Canal Access, Creek, River Access
Driving Directions
Head north on Commercial Way, turn left onto Long Lake Ave, then right onto Brentwood St; turn left onto Birmingham Ave, right onto Allen Dr, right onto Mississippi Run, and right onto Wade St. Home will be on the right.
Financial Considerations
Terms: Cash,Conventional,FHA,VA Loan
Tax/Property ID: R32-222-17-4180-0000-0910
Tax Amount: 2478.57
Tax Year: 2024
A broker reciprocity listing courtesy: LPT REALTY, LLC
Based on information provided by Stellar MLS as distributed by the MLS GRID. Information from the Internet Data Exchange is provided exclusively for consumers’ personal, non-commercial use, and such information may not be used for any purpose other than to identify prospective properties consumers may be interested in purchasing. This data is deemed reliable but is not guaranteed to be accurate by Edina Realty, Inc., or by the MLS. Edina Realty, Inc., is not a multiple listing service (MLS), nor does it offer MLS access.
Copyright 2026 Stellar MLS as distributed by the MLS GRID. All Rights Reserved.
Sales History & Tax Summary for 6274 Fine Street
Sales History
| Date | Price | |
|---|---|---|
| Currently not available. | ||
Tax Summary
| Tax Year | Estimated Market Value | Total Tax |
|---|---|---|
| Currently not available. | ||
Data powered by ATTOM Data Solutions. Copyright© 2026. Information deemed reliable but not guaranteed.
Schools
Schools nearby 6274 Fine Street
| Schools in attendance boundaries | Grades | Distance | Rating |
|---|---|---|---|
| Loading... | |||
| Schools nearby | Grades | Distance | Rating |
|---|---|---|---|
| Loading... | |||
Data powered by ATTOM Data Solutions. Copyright© 2026. Information deemed reliable but not guaranteed.
The schools shown represent both the assigned schools and schools by distance based on local school and district attendance boundaries. Attendance boundaries change based on various factors and proximity does not guarantee enrollment eligibility. Please consult your real estate agent and/or the school district to confirm the schools this property is zoned to attend. Information is deemed reliable but not guaranteed.
SchoolDigger ® Rating
The SchoolDigger rating system is a 1-5 scale with 5 as the highest rating. SchoolDigger ranks schools based on test scores supplied by each state's Department of Education. They calculate an average standard score by normalizing and averaging each school's test scores across all tests and grades.
Coming soon properties will soon be on the market, but are not yet available for showings.