6304 Red Herring Drive Winter Haven, FL 33881
For Sale MLS# O6349084
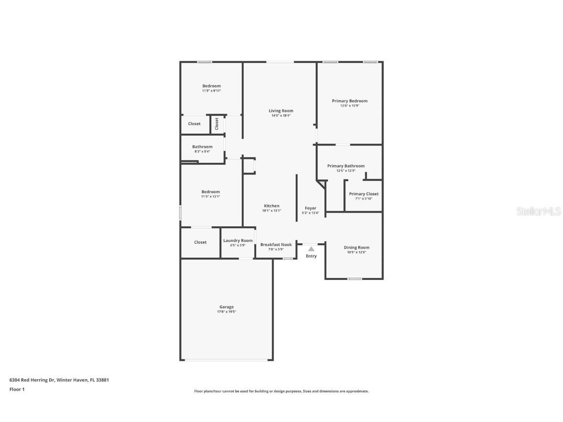
3 beds 2 baths 1,592 sq ft Single Family
Details for 6304 Red Herring Drive
MLS# O6349084
Description for 6304 Red Herring Drive, Winter Haven, FL, 33881
LOCATION, LOCATION, LOCATION! ONLY MINUTES FROM ATTRACTIONS. THIS HARWICH FLOOR PLAN IS GREAT FOR ENTERTAINING WITH IT'S OPEN FLOOR PLAN. HOME IS WELL EQUIPED WITH SIDE BY SIDE FRIDGE, GLASS TOP RANGE, DISHWAHER, WASHER, DRYER, BLINDS THROUGHOUT AND MUCH MORE. MASTER SUITE IS VERY SPACIOUS AND MASTER BATH WITH STAND UP SHOWER AND DOUBLE VANITY. LAKESIDE LANDINGS IS A BEAUTIFUL COMMUNITY WITH A LOT OF GREEN SPACE, A NATURE TRAIL AND PARK AT LAKE CONINE, 2 POOLS (FREEFORM AND LAP), LARGE COVERED LANAI AREA WITH SEATING AND RESTROOMS, AND PLAYGROUND. STOP BY AND TAKE A LOOK AT LAKESIDE LANDINGS COMMUNITY.
Listing Information
Property Type: Residential, Single Family Residence
Status: Active
Bedrooms: 3
Bathrooms: 2
Lot Size: 0.16 Acres
Square Feet: 1,592 sq ft
Year Built: 2016
Garage: Yes
Stories: 1 Story
Construction: Block,Stucco
Construction Display: New Construction
Subdivision: Lakeside Landings Ph 01
Foundation: Slab
County: Polk
Construction Status: Fixer
Room Information
Main Floor
Kitchen: 12x16
Primary Bathroom: 12x8
Primary Bedroom: 12x14
Living Room: 12x15
Bathrooms
Full Baths: 2
Additonal Room Information
Laundry: Laundry Room
Interior Features
Appliances: Convection Oven, Range Hood, Washer, Dishwasher, Dryer, Microwave, Refrigerator
Flooring: Carpet
Additional Interior Features: Kitchen/Family Room Combo, Open Floorplan, Main Level Primary
Utilities
Water: Public
Sewer: Public Sewer
Other Utilities: Electricity Connected,Sewer Connected,Underground Utilities,Water Connected
Cooling: Central Air
Heating: Central
Exterior / Lot Features
Attached Garage: Attached Garage
Garage Spaces: 2
Parking Description: driveway
Roof: Shingle
Additional Exterior/Lot Features: Landscaped
Community Features
Community Features: Sidewalks, Street Lights
Homeowners Association: Yes
HOA Dues: $174 / Annually
Driving Directions
Head southwest on US-17 S/US-92 W/S Orange Blossom Trail/U.S. Hwy 17-92 N toward Osceola Polk Line Rd Continue to follow US-17 S/US-92 W/U.S. Hwy 17-92 N Slight right onto Crestview Ct Continue onto N Lee Jackson Hwy Continue onto Crestview Ct Continue onto N 12th St Turn right onto Lily Ave Turn left onto N 10th St Turn right onto Scenic Hwy Continue onto FL-544 W/Lucerne Park Rd Turn left At the traffic circle, continue straight onto Lakeside Landings Blvd Turn left onto Grey Heron Dr Turn right onto Red Herring Dr Destination will be on the right 6304 Red Herring Dr, Winter Haven, FL 33881
Financial Considerations
Terms: Cash,Conventional,FHA,VA Loan
Tax/Property ID: 26-28-11-531001-003030
Tax Amount: 5550.91
Tax Year: 2024
A broker reciprocity listing courtesy: KELLER WILLIAMS REALTY PREMIER
Based on information provided by Stellar MLS as distributed by the MLS GRID. Information from the Internet Data Exchange is provided exclusively for consumers’ personal, non-commercial use, and such information may not be used for any purpose other than to identify prospective properties consumers may be interested in purchasing. This data is deemed reliable but is not guaranteed to be accurate by Edina Realty, Inc., or by the MLS. Edina Realty, Inc., is not a multiple listing service (MLS), nor does it offer MLS access.
Copyright 2025 Stellar MLS as distributed by the MLS GRID. All Rights Reserved.
Payment Calculator
Interest rate and annual percentage rate (APR) are based on current market conditions, are for informational purposes only, are subject to change without notice and may be subject to pricing add-ons related to property type, loan amount, loan-to-value, credit score and other variables. Estimated closing costs used in the APR calculation are assumed to be paid by the borrower at closing. If the closing costs are financed, the loan, APR and payment amounts will be higher. If the down payment is less than 20%, mortgage insurance may be required and could increase the monthly payment and APR. Contact us for details. Additional loan programs may be available. Accuracy is not guaranteed, and all products may not be available in all borrower's geographical areas and are based on their individual situation. This is not a credit decision or a commitment to lend.
Sales History & Tax Summary for 6304 Red Herring Drive
Sales History
| Date | Price | Change |
|---|---|---|
| Currently not available. | ||
Tax Summary
| Tax Year | Estimated Market Value | Total Tax |
|---|---|---|
| Currently not available. | ||
Data powered by ATTOM Data Solutions. Copyright© 2025. Information deemed reliable but not guaranteed.
Schools
Schools nearby 6304 Red Herring Drive
| Schools in attendance boundaries | Grades | Distance | Rating |
|---|---|---|---|
| Loading... | |||
| Schools nearby | Grades | Distance | Rating |
|---|---|---|---|
| Loading... | |||
Data powered by ATTOM Data Solutions. Copyright© 2025. Information deemed reliable but not guaranteed.
The schools shown represent both the assigned schools and schools by distance based on local school and district attendance boundaries. Attendance boundaries change based on various factors and proximity does not guarantee enrollment eligibility. Please consult your real estate agent and/or the school district to confirm the schools this property is zoned to attend. Information is deemed reliable but not guaranteed.
SchoolDigger ® Rating
The SchoolDigger rating system is a 1-5 scale with 5 as the highest rating. SchoolDigger ranks schools based on test scores supplied by each state's Department of Education. They calculate an average standard score by normalizing and averaging each school's test scores across all tests and grades.
Coming soon properties will soon be on the market, but are not yet available for showings.