$350,000
Off-Market Date: 01/31/20266315 Stone River Road Bradenton, FL 34203
Pending MLS# TB8463551
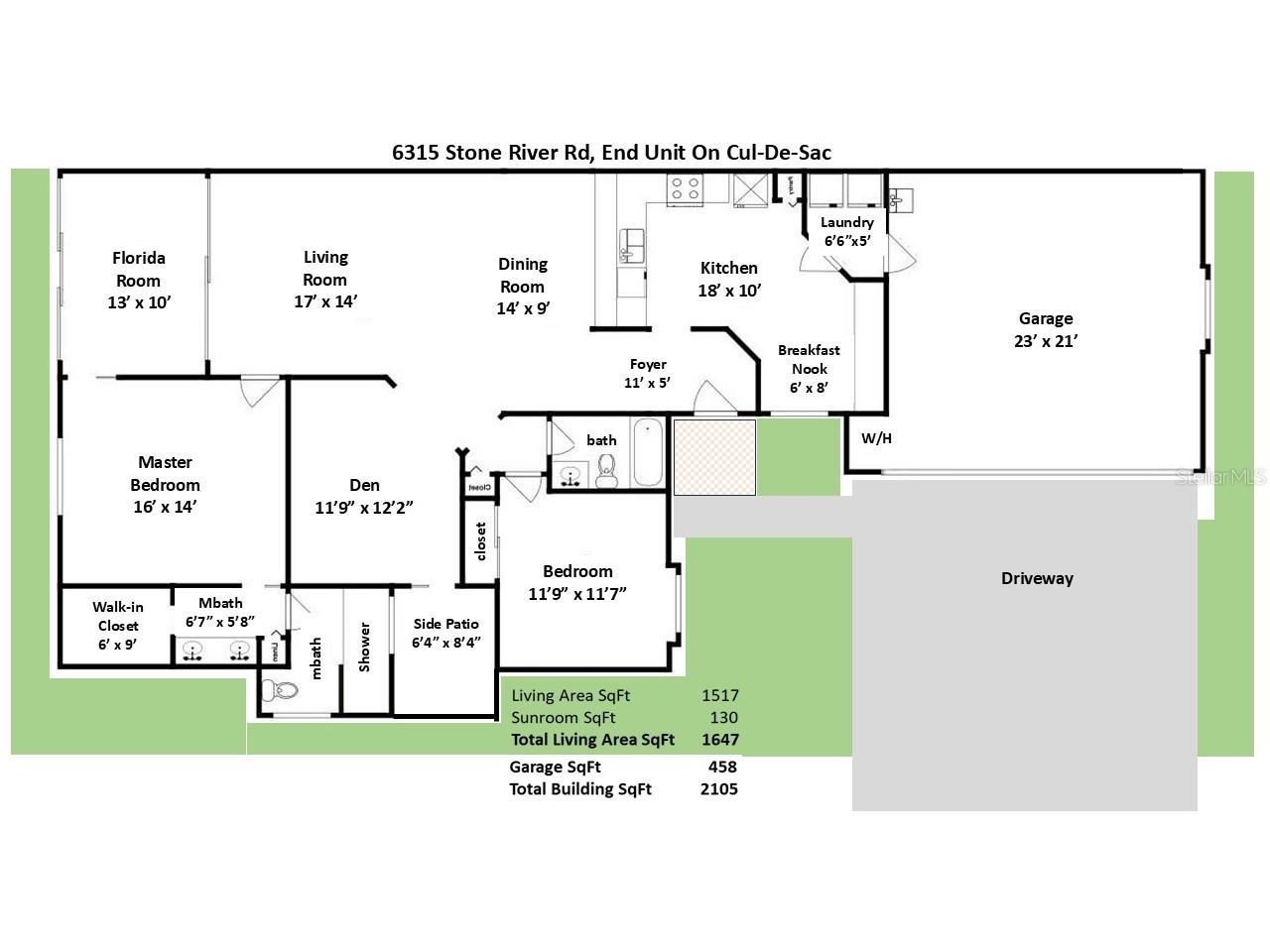
2 beds 2 baths 1,647 sq ft Single Family
Details for 6315 Stone River Road
MLS# TB8463551
Description for 6315 Stone River Road, Bradenton, FL, 34203
Under contract-accepting backup offers. One or more photo(s) has been virtually staged. Must See This Stunning single-story end unit featuring 2 bedrooms, a den, 2 bathrooms, and a 2-car garage. This turnkey furnished villa is located on a serene cul-de-sac within the Twelve Oaks community of Tara, offering maintenance-free living with a surprisingly low HOA fee of just $1,200 per quarter. The original seasonal owner has taken exceptional care of this villa, which showcases impressive renovations throughout. Notable upgrades include enhancements to the kitchen and bathrooms, appliances, sliding doors, flooring, lighting, and beautifully polished wood floors that enhance the open layout adorned with natural light. This remarkable villa also includes a full golf membership to Tara Golf and Country Club, a well-regarded private, member-owned equity club featuring a 6,800-yard par 72 golf course. for a monthly fee of just $547.62. Here, you can indulge in unlimited golf, access the driving range and putting green, explore the pro shop, and savor meals at the gourmet restaurant, renowned for its award-winning brunch buffet. Additionally, you’ll have access to a wealth of activities for the entire family, including new pickle-ball courts, bocce, tennis, swimming, a spa, a snack bar, a gym with cutting-edge exercise equipment, walking and biking trails, a steam room, plus various events, entertainment, and social activities to keep you engaged and having fun.
Listing Information
Property Type: Residential, Villa
Status: Pending
Bedrooms: 2
Bathrooms: 2
Square Feet: 1,647 sq ft
Year Built: 1994
Garage: Yes
Stories: 1 Story
Construction: Block,Stucco
Subdivision: Twelve Oaks I Of Tara Ph 2
Foundation: Slab
County: Manatee
School Information
Elementary: Tara Elementary
Middle: Braden River Middle
High: Braden River High
Room Information
Main Floor
Porch: 9x6
Den: 11x14
Dining Room: 9x16
Living Room: 17x14
Laundry: 6.5x6
Bathroom 2: 7.7x5
Bedroom 2: 12.5x12
Primary Bathroom: 10.8x6.7
Primary Bedroom: 14x16
Florida Room: 10x13
Dinette: 6x8
Kitchen: 10x18
Bathrooms
Full Baths: 2
Additonal Room Information
Laundry: Inside, Washer Hookup, Laundry Room, Electric Dryer Hookup
Interior Features
Appliances: Exhaust Fan, Electric Water Heater, Washer, Microwave, Range, Refrigerator, Dishwasher, Disposal, Dryer
Flooring: Carpet,Travertine,Wood
Doors/Windows: Blinds, Window Treatments, ENERGY STAR Qualified Windows
Additional Interior Features: Walk-In Closet(s), Eat-In Kitchen, Ceiling Fan(s), Open Floorplan, Main Level Primary, Attic, Built-in Features, Window Treatments, Living/Dining Room, High Ceilings, Stone Counters
Utilities
Water: Public
Sewer: Public Sewer
Other Utilities: Cable Connected,Electricity Connected,Municipal Utilities,Sewer Connected,Water Connected
Cooling: Humidity Control, Ceiling Fan(s), Central Air
Heating: Central, Electric, Exhaust Fan
Exterior / Lot Features
Attached Garage: Attached Garage
Garage Spaces: 2
Parking Description: Garage Door Opener, driveway, Garage, Garage Faces Side, Oversized
Roof: Shingle
Pool: Association, Community
Additional Exterior/Lot Features: Rain Gutters, Sprinkler/Irrigation, Front Porch, Covered, Rear Porch, Side Porch, Corner Lot, Landscaped, Cul-de-Sac, Dead End, Oversized Lot, Buyer Approval Required, Near Golf Course
Community Features
Community Features: Fitness, Golf Carts OK, Restaurant, Tennis Court(s), Golf, Pool, Sidewalks, Community Mailbox
Security Features: Smoke Detector(s)
Association Amenities: Recreation Facilities, Tennis Court(s), Clubhouse, Fitness Center, Pool, Spa/Hot Tub, Golf Course, Trail(s), Pickleball
HOA Dues Include: Common Areas, Maintenance Structure, Maintenance Grounds, Reserve Fund, Cable TV, Internet, Taxes, Recreation Facilities, Pool(s)
Homeowners Association: Yes
HOA Dues: $547 / Monthly
Driving Directions
From I-75 exit W onto State Rd 70 W and turn Left on Tara Blvd then turn Right on Drewrys Bluff, pass the clubhouse and turn left on Stone River Rd and follow to the end cul-de-sac to property address.
Financial Considerations
Terms: Cash,Conventional
Tax/Property ID: 1731536007
Tax Amount: 3527.1
Tax Year: 2024
A broker reciprocity listing courtesy: KELLER WILLIAMS SOUTH TAMPA
Based on information provided by Stellar MLS as distributed by the MLS GRID. Information from the Internet Data Exchange is provided exclusively for consumers’ personal, non-commercial use, and such information may not be used for any purpose other than to identify prospective properties consumers may be interested in purchasing. This data is deemed reliable but is not guaranteed to be accurate by Edina Realty, Inc., or by the MLS. Edina Realty, Inc., is not a multiple listing service (MLS), nor does it offer MLS access.
Copyright 2026 Stellar MLS as distributed by the MLS GRID. All Rights Reserved.
Sales History & Tax Summary for 6315 Stone River Road
Sales History
| Date | Price | |
|---|---|---|
| Currently not available. | ||
Tax Summary
| Tax Year | Estimated Market Value | Total Tax |
|---|---|---|
| Currently not available. | ||
Data powered by ATTOM Data Solutions. Copyright© 2026. Information deemed reliable but not guaranteed.
Schools
Schools nearby 6315 Stone River Road
| Schools in attendance boundaries | Grades | Distance | Rating |
|---|---|---|---|
| Loading... | |||
| Schools nearby | Grades | Distance | Rating |
|---|---|---|---|
| Loading... | |||
Data powered by ATTOM Data Solutions. Copyright© 2026. Information deemed reliable but not guaranteed.
The schools shown represent both the assigned schools and schools by distance based on local school and district attendance boundaries. Attendance boundaries change based on various factors and proximity does not guarantee enrollment eligibility. Please consult your real estate agent and/or the school district to confirm the schools this property is zoned to attend. Information is deemed reliable but not guaranteed.
SchoolDigger ® Rating
The SchoolDigger rating system is a 1-5 scale with 5 as the highest rating. SchoolDigger ranks schools based on test scores supplied by each state's Department of Education. They calculate an average standard score by normalizing and averaging each school's test scores across all tests and grades.
Coming soon properties will soon be on the market, but are not yet available for showings.