$199,000
6332 Royal Woods Drive Fort Myers, FL 33908
For Sale MLS# C7514022
2 beds 2 baths 1,008 sq ft Single Family
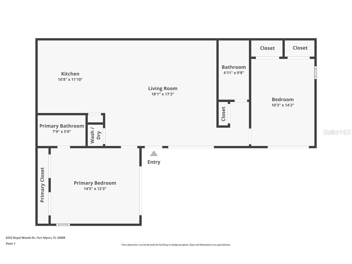
Details for 6332 Royal Woods Drive
MLS# C7514022
Description for 6332 Royal Woods Drive, Fort Myers, FL, 33908
MOVE-IN READY RENOVATED VILLA Welcome to this beautifully renovated attached villa in the highly desirable Royal Wood community of Island Park—an exceptional opportunity for first-time buyers, seasonal residents, or investors seeking affordability and value in Southwest Florida. Offering just over 1,000 square feet of updated living space, this home showcases quality craftsmanship, modern finishes, and energy-efficient upgrades throughout. The open-concept floor plan is ideal for today’s lifestyle, featuring a gourmet kitchen with granite countertops, white shaker cabinetry, stainless steel appliances, and premium tile flooring throughout. Recent upgrades include impact-resistant windows and doors (August 2024) for enhanced storm protection, security, and energy savings, plus a newer architectural shingle roof rated for 150 mph winds. The split-bedroom layout offers two spacious bedrooms, each with private patio access, including a primary suite with an ensuite bathroom. Enjoy indoor-outdoor living on the large private patio, perfect for relaxing or entertaining. Assigned parking and a pet-friendly community add to the convenience. Ideally located just off US-41, residents enjoy quick access to shopping, dining, entertainment, schools, airport access, and major sports venues. Low HOA fees include access to resort-style amenities such as a community pool, tennis and pickleball courts, shuffleboard, clubhouse with water views, and scenic pond features. A rare opportunity to own a fully renovated, low-maintenance home in a prime Fort Myers location. Schedule your private showing today.
Listing Information
Property Type: Residential, Villa
Status: Active
Bedrooms: 2
Bathrooms: 2
Lot Size: 0.04 Acres
Square Feet: 1,008 sq ft
Year Built: 1981
Stories: 1 Story
Construction: Stucco,Wood Siding,Wood Frame
Subdivision: Royal Woods Ph 01
Foundation: Slab
County: Lee
Room Information
Main Floor
Living Room:
Kitchen:
Primary Bedroom:
Bathrooms
Full Baths: 2
Additonal Room Information
Laundry: Inside, Washer Hookup, Laundry Closet, Electric Dryer Hookup
Interior Features
Appliances: Dishwasher, Microwave, Range, Refrigerator
Flooring: Tile
Additional Interior Features: Vaulted Ceiling(s), Stone Counters, Split Bedrooms, Kitchen/Family Room Combo
Utilities
Water: Public
Sewer: Public Sewer
Other Utilities: Cable Connected,Electricity Connected,High Speed Internet Available,Sewer Connected,Water Connected
Cooling: Central Air
Heating: Electric
Exterior / Lot Features
Roof: Shingle
Pool: Community
Lot View: Garden
Fencing: Wood
Additional Exterior/Lot Features: Rain Gutters, Courtyard, Buyer Approval Required
Community Features
Community Features: Community Mailbox, Pool, Tennis Court(s), Clubhouse
Homeowners Association: Yes
HOA Dues: $279 / Monthly
Driving Directions
Island Park Rd to Royal Woods. Make a right. 1st Street/parking area make a right. Villas on the left. Unit located in the back right
Financial Considerations
Terms: Cash,Conventional,FHA
Tax/Property ID: 12-46-24-04-07002.00C0
Tax Amount: 1248.66
Tax Year: 2024
A broker reciprocity listing courtesy: DALTON WADE INC
Based on information provided by Stellar MLS as distributed by the MLS GRID. Information from the Internet Data Exchange is provided exclusively for consumers’ personal, non-commercial use, and such information may not be used for any purpose other than to identify prospective properties consumers may be interested in purchasing. This data is deemed reliable but is not guaranteed to be accurate by Edina Realty, Inc., or by the MLS. Edina Realty, Inc., is not a multiple listing service (MLS), nor does it offer MLS access.
Copyright 2026 Stellar MLS as distributed by the MLS GRID. All Rights Reserved.
Payment Calculator
Interest rate and annual percentage rate (APR) are based on current market conditions, are for informational purposes only, are subject to change without notice and may be subject to pricing add-ons related to property type, loan amount, loan-to-value, credit score and other variables. Estimated closing costs used in the APR calculation are assumed to be paid by the borrower at closing. If the closing costs are financed, the loan, APR and payment amounts will be higher. If the down payment is less than 20%, mortgage insurance may be required and could increase the monthly payment and APR. Contact us for details. Additional loan programs may be available. Accuracy is not guaranteed, and all products may not be available in all borrower's geographical areas and are based on their individual situation. This is not a credit decision or a commitment to lend.
Sales History & Tax Summary for 6332 Royal Woods Drive
Sales History
| Date | Price | Change |
|---|---|---|
| Currently not available. | ||
Tax Summary
| Tax Year | Estimated Market Value | Total Tax |
|---|---|---|
| Currently not available. | ||
Data powered by ATTOM Data Solutions. Copyright© 2026. Information deemed reliable but not guaranteed.
Schools
Schools nearby 6332 Royal Woods Drive
| Schools in attendance boundaries | Grades | Distance | Rating |
|---|---|---|---|
| Loading... | |||
| Schools nearby | Grades | Distance | Rating |
|---|---|---|---|
| Loading... | |||
Data powered by ATTOM Data Solutions. Copyright© 2026. Information deemed reliable but not guaranteed.
The schools shown represent both the assigned schools and schools by distance based on local school and district attendance boundaries. Attendance boundaries change based on various factors and proximity does not guarantee enrollment eligibility. Please consult your real estate agent and/or the school district to confirm the schools this property is zoned to attend. Information is deemed reliable but not guaranteed.
SchoolDigger ® Rating
The SchoolDigger rating system is a 1-5 scale with 5 as the highest rating. SchoolDigger ranks schools based on test scores supplied by each state's Department of Education. They calculate an average standard score by normalizing and averaging each school's test scores across all tests and grades.
Coming soon properties will soon be on the market, but are not yet available for showings.