$474,999
6350 Watercrest Way #203 Lakewood Ranch, FL 34202
For Sale MLS# O6343663
3 beds 2 baths 1,916 sq ft Condo
Details for 6350 Watercrest Way #203
MLS# O6343663
Description for 6350 Watercrest Way #203, Lakewood Ranch, FL, 34202
Welcome to Watercrest, an elegant gated lakefront condominium community within Lakewood Ranch’s Edgewater Village. This spacious 3-bedroom, 2-bath, condo is situated on the 13th fairway, offering extended water views and serene golf course vistas. The open floorplan is perfect for both everyday living and entertaining, featuring bright living spaces and refined finishes throughout. Enjoy an additional screened-in balcony space with panoramic views — the ideal spot for morning coffee or evening relaxation. The oversized 2-car garage includes a dedicated workshop area, providing plenty of room for storage and hobbies. Residents of Watercrest enjoy resort-style amenities including a beautifully remodeled clubhouse, heated pool and spa, fitness center, and on-site management. All of this is nestled among lush landscapes, walking trails, and stunning views of Lake Uihlein and the Legacy Golf Course — and just a short walk to Lakewood Ranch Main Street’s shops, dining, and entertainment. Plus, you're only a short drive to the world-famous Gulf Coast beaches. This is the perfect blend of comfort, convenience, and the Florida lifestyle.
Listing Information
Property Type: Residential, Condominium
Status: Active
Bedrooms: 3
Bathrooms: 2
Lot Size: 5.44 Acres
Square Feet: 1,916 sq ft
Year Built: 2005
Garage: Yes
Stories: 1 Story
Construction: Block,Stucco
Subdivision: Watercrest Ph 2
Foundation: Slab
County: Manatee
School Information
Elementary: Robert E Willis Elementary
Middle: Nolan Middle
High: Lakewood Ranch High
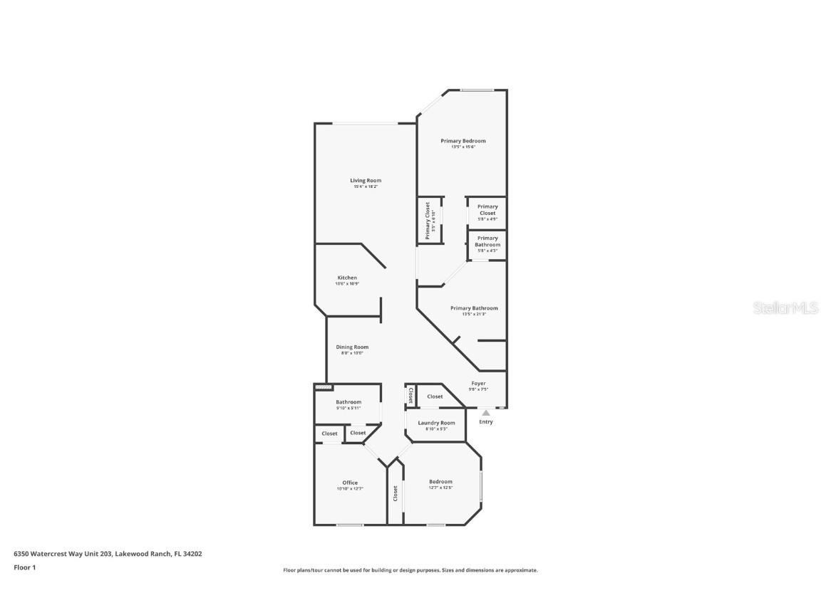
Room Information
Main Floor
Bedroom 3: 12.7x10.1
Bedroom 2: 12.5x12.7
Primary Bedroom: 15.6x13.5
Living Room: 18.2x15.4
Kitchen: 10.9x10.6
Bathrooms
Full Baths: 2
Additonal Room Information
Laundry: Inside, Laundry Room
Interior Features
Appliances: Ice Maker, Washer, Range, Refrigerator, Microwave, Dishwasher, Dryer
Flooring: Wood
Doors/Windows: Blinds, Window Treatments, Drapes, Rods
Additional Interior Features: Split Bedrooms, Built-in Features, Window Treatments, Walk-In Closet(s), Tray Ceiling(s), Main Level Primary, Open Floorplan, Kitchen/Family Room Combo, Solid Surface Counters, Wood Cabinets
Utilities
Water: Public
Sewer: Public Sewer
Other Utilities: Cable Available,Electricity Available,Sewer Connected
Cooling: Central Air
Heating: Central
Exterior / Lot Features
Attached Garage: Attached Garage
Garage Spaces: 2
Parking Description: Open, Garage, Garage Door Opener, Workshop in Garage, Oversized, Guest
Roof: Built-Up
Pool: Community, Outside Bath Access
Lot View: Golf Course,Lake,Trees/Woods,Water
Additional Exterior/Lot Features: Lighting, On Golf Course, Dead End, Buyer Approval Required
Waterfront Details
Water Front Features: Lake Privileges, Lake Front
Community Features
Community Features: Fishing, Fitness, Golf Carts OK, Water Access, Community Mailbox, Gated, Sidewalks, Lake, Pool, Clubhouse, Golf, Handicap Access, Street Lights
Security Features: Fire Sprinkler System, Gated Community, Key Card Entry, Secured Garage/Parking
HOA Dues Include: Reserve Fund, Road Maintenance, Maintenance Grounds, Pest Control, Insurance, Pool(s), Water, Trash, Recreation Facilities, Association Management, Sewer
Driving Directions
From I-75, take Exit 213 for University Parkway (CR-610) and head east. Continue on University Parkway for several miles, then turn left onto Lakewood Ranch Boulevard. Shortly after, turn right onto Watercrest Way, where you’ll pass through a gated entrance. Follow Watercrest Way until you reach building 6350 on the right.javascript:__doPostBack('m_lbSubmit','')
Financial Considerations
Terms: Assumable,Cash,Conventional,FHA,VA Loan
Tax/Property ID: 588620159
Tax Amount: 3645.58
Tax Year: 2024
A broker reciprocity listing courtesy: CHARLES RUTENBERG REALTY ORLANDO
Based on information provided by Stellar MLS as distributed by the MLS GRID. Information from the Internet Data Exchange is provided exclusively for consumers’ personal, non-commercial use, and such information may not be used for any purpose other than to identify prospective properties consumers may be interested in purchasing. This data is deemed reliable but is not guaranteed to be accurate by Edina Realty, Inc., or by the MLS. Edina Realty, Inc., is not a multiple listing service (MLS), nor does it offer MLS access.
Copyright 2025 Stellar MLS as distributed by the MLS GRID. All Rights Reserved.
Payment Calculator
Interest rate and annual percentage rate (APR) are based on current market conditions, are for informational purposes only, are subject to change without notice and may be subject to pricing add-ons related to property type, loan amount, loan-to-value, credit score and other variables. Estimated closing costs used in the APR calculation are assumed to be paid by the borrower at closing. If the closing costs are financed, the loan, APR and payment amounts will be higher. If the down payment is less than 20%, mortgage insurance may be required and could increase the monthly payment and APR. Contact us for details. Additional loan programs may be available. Accuracy is not guaranteed, and all products may not be available in all borrower's geographical areas and are based on their individual situation. This is not a credit decision or a commitment to lend.
Sales History & Tax Summary for 6350 Watercrest Way #203
Sales History
| Date | Price | Change |
|---|---|---|
| Currently not available. | ||
Tax Summary
| Tax Year | Estimated Market Value | Total Tax |
|---|---|---|
| Currently not available. | ||
Data powered by ATTOM Data Solutions. Copyright© 2025. Information deemed reliable but not guaranteed.
Schools
Schools nearby 6350 Watercrest Way #203
| Schools in attendance boundaries | Grades | Distance | Rating |
|---|---|---|---|
| Loading... | |||
| Schools nearby | Grades | Distance | Rating |
|---|---|---|---|
| Loading... | |||
Data powered by ATTOM Data Solutions. Copyright© 2025. Information deemed reliable but not guaranteed.
The schools shown represent both the assigned schools and schools by distance based on local school and district attendance boundaries. Attendance boundaries change based on various factors and proximity does not guarantee enrollment eligibility. Please consult your real estate agent and/or the school district to confirm the schools this property is zoned to attend. Information is deemed reliable but not guaranteed.
SchoolDigger ® Rating
The SchoolDigger rating system is a 1-5 scale with 5 as the highest rating. SchoolDigger ranks schools based on test scores supplied by each state's Department of Education. They calculate an average standard score by normalizing and averaging each school's test scores across all tests and grades.
Coming soon properties will soon be on the market, but are not yet available for showings.