636 Bayshore Drive Tarpon Springs, FL 34689 - KREAMER BAYOU
For Sale MLS# TB8416926
4 beds 3 baths 4,220 sq ft Single Family
Details for 636 Bayshore Drive
MLS# TB8416926
Description for 636 Bayshore Drive, Tarpon Springs, FL, 34689 - KREAMER BAYOU
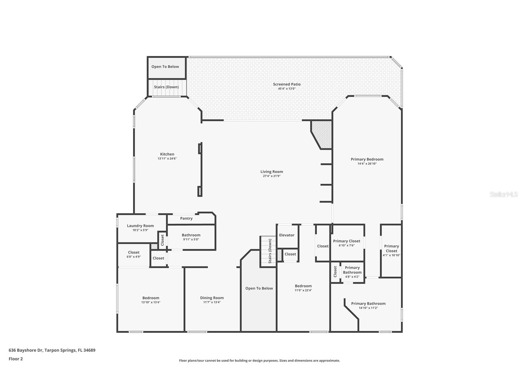
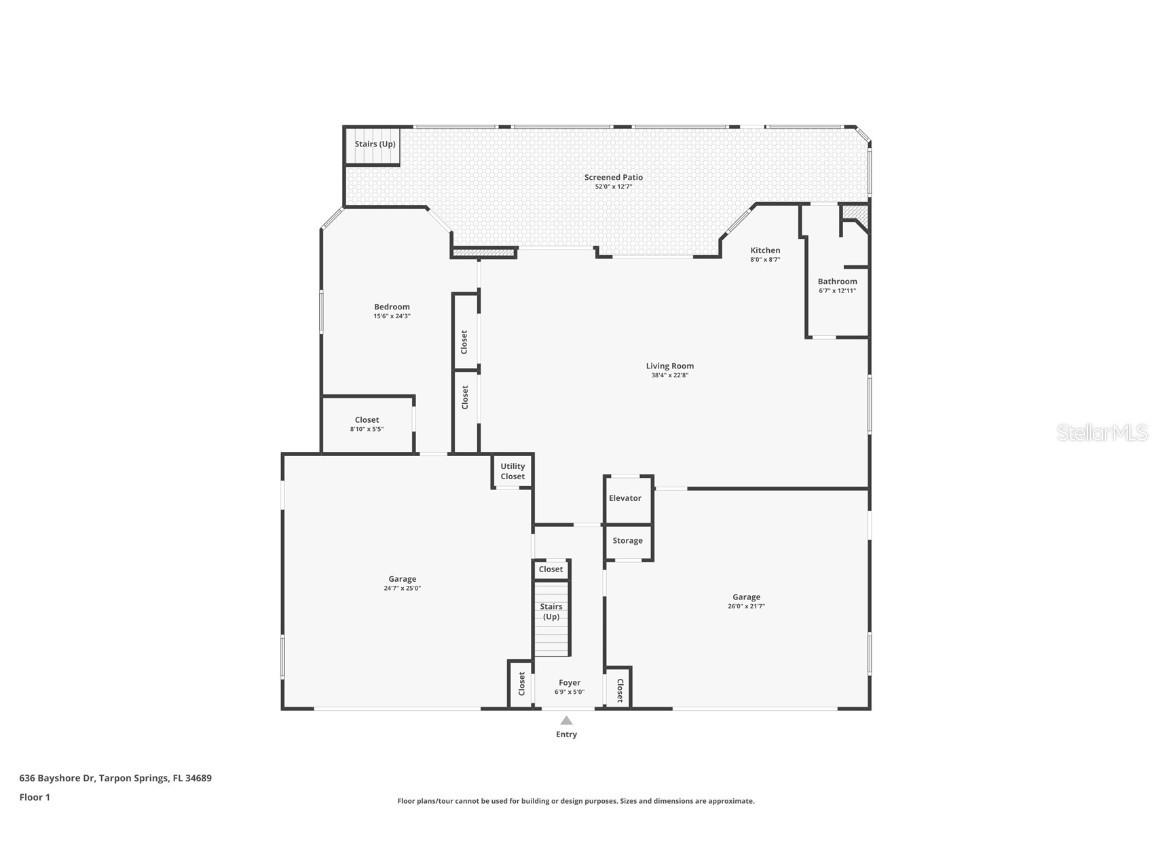
One or more photo(s) has been virtually staged. This impressive property features two separate living spaces (upstairs and down), a circular drive, two 2-car garages (4 spaces in total) with endless room for cars, toys, and watercraft. This Luxury Waterfront Estate is in an X500 flood zone with NO flood damage from the 2024 storm! It is a split plan home wonderful to entertain in with a beautiful outdoor space including 2 large screened lanai's leading out and looking over the Water, Pool, Dock, Boat and Ski Lift. As a two story home this home is complete with an elevator making it a breeze to bring up the groceries or for guests who may need an alternative to using the stairs. This home offers the ultimate Florida lifestyle with incredible water views in the desirable community of Tarpon Springs. Step inside the double-door entry to your grand two-story foyer with chandelier, then head downstairs to the versatile ground floor. Expansive bonus/family room with sliding door access to a screened porch overlooking the in-ground pool that includes a lovely hot tub/spa! Enjoy an efficiency kitchen for poolside entertaining - there is a breakfast bar, refrigerator, microwave, sink and dark wood cabinetry. The first-floor bedroom has a walk-in closet, water views, and private porch access. The full bath with step-in shower offers direct pool access. There are two oversized storage closets as well. From the porch, follow your private walkway to the dock, complete with sink, electric, covered 20,000 pound boat lift, and jet ski lift—perfect for launching right into Florida’s waterways. Use the stairs or elevator to your main living level where you can enjoy the elevated living with panoramic views that will take your breath away. The expansive living room offers high-volume ceilings, pocket sliders to the screened porch, ceiling fans, recessed lighting, gas fireplace, and custom built-ins. The large screened lanai is ideal for outdoor dining and relaxing. Your primary suite is accessed via double-door entry. There are amazing water views and private access to the lanai, two oversized walk-in closets and a spa-like en suite with dual vanities, Jacuzzi soaking tub, oversized step-in shower with bench, and a private water closet with linen storage. Your kitchen boasts white cabinetry, granite counters, and decorative tile backsplash. There is a breakfast bar, breakfast nook with stunning water views, and a pantry with pull-out shelving in addition to an oversized pantry closet. The laundry room is separated by a pocket door and offers built-in cabinetry, deep sink, hanging bar, and washer/dryer. The formal dining area has a lovely chandelier and arched architectural details that open to the grand foyer. The two additonal bedrooms are generous in size. One boasts two wall closets while the other has a walk-in closet. The hall bath has a tub/shower combo and there is another linen closet for storage off the hall. Your outdoor paradise includes a screened lanai with water views, in-ground pool with gated fence and your private dock. Located just minutes from downtown Tarpon Springs historic sponge docks, beaches, dining, and entertainment, this property blends luxury living, unmatched storage, and world-class boating access into one stunning package. Schedule your private tour today and start living your best Florida life!
Listing Information
Property Type: Residential, Single Family Residence
Status: Active
Bedrooms: 4
Bathrooms: 3
Lot Size: 0.25 Acres
Square Feet: 4,220 sq ft
Year Built: 2001
Garage: Yes
Stories: 2 Story
Construction: Block
Subdivision: Sunset Hills
Foundation: Slab
County: Pinellas
School Information
Elementary: Sunset Hills Elementary-Pn
Middle: Tarpon Springs Middle-Pn
High: Tarpon Springs High-Pn
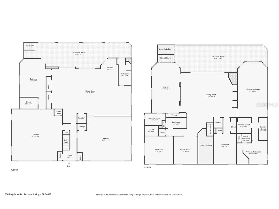
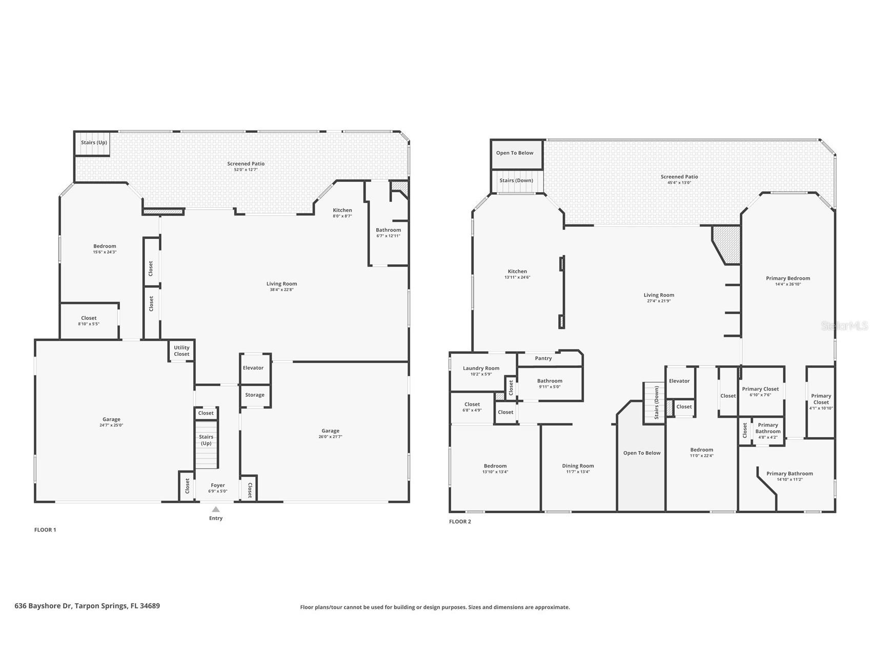
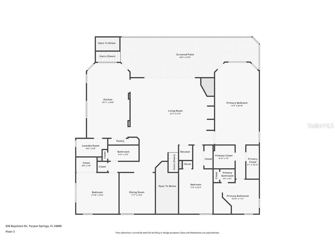
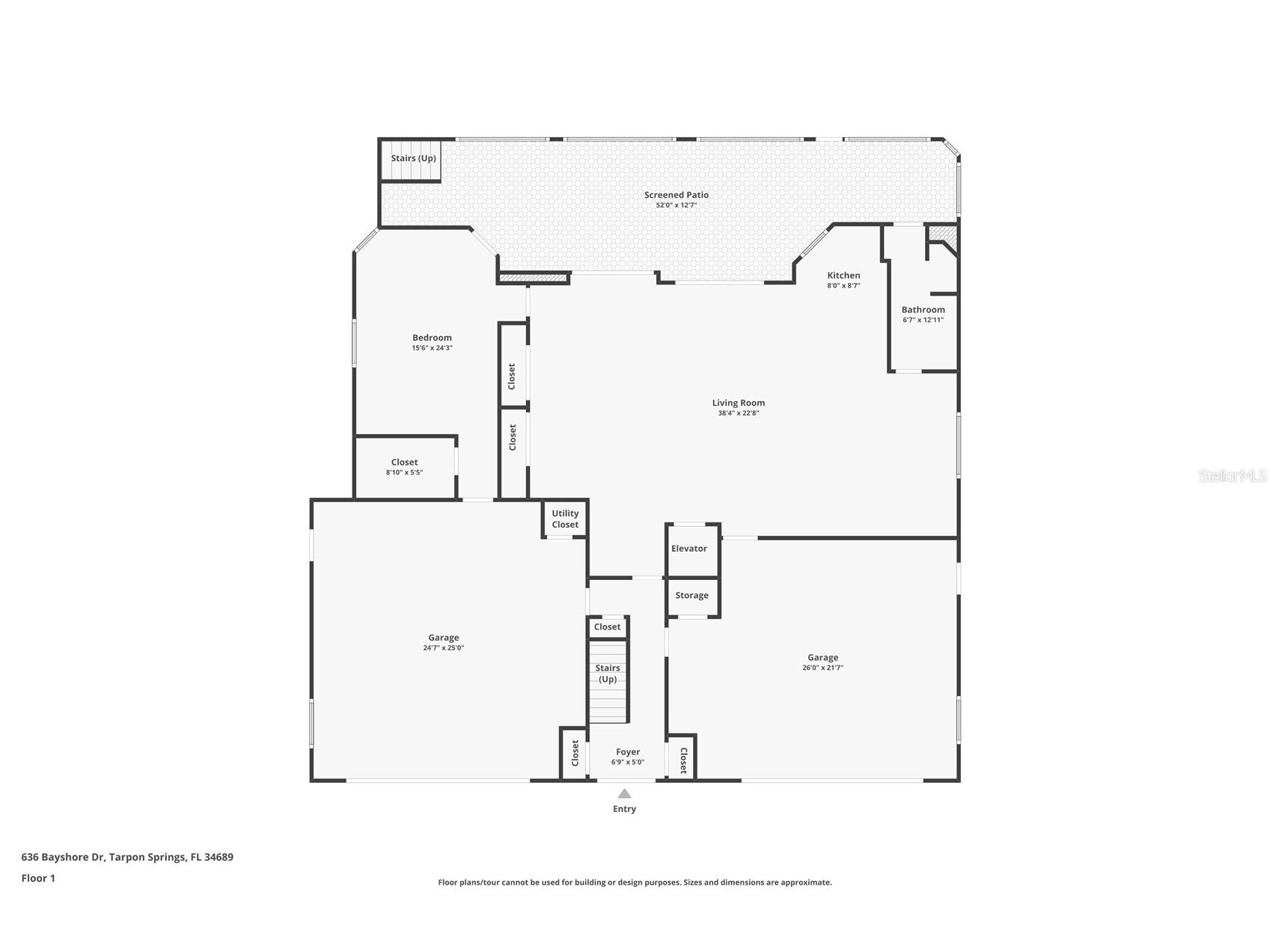
Room Information
Upper Floor
Living Room: 24.1x16.8
Primary Bedroom: 14.2x26
Kitchen: 13.6x23.7
Bathrooms
Full Baths: 3
Additonal Room Information
Laundry: Laundry Room
Interior Features
Appliances: Electric Water Heater, Dishwasher, Dryer, Range, Refrigerator, Washer, Microwave
Flooring: Tile,Wood
Fireplaces: Gas, Living Room
Additional Interior Features: Eat-In Kitchen, Ceiling Fan(s), Elevator, Walk-In Closet(s), Split Bedrooms, Built-in Features, High Ceilings, Separate/Formal Dining Room, Stone Counters, Wood Cabinets, Upper Level Primary, Crown Molding
Utilities
Water: Public
Sewer: Public Sewer
Other Utilities: Cable Available,Electricity Connected,Sewer Connected,Water Connected
Cooling: Ceiling Fan(s), Central Air
Heating: Central
Exterior / Lot Features
Attached Garage: Attached Garage
Garage Spaces: 4
Parking Description: driveway
Roof: Shingle
Pool: In Ground, Outside Bath Access, Gunite
Lot View: Water
Additional Exterior/Lot Features: Rear Porch, Screened, Covered, Porch
Waterfront Details
Standard Water Body: KREAMER BAYOU
Water Front Features: Bayou
Driving Directions
US Hwy 19 to Mango St. Head west. Mango becomes Meres Blvd. Follow across Pinellas Ave and make a right onto Bayou Ave and a left onto Whitcomb Blvd. Make another left onto Gulf Rdand a slight right onto N Park Ave. Make a left onto Riverside Dr and a slight right onto Bayshore Dr and follow to 636.
Financial Considerations
Terms: Cash,Conventional
Tax/Property ID: 11-27-15-87786-022-0130
Tax Amount: 24078
Tax Year: 2024
A broker reciprocity listing courtesy: KELLER WILLIAMS REALTY- PALM H
Based on information provided by Stellar MLS as distributed by the MLS GRID. Information from the Internet Data Exchange is provided exclusively for consumers’ personal, non-commercial use, and such information may not be used for any purpose other than to identify prospective properties consumers may be interested in purchasing. This data is deemed reliable but is not guaranteed to be accurate by Edina Realty, Inc., or by the MLS. Edina Realty, Inc., is not a multiple listing service (MLS), nor does it offer MLS access.
Copyright 2026 Stellar MLS as distributed by the MLS GRID. All Rights Reserved.
Payment Calculator
Interest rate and annual percentage rate (APR) are based on current market conditions, are for informational purposes only, are subject to change without notice and may be subject to pricing add-ons related to property type, loan amount, loan-to-value, credit score and other variables. Estimated closing costs used in the APR calculation are assumed to be paid by the borrower at closing. If the closing costs are financed, the loan, APR and payment amounts will be higher. If the down payment is less than 20%, mortgage insurance may be required and could increase the monthly payment and APR. Contact us for details. Additional loan programs may be available. Accuracy is not guaranteed, and all products may not be available in all borrower's geographical areas and are based on their individual situation. This is not a credit decision or a commitment to lend.
Sales History & Tax Summary for 636 Bayshore Drive
Sales History
| Date | Price | |
|---|---|---|
| Currently not available. | ||
Tax Summary
| Tax Year | Estimated Market Value | Total Tax |
|---|---|---|
| Currently not available. | ||
Data powered by ATTOM Data Solutions. Copyright© 2026. Information deemed reliable but not guaranteed.
Schools
Schools nearby 636 Bayshore Drive
| Schools in attendance boundaries | Grades | Distance | Rating |
|---|---|---|---|
| Loading... | |||
| Schools nearby | Grades | Distance | Rating |
|---|---|---|---|
| Loading... | |||
Data powered by ATTOM Data Solutions. Copyright© 2026. Information deemed reliable but not guaranteed.
The schools shown represent both the assigned schools and schools by distance based on local school and district attendance boundaries. Attendance boundaries change based on various factors and proximity does not guarantee enrollment eligibility. Please consult your real estate agent and/or the school district to confirm the schools this property is zoned to attend. Information is deemed reliable but not guaranteed.
SchoolDigger ® Rating
The SchoolDigger rating system is a 1-5 scale with 5 as the highest rating. SchoolDigger ranks schools based on test scores supplied by each state's Department of Education. They calculate an average standard score by normalizing and averaging each school's test scores across all tests and grades.
Coming soon properties will soon be on the market, but are not yet available for showings.