$525,000
6377 13th Avenue N Saint Petersburg, FL 33710
For Sale MLS# TB8486054
3 beds 2 baths 1,584 sq ft Single Family
Details for 6377 13th Avenue N
MLS# TB8486054
Description for 6377 13th Avenue N, Saint Petersburg, FL, 33710
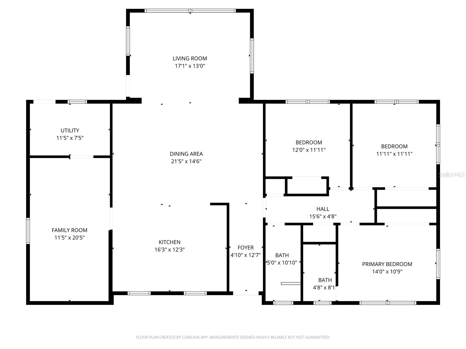
Welcome to this wonderful, move-in-ready 3-bed, 2-bath pool home in the desirable Garden Manor neighborhood of St. Petersburg! Beautifully landscaped and located on a quiet street directly across from a serene lake, this property offers over 2,000 square feet of comfortable living space designed for relaxation and entertaining. As you enter the hallway, you’re greeted by an open and inviting floor plan. To the left sits the spacious updated kitchen, featuring newer stainless steel appliances—stove (2025), dishwasher (2023), refrigerator (2020)—along with plenty of cabinet and counter space. The impressive 40" x 86" island provides the perfect spot for meal prep, casual dining, or hosting gatherings. The central dining area flows into a large living room filled with natural light from multiple windows, offering peaceful views of the tropical backyard and lovely pool. Just past the kitchen is the converted garage, now a versatile flex space ideal for an office, gym, or potential 4th bedroom. This area includes a separate laundry room—washer (2020), dryer (2021)—and a utility room housing the water heater (2018) and breaker box (2019). If desired, the flex space can be easily converted back to a garage, as the original door remains intact and only the interior wall would need removal. To the right of the entryway are the three bedrooms and two updated bathrooms. Stunning terrazzo floors run throughout the home. The primary bedroom features its own private en-suite bath. Additional upgrades include impact windows (2018 & 2021), a 9-year-old roof, and solar panels (2021) that help keep electric bills low. Step outside to enjoy a relaxing patio overlooking the lushly landscaped backyard. The open pool area features composite rubber decking and is surrounded by vibrant flowers, shrubs, and classic Florida plantings. The pool equipment was recently updated with a new pump and control box (2024), and the irrigation pump and control system were replaced in 2025. A large detached storage building with electricity offers excellent potential as a workshop, home gym, or additional storage. All of this in an ideal central location close to shopping, great restaurants, and some of the country’s most beautiful beaches. Only a short drive to Downtown St. Pete with its museums, galleries, arts district, nightlife, and waterfront dining. Come see this lovely home today—your Florida lifestyle awaits! Back on market due to buyer financial issues.
Listing Information
Property Type: Residential, Single Family Residence
Status: Active
Bedrooms: 3
Bathrooms: 2
Lot Size: 0.17 Acres
Square Feet: 1,584 sq ft
Year Built: 1959
Garage: Yes
Stories: 1 Story
Construction: Block
Subdivision: Garden Manor Sec 2
Foundation: Slab
County: Pinellas
Room Information
Main Floor
Bonus Room: 20x11
Bedroom 3: 12x12
Bedroom 2: 12x10
Primary Bathroom: 6x8
Primary Bedroom: 14x11
Kitchen: 15x12
Living Room: 10x17
Dining Room: 21x14
Bathrooms
Full Baths: 2
Additonal Room Information
Laundry: Laundry Room
Interior Features
Appliances: Electric Water Heater, Dishwasher, Disposal, Dryer, Microwave, Range, Refrigerator, Washer
Flooring: Ceramic Tile,Terrazzo
Doors/Windows: Window Treatments, Storm Window(s), Double Pane Windows
Additional Interior Features: Ceiling Fan(s), Eat-In Kitchen, Window Treatments, Open Floorplan, Stone Counters, Wood Cabinets, Built-in Features
Utilities
Water: Public
Sewer: Public Sewer
Other Utilities: Cable Connected,Electricity Connected,High Speed Internet Available,Sewer Connected,Water Connected
Cooling: Ceiling Fan(s), Central Air
Heating: Central
Exterior / Lot Features
Attached Garage: Attached Garage
Garage Spaces: 1
Roof: Shingle
Pool: Fiberglass, In Ground
Lot View: Water
Lot Dimensions: 75x100
Additional Exterior/Lot Features: Private Yard, Garden, Lighting, Storage, Patio, Landscaped, City Lot
Out Buildings: Shed(s), Workshop, Storage
Community Features
Community Features: Street Lights
Driving Directions
66th St N to 13th Ave N head east towards address.
Financial Considerations
Terms: Cash,Conventional,FHA,VA Loan
Tax/Property ID: 17-31-16-30240-005-0210
Tax Amount: 2370.13
Tax Year: 2025
A broker reciprocity listing courtesy: KELLER WILLIAMS ST PETE REALTY
Based on information provided by Stellar MLS as distributed by the MLS GRID. Information from the Internet Data Exchange is provided exclusively for consumers’ personal, non-commercial use, and such information may not be used for any purpose other than to identify prospective properties consumers may be interested in purchasing. This data is deemed reliable but is not guaranteed to be accurate by Edina Realty, Inc., or by the MLS. Edina Realty, Inc., is not a multiple listing service (MLS), nor does it offer MLS access.
Copyright 2026 Stellar MLS as distributed by the MLS GRID. All Rights Reserved.
Payment Calculator
Interest rate and annual percentage rate (APR) are based on current market conditions, are for informational purposes only, are subject to change without notice and may be subject to pricing add-ons related to property type, loan amount, loan-to-value, credit score and other variables. Estimated closing costs used in the APR calculation are assumed to be paid by the borrower at closing. If the closing costs are financed, the loan, APR and payment amounts will be higher. If the down payment is less than 20%, mortgage insurance may be required and could increase the monthly payment and APR. Contact us for details. Additional loan programs may be available. Accuracy is not guaranteed, and all products may not be available in all borrower's geographical areas and are based on their individual situation. This is not a credit decision or a commitment to lend.
Sales History & Tax Summary for 6377 13th Avenue N
Sales History
| Date | Price | |
|---|---|---|
| Currently not available. | ||
Tax Summary
| Tax Year | Estimated Market Value | Total Tax |
|---|---|---|
| Currently not available. | ||
Data powered by ATTOM Data Solutions. Copyright© 2026. Information deemed reliable but not guaranteed.
Schools
Schools nearby 6377 13th Avenue N
| Schools in attendance boundaries | Grades | Distance | Rating |
|---|---|---|---|
| Loading... | |||
| Schools nearby | Grades | Distance | Rating |
|---|---|---|---|
| Loading... | |||
Data powered by ATTOM Data Solutions. Copyright© 2026. Information deemed reliable but not guaranteed.
The schools shown represent both the assigned schools and schools by distance based on local school and district attendance boundaries. Attendance boundaries change based on various factors and proximity does not guarantee enrollment eligibility. Please consult your real estate agent and/or the school district to confirm the schools this property is zoned to attend. Information is deemed reliable but not guaranteed.
SchoolDigger ® Rating
The SchoolDigger rating system is a 1-5 scale with 5 as the highest rating. SchoolDigger ranks schools based on test scores supplied by each state's Department of Education. They calculate an average standard score by normalizing and averaging each school's test scores across all tests and grades.
Coming soon properties will soon be on the market, but are not yet available for showings.