64 Long Meadow Lane Rotonda West, FL 33947 - LONG MEADOW CANAL
For Sale MLS# D6137951
3 beds 2 baths 1,918 sq ft Single Family
Details for 64 Long Meadow Lane
MLS# D6137951
Description for 64 Long Meadow Lane, Rotonda West, FL, 33947 - LONG MEADOW CANAL
Recently Reduced! Seller will entertain all reasonable offers!! Florida Pool Home with Canal Views Spacious Layout & Motivated Seller Experience the Florida lifestyle in this beautifully maintained 3-bedroom, 2-bath pool home in the sought-after golf community of Rotonda West. Located just minutes from historic Dearborn Street and the Gulf’s white-sand beaches, this home is ready for its next chapter. The seller is motivated and will consider all reasonable offers. Enjoy peace of mind from day one—major systems have already been updated, including a newer roof, A/C, water heater, pool cage, and more. Step inside to find cathedral ceilings, a bright open floor plan, and tropical landscaping that complements the relaxed coastal setting. Home is located in the x flood zone, portion of the yard is AE. At the heart of the home is a huge, light-filled kitchen, ideal for gathering with friends or preparing family meals. It flows seamlessly into the dining, living, and family spaces—then out to your brand-new screened lanai and heated pool, where you can unwind in the sun with serene canal views and refreshing breezes. The primary suite is a peaceful retreat featuring a soaking tub, walk-in shower, and views of the water and pool. The oversized third bedroom offers flexible space—perfect for a den, office, hobby room, or visiting guests. With low HOA fees, nearby golf courses, miles of canals and trails, local restaurants, medical facilities, pickleball, libraries, parks are all nearby and easy access to Boca Grande and Manasota Key, this is your chance to own a home that balances comfort, convenience, and Florida charm. Schedule your private tour today—this home is a standout in location, layout, and lifestyle.
Listing Information
Property Type: Residential, Single Family Residence
Status: Active
Bedrooms: 3
Bathrooms: 2
Lot Size: 0.23 Acres
Square Feet: 1,918 sq ft
Year Built: 1997
Garage: Yes
Stories: 1 Story
Construction: Brick,Stucco
Subdivision: Rotonda West Long Meadow
Foundation: Slab
County: Charlotte
School Information
Elementary: Vineland Elementary
Middle: L.A. Ainger Middle
High: Lemon Bay High
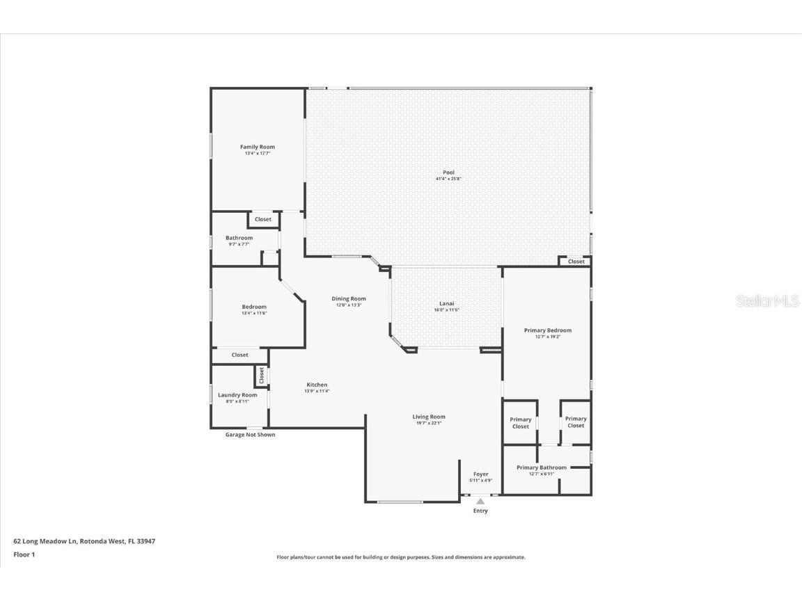
Room Information
Main Floor
Laundry: 8x9
Foyer: 6x13
Bedroom 3: 13x17
Bedroom 2: 10x11
Primary Bathroom: 7x13
Primary Bedroom: 13x18
Dining Room: 9x12
Kitchen: 14x14
Living Room: 13x20
Bathrooms
Full Baths: 2
Additonal Room Information
Laundry: Laundry Room, Inside
Interior Features
Appliances: Microwave, Range, Refrigerator, Dishwasher
Flooring: Ceramic Tile,Vinyl
Doors/Windows: Window Treatments
Additional Interior Features: Ceiling Fan(s), Vaulted Ceiling(s), Open Floorplan, Solid Surface Counters, Cathedral Ceiling(s), High Ceilings, Split Bedrooms, Main Level Primary
Utilities
Water: Public
Sewer: Public Sewer
Other Utilities: Cable Available,Electricity Connected,High Speed Internet Available,Phone Available,Sewer Connected,Water Connected
Cooling: Ceiling Fan(s), Central Air
Heating: Central, Electric
Exterior / Lot Features
Attached Garage: Attached Garage
Garage Spaces: 2
Roof: Shingle
Pool: Heated
Lot View: Canal,Water
Additional Exterior/Lot Features: Storm/Security Shutters, Rear Porch, Front Porch, Screened, Landscaped
Waterfront Details
Standard Water Body: LONG MEADOW CANAL
Water Front Features: Canal Access
Community Features
Community Features: Playground, Golf, Marina, Park, Clubhouse
Association Amenities: Recreation Facilities, Clubhouse
HOA Dues Include: Taxes, Common Areas
Homeowners Association: Yes
HOA Dues: $190 / Annually
Driving Directions
from 776 south on Sunnybrook, left on Rotonda Circle, right on Long Meadow Home is on left
Financial Considerations
Terms: Cash,Conventional,FHA,VA Loan
Tax/Property ID: 412013458006
Tax Amount: 2641
Tax Year: 2023
A broker reciprocity listing courtesy: MICHAEL SAUNDERS & COMPANY
Based on information provided by Stellar MLS as distributed by the MLS GRID. Information from the Internet Data Exchange is provided exclusively for consumers’ personal, non-commercial use, and such information may not be used for any purpose other than to identify prospective properties consumers may be interested in purchasing. This data is deemed reliable but is not guaranteed to be accurate by Edina Realty, Inc., or by the MLS. Edina Realty, Inc., is not a multiple listing service (MLS), nor does it offer MLS access.
Copyright 2026 Stellar MLS as distributed by the MLS GRID. All Rights Reserved.
Payment Calculator
Interest rate and annual percentage rate (APR) are based on current market conditions, are for informational purposes only, are subject to change without notice and may be subject to pricing add-ons related to property type, loan amount, loan-to-value, credit score and other variables. Estimated closing costs used in the APR calculation are assumed to be paid by the borrower at closing. If the closing costs are financed, the loan, APR and payment amounts will be higher. If the down payment is less than 20%, mortgage insurance may be required and could increase the monthly payment and APR. Contact us for details. Additional loan programs may be available. Accuracy is not guaranteed, and all products may not be available in all borrower's geographical areas and are based on their individual situation. This is not a credit decision or a commitment to lend.
Sales History & Tax Summary for 64 Long Meadow Lane
Sales History
| Date | Price | |
|---|---|---|
| Currently not available. | ||
Tax Summary
| Tax Year | Estimated Market Value | Total Tax |
|---|---|---|
| Currently not available. | ||
Data powered by ATTOM Data Solutions. Copyright© 2026. Information deemed reliable but not guaranteed.
Schools
Schools nearby 64 Long Meadow Lane
| Schools in attendance boundaries | Grades | Distance | Rating |
|---|---|---|---|
| Loading... | |||
| Schools nearby | Grades | Distance | Rating |
|---|---|---|---|
| Loading... | |||
Data powered by ATTOM Data Solutions. Copyright© 2026. Information deemed reliable but not guaranteed.
The schools shown represent both the assigned schools and schools by distance based on local school and district attendance boundaries. Attendance boundaries change based on various factors and proximity does not guarantee enrollment eligibility. Please consult your real estate agent and/or the school district to confirm the schools this property is zoned to attend. Information is deemed reliable but not guaranteed.
SchoolDigger ® Rating
The SchoolDigger rating system is a 1-5 scale with 5 as the highest rating. SchoolDigger ranks schools based on test scores supplied by each state's Department of Education. They calculate an average standard score by normalizing and averaging each school's test scores across all tests and grades.
Coming soon properties will soon be on the market, but are not yet available for showings.