$879,900
6400 Mockingbird Way S Saint Petersburg, FL 33707
For Sale MLS# TB8466872
4 beds 3 baths 2,256 sq ft Single Family
Details for 6400 Mockingbird Way S
MLS# TB8466872
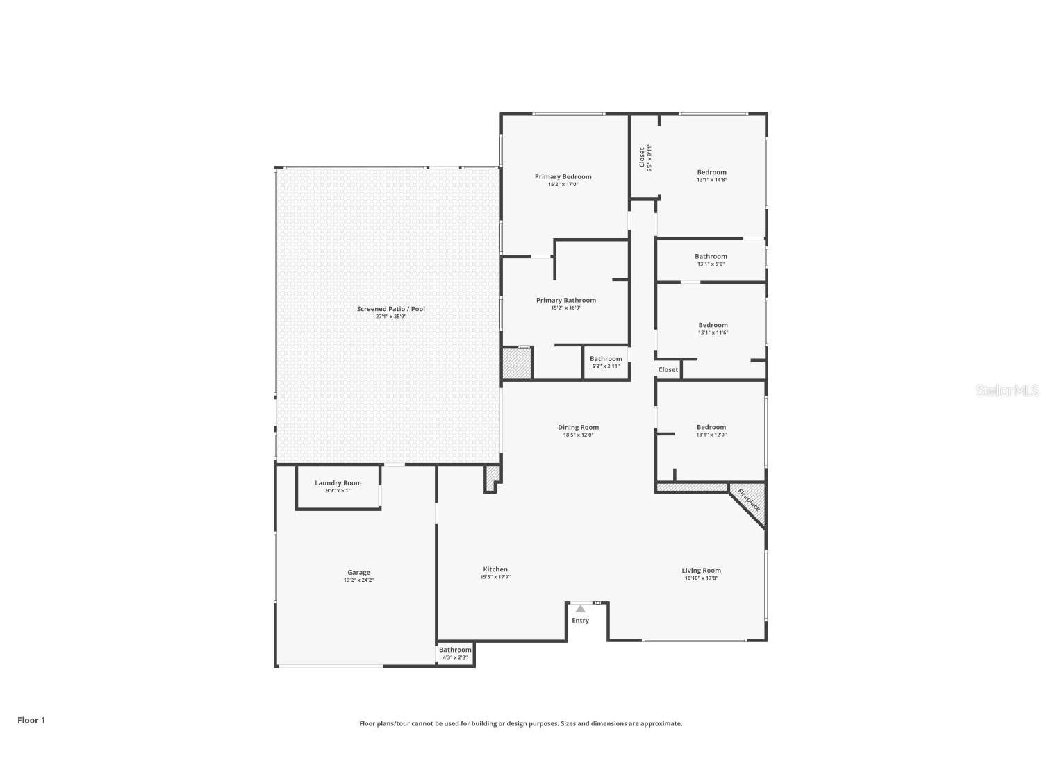
Description for 6400 Mockingbird Way S, Saint Petersburg, FL, 33707
One or more photo(s) has been virtually staged. Welcome to a beautifully redesigned luxury retreat in the highly desirable Pasadena Golf Club Estates, offering refined comfort and timeless style. This comprehensively renovated home, enhanced with curated designer elements & upscale finishes, boasts 4 bedrooms & 2.5 bathrooms. This pool home enjoys tranquil views of the Pasadena Yacht & Country Club golf course, brand-new circular paver driveway, professionally finished shell landscaping, & a light-filled interior featuring double-pane windows with plantation shutters & a distinguished wood burning fireplace in the living room. The primary suite bedroom offers a spacious ensuite bathroom with a large walk-in shower, soaking tub, dual vanities, & LED mirrors, while two additional bedrooms share a well-appointed Jack-and-Jill bathroom with beautiful marble flooring. Recent updates include new electrical wiring, raised HVAC with insulation, an owned solar system, tankless water heater, and a roof installed in 2025. The home is complemented by a private screened pool enclosure, exterior security lights, interior smoke detectors & a cooled laundry room provides added convenience. Ideally positioned in unincorporated Pinellas County, the home provides seamless connectivity to I-275, airports, world-class beaches, exceptional dining, boutique shopping, reputable schools & local houses of worship. Optional transferable flood insurance. All measurements, permitting, rental regulations & listing details are deemed reliable but should be independently verified by the buyer(s).
Listing Information
Property Type: Residential, Single Family Residence
Status: Active
Bedrooms: 4
Bathrooms: 3
Lot Size: 0.19 Acres
Square Feet: 2,256 sq ft
Year Built: 1960
Garage: Yes
Stories: 1 Story
Construction: Block,Stucco
Subdivision: Pasadena Golf Club Estates Sec 4
Foundation: Slab
County: Pinellas
Room Information
Main Floor
Primary Bedroom:
Kitchen:
Dining Room:
Living Room:
Bathrooms
Full Baths: 2
1/2 Baths: 1
Additonal Room Information
Laundry: Other, Laundry Room, In Garage, Washer Hookup, Electric Dryer Hookup
Interior Features
Appliances: Wine Refrigerator, Tankless Water Heater, Electric Water Heater, Convection Oven, Exhaust Fan, Refrigerator, Dishwasher, Disposal, Microwave, Range Hood
Flooring: Luxury Vinyl,Porcelain Tile
Fireplaces: Wood Burning, Living Room
Additional Interior Features: Eat-In Kitchen, Ceiling Fan(s), Other, Open Floorplan, Walk-In Closet(s), Main Level Primary, Solid Surface Counters, Stone Counters
Utilities
Water: Public
Sewer: Public Sewer
Other Utilities: Electricity Connected,Fiber Optic Available,Municipal Utilities,Sewer Connected,Water Connected
Cooling: Ceiling Fan(s), Central Air
Heating: Exhaust Fan, Solar
Exterior / Lot Features
Attached Garage: Attached Garage
Garage Spaces: 2
Roof: Shingle
Pool: In Ground, Screen Enclosure, Gunite, Tile
Fencing: Wood
Additional Exterior/Lot Features: Private Yard, Private Entrance, Outdoor Shower, Rain Gutters, Lighting
Community Features
Community Features: Street Lights
Security Features: Fire Hydrant(s)
Driving Directions
Head east on Gulfport Blvd S, turn left on Robin Road S, then turn right on Mockingbird Way S. The home is on the right.
Financial Considerations
Terms: Cash,Conventional,FHA,VA Loan
Tax/Property ID: 30-31-16-67446-002-0010
Tax Amount: 5754
Tax Year: 2024
A broker reciprocity listing courtesy: COLDWELL BANKER REALTY
Based on information provided by Stellar MLS as distributed by the MLS GRID. Information from the Internet Data Exchange is provided exclusively for consumers’ personal, non-commercial use, and such information may not be used for any purpose other than to identify prospective properties consumers may be interested in purchasing. This data is deemed reliable but is not guaranteed to be accurate by Edina Realty, Inc., or by the MLS. Edina Realty, Inc., is not a multiple listing service (MLS), nor does it offer MLS access.
Copyright 2026 Stellar MLS as distributed by the MLS GRID. All Rights Reserved.
Payment Calculator
Interest rate and annual percentage rate (APR) are based on current market conditions, are for informational purposes only, are subject to change without notice and may be subject to pricing add-ons related to property type, loan amount, loan-to-value, credit score and other variables. Estimated closing costs used in the APR calculation are assumed to be paid by the borrower at closing. If the closing costs are financed, the loan, APR and payment amounts will be higher. If the down payment is less than 20%, mortgage insurance may be required and could increase the monthly payment and APR. Contact us for details. Additional loan programs may be available. Accuracy is not guaranteed, and all products may not be available in all borrower's geographical areas and are based on their individual situation. This is not a credit decision or a commitment to lend.
Sales History & Tax Summary for 6400 Mockingbird Way S
Sales History
| Date | Price | |
|---|---|---|
| Currently not available. | ||
Tax Summary
| Tax Year | Estimated Market Value | Total Tax |
|---|---|---|
| Currently not available. | ||
Data powered by ATTOM Data Solutions. Copyright© 2026. Information deemed reliable but not guaranteed.
Schools
Schools nearby 6400 Mockingbird Way S
| Schools in attendance boundaries | Grades | Distance | Rating |
|---|---|---|---|
| Loading... | |||
| Schools nearby | Grades | Distance | Rating |
|---|---|---|---|
| Loading... | |||
Data powered by ATTOM Data Solutions. Copyright© 2026. Information deemed reliable but not guaranteed.
The schools shown represent both the assigned schools and schools by distance based on local school and district attendance boundaries. Attendance boundaries change based on various factors and proximity does not guarantee enrollment eligibility. Please consult your real estate agent and/or the school district to confirm the schools this property is zoned to attend. Information is deemed reliable but not guaranteed.
SchoolDigger ® Rating
The SchoolDigger rating system is a 1-5 scale with 5 as the highest rating. SchoolDigger ranks schools based on test scores supplied by each state's Department of Education. They calculate an average standard score by normalizing and averaging each school's test scores across all tests and grades.
Coming soon properties will soon be on the market, but are not yet available for showings.