641 Beverly Street Wanamingo, MN 55983
Pending MLS# 6728926
2 beds 2 baths 1,233 sq ft Single Family
Details for 641 Beverly Street
MLS# 6728926
Description for 641 Beverly Street, Wanamingo, MN, 55983
Welcome HOME!This charming 2-bedroom, 2-bathroom home offers modern living with an open-concept layout, featuring a spacious living and dining room that flows seamlessly into the kitchen. Enjoy year-round comfort in the 4-season porch, perfect for relaxing or entertaining.Why go through the time, expense, and hassle of building new when you can move right into a home that already has it all? This property is thoughtfully designed with extras you won’t easily find elsewhere:A fully landscaped yard that saves you thousands in future costs and years of waiting for trees and greenery to mature.A 3-car attached garage that offers ample room for vehicles, hobbies, or a workshop.An extra storage shed, ideal for outdoor tools, equipment, or toys—giving you organized space right from day one.Built in 2019, this home is truly move-in ready with room to grow. The basement is already framed in, offering the opportunity to add more living space and build even more equity to fit your needs.Step outside and enjoy your beautiful backyard, already set up for outdoor activities, entertaining, or simply relaxing in your own private space. Schedule a showing today!
Listing Information
Property Type: Residential, Single Family
Status: Pending
Bedrooms: 2
Bathrooms: 2
Lot Size: 0.29 Acres
Square Feet: 1,233 sq ft
Year Built: 2019
Foundation: 1,164 sq ft
Garage: Yes
Stories: Split Entry (Bi-Level)
Subdivision: Wanamingo Se Add
County: Goodhue
Days On Market: 168
Construction Status: Previously Owned
School Information
District: 2172 - Kenyon-Wanamingo
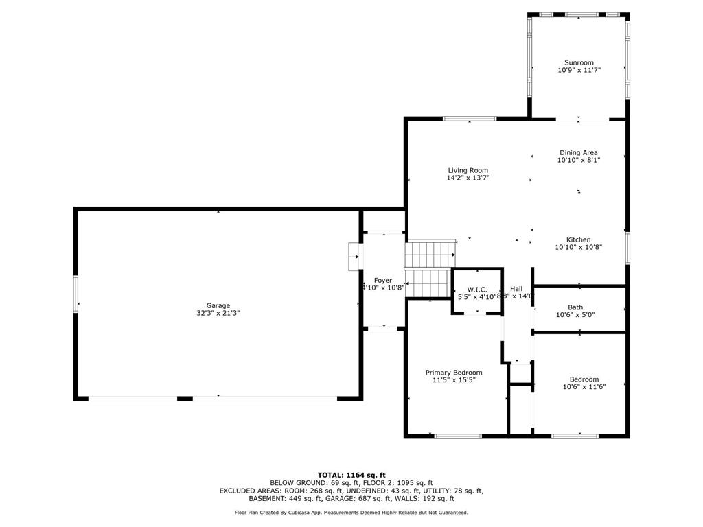
Room Information
Upper Floor
Bathroom: 10.6x5
Bedroom 1: 11.5x15.5
Bedroom 2: 10.6x11.6
Dining Room: 10.10x8.1
Four Season Porch: 10.9x11.7
Kitchen: 10.10x10.8
Living Room: 14.2x13.7
Lower Floor
Bathroom: 12.4x4.10
Utility Room: 12.4x5.10
Bathrooms
Full Baths: 2
Additonal Room Information
Family: Main Level
Dining: Kitchen/Dining Room
Laundry: In Basement
Bath Description: Full Basement,Main Floor Full Bath
Interior Features
Square Footage above: 1,164 sq ft
Square Footage below: 69 sq ft
Appliances: Gas Water Heater, Range, Refrigerator, Washer, Microwave, Exhaust Fan/Hood, Air-To-Air Exchanger, Dishwasher, Dryer
Basement: Full, Partial Finished
Fireplaces: 1, Electric
Additional Interior Features: Ceiling Fan(s), Walk-In Closet, Main Floor Bedroom, Washer/Dryer Hookup, Vaulted Ceiling(s)
Utilities
Water: City Water/Connected
Sewer: City Sewer/Connected
Cooling: Central
Heating: Forced Air, Natural Gas
Exterior / Lot Features
Attached Garage: Attached Garage
Garage Spaces: 3
Parking Description: Attached Garage, Insulated Garage, Finished Garage, Garage Sq Ft - 748.0
Exterior: Vinyl
Roof: Age 8 Years or Less
Lot Dimensions: 138x80
Zoning: Residential-Single Family
Additional Exterior/Lot Features: Porch, Irregular Lot, Road Frontage - City
Out Buildings: Shed - Storage
Driving Directions
Hwy 60 to Wanamingo, turn on Nelson, turn on Beverly
Financial Considerations
Tax/Property ID: 703660140
Tax Amount: 4670
Tax Year: 2025
HomeStead Description: Non-Homesteaded
A broker reciprocity listing courtesy: Ruby Realty
The data relating to real estate for sale on this web site comes in part from the Broker Reciprocity℠ Program of the Regional Multiple Listing Service of Minnesota, Inc. Real estate listings held by brokerage firms other than Edina Realty, Inc. are marked with the Broker Reciprocity℠ logo or the Broker Reciprocity℠ thumbnail and detailed information about them includes the name of the listing brokers. Edina Realty, Inc. is not a Multiple Listing Service (MLS), nor does it offer MLS access. This website is a service of Edina Realty, Inc., a broker Participant of the Regional Multiple Listing Service of Minnesota, Inc. IDX information is provided exclusively for consumers personal, non-commercial use and may not be used for any purpose other than to identify prospective properties consumers may be interested in purchasing. Open House information is subject to change without notice. Information deemed reliable but not guaranteed.
Copyright 2026 Regional Multiple Listing Service of Minnesota, Inc. All Rights Reserved.
Sales History & Tax Summary for 641 Beverly Street
Sales History
| Date | Price | |
|---|---|---|
| Currently not available. | ||
Tax Summary
| Tax Year | Estimated Market Value | Total Tax |
|---|---|---|
| Currently not available. | ||
Data powered by ATTOM Data Solutions. Copyright© 2026. Information deemed reliable but not guaranteed.
Schools
Schools nearby 641 Beverly Street
| Schools in attendance boundaries | Grades | Distance | Rating |
|---|---|---|---|
| Loading... | |||
| Schools nearby | Grades | Distance | Rating |
|---|---|---|---|
| Loading... | |||
Data powered by ATTOM Data Solutions. Copyright© 2026. Information deemed reliable but not guaranteed.
The schools shown represent both the assigned schools and schools by distance based on local school and district attendance boundaries. Attendance boundaries change based on various factors and proximity does not guarantee enrollment eligibility. Please consult your real estate agent and/or the school district to confirm the schools this property is zoned to attend. Information is deemed reliable but not guaranteed.
SchoolDigger ® Rating
The SchoolDigger rating system is a 1-5 scale with 5 as the highest rating. SchoolDigger ranks schools based on test scores supplied by each state's Department of Education. They calculate an average standard score by normalizing and averaging each school's test scores across all tests and grades.
Coming soon properties will soon be on the market, but are not yet available for showings.