6423 85th Street NW Corinna Twp, MN 55358 - Mink Lake
For Sale MLS# 7048829
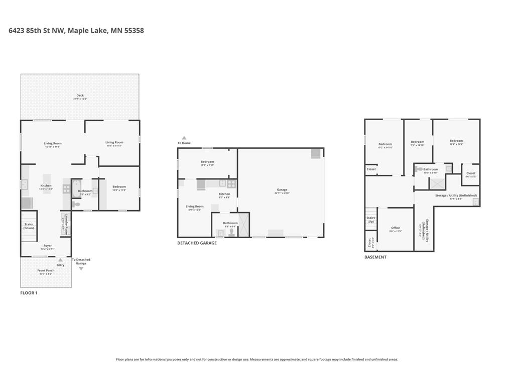
4 beds 3 baths 1,770 sq ft Single Family
Listed by: Edina Realty, Inc.
OPEN HOUSE: Saturday, 4/4 02:00 PM - 04:00 PM
Details for 6423 85th Street NW
MLS# 7048829
Description for 6423 85th Street NW, Corinna Twp, MN, 55358 - Mink Lake
Welcome to your private peninsula retreat where panoramic lake views and flexible living spaces come together just under an hour from the Twin Cities.+ GUEST HOUSE! Set at the end of the road, this rare lakefront opportunity offers 2 separate living quarters, expansive west-facing views, and unforgettable sunsets from your deck. Step inside the main level and you’re greeted by a large, welcoming entryway and convenient main floor laundry. The kitchen is the heart of the home, featuring a center island perfect for gathering and entertaining. The kitchen flows into the dining area that accommodates a large table ideal for hosting. Main level has a living room, bedroom and full bath. Lower level offers 3 beds, a ¾ bath and a walkout to the lake. Attached to the garage, the charming bunkhouse lives like a rambler and offers the perfect private retreat for guests. The guest space includes its own kitchen, ¾ bath, 1 bed and a private deck overlooking the lake.
Listing Information
Property Type: Residential, Single Family
Status: Active
Bedrooms: 4
Bathrooms: 3
Lot Size: 0.57 Acres
Square Feet: 1,770 sq ft
Year Built: 1960
Foundation: 960 sq ft
Garage: Yes
Stories: 1 Story
Subdivision: Vans Island Beach
County: Wright
Construction Status: Previously Owned
School Information
District: 881 - Maple Lake
Room Information
Main Floor
Bedroom 1: 11x12
Deck: 8x14
Deck: 12x33
Foyer: 12x10
Kitchen: 13x12
Living Room: 17x12
Lower Floor
Bedroom 2: 10x15
Bedroom 3: 8x15
Bedroom 4: 12x14
Family Room: 15x12
Recreation Room: 10x11
Bathrooms
Full Baths: 1
3/4 Baths: 2
Interior Features
Square Footage above: 960 sq ft
Square Footage below: 810 sq ft
Basement: Concrete Block, Finished (Livable), Full, Walkout, Daylight/Lookout Windows
Utilities
Water: Private
Sewer: Private, Holding Tanks
Cooling: Central
Heating: Forced Air, Propane
Exterior / Lot Features
Garage Spaces: 2
Parking Description: Detached Garage, Driveway - Gravel, Garage Door Opener, Garage Sq Ft - 420.0
Exterior: Vinyl
Lot Dimensions: 233x170x41x265
Zoning: Residential-Single Family
Additional Exterior/Lot Features: Road Frontage - Unpaved Streets, No Outlet/Dead End, County
Out Buildings: Shed - Storage, Boat House, Guest House
Waterfront Details
Boat Facilities: Boat Facilities
Standard Water Body: Mink Lake
DNR Lake ID: 86022900
Water Front Features: Lake Front, Lake View
Water Frontage Length: 233 Ft.
Lake Acres: 280
Lake Depth: 39 Ft.
Waterfront Slope: Gradual
Driving Directions
Highway 55 to County Road 8 Left on County Road 106 Left on 85th Street to home.
Financial Considerations
Tax/Property ID: 206089000130
Tax Amount: 3708
Tax Year: 2025
HomeStead Description: Homesteaded
The data relating to real estate for sale on this web site comes in part from the Broker Reciprocity℠ Program of the Regional Multiple Listing Service of Minnesota, Inc. Real estate listings held by brokerage firms other than Edina Realty, Inc. are marked with the Broker Reciprocity℠ logo or the Broker Reciprocity℠ thumbnail and detailed information about them includes the name of the listing brokers. Edina Realty, Inc. is not a Multiple Listing Service (MLS), nor does it offer MLS access. This website is a service of Edina Realty, Inc., a broker Participant of the Regional Multiple Listing Service of Minnesota, Inc. IDX information is provided exclusively for consumers personal, non-commercial use and may not be used for any purpose other than to identify prospective properties consumers may be interested in purchasing. Open House information is subject to change without notice. Information deemed reliable but not guaranteed.
Copyright 2026 Regional Multiple Listing Service of Minnesota, Inc. All Rights Reserved.
Payment Calculator
Interest rate and annual percentage rate (APR) are based on current market conditions, are for informational purposes only, are subject to change without notice and may be subject to pricing add-ons related to property type, loan amount, loan-to-value, credit score and other variables. Estimated closing costs used in the APR calculation are assumed to be paid by the borrower at closing. If the closing costs are financed, the loan, APR and payment amounts will be higher. If the down payment is less than 20%, mortgage insurance may be required and could increase the monthly payment and APR. Contact us for details. Additional loan programs may be available. Accuracy is not guaranteed, and all products may not be available in all borrower's geographical areas and are based on their individual situation. This is not a credit decision or a commitment to lend.
Sales History & Tax Summary for 6423 85th Street NW
Sales History
| Date | Price | |
|---|---|---|
| Currently not available. | ||
Tax Summary
| Tax Year | Estimated Market Value | Total Tax |
|---|---|---|
| Currently not available. | ||
Data powered by ATTOM Data Solutions. Copyright© 2026. Information deemed reliable but not guaranteed.
Schools
Schools nearby 6423 85th Street NW
| Schools in attendance boundaries | Grades | Distance | Rating |
|---|---|---|---|
| Loading... | |||
| Schools nearby | Grades | Distance | Rating |
|---|---|---|---|
| Loading... | |||
Data powered by ATTOM Data Solutions. Copyright© 2026. Information deemed reliable but not guaranteed.
The schools shown represent both the assigned schools and schools by distance based on local school and district attendance boundaries. Attendance boundaries change based on various factors and proximity does not guarantee enrollment eligibility. Please consult your real estate agent and/or the school district to confirm the schools this property is zoned to attend. Information is deemed reliable but not guaranteed.
SchoolDigger ® Rating
The SchoolDigger rating system is a 1-5 scale with 5 as the highest rating. SchoolDigger ranks schools based on test scores supplied by each state's Department of Education. They calculate an average standard score by normalizing and averaging each school's test scores across all tests and grades.
Coming soon properties will soon be on the market, but are not yet available for showings.